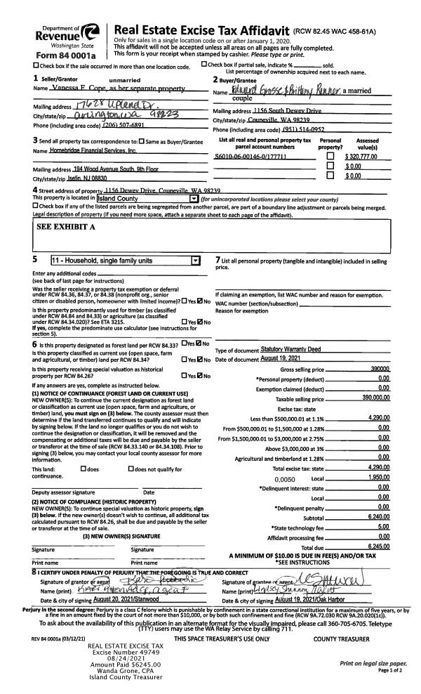
Property
Account |
| Property ID: | 802133 | Abbreviated Legal Description: | SE SE LY E OF LONE LAKE RD EX S939.38' |
| Geographic ID: | R33030-114-4910 | Agent Code: | |
| Type: | Real | | |
| Tax Area: | 712 - APPRAISER-S Whid Schl Dist, outside Langley, improved, greater than 1 acre | Land Use Code | 88 |
| Open Space: | N | DFL | Y |
| Historic Property: | N | Remodel Property: | N |
| Multi-Family Redevelopment: | N | | |
| Township: | 30 | Section: | 30 |
| Range: | R3 |
Location |
| Address: | 4355 LONE LAKE RD LANGLEY, WA 98260 | Mapsco: | |
| Neighborhood: | Cycle 4 | Map ID: | 897 |
| Neighborhood CD: | 4 |
Owner |
| Name: | BRAKEBILL, DENNIS L | Owner ID: | 306970 |
| Mailing Address: | 816 TENTH ST SNOHOMISH, WA 98290 | % Ownership: | 100.0000000000% |
| | | Exemptions: | |
Taxes and Assessment Details
Values
| (+) Improvement Homesite Value: | + | $0 | |
| (+) Improvement Non-Homesite Value: | + | $226,324 | |
| (+) Land Homesite Value: | + | $0 | |
| (+) Land Non-Homesite Value: | + | $260,000 | |
| (+) Curr Use (HS): | + | $0 | $0 |
| (+) Curr Use (NHS): | + | $140,000 | $1,783 |
| | | -------------------------- | |
| (=) Market Value: | = | $626,324 | |
| (–) Productivity Loss: | – | $138,217 | |
| | | -------------------------- | |
| (=) Subtotal: | = | $488,107 | |
| (+) Senior Appraised Value: | + | $0 | |
| (+) Non-Senior Appraised Value: | + | $488,107 | |
| | | -------------------------- | |
| (=) Total Appraised Value: | = | $488,107 | |
| (–) Senior Exemption Loss: | – | $0 | |
| (–) Exemption Loss: | – | $0 | |
| | | -------------------------- | |
| (=) Taxable Value: | = | $488,107 | |
Taxing Jurisdiction
| Owner: | BRAKEBILL, DENNIS L | | |
| % Ownership: | 100.0000000000% | | |
| Total Value: | $626,324 | | |
| Tax Area: | 712 - APPRAISER-S Whid Schl Dist, outside Langley, improved, greater than 1 acre |
| CF | Conservation Futures | 0.0316035091 | $488,107 | $488,107 | $15.43 | | |
| FIRE3 | Fire & Rescue Dist #3 S Whidbey GEN | 1.2004855531 | $488,107 | $488,107 | $585.97 | | |
| HOBOND | Hospital BOND | 0.1910887512 | $488,107 | $488,107 | $93.27 | | |
| HOGEN | Hospital GEN | 0.3902502903 | $488,107 | $488,107 | $190.48 | | |
| CE | County Current Expense | 0.3708482477 | $488,107 | $488,107 | $181.01 | | |
| CR | County Roads | 0.4584763726 | $488,107 | $488,107 | $223.79 | | |
| ISLANDEMS | Hospital GEN (EMS) | 0.5000000000 | $488,107 | $488,107 | $244.05 | | |
| LIB | Library Sno-Isle GEN | 0.3153421757 | $488,107 | $488,107 | $153.92 | | |
| PORTWHID | Port of S Whidbey GEN | 0.1094540357 | $488,107 | $488,107 | $53.43 | | |
| SCH206BOND | School 206 BOND | 0.3161759235 | $488,107 | $488,107 | $154.33 | | |
| SCH206MO | School 206 Enrichment | 0.4547169547 | $488,107 | $488,107 | $221.95 | | |
| ST | State School | 1.3035497053 | $488,107 | $488,107 | $636.27 | | |
| ST2 | State School Part 2 | 0.8169543533 | $488,107 | $488,107 | $398.76 | | |
| SWHIDPRBD | P & R S Whidbey BOND | 0.0152817568 | $488,107 | $488,107 | $7.46 | | |
| SWHIDPRBD2 | P & R S Whidbey BOND2 | 0.0138911264 | $488,107 | $488,107 | $6.78 | | |
| SWHIDPRMT | P & R S Whidbey GEN | 0.2053334452 | $488,107 | $488,107 | $100.22 | | |
| | Total Tax Rate: | 6.6934522006 | | | | | |
| | | | | Taxes w/Current Exemptions: | $3,267.12 | | |
| | | | | Taxes w/o Exemptions: | $3,267.12 | | |
Improvement / Building
| Improvement #1: | RESIDENTIAL | State Code: | Y | 968.0 sqft | Value: | $226,324 |
| Bathrooms: | 1 | Bedrooms: | 1 | | Ceiling: | DRYWALL PAINTED | Exterior Wall/Cover: | SHINGLE | | Floor Covering: | VINYL/HARDWOOD 20-80 | Floor Structure: | SLAB ON GRADE | | Foundation: | SLAB | Heating: | FHA ELECTRIC | | Interior Finish: | DRYWALL PAINT | Plumbing Fixture Cnt: | 7 | | Roof Slope: | 4" IN 12" | Roof Structure/Cover: | CJ ASPHALT |
|
| | Type | Description | Class CD | Sub Class CD | Year Built | Area |
| | BAS | BASE/MAIN FLOOR | 3 | 0 | 2008 | 968.0 |
| | BIG | BUILT IN GARAGE | 3 | 0 | 2008 | 1008.0 |
| | OWP | OPEN WOOD PORCH W/STEPS | 3 | 0 | 2008 | 200.0 |
Sketch
Property Image
Land
| 1 | 88 | DESIGNATED FOREST | 4.2100 | 183387.60 | 0.00 | 0.00 | 1.00 | $57,784 | $627 |
| 2 | 88 | DESIGNATED FOREST | 5.9900 | 260924.40 | 0.00 | 0.00 | 1.00 | $82,216 | $1,156 |
| 3 | HS | HOMESITE | 1.0000 | 43560.00 | 0.00 | 0.00 | 1.00 | $260,000 | $0 |
Roll Value History
| 2026 | N/A | N/A | N/A | N/A | N/A |
| 2025 | $226,324 | $400,000 | $1,783 | $488,107 | $488,107 |
| 2024 | $228,918 | $360,000 | $1,794 | $480,712 | $480,712 |
| 2023 | $231,512 | $360,000 | $1,720 | $265,375 | $265,375 |
| 2022 | $211,386 | $350,000 | $1,720 | $244,356 | $244,356 |
| 2021 | $185,450 | $250,000 | $1,720 | $209,492 | $209,492 |
| 2020 | $166,097 | $250,000 | $1,720 | $190,139 | $190,139 |
| 2019 | $117,683 | $300,000 | $1,663 | $146,132 | $146,132 |
| 2018 | $118,005 | $220,000 | $1,637 | $139,285 | $139,285 |
| 2017 | $118,650 | $220,000 | $1,637 | $139,930 | $139,930 |
| 2016 | $119,940 | $200,000 | $1,020 | $138,817 | $138,817 |
| 2015 | $121,229 | $200,000 | $1,020 | $140,106 | $140,106 |
| 2014 | $122,903 | $168,000 | $1,020 | $138,923 | $138,923 |
| 2013 | $124,224 | $168,000 | $1,020 | $140,244 | $140,244 |
| 2012 | $0 | $112,710 | $1,020 | $1,020 | $1,020 |
| 2011 | $0 | $132,600 | $1,020 | $1,020 | $1,020 |
| 2010 | $0 | $132,600 | $1,020 | $1,020 | $1,020 |
| 2009 | $0 | $204,000 | $1,020 | $1,020 | $1,020 |
| 2008 | $0 | $102,974 | $1,020 | $1,020 | $1,020 |
| 2007 | $0 | $102,974 | $1,020 | $1,020 | $1,020 |
Deed and Sales History
| 1 | 11/16/2022 | PRD | Personal Representatives Deed | BRAKEBILL, AVERY L | BRAKEBILL, DENNIS L | | | $0.00 | 55417 | 4554943 |
| 2 | 10/25/2004 | WD | Warranty Deed | BRAKEBILL, DENNIS L | BRAKEBILL, AVERY L | | | $0.00 | 45072 | 4116668 |
| 3 | 09/20/2004 | DECREE | Divorce Decree/Legal Separation | BRAKEBILL, DENNIS L | BRAKEBILL, DENNIS L | | | $0.00 | 44668 | 4114550 |
| 4 | 05/10/2002 | WD | Warranty Deed | COLLINS, LOIS | BRAKEBILL, DENNIS L | | | $81,500.00 | 21797 | 4019864 |
| 5 | 08/18/2000 | DECREE | Divorce Decree/Legal Separation | WHIDBEY/KSC LLC, | COLLINS, LOIS | | | $0.00 | 3399 | 20015737 |
| 6 | 04/21/2000 | SEG | DNU - Segregation | Unknown | WHIDBEY/KSC LLC, | | | $0.00 | 68677 | 0 |
Payout Agreement
| No payout information available.. |