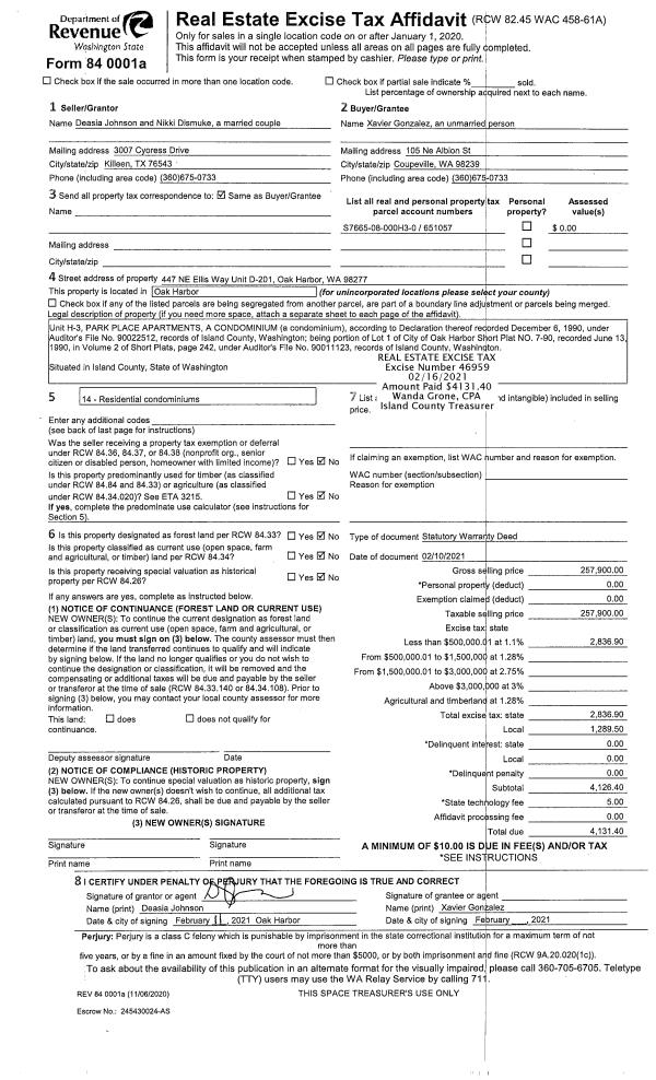
Property
Account |
| Property ID: | 802211 | Abbreviated Legal Description: | S660' OF SW SW EX W440' TGW EZ |
| Geographic ID: | R33029-032-0870 | Agent Code: | |
| Type: | Real | | |
| Tax Area: | 712 - APPRAISER-S Whid Schl Dist, outside Langley, improved, greater than 1 acre | Land Use Code | 11 |
| Open Space: | N | DFL | N |
| Historic Property: | N | Remodel Property: | N |
| Multi-Family Redevelopment: | N | | |
| Township: | 30 | Section: | 29 |
| Range: | R3 |
Location |
| Address: | 2835 WILD ROSE WAY LANGLEY, WA 98260 | Mapsco: | |
| Neighborhood: | Cycle 4 | Map ID: | 893 |
| Neighborhood CD: | 4 |
Owner |
| Name: | THURBER-SMITH, KATHRYN H | Owner ID: | 286598 |
| Mailing Address: | GREGORY L SMITH 2835 WILD ROSE WAY LANGLEY, WA 98260 | % Ownership: | 100.0000000000% |
| | | Exemptions: | |
Taxes and Assessment Details
Values
| (+) Improvement Homesite Value: | + | $0 | |
| (+) Improvement Non-Homesite Value: | + | $466,414 | |
| (+) Land Homesite Value: | + | $0 | |
| (+) Land Non-Homesite Value: | + | $400,000 | |
| (+) Curr Use (HS): | + | $0 | $0 |
| (+) Curr Use (NHS): | + | $0 | $0 |
| | | -------------------------- | |
| (=) Market Value: | = | $866,414 | |
| (–) Productivity Loss: | – | $0 | |
| | | -------------------------- | |
| (=) Subtotal: | = | $866,414 | |
| (+) Senior Appraised Value: | + | $0 | |
| (+) Non-Senior Appraised Value: | + | $866,414 | |
| | | -------------------------- | |
| (=) Total Appraised Value: | = | $866,414 | |
| (–) Senior Exemption Loss: | – | $0 | |
| (–) Exemption Loss: | – | $0 | |
| | | -------------------------- | |
| (=) Taxable Value: | = | $866,414 | |
Taxing Jurisdiction
| Owner: | THURBER-SMITH, KATHRYN H | | |
| % Ownership: | 100.0000000000% | | |
| Total Value: | $866,414 | | |
| Tax Area: | 712 - APPRAISER-S Whid Schl Dist, outside Langley, improved, greater than 1 acre |
| CF | Conservation Futures | 0.0316035091 | $866,414 | $866,414 | $27.38 | | |
| FIRE3 | Fire & Rescue Dist #3 S Whidbey GEN | 1.2004855531 | $866,414 | $866,414 | $1,040.12 | | |
| HOBOND | Hospital BOND | 0.1910887512 | $866,414 | $866,414 | $165.56 | | |
| HOGEN | Hospital GEN | 0.3902502903 | $866,414 | $866,414 | $338.12 | | |
| CE | County Current Expense | 0.3708482477 | $866,414 | $866,414 | $321.31 | | |
| CR | County Roads | 0.4584763726 | $866,414 | $866,414 | $397.23 | | |
| ISLANDEMS | Hospital GEN (EMS) | 0.5000000000 | $866,414 | $866,414 | $433.21 | | |
| LIB | Library Sno-Isle GEN | 0.3153421757 | $866,414 | $866,414 | $273.22 | | |
| PORTWHID | Port of S Whidbey GEN | 0.1094540357 | $866,414 | $866,414 | $94.83 | | |
| SCH206BOND | School 206 BOND | 0.3161759235 | $866,414 | $866,414 | $273.94 | | |
| SCH206MO | School 206 Enrichment | 0.4547169547 | $866,414 | $866,414 | $393.97 | | |
| ST | State School | 1.3035497053 | $866,414 | $866,414 | $1,129.41 | | |
| ST2 | State School Part 2 | 0.8169543533 | $866,414 | $866,414 | $707.82 | | |
| SWHIDPRBD | P & R S Whidbey BOND | 0.0152817568 | $866,414 | $866,414 | $13.24 | | |
| SWHIDPRBD2 | P & R S Whidbey BOND2 | 0.0138911264 | $866,414 | $866,414 | $12.04 | | |
| SWHIDPRMT | P & R S Whidbey GEN | 0.2053334452 | $866,414 | $866,414 | $177.90 | | |
| | Total Tax Rate: | 6.6934522006 | | | | | |
| | | | | Taxes w/Current Exemptions: | $5,799.30 | | |
| | | | | Taxes w/o Exemptions: | $5,799.30 | | |
Improvement / Building
| Improvement #1: | RESIDENTIAL | State Code: | Y | 2064.0 sqft | Value: | $466,414 |
| Bathrooms: | 2.5 | Bedrooms: | 3 | | Ceiling: | DRYWALL PAINTED | Exterior Wall/Cover: | CEMENT FIBER | | Floor Covering: | CERAMIC TILE/CPT 40-60 | Floor Structure: | SLAB ON GRADE | | Foundation: | SLAB | Heating: | RADIANT FLOOR | | Interior Finish: | DRYWALL PAINT | Plumbing Fixture Cnt: | 12 | | Roof Slope: | 3" IN 12" | Roof Structure/Cover: | BEAM ALUMINUM HEAVY |
|
| | Type | Description | Class CD | Sub Class CD | Year Built | Area |
| | BAS | BASE/MAIN FLOOR | 3 | 0 | 2002 | 1488.0 |
| | OP4 | OPEN PORCH W/CEILING-ROOF | 3 | 0 | 2002 | 161.0 |
| | UTY | STORAGE/UTILITY | 3 | 0 | 2002 | 75.6 |
| | UPS | UPPER STORY | 3 | 0 | 2002 | 576.0 |
| | OWC | OPEN WOOD PORCH W/STEPS/ROOF/C | 3 | 0 | 2002 | 189.1 |
| | DGR | DETACHED GARAGE | 3 | 0 | 2002 | 288.0 |
| | oPOL | POLE BARN | 3 | 0 | 2002 | 1104.0 |
| | DGR | DETACHED GARAGE | 3 | 0 | 2002 | 800.0 |
| | CPD | OPEN CARPORT DIRT FLOOR | 3 | 0 | 2002 | 288.0 |
| | OWP | OPEN WOOD PORCH W/STEPS | 3 | 0 | 2002 | 1262.5 |
Sketch
Property Image
Land
| 1 | 35 | AC (10.00-30.99) | 13.3400 | 581090.40 | 0.00 | 0.00 | 1.00 | $400,000 | $0 |
Roll Value History
| 2026 | N/A | N/A | N/A | N/A | N/A |
| 2025 | $466,414 | $400,000 | $0 | $866,414 | $866,414 |
| 2024 | $471,420 | $360,000 | $0 | $831,420 | $831,420 |
| 2023 | $476,426 | $360,000 | $0 | $836,426 | $836,426 |
| 2022 | $440,619 | $350,000 | $0 | $790,619 | $790,619 |
| 2021 | $393,589 | $250,000 | $0 | $643,589 | $643,589 |
| 2020 | $333,411 | $250,000 | $0 | $583,411 | $583,411 |
| 2019 | $270,021 | $300,000 | $0 | $570,021 | $570,021 |
| 2018 | $222,309 | $220,000 | $0 | $442,309 | $442,309 |
| 2017 | $223,596 | $220,000 | $1,280 | $290,840 | $290,840 |
| 2016 | $226,196 | $200,000 | $1,196 | $287,362 | $287,362 |
| 2015 | $228,796 | $200,000 | $1,196 | $289,962 | $289,962 |
| 2014 | $200,515 | $200,100 | $1,196 | $261,711 | $261,711 |
| 2013 | $202,692 | $200,100 | $1,196 | $263,888 | $263,888 |
| 2012 | $204,870 | $175,957 | $1,209 | $245,679 | $245,679 |
| 2011 | $0 | $160,420 | $1,209 | $1,209 | $1,209 |
| 2010 | $0 | $160,420 | $1,209 | $1,209 | $1,209 |
| 2009 | $0 | $185,100 | $1,209 | $1,209 | $1,209 |
| 2008 | $0 | $158,248 | $1,209 | $1,209 | $1,209 |
| 2007 | $0 | $158,248 | $1,209 | $1,209 | $1,209 |
Deed and Sales History
| 1 | 09/11/2018 | WD | Warranty Deed | ORR, JORDAN | THURBER-SMITH, KATHRYN H | | | $810,000.00 | 35918 | 4451808 |
|   | |
| 2 | 10/15/2012 | WD | Warranty Deed | SNELLING, CHARLES | ORR, JORDAN | | | | 8534 | 4321186 |
| 3 | 05/18/2000 | BLA | DNU - Boundary Line Adjustment | Unknown | SNELLING, CHARLES | | | $0.00 | 68686 | 99019770 |
Payout Agreement
| No payout information available.. |