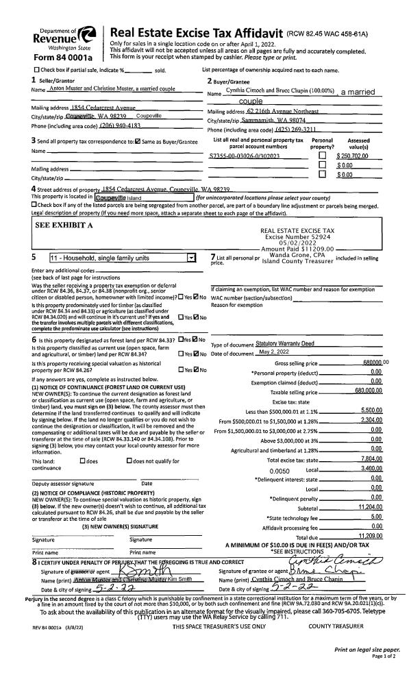
Property
Account |
| Property ID: | 802222 | Abbreviated Legal Description: | CAMANO LOTS 4, 5, 6, 14, 15 & 16 BLK 1 EX PT OF LOT 16 LY N OF FOLL DESC LN: BG NECR OF LOT 12 BLK 1 SD PLAT FR WHICH SECR OF LOT 11 BLK 1 SD PLAT BEARS S2*E120 PER SURVEY AF#20013913 N2*W43.86 N11*E172.02 TP (40)N OF SECR OF LOT 16 BLK 1 SD PLAT T |
| Geographic ID: | S6240-00-01004-1 | Agent Code: | |
| Type: | Real | | |
| Tax Area: | 510 - APPRAISER-Stan/Cam Schl Dist, improved & 1 acre or less | Land Use Code | 11 |
| Open Space: | N | DFL | N |
| Historic Property: | N | Remodel Property: | N |
| Multi-Family Redevelopment: | N | | |
| Township: | | Section: | |
| Range: | |
Location |
| Address: | 1010 ORCHID RD CAMANO ISLAND, WA 98282 | Mapsco: | |
| Neighborhood: | Cycle 5 | Map ID: | 485 |
| Neighborhood CD: | 5 |
Owner |
| Name: | FRENCH, STEVEN C (50%) | Owner ID: | 294198 |
| Mailing Address: | JEANNE M FAY (50%) 1010 ORCHID RD CAMANO ISLAND, WA 98277 | % Ownership: | 100.0000000000% |
| | | Exemptions: | |
Taxes and Assessment Details
Values
| (+) Improvement Homesite Value: | + | $0 | |
| (+) Improvement Non-Homesite Value: | + | $579,984 | |
| (+) Land Homesite Value: | + | $0 | |
| (+) Land Non-Homesite Value: | + | $270,000 | |
| (+) Curr Use (HS): | + | $0 | $0 |
| (+) Curr Use (NHS): | + | $0 | $0 |
| | | -------------------------- | |
| (=) Market Value: | = | $849,984 | |
| (–) Productivity Loss: | – | $0 | |
| | | -------------------------- | |
| (=) Subtotal: | = | $849,984 | |
| (+) Senior Appraised Value: | + | $0 | |
| (+) Non-Senior Appraised Value: | + | $849,984 | |
| | | -------------------------- | |
| (=) Total Appraised Value: | = | $849,984 | |
| (–) Senior Exemption Loss: | – | $0 | |
| (–) Exemption Loss: | – | $0 | |
| | | -------------------------- | |
| (=) Taxable Value: | = | $849,984 | |
Taxing Jurisdiction
| Owner: | FRENCH, STEVEN C (50%) | | |
| % Ownership: | 100.0000000000% | | |
| Total Value: | $849,984 | | |
| Tax Area: | 510 - APPRAISER-Stan/Cam Schl Dist, improved & 1 acre or less |
| CF | Conservation Futures | 0.0316035091 | $849,984 | $849,984 | $26.86 | | |
| EMS1 | Fire & Rescue Dist #1 Camano GEN (EMS) | 0.3677864386 | $849,984 | $849,984 | $312.61 | | |
| FIRE1 | Fire & Rescue Dist #1 Camano GEN | 1.2502910536 | $849,984 | $849,984 | $1,062.73 | | |
| FIRE1BOND | Fire & Rescue Dist #1 Camano BOND | 0.1570001679 | $849,984 | $849,984 | $133.45 | | |
| CE | County Current Expense | 0.3708482477 | $849,984 | $849,984 | $315.22 | | |
| CR | County Roads | 0.4584763726 | $849,984 | $849,984 | $389.70 | | |
| LCIB | Library Sno-Isle BOND (Camano Island) | 0.0396325772 | $849,984 | $849,984 | $33.69 | | |
| LIB | Library Sno-Isle GEN | 0.3153421757 | $849,984 | $849,984 | $268.04 | | |
| SCH205_401 | School 205-401 Enrichment | 1.2698420524 | $849,984 | $849,984 | $1,079.35 | | |
| SCH205BOND | School 205-401 BOND | 0.9396497583 | $849,984 | $849,984 | $798.69 | | |
| ST | State School | 1.3035497053 | $849,984 | $849,984 | $1,108.00 | | |
| ST2 | State School Part 2 | 0.8169543533 | $849,984 | $849,984 | $694.40 | | |
| | Total Tax Rate: | 7.3209764117 | | | | | |
| | | | | Taxes w/Current Exemptions: | $6,222.74 | | |
| | | | | Taxes w/o Exemptions: | $6,222.74 | | |
Improvement / Building
| Improvement #1: | RESIDENTIAL | State Code: | Y | 2301.0 sqft | Value: | $579,984 |
| Bathrooms: | 2.5 | Bedrooms: | 3 | | Ceiling: | DRYWALL PAINTED | Cooling: | HEAT PUMP/CONV/V | | Exterior Wall/Cover: | CEMENT FIBER | Floor Covering: | CERAMIC TILE/CPT 40-60 | | Floor Structure: | WOOD W/SUBFLOOR | Foundation: | CONCRETE | | Interior Finish: | DRYWALL PAINT | Plumbing Fixture Cnt: | 13 | | Roof Slope: | 8" IN 12" | Roof Structure/Cover: | CJ ASPHALT |
|
| | Type | Description | Class CD | Sub Class CD | Year Built | Area |
| | BAS | BASE/MAIN FLOOR | 4 | 0 | 2003 | 2301.0 |
| | OP1 | OPEN PORCH SLAB | 4 | 0 | 2003 | 552.0 |
| | OP4 | OPEN PORCH W/CEILING-ROOF | 4 | 0 | 2003 | 104.0 |
| | AGR | ATTACHED GARAGE | 4 | 0 | 2003 | 836.0 |
| | OWP | OPEN WOOD PORCH W/STEPS | 4 | 0 | 2003 | 237.0 |
| | OWC | OPEN WOOD PORCH W/STEPS/ROOF/C | 4 | 0 | 2003 | 106.4 |
| | UTY | STORAGE/UTILITY | 4 | 0 | 2003 | 396.2 |
| | UTY | STORAGE/UTILITY | 4 | 0 | 2003 | 100.0 |
| | OP1 | OPEN PORCH SLAB | 4 | 0 | 2003 | 1916.0 |
Sketch
Property Image
Land
| 1 | 16 | AC (00.51-01.00) | 0.8600 | 37461.60 | 0.00 | 0.00 | 1.00 | $270,000 | $0 |
Roll Value History
| 2026 | N/A | N/A | N/A | N/A | N/A |
| 2025 | $579,984 | $270,000 | $0 | $849,984 | $849,984 |
| 2024 | $586,630 | $270,000 | $0 | $856,630 | $856,630 |
| 2023 | $593,278 | $270,000 | $0 | $863,278 | $863,278 |
| 2022 | $541,728 | $220,000 | $0 | $761,728 | $761,728 |
| 2021 | $475,261 | $180,000 | $0 | $655,261 | $655,261 |
| 2020 | $430,143 | $150,000 | $0 | $580,143 | $580,143 |
| 2019 | $323,545 | $180,000 | $0 | $503,545 | $503,545 |
| 2018 | $324,463 | $150,000 | $0 | $474,463 | $474,463 |
| 2017 | $326,296 | $150,000 | $0 | $476,296 | $476,296 |
| 2016 | $329,963 | $130,000 | $0 | $459,963 | $459,963 |
| 2015 | $322,530 | $92,800 | $0 | $415,330 | $415,330 |
| 2014 | $326,142 | $92,800 | $0 | $418,942 | $418,942 |
| 2013 | $329,755 | $92,800 | $0 | $422,555 | $422,555 |
| 2012 | $333,369 | $92,800 | $0 | $426,169 | $426,169 |
| 2011 | $336,981 | $116,000 | $0 | $452,981 | $452,981 |
| 2010 | $343,638 | $116,000 | $0 | $459,638 | $459,638 |
| 2009 | $358,147 | $125,000 | $0 | $483,147 | $483,147 |
| 2008 | $366,029 | $138,700 | $0 | $504,729 | $504,729 |
| 2007 | $366,632 | $138,700 | $0 | $505,332 | $505,332 |
Deed and Sales History
| 1 | 05/06/2020 | WD | Warranty Deed | BACIGALUPI, MICHAEL S | FRENCH, STEVEN C (50%) | | | $689,000.00 | 43007 | 4486602 |
| 2 | 09/13/2012 | ESTSEPPROP | Establish Separate Property | BACIGALUPI, MICHAEL S | BACIGALUPI, MICHAEL S | | | $0.00 | 9648 | 4328330 |
| 3 | 08/27/2012 | QCD | Quit Claim Deed | BACIGALUPI, MICHAEL S | BACIGALUPI, MICHAEL S | | | $10,300.00 | 9645 | 4328329 |
| 4 | 08/15/2006 | WD | Warranty Deed | RUTTER, MICHAEL D | BACIGALUPI, MICHAEL S | | | $519,950.00 | 63609 | 4179569 |
| 5 | 02/18/2004 | WD | Warranty Deed | CONSTRUCTION INC, G A POWELL | RUTTER, MICHAEL D | | | $350,000.00 | 40741 | 4092576 |
| 6 | 01/29/2003 | WD | Warranty Deed | AUGIER, LINDA J | CONSTRUCTION INC, G A POWELL | | | $78,000.00 | 30531 | 4047357 |
| 7 | 12/10/2002 | BLA | DNU - Boundary Line Adjustment | AUGIER, LINDA J | AUGIER, LINDA J | | | $0.00 | 69630 | 4011506 |
| 8 | 05/22/2000 | BLA | DNU - Boundary Line Adjustment | Unknown | AUGIER, LINDA J | | | $0.00 | 68688 | 99020484 |
Payout Agreement
| No payout information available.. |