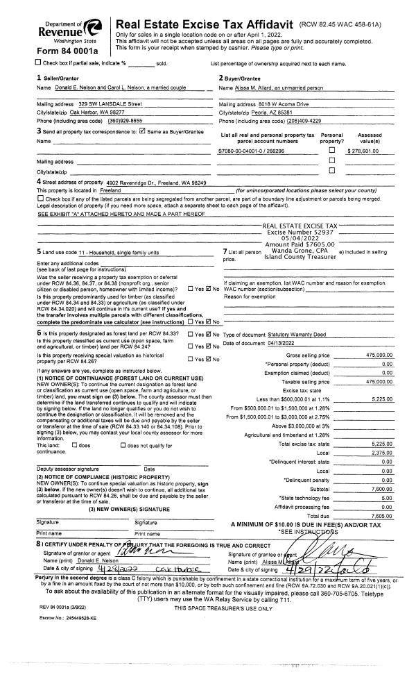
Property
Account |
| Property ID: | 802238 | Abbreviated Legal Description: | N130' OF SW SW NE SW EX PT LY W OF ELY LN OF E CAMANO DR TGW N130' OF W65' OF SE SW NE SW |
| Geographic ID: | R33231-160-1580 | Agent Code: | |
| Type: | Real | | |
| Tax Area: | 590 - APPRAISER-Stan/Cam Schl Dist, Special Dist, improved & less than 1 acre | Land Use Code | 34 |
| Open Space: | N | DFL | N |
| Historic Property: | N | Remodel Property: | N |
| Multi-Family Redevelopment: | N | | |
| Township: | 32 | Section: | 31 |
| Range: | R3 |
Location |
| Address: | 122 N EAST CAMANO DR CAMANO ISLAND, WA 98282 | Mapsco: | |
| Neighborhood: | 53cRR-necamano rd | Map ID: | 992 |
| Neighborhood CD: | 53cRRnecam |
Owner |
| Name: | GRAY SISTERS LLC | Owner ID: | 199290 |
| Mailing Address: | 122 N EAST CAMANO DR CAMANO ISLAND, WA 98282-5516 | % Ownership: | 100.0000000000% |
| | | Exemptions: | |
Taxes and Assessment Details
Values
| (+) Improvement Homesite Value: | + | $0 | |
| (+) Improvement Non-Homesite Value: | + | $336,218 | |
| (+) Land Homesite Value: | + | $0 | |
| (+) Land Non-Homesite Value: | + | $250,000 | |
| (+) Curr Use (HS): | + | $0 | $0 |
| (+) Curr Use (NHS): | + | $0 | $0 |
| | | -------------------------- | |
| (=) Market Value: | = | $586,218 | |
| (–) Productivity Loss: | – | $0 | |
| | | -------------------------- | |
| (=) Subtotal: | = | $586,218 | |
| (+) Senior Appraised Value: | + | $0 | |
| (+) Non-Senior Appraised Value: | + | $586,218 | |
| | | -------------------------- | |
| (=) Total Appraised Value: | = | $586,218 | |
| (–) Senior Exemption Loss: | – | $0 | |
| (–) Exemption Loss: | – | $0 | |
| | | -------------------------- | |
| (=) Taxable Value: | = | $586,218 | |
Taxing Jurisdiction
| Owner: | GRAY SISTERS LLC | | |
| % Ownership: | 100.0000000000% | | |
| Total Value: | $586,218 | | |
| Tax Area: | 590 - APPRAISER-Stan/Cam Schl Dist, Special Dist, improved & less than 1 acre |
| CF | Conservation Futures | 0.0316035091 | $586,218 | $586,218 | $18.53 | | |
| EMS1 | Fire & Rescue Dist #1 Camano GEN (EMS) | 0.3677864386 | $586,218 | $586,218 | $215.60 | | |
| FIRE1 | Fire & Rescue Dist #1 Camano GEN | 1.2502910536 | $586,218 | $586,218 | $732.94 | | |
| FIRE1BOND | Fire & Rescue Dist #1 Camano BOND | 0.1570001679 | $586,218 | $586,218 | $92.04 | | |
| CE | County Current Expense | 0.3708482477 | $586,218 | $586,218 | $217.40 | | |
| CR | County Roads | 0.4584763726 | $586,218 | $586,218 | $268.77 | | |
| LCIB | Library Sno-Isle BOND (Camano Island) | 0.0396325772 | $586,218 | $586,218 | $23.23 | | |
| LIB | Library Sno-Isle GEN | 0.3153421757 | $586,218 | $586,218 | $184.86 | | |
| SCH205_401 | School 205-401 Enrichment | 1.2698420524 | $586,218 | $586,218 | $744.40 | | |
| SCH205BOND | School 205-401 BOND | 0.9396497583 | $586,218 | $586,218 | $550.84 | | |
| ST | State School | 1.3035497053 | $586,218 | $586,218 | $764.16 | | |
| ST2 | State School Part 2 | 0.8169543533 | $586,218 | $586,218 | $478.91 | | |
| | Total Tax Rate: | 7.3209764117 | | | | | |
| | | | | Taxes w/Current Exemptions: | $4,291.68 | | |
| | | | | Taxes w/o Exemptions: | $4,291.68 | | |
Improvement / Building
| Improvement #1: | COMMERCIAL | State Code: | F1 | 1500.0 sqft | Value: | $178,024 |
| Bathrooms: | 0 | Bedrooms: | 0 | | Ceiling: | DRYWALL PAINTED | Exterior Wall/Cover: | 8" CONC BLK/CON FRAM | | Floor Covering: | CARPET 100% | Floor Structure: | CONCRETE ON GROUND | | Foundation: | SLAB | Heating: | WALL HEAT ELECTRIC | | Interior Finish: | OFFICE | Plumbing Fixture Cnt: | 1 | | Roof Structure/Cover: | BEAM BUILT-UP ROCK |   |   |
|
| | Type | Description | Class CD | Sub Class CD | Year Built | Area |
| | BAS | BASE/MAIN FLOOR | 3 | 0 | 1975 | 750.0 |
| | STG | STORAGE | 3 | 0 | 1975 | 750.0 |
| Improvement #2: | COMMERCIAL | State Code: | F1 | 6955.0 sqft | Value: | $158,194 |
| Bathrooms: | 0 | Bedrooms: | 0 | | Ceiling: | PAINT OPEN FLOOR BAS | Exterior Wall/Cover: | WD/WD OR STEEL STUDS | | Floor Covering: | CONCRETE SEALER | Floor Structure: | CONCRETE ON GROUND | | Foundation: | CONCRETE | Heating: | SPACE HEATERS | | Interior Finish: | MANUFACTURING (LIGHT) | Plumbing Fixture Cnt: | 1 | | Roof Structure/Cover: | BUILT-UP/OPEN WOOD |   |   |
|
| | Type | Description | Class CD | Sub Class CD | Year Built | Area |
| | BAS | BASE/MAIN FLOOR | 3 | 0 | 1975 | 6955.0 |
| | OP1 | OPEN PORCH SLAB | 3 | 0 | 1975 | 1101.0 |
| | UTY | STORAGE/UTILITY | 3 | 0 | 1975 | 130.0 |
| | UTY | STORAGE/UTILITY | 3 | 0 | 1975 | 32.0 |
| | oFN8 | CHN LK 6' | 3 | 0 | 1975 | 0.0 |
Sketch
Property Image
Land
| 1 | 72 | INDUSTRIAL STORAGE | 0.9900 | 43124.40 | 0.00 | 0.00 | 1.00 | $250,000 | $0 |
Roll Value History
| 2026 | N/A | N/A | N/A | N/A | N/A |
| 2025 | $336,218 | $250,000 | $0 | $586,218 | $586,218 |
| 2024 | $348,184 | $230,000 | $0 | $578,184 | $578,184 |
| 2023 | $358,626 | $180,000 | $0 | $538,626 | $538,626 |
| 2022 | $297,304 | $180,000 | $0 | $477,304 | $477,304 |
| 2021 | $203,476 | $150,000 | $0 | $353,476 | $353,476 |
| 2020 | $203,284 | $150,000 | $0 | $353,284 | $353,284 |
| 2019 | $235,435 | $180,000 | $0 | $415,435 | $415,435 |
| 2018 | $235,471 | $160,000 | $0 | $395,471 | $395,471 |
| 2017 | $235,548 | $160,000 | $0 | $395,548 | $395,548 |
| 2016 | $235,698 | $160,000 | $0 | $395,698 | $395,698 |
| 2015 | $300,389 | $93,041 | $0 | $393,430 | $393,430 |
| 2014 | $300,389 | $93,041 | $0 | $393,430 | $393,430 |
| 2013 | $300,389 | $93,041 | $0 | $393,430 | $393,430 |
| 2012 | $300,389 | $93,041 | $0 | $393,430 | $393,430 |
| 2011 | $300,389 | $93,041 | $0 | $393,430 | $393,430 |
| 2010 | $324,896 | $93,041 | $0 | $417,937 | $417,937 |
| 2009 | $330,208 | $93,041 | $0 | $423,249 | $423,249 |
| 2008 | $349,159 | $97,889 | $0 | $447,048 | $447,048 |
Deed and Sales History
| 1 | 11/08/2007 | WD | Warranty Deed | GRAY TRUSTEE, JANET R | GRAY SISTERS LLC, | | | $491,922.00 | 73746 | 4216181 |
| 2 | 05/12/2006 | QCD | Quit Claim Deed | GRAY, SHERMAN J | GRAY TRUSTEE, JANET R | | | $0.00 | 62167 | 4170689 |
| 3 | 06/13/2000 | BLA | DNU - Boundary Line Adjustment | Unknown | GRAY, SHERMAN J | | | $0.00 | 68700 | 99022948 |
Payout Agreement
| No payout information available.. |