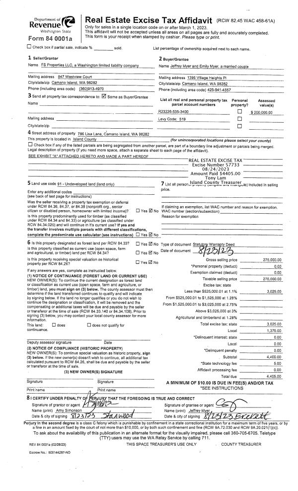
Property
Account |
| Property ID: | 802259 | Abbreviated Legal Description: | IN SW NE: BG SWCR SD SUBD N46*E42.43' S88*E241.48' N55*E1294.39' S1*W788.58' N88*W1320.39' TPB |
| Geographic ID: | R23334-292-3640 | Agent Code: | |
| Type: | Real | | |
| Tax Area: | 112 - APPRAISER-OH Schl Dist, outside OH, improved, greater than 1 acre | Land Use Code | 11 |
| Open Space: | N | DFL | N |
| Historic Property: | N | Remodel Property: | N |
| Multi-Family Redevelopment: | N | | |
| Township: | 33 | Section: | 34 |
| Range: | R2 |
Location |
| Address: | 1405 BLACKBERRY LN OAK HARBOR, WA 98277 | Mapsco: | |
| Neighborhood: | Cycle 6 | Map ID: | 658 |
| Neighborhood CD: | 6 |
Owner |
| Name: | BROWN, DANIEL J | Owner ID: | 187167 |
| Mailing Address: | DAWN L BROWN 1405 BLACKBERRY LN OAK HARBOR, WA 98277-8656 | % Ownership: | 100.0000000000% |
| | | Exemptions: | |
Taxes and Assessment Details
Values
| (+) Improvement Homesite Value: | + | $0 | |
| (+) Improvement Non-Homesite Value: | + | $625,930 | |
| (+) Land Homesite Value: | + | $0 | |
| (+) Land Non-Homesite Value: | + | $340,000 | |
| (+) Curr Use (HS): | + | $0 | $0 |
| (+) Curr Use (NHS): | + | $0 | $0 |
| | | -------------------------- | |
| (=) Market Value: | = | $965,930 | |
| (–) Productivity Loss: | – | $0 | |
| | | -------------------------- | |
| (=) Subtotal: | = | $965,930 | |
| (+) Senior Appraised Value: | + | $0 | |
| (+) Non-Senior Appraised Value: | + | $965,930 | |
| | | -------------------------- | |
| (=) Total Appraised Value: | = | $965,930 | |
| (–) Senior Exemption Loss: | – | $0 | |
| (–) Exemption Loss: | – | $0 | |
| | | -------------------------- | |
| (=) Taxable Value: | = | $965,930 | |
Taxing Jurisdiction
| Owner: | BROWN, DANIEL J | | |
| % Ownership: | 100.0000000000% | | |
| Total Value: | $965,930 | | |
| Tax Area: | 112 - APPRAISER-OH Schl Dist, outside OH, improved, greater than 1 acre |
| CF | Conservation Futures | 0.0316035091 | $965,930 | $965,930 | $30.53 | | |
| CEM1 | Cemetery #1 | 0.0040320932 | $965,930 | $965,930 | $3.89 | | |
| FIRE2 | Fire & Rescue Dist #2 N Whidbey GEN | 0.5475949600 | $965,930 | $965,930 | $528.94 | | |
| HOBOND | Hospital BOND | 0.1910887512 | $965,930 | $965,930 | $184.58 | | |
| HOGEN | Hospital GEN | 0.3902502903 | $965,930 | $965,930 | $376.95 | | |
| CE | County Current Expense | 0.3708482477 | $965,930 | $965,930 | $358.21 | | |
| CR | County Roads | 0.4584763726 | $965,930 | $965,930 | $442.86 | | |
| ISLANDEMS | Hospital GEN (EMS) | 0.5000000000 | $965,930 | $965,930 | $482.97 | | |
| LIB | Library Sno-Isle GEN | 0.3153421757 | $965,930 | $965,930 | $304.60 | | |
| NWHIDPRMT | P & R N Whidbey GEN | 0.2004466701 | $965,930 | $965,930 | $193.62 | | |
| SCH201MO | School 201 Enrichment | 1.8559231640 | $965,930 | $965,930 | $1,792.69 | | |
| ST | State School | 1.3035497053 | $965,930 | $965,930 | $1,259.14 | | |
| ST2 | State School Part 2 | 0.8169543533 | $965,930 | $965,930 | $789.12 | | |
| | Total Tax Rate: | 6.9861102925 | | | | | |
| | | | | Taxes w/Current Exemptions: | $6,748.10 | | |
| | | | | Taxes w/o Exemptions: | $6,748.10 | | |
Improvement / Building
| Improvement #1: | RESIDENTIAL | State Code: | Y | 3468.4 sqft | Value: | $625,930 |
| Bathrooms: | 3.5 | Bedrooms: | 3 | | Ceiling: | DRYWALL PAINTED | Cooling: | HEAT PUMP/CONV/V | | Exterior Wall/Cover: | SHINGLE | Floor Covering: | HARDWOOD/CARP 20-80 | | Floor Structure: | WOOD W/SUBFLOOR | Foundation: | CONCRETE | | Interior Finish: | DRYWALL PAINT | Plumbing Fixture Cnt: | 14 | | Roof Slope: | 4" IN 12" | Roof Structure/Cover: | CJ ASPHALT |
|
| | Type | Description | Class CD | Sub Class CD | Year Built | Area |
| | BAS | BASE/MAIN FLOOR | 4 | 0 | 2005 | 1747.9 |
| | DWN | DOWNSTAIRS LIVING AREA | 4 | 0 | 2005 | 863.0 |
| | OP4 | OPEN PORCH W/CEILING-ROOF | 4 | 0 | 2005 | 148.8 |
| | BIG | BUILT IN GARAGE | 4 | 0 | 2005 | 883.2 |
| | UPS | UPPER STORY | 4 | 0 | 2005 | 857.5 |
| | OWP | OPEN WOOD PORCH W/STEPS | 4 | 0 | 2005 | 148.0 |
| | OWC | OPEN WOOD PORCH W/STEPS/ROOF/C | 4 | 0 | 2005 | 205.6 |
| | OWC | OPEN WOOD PORCH W/STEPS/ROOF/C | 4 | 0 | 2005 | 143.0 |
| | UTY | STORAGE/UTILITY | 4 | 0 | 2005 | 227.6 |
| | OWP | OPEN WOOD PORCH W/STEPS | 4 | 0 | 2005 | 1208.0 |
| | OP1 | OPEN PORCH SLAB | 4 | 0 | 2005 | 1189.0 |
Sketch
Property Image
Land
| 1 | 35 | AC (10.00-30.99) | 10.0300 | 436906.80 | 0.00 | 0.00 | 1.00 | $340,000 | $0 |
Roll Value History
| 2026 | N/A | N/A | N/A | N/A | N/A |
| 2025 | $625,930 | $340,000 | $0 | $965,930 | $965,930 |
| 2024 | $633,448 | $300,000 | $0 | $933,448 | $933,448 |
| 2023 | $640,966 | $280,000 | $0 | $920,966 | $920,966 |
| 2022 | $517,434 | $270,000 | $0 | $787,434 | $787,434 |
| 2021 | $480,114 | $210,000 | $0 | $690,114 | $690,114 |
| 2020 | $467,960 | $200,000 | $0 | $667,960 | $667,960 |
| 2019 | $350,551 | $250,000 | $0 | $600,551 | $600,551 |
| 2018 | $351,566 | $230,000 | $0 | $581,566 | $581,566 |
| 2017 | $353,598 | $170,000 | $0 | $523,598 | $523,598 |
| 2016 | $316,865 | $170,000 | $0 | $486,865 | $486,865 |
| 2015 | $311,008 | $170,000 | $0 | $481,008 | $481,008 |
| 2014 | $314,501 | $170,510 | $0 | $485,011 | $485,011 |
| 2013 | $317,996 | $170,510 | $0 | $488,506 | $488,506 |
| 2012 | $321,490 | $87,524 | $0 | $409,014 | $409,014 |
| 2011 | $324,985 | $97,160 | $0 | $422,145 | $422,145 |
| 2010 | $298,765 | $97,160 | $0 | $395,925 | $395,925 |
| 2009 | $311,327 | $241,700 | $0 | $553,027 | $553,027 |
| 2008 | $317,999 | $169,430 | $0 | $487,429 | $487,429 |
| 2007 | $321,506 | $128,878 | $0 | $450,384 | $450,384 |
Deed and Sales History
| 1 | 12/10/2001 | WD | Warranty Deed | FIRCHAU CONST CO INC, | BROWN, DANIEL J | | | $68,000.00 | 14771 | 4006177 |
| 2 | 07/07/2000 | WD | Warranty Deed | BERG SR, DAVID J | FIRCHAU CONST CO INC, | | | $36,250.00 | 2599 | 20012364 |
| 3 | 06/22/2000 | SEG | DNU - Segregation | Unknown | BERG SR, DAVID J | | | $0.00 | 68704 | 0 |
Payout Agreement
| No payout information available.. |