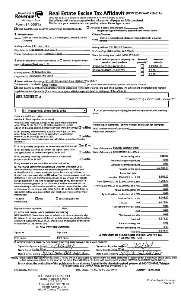
Property
Account |
| Property ID: | 802288 | Abbreviated Legal Description: | W176.19' MEAS ALG SLN OF FOLL DESC: N165' OF S856' OF GL3 MEAS ON WLN GL3 SLN FOLL SUR LN & NLN FOLL LN RUN SELY FR PT 856'N OF SWCR GL3 MEAS ALG WLN GL3 ALG FENCE LN TO TOP OF BANK NLY ALG TOP OF BANK TP E OF PT FENCE LN INTER WLN GL3 E TO GL LN (NLN DES |
| Geographic ID: | R32901-076-0080 | Agent Code: | |
| Type: | Real | | |
| Tax Area: | 710 - APPRAISER-S Whid Schl Dist, outside Langley, improved & 1 acre or less | Land Use Code | 11 |
| Open Space: | N | DFL | N |
| Historic Property: | N | Remodel Property: | N |
| Multi-Family Redevelopment: | N | | |
| Township: | 29 | Section: | 01 |
| Range: | R3 |
Location |
| Address: | 5133 VIEW RD LANGLEY, WA 98260 | Mapsco: | |
| Neighborhood: | Cycle 4 | Map ID: | 717 |
| Neighborhood CD: | 4 |
Owner |
| Name: | SHAFFER, GENEVA JOYCE | Owner ID: | 263734 |
| Mailing Address: | 5133 VIEW RD LANGLEY, WA 98260 | % Ownership: | 100.0000000000% |
| | | Exemptions: | |
Taxes and Assessment Details
Values
| (+) Improvement Homesite Value: | + | $0 | |
| (+) Improvement Non-Homesite Value: | + | $393,615 | |
| (+) Land Homesite Value: | + | $0 | |
| (+) Land Non-Homesite Value: | + | $410,000 | |
| (+) Curr Use (HS): | + | $0 | $0 |
| (+) Curr Use (NHS): | + | $0 | $0 |
| | | -------------------------- | |
| (=) Market Value: | = | $803,615 | |
| (–) Productivity Loss: | – | $0 | |
| | | -------------------------- | |
| (=) Subtotal: | = | $803,615 | |
| (+) Senior Appraised Value: | + | $0 | |
| (+) Non-Senior Appraised Value: | + | $803,615 | |
| | | -------------------------- | |
| (=) Total Appraised Value: | = | $803,615 | |
| (–) Senior Exemption Loss: | – | $0 | |
| (–) Exemption Loss: | – | $0 | |
| | | -------------------------- | |
| (=) Taxable Value: | = | $803,615 | |
Taxing Jurisdiction
| Owner: | SHAFFER, GENEVA JOYCE | | |
| % Ownership: | 100.0000000000% | | |
| Total Value: | $803,615 | | |
| Tax Area: | 710 - APPRAISER-S Whid Schl Dist, outside Langley, improved & 1 acre or less |
| CF | Conservation Futures | 0.0316035091 | $803,615 | $803,615 | $25.40 | | |
| FIRE3 | Fire & Rescue Dist #3 S Whidbey GEN | 1.2004855531 | $803,615 | $803,615 | $964.73 | | |
| HOBOND | Hospital BOND | 0.1910887512 | $803,615 | $803,615 | $153.56 | | |
| HOGEN | Hospital GEN | 0.3902502903 | $803,615 | $803,615 | $313.61 | | |
| CE | County Current Expense | 0.3708482477 | $803,615 | $803,615 | $298.02 | | |
| CR | County Roads | 0.4584763726 | $803,615 | $803,615 | $368.44 | | |
| ISLANDEMS | Hospital GEN (EMS) | 0.5000000000 | $803,615 | $803,615 | $401.81 | | |
| LIB | Library Sno-Isle GEN | 0.3153421757 | $803,615 | $803,615 | $253.41 | | |
| PORTWHID | Port of S Whidbey GEN | 0.1094540357 | $803,615 | $803,615 | $87.96 | | |
| SCH206BOND | School 206 BOND | 0.3161759235 | $803,615 | $803,615 | $254.08 | | |
| SCH206MO | School 206 Enrichment | 0.4547169547 | $803,615 | $803,615 | $365.42 | | |
| ST | State School | 1.3035497053 | $803,615 | $803,615 | $1,047.55 | | |
| ST2 | State School Part 2 | 0.8169543533 | $803,615 | $803,615 | $656.52 | | |
| SWHIDPRBD | P & R S Whidbey BOND | 0.0152817568 | $803,615 | $803,615 | $12.28 | | |
| SWHIDPRBD2 | P & R S Whidbey BOND2 | 0.0138911264 | $803,615 | $803,615 | $11.16 | | |
| SWHIDPRMT | P & R S Whidbey GEN | 0.2053334452 | $803,615 | $803,615 | $165.01 | | |
| | Total Tax Rate: | 6.6934522006 | | | | | |
| | | | | Taxes w/Current Exemptions: | $5,378.96 | | |
| | | | | Taxes w/o Exemptions: | $5,378.96 | | |
Improvement / Building
| Improvement #1: | RESIDENTIAL | State Code: | Y | 2016.0 sqft | Value: | $393,615 |
| Bathrooms: | 2 | Bedrooms: | 2 | | Ceiling: | TONGUE & GROOVE | Exterior Wall/Cover: | WOOD SIDING | | Floor Covering: | CERAMIC TILE/CPT 40-60 | Floor Structure: | SLAB ABOVE GRADE | | Foundation: | CONCRETE | Heating: | WALL HEAT ELECTRIC | | Interior Finish: | DRYWALL PAINT | Plumbing Fixture Cnt: | 12 | | Roof Slope: | 3" IN 12" | Roof Structure/Cover: | BEAM ALUMINUM HEAVY |
|
| | Type | Description | Class CD | Sub Class CD | Year Built | Area |
| | BAS | BASE/MAIN FLOOR | 3 | 0 | 1938 | 2016.0 |
| | OP4 | OPEN PORCH W/CEILING-ROOF | 3 | 0 | 1938 | 144.0 |
| | AGR | ATTACHED GARAGE | 3 | 0 | 1938 | 552.0 |
| | OWP | OPEN WOOD PORCH W/STEPS | 3 | 0 | 1938 | 1637.0 |
Sketch
Property Image
Land
| 1 | 16 | AC (00.51-01.00) | 0.0000 | 0.00 | 0.00 | 0.00 | 1.00 | $410,000 | $0 |
Roll Value History
| 2026 | N/A | N/A | N/A | N/A | N/A |
| 2025 | $393,615 | $410,000 | $0 | $803,615 | $803,615 |
| 2024 | $398,401 | $390,000 | $0 | $788,401 | $788,401 |
| 2023 | $403,186 | $360,000 | $0 | $763,186 | $763,186 |
| 2022 | $369,436 | $350,000 | $0 | $719,436 | $719,436 |
| 2021 | $325,017 | $280,000 | $0 | $605,017 | $605,017 |
| 2020 | $305,881 | $260,000 | $0 | $565,881 | $565,881 |
| 2019 | $233,157 | $290,000 | $0 | $523,157 | $523,157 |
| 2018 | $233,840 | $250,000 | $0 | $483,840 | $483,840 |
| 2017 | $235,207 | $250,000 | $0 | $485,207 | $485,207 |
| 2016 | $237,942 | $250,000 | $0 | $487,942 | $487,942 |
| 2015 | $240,677 | $200,000 | $0 | $440,677 | $440,677 |
| 2014 | $243,412 | $200,000 | $0 | $443,412 | $443,412 |
| 2013 | $199,357 | $200,000 | $0 | $399,357 | $399,357 |
| 2012 | $201,874 | $180,000 | $0 | $381,874 | $381,874 |
| 2011 | $204,389 | $200,000 | $0 | $404,389 | $404,389 |
| 2010 | $212,564 | $200,000 | $0 | $412,564 | $412,564 |
| 2009 | $221,753 | $290,000 | $0 | $511,753 | $511,753 |
| 2008 | $223,265 | $290,000 | $0 | $513,265 | $513,265 |
| 2007 | $226,093 | $290,000 | $0 | $516,093 | $516,093 |
Deed and Sales History
| 1 | 09/17/2013 | WD | Warranty Deed | WHITE, MICHAEL W | SHAFFER, GENEVA JOYCE | | | $460,000.00 | 12821 | 4348257 |
| 2 | 07/25/2001 | WD | Warranty Deed | COURTMANCH, RAY | WHITE, MICHAEL W | | | $340,000.00 | 12870 | 20038636 |
| 3 | 07/17/2000 | BLA | DNU - Boundary Line Adjustment | Unknown | COURTMANCH, RAY | | | $0.00 | 68718 | 20009526 |
Payout Agreement
| No payout information available.. |