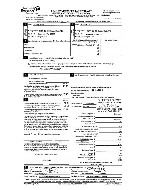
Property
Account |
| Property ID: | 802292 | Abbreviated Legal Description: | LOT 1 SP 479-98.22911.098-0890 V3 SP P296-7 AF#20002443 |
| Geographic ID: | R22911-086-0780 | Agent Code: | |
| Type: | Real | | |
| Tax Area: | 760 - APPRAISER-S Whid Schl Dist, Special District, improved & less than 1 acre | Land Use Code | 59 |
| Open Space: | N | DFL | N |
| Historic Property: | N | Remodel Property: | N |
| Multi-Family Redevelopment: | N | | |
| Township: | 29 | Section: | 11 |
| Range: | R2 |
Location |
| Address: | 1657 S MAIN ST FREELAND, WA 98249 | Mapsco: | |
| Neighborhood: | 34cFR-main st 1 | Map ID: | 313 |
| Neighborhood CD: | 34cFRmain1 |
Owner |
| Name: | HARDESTY II, DELBERT "DAVID" | Owner ID: | 272397 |
| Mailing Address: | JENNIFER L HARDESTY PO BOX 513 FREELAND, WA 98249 | % Ownership: | 100.0000000000% |
| | | Exemptions: | |
Taxes and Assessment Details
Values
| (+) Improvement Homesite Value: | + | $0 | |
| (+) Improvement Non-Homesite Value: | + | $206,198 | |
| (+) Land Homesite Value: | + | $0 | |
| (+) Land Non-Homesite Value: | + | $300,564 | |
| (+) Curr Use (HS): | + | $0 | $0 |
| (+) Curr Use (NHS): | + | $0 | $0 |
| | | -------------------------- | |
| (=) Market Value: | = | $506,762 | |
| (–) Productivity Loss: | – | $0 | |
| | | -------------------------- | |
| (=) Subtotal: | = | $506,762 | |
| (+) Senior Appraised Value: | + | $0 | |
| (+) Non-Senior Appraised Value: | + | $506,762 | |
| | | -------------------------- | |
| (=) Total Appraised Value: | = | $506,762 | |
| (–) Senior Exemption Loss: | – | $0 | |
| (–) Exemption Loss: | – | $0 | |
| | | -------------------------- | |
| (=) Taxable Value: | = | $506,762 | |
Taxing Jurisdiction
| Owner: | HARDESTY II, DELBERT "DAVID" | | |
| % Ownership: | 100.0000000000% | | |
| Total Value: | $506,762 | | |
| Tax Area: | 760 - APPRAISER-S Whid Schl Dist, Special District, improved & less than 1 acre |
| CF | Conservation Futures | 0.0316035091 | $506,762 | $506,762 | $16.02 | | |
| FIRE3 | Fire & Rescue Dist #3 S Whidbey GEN | 1.2004855531 | $506,762 | $506,762 | $608.36 | | |
| HOBOND | Hospital BOND | 0.1910887512 | $506,762 | $506,762 | $96.84 | | |
| HOGEN | Hospital GEN | 0.3902502903 | $506,762 | $506,762 | $197.76 | | |
| CE | County Current Expense | 0.3708482477 | $506,762 | $506,762 | $187.93 | | |
| CR | County Roads | 0.4584763726 | $506,762 | $506,762 | $232.34 | | |
| ISLANDEMS | Hospital GEN (EMS) | 0.5000000000 | $506,762 | $506,762 | $253.38 | | |
| LIB | Library Sno-Isle GEN | 0.3153421757 | $506,762 | $506,762 | $159.80 | | |
| PORTWHID | Port of S Whidbey GEN | 0.1094540357 | $506,762 | $506,762 | $55.47 | | |
| SCH206BOND | School 206 BOND | 0.3161759235 | $506,762 | $506,762 | $160.23 | | |
| SCH206MO | School 206 Enrichment | 0.4547169547 | $506,762 | $506,762 | $230.43 | | |
| ST | State School | 1.3035497053 | $506,762 | $506,762 | $660.59 | | |
| ST2 | State School Part 2 | 0.8169543533 | $506,762 | $506,762 | $414.00 | | |
| SWHIDPRBD | P & R S Whidbey BOND | 0.0152817568 | $506,762 | $506,762 | $7.74 | | |
| SWHIDPRBD2 | P & R S Whidbey BOND2 | 0.0138911264 | $506,762 | $506,762 | $7.04 | | |
| SWHIDPRMT | P & R S Whidbey GEN | 0.2053334452 | $506,762 | $506,762 | $104.06 | | |
| | Total Tax Rate: | 6.6934522006 | | | | | |
| | | | | Taxes w/Current Exemptions: | $3,391.99 | | |
| | | | | Taxes w/o Exemptions: | $3,391.99 | | |
Improvement / Building
| Improvement #1: | COMMERCIAL | State Code: | F1 | 6480.0 sqft | Value: | $206,198 |
| Bathrooms: | 0 | Ceiling: | DRYWALL PAINTED | | Exterior Wall/Cover: | 8" CONC BLK/CON FRAM | Floor Covering: | COMPOSITION TILE | | Floor Structure: | CONCRETE ON GROUND | Foundation: | SLAB | | Heating: | FHA ELECTRIC | Interior Finish: | RETAIL | | Plumbing Fixture Cnt: | 1 | Roof Structure/Cover: | BEAM BUILT-UP ROCK |
|
| | Type | Description | Class CD | Sub Class CD | Year Built | Area |
| | BAS | BASE/MAIN FLOOR | 3 | 0 | 1959 | 6480.0 |
| | OP1 | OPEN PORCH SLAB | 3 | 0 | 1959 | 360.0 |
| | oPV1 | PV/ASPH 2" | 3 | 0 | 1959 | 10800.0 |
Sketch
Property Image
Land
| 1 | 68 | COMMERCIAL RETAIL | 0.3671 | 30056.40 | 0.00 | 0.00 | 1.00 | $300,564 | $0 |
Roll Value History
| 2026 | N/A | N/A | N/A | N/A | N/A |
| 2025 | $206,198 | $300,564 | $0 | $506,762 | $506,762 |
| 2024 | $226,528 | $300,564 | $0 | $527,092 | $527,092 |
| 2023 | $246,856 | $300,564 | $0 | $547,420 | $547,420 |
| 2022 | $220,572 | $300,564 | $0 | $521,136 | $521,136 |
| 2021 | $220,248 | $300,564 | $0 | $520,812 | $520,812 |
| 2020 | $220,211 | $300,564 | $0 | $520,775 | $520,775 |
| 2019 | $95,097 | $300,564 | $0 | $395,661 | $395,661 |
| 2018 | $95,097 | $270,508 | $0 | $365,605 | $365,605 |
| 2017 | $95,097 | $151,591 | $0 | $246,688 | $246,688 |
| 2016 | $95,097 | $151,591 | $0 | $246,688 | $246,688 |
| 2015 | $95,097 | $151,591 | $0 | $246,688 | $246,688 |
| 2014 | $93,087 | $151,591 | $0 | $244,678 | $244,678 |
| 2013 | $93,088 | $136,514 | $0 | $229,602 | $229,602 |
| 2012 | $233,055 | $136,514 | $0 | $369,569 | $369,569 |
| 2011 | $233,055 | $136,514 | $0 | $369,569 | $369,569 |
| 2010 | $184,334 | $200,634 | $0 | $384,968 | $384,968 |
| 2009 | $191,715 | $200,634 | $0 | $392,349 | $392,349 |
| 2008 | $195,405 | $200,634 | $0 | $396,039 | $396,039 |
| 2007 | $202,786 | $200,634 | $0 | $403,420 | $403,420 |
Deed and Sales History
| 1 | 09/15/2015 | WD | Warranty Deed | PRICE, JAMES C | ISLAND AUTO SUPPLY, LLC | | | $425,000.00 | 21674 | 4387381 |
Payout Agreement
| No payout information available.. |