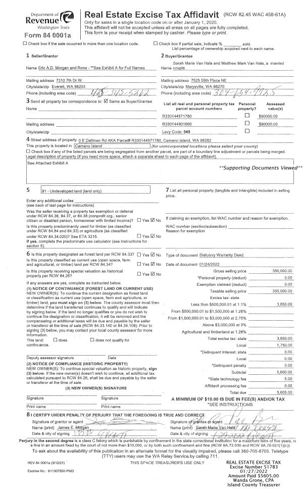
Property
Account |
| Property ID: | 802295 | Abbreviated Legal Description: | LOT 2 SP 436-98.13311.346-3300 V3 SP P298 AF#20003005 |
| Geographic ID: | R13311-346-2960 | Agent Code: | |
| Type: | Real | | |
| Tax Area: | 112 - APPRAISER-OH Schl Dist, outside OH, improved, greater than 1 acre | Land Use Code | 11 |
| Open Space: | N | DFL | N |
| Historic Property: | N | Remodel Property: | N |
| Multi-Family Redevelopment: | N | | |
| Township: | 33 | Section: | 11 |
| Range: | R1 |
Location |
| Address: | 4269 TERRACE DR OAK HARBOR, WA 98277 | Mapsco: | |
| Neighborhood: | Cycle 6 | Map ID: | 203 |
| Neighborhood CD: | 6 |
Owner |
| Name: | CUTLER, ANNA MARIE | Owner ID: | 301038 |
| Mailing Address: | 4269 TERRACE DR OAK HARBOR, WA 98277 | % Ownership: | 100.0000000000% |
| | | Exemptions: | |
Taxes and Assessment Details
Values
| (+) Improvement Homesite Value: | + | $0 | |
| (+) Improvement Non-Homesite Value: | + | $422,765 | |
| (+) Land Homesite Value: | + | $0 | |
| (+) Land Non-Homesite Value: | + | $340,000 | |
| (+) Curr Use (HS): | + | $0 | $0 |
| (+) Curr Use (NHS): | + | $0 | $0 |
| | | -------------------------- | |
| (=) Market Value: | = | $762,765 | |
| (–) Productivity Loss: | – | $0 | |
| | | -------------------------- | |
| (=) Subtotal: | = | $762,765 | |
| (+) Senior Appraised Value: | + | $0 | |
| (+) Non-Senior Appraised Value: | + | $762,765 | |
| | | -------------------------- | |
| (=) Total Appraised Value: | = | $762,765 | |
| (–) Senior Exemption Loss: | – | $0 | |
| (–) Exemption Loss: | – | $0 | |
| | | -------------------------- | |
| (=) Taxable Value: | = | $762,765 | |
Taxing Jurisdiction
| Owner: | CUTLER, ANNA MARIE | | |
| % Ownership: | 100.0000000000% | | |
| Total Value: | $762,765 | | |
| Tax Area: | 112 - APPRAISER-OH Schl Dist, outside OH, improved, greater than 1 acre |
| CF | Conservation Futures | 0.0316035091 | $762,765 | $762,765 | $24.11 | | |
| CEM1 | Cemetery #1 | 0.0040320932 | $762,765 | $762,765 | $3.08 | | |
| FIRE2 | Fire & Rescue Dist #2 N Whidbey GEN | 0.5475949600 | $762,765 | $762,765 | $417.69 | | |
| HOBOND | Hospital BOND | 0.1910887512 | $762,765 | $762,765 | $145.76 | | |
| HOGEN | Hospital GEN | 0.3902502903 | $762,765 | $762,765 | $297.67 | | |
| CE | County Current Expense | 0.3708482477 | $762,765 | $762,765 | $282.87 | | |
| CR | County Roads | 0.4584763726 | $762,765 | $762,765 | $349.71 | | |
| ISLANDEMS | Hospital GEN (EMS) | 0.5000000000 | $762,765 | $762,765 | $381.38 | | |
| LIB | Library Sno-Isle GEN | 0.3153421757 | $762,765 | $762,765 | $240.53 | | |
| NWHIDPRMT | P & R N Whidbey GEN | 0.2004466701 | $762,765 | $762,765 | $152.89 | | |
| SCH201MO | School 201 Enrichment | 1.8559231640 | $762,765 | $762,765 | $1,415.63 | | |
| ST | State School | 1.3035497053 | $762,765 | $762,765 | $994.30 | | |
| ST2 | State School Part 2 | 0.8169543533 | $762,765 | $762,765 | $623.14 | | |
| | Total Tax Rate: | 6.9861102925 | | | | | |
| | | | | Taxes w/Current Exemptions: | $5,328.76 | | |
| | | | | Taxes w/o Exemptions: | $5,328.76 | | |
Improvement / Building
| Improvement #1: | RESIDENTIAL | State Code: | Y | 2946.6 sqft | Value: | $422,765 |
| Bathrooms: | 2.5 | Bedrooms: | 3 | | Ceiling: | DRYWALL PAINTED | Cooling: | HEAT PUMP/CONV/V | | Exterior Wall/Cover: | CEMENT FIBER | Floor Covering: | CARPET/VINYL 60-40 | | Floor Structure: | WOOD W/SUBFLOOR | Foundation: | CONCRETE | | Interior Finish: | DRYWALL PAINT | Plumbing Fixture Cnt: | 13 | | Roof Slope: | 8" IN 12" | Roof Structure/Cover: | CJ ASPHALT |
|
| | Type | Description | Class CD | Sub Class CD | Year Built | Area |
| | BAS | BASE/MAIN FLOOR | 3 | 0 | 2004 | 1815.2 |
| | DWN | DOWNSTAIRS LIVING AREA | 3 | 0 | 2004 | 1131.4 |
| | BIG | BUILT IN GARAGE | 3 | 0 | 2004 | 683.8 |
| | OWP | OPEN WOOD PORCH W/STEPS | 3 | 0 | 2004 | 435.7 |
| | OWR | OPEN WOOD PORCH W/STEPS/ROOF | 3 | 0 | 2004 | 80.0 |
Sketch
Property Image
Land
| 1 | 32 | AC (03.01-09.99) | 5.0400 | 0.00 | 0.00 | 0.00 | 1.00 | $340,000 | $0 |
Roll Value History
| 2026 | N/A | N/A | N/A | N/A | N/A |
| 2025 | $422,765 | $340,000 | $0 | $762,765 | $762,765 |
| 2024 | $427,724 | $320,000 | $0 | $747,724 | $747,724 |
| 2023 | $432,683 | $320,000 | $0 | $752,683 | $752,683 |
| 2022 | $396,278 | $300,000 | $0 | $696,278 | $696,278 |
| 2021 | $324,036 | $200,000 | $0 | $524,036 | $524,036 |
| 2020 | $315,659 | $160,000 | $0 | $475,659 | $475,659 |
| 2019 | $234,148 | $220,000 | $0 | $454,148 | $454,148 |
| 2018 | $234,826 | $200,000 | $0 | $434,826 | $434,826 |
| 2017 | $236,182 | $140,000 | $0 | $376,182 | $376,182 |
| 2016 | $233,647 | $140,000 | $0 | $373,647 | $373,647 |
| 2015 | $236,333 | $130,000 | $0 | $366,333 | $366,333 |
| 2014 | $239,018 | $100,800 | $0 | $339,818 | $339,818 |
| 2013 | $241,703 | $102,060 | $0 | $343,763 | $343,763 |
| 2012 | $244,389 | $102,060 | $0 | $346,449 | $346,449 |
| 2011 | $247,076 | $113,400 | $0 | $360,476 | $360,476 |
| 2010 | $230,757 | $113,400 | $0 | $344,157 | $344,157 |
| 2009 | $240,368 | $113,400 | $0 | $353,768 | $353,768 |
| 2008 | $252,719 | $148,680 | $0 | $401,399 | $401,399 |
| 2007 | $270,829 | $133,393 | $0 | $404,222 | $404,222 |
Deed and Sales History
| 1 | 08/27/2021 | WD | Warranty Deed | KELLOGG, PAUL J | CUTLER, ANNA MARIE | | | $700,000.00 | 49931 | 4528548 |
| 2 | 08/22/2002 | WD | Warranty Deed | NORETEP, | KELLOGG, PAUL J | | | $59,500.00 | 23768 | 4031893 |
| 3 | 01/01/1900 | OTHER | Other - Misc. Documents | Unknown | NORETEP, | | | $0.00 | 0 | 0 |
Payout Agreement
| No payout information available.. |