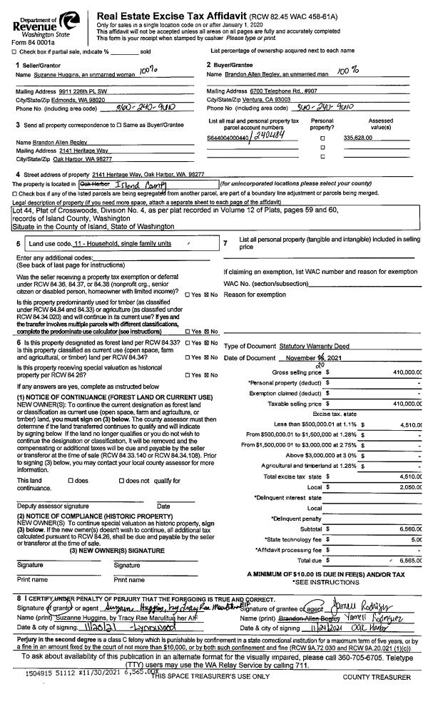
Property
Account |
| Property ID: | 802301 | Abbreviated Legal Description: | E/2 SE NW SW TGW & SUB EZ E60' |
| Geographic ID: | R23034-166-1150 | Agent Code: | |
| Type: | Real | | |
| Tax Area: | 312 - APPRAISER-Cpvl Schl Dist, outside Cpvl, improved, greater than 1 acre | Land Use Code | 11 |
| Open Space: | N | DFL | N |
| Historic Property: | N | Remodel Property: | N |
| Multi-Family Redevelopment: | N | | |
| Township: | 30 | Section: | 34 |
| Range: | R2 |
Location |
| Address: | 4671 EVENSTAR LN FREELAND, WA 98249 | Mapsco: | |
| Neighborhood: | Cycle 3 | Map ID: | 439 |
| Neighborhood CD: | 3 |
Owner |
| Name: | STERLING, LISAEBETH ANN | Owner ID: | 299277 |
| Mailing Address: | JOHN ROBERT KESSLER 4671 EVENSTAR LN FREELAND, WA 98249 | % Ownership: | 100.0000000000% |
| | | Exemptions: | |
Taxes and Assessment Details
Values
| (+) Improvement Homesite Value: | + | $0 | |
| (+) Improvement Non-Homesite Value: | + | $499,862 | |
| (+) Land Homesite Value: | + | $0 | |
| (+) Land Non-Homesite Value: | + | $370,000 | |
| (+) Curr Use (HS): | + | $0 | $0 |
| (+) Curr Use (NHS): | + | $0 | $0 |
| | | -------------------------- | |
| (=) Market Value: | = | $869,862 | |
| (–) Productivity Loss: | – | $0 | |
| | | -------------------------- | |
| (=) Subtotal: | = | $869,862 | |
| (+) Senior Appraised Value: | + | $0 | |
| (+) Non-Senior Appraised Value: | + | $869,862 | |
| | | -------------------------- | |
| (=) Total Appraised Value: | = | $869,862 | |
| (–) Senior Exemption Loss: | – | $0 | |
| (–) Exemption Loss: | – | $0 | |
| | | -------------------------- | |
| (=) Taxable Value: | = | $869,862 | |
Taxing Jurisdiction
| Owner: | STERLING, LISAEBETH ANN | | |
| % Ownership: | 100.0000000000% | | |
| Total Value: | $869,862 | | |
| Tax Area: | 312 - APPRAISER-Cpvl Schl Dist, outside Cpvl, improved, greater than 1 acre |
| CF | Conservation Futures | 0.0316035091 | $869,862 | $869,862 | $27.49 | | |
| CEM2 | Cemetery #2 | 0.0095056933 | $869,862 | $869,862 | $8.27 | | |
| FIRE5 | Fire & Rescue Dist #5 C Whidbey GEN | 1.2008080668 | $869,862 | $869,862 | $1,044.54 | | |
| FIRE5BOND | Fire & Rescue Dist #5 C Whidbey BOND | 0.1400090713 | $869,862 | $869,862 | $121.79 | | |
| HOBOND | Hospital BOND | 0.1910887512 | $869,862 | $869,862 | $166.22 | | |
| HOGEN | Hospital GEN | 0.3902502903 | $869,862 | $869,862 | $339.46 | | |
| CE | County Current Expense | 0.3708482477 | $869,862 | $869,862 | $322.59 | | |
| CR | County Roads | 0.4584763726 | $869,862 | $869,862 | $398.81 | | |
| ISLANDEMS | Hospital GEN (EMS) | 0.5000000000 | $869,862 | $869,862 | $434.93 | | |
| LIB | Library Sno-Isle GEN | 0.3153421757 | $869,862 | $869,862 | $274.30 | | |
| LIBCAP | Library Sno-Isle BOND (Cap Fac Imp Area) | 0.0543427938 | $869,862 | $869,862 | $47.27 | | |
| POCOUP | Port of Coupeville GEN | 0.1093371703 | $869,862 | $869,862 | $95.11 | | |
| POCOUPIDD | Port of Coupeville IDD | 0.3409740022 | $869,862 | $869,862 | $296.60 | | |
| COUPSDTECH | School 204 CP (TECH) | 0.7545480007 | $869,862 | $869,862 | $656.35 | | |
| SCH204MO | School 204 Enrichment | 0.6716186034 | $869,862 | $869,862 | $584.22 | | |
| ST | State School | 1.3035497053 | $869,862 | $869,862 | $1,133.91 | | |
| ST2 | State School Part 2 | 0.8169543533 | $869,862 | $869,862 | $710.64 | | |
| | Total Tax Rate: | 7.6592568070 | | | | | |
| | | | | Taxes w/Current Exemptions: | $6,662.50 | | |
| | | | | Taxes w/o Exemptions: | $6,662.50 | | |
Improvement / Building
| Improvement #1: | RESIDENTIAL | State Code: | Y | 2730.6 sqft | Value: | $499,862 |
| Bathrooms: | 3 | Bedrooms: | 3 | | Ceiling: | TONGUE & GROOVE | Cooling: | HEAT PUMP/CONV/V | | Exterior Wall/Cover: | WOOD SIDING | Floor Covering: | HARDWOOD/CARP 60-40 | | Floor Structure: | WOOD W/SUBFLOOR | Foundation: | CONCRETE | | Interior Finish: | DRYWALL PAINT | Plumbing Fixture Cnt: | 13 | | Roof Slope: | 6" IN 12" | Roof Structure/Cover: | BEAM ASPHALT |
|
| | Type | Description | Class CD | Sub Class CD | Year Built | Area |
| | BAS | BASE/MAIN FLOOR | 4 | 0 | 1980 | 1864.6 |
| | UPS | UPPER STORY | 4 | 0 | 1980 | 698.0 |
| | OWP | OPEN WOOD PORCH W/STEPS | 4 | 0 | 1980 | 1692.8 |
| | ENP | ENCLOSED PORCH | 4 | 0 | 1980 | 70.0 |
| | LOF | LOFT | 4 | 0 | 1980 | 168.0 |
| | ENP | ENCLOSED PORCH | 4 | 0 | 1980 | 234.0 |
Sketch
Property Image
Land
| 1 | 32 | AC (03.01-09.99) | 5.0000 | 0.00 | 0.00 | 0.00 | 1.00 | $370,000 | $0 |
Roll Value History
| 2026 | N/A | N/A | N/A | N/A | N/A |
| 2025 | $499,862 | $370,000 | $0 | $869,862 | $869,862 |
| 2024 | $506,334 | $350,000 | $0 | $856,334 | $856,334 |
| 2023 | $485,883 | $310,000 | $0 | $795,883 | $795,883 |
| 2022 | $445,534 | $290,000 | $0 | $735,534 | $735,534 |
| 2021 | $392,248 | $220,000 | $0 | $612,248 | $612,248 |
| 2020 | $382,665 | $180,000 | $0 | $562,665 | $562,665 |
| 2019 | $261,606 | $230,000 | $0 | $491,606 | $491,606 |
| 2018 | $262,424 | $200,000 | $0 | $462,424 | $462,424 |
| 2017 | $264,062 | $165,000 | $0 | $429,062 | $429,062 |
| 2016 | $267,338 | $165,000 | $0 | $432,338 | $432,338 |
| 2015 | $270,614 | $135,000 | $0 | $405,614 | $405,614 |
| 2014 | $240,804 | $135,000 | $0 | $375,804 | $375,804 |
| 2013 | $247,637 | $121,500 | $0 | $369,137 | $369,137 |
| 2012 | $250,872 | $121,500 | $0 | $372,372 | $372,372 |
| 2011 | $254,108 | $135,000 | $0 | $389,108 | $389,108 |
| 2010 | $260,345 | $135,000 | $0 | $395,345 | $395,345 |
| 2009 | $271,552 | $195,000 | $0 | $466,552 | $466,552 |
| 2008 | $285,411 | $200,000 | $0 | $485,411 | $485,411 |
| 2007 | $314,083 | $160,000 | $0 | $474,083 | $474,083 |
Deed and Sales History
| 1 | 04/29/2021 | WD | Warranty Deed | WHEELER TTEE, VICTORIA S | STERLING, LISAEBETH ANN | | | $1,011,000.00 | 48166 | 4518734 |
| 2 | 02/13/2019 | WD | Warranty Deed | WHEELER, VICTORIA S | WHEELER TTEE, VICTORIA S | | | $0.00 | 37657 | 4459598 |
| 3 | 08/17/2016 | WD | Warranty Deed | VOJKOVICH, GEORGE H | WHEELER, VICTORIA S | | | $465,000.00 | 25784 | 4405723 |
| 4 | 10/09/2014 | WD | Warranty Deed | ROGERS, JOHN S | VOJKOVICH, GEORGE H | | | $419,000.00 | 17199 | 4367060 |
| 5 | 05/02/2003 | WD | Warranty Deed | JOHNSTON, VINCENT | ROGERS, JOHN S | | | $325,000.00 | 31907 | 4057881 |
| 6 | 07/31/2000 | WD | Warranty Deed | FOSMO, GARY J | JOHNSTON, VINCENT | | | $289,354.00 | 3273 | 20015340 |
| 7 | 07/27/2000 | BLA | DNU - Boundary Line Adjustment | Unknown | FOSMO, GARY J | | | $0.00 | 68728 | 20002197 |
Payout Agreement
| No payout information available.. |