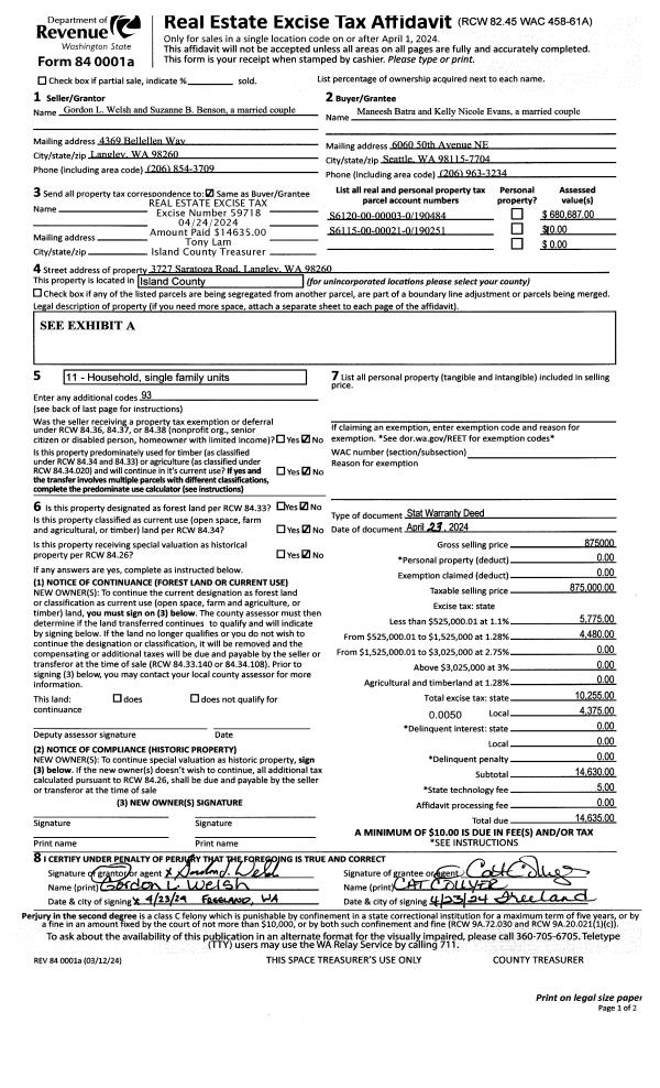
Property
Account |
| Property ID: | 802314 | Abbreviated Legal Description: | TARYN PLACE LOT 9 |
| Geographic ID: | S8297-00-00009-0 | Agent Code: | |
| Type: | Real | | |
| Tax Area: | 100 - APPRAISER-OH Schl Dist, in OH | Land Use Code | 11 |
| Open Space: | N | DFL | N |
| Historic Property: | N | Remodel Property: | N |
| Multi-Family Redevelopment: | N | | |
| Township: | | Section: | |
| Range: | |
Location |
| Address: | 1180 NW ELWHA CT OAK HARBOR, WA 98277 | Mapsco: | |
| Neighborhood: | 17cOH-crosby ave | Map ID: | 255 |
| Neighborhood CD: | 17cOHcrosb |
Owner |
| Name: | HALL, ARNOLD SEAN | Owner ID: | 315255 |
| Mailing Address: | 1180 NORTHWEST ELWHA ST OAK HARBOR, WA 98277 | % Ownership: | 100.0000000000% |
| | | Exemptions: | |
Taxes and Assessment Details
Values
| (+) Improvement Homesite Value: | + | $0 | |
| (+) Improvement Non-Homesite Value: | + | $338,353 | |
| (+) Land Homesite Value: | + | $0 | |
| (+) Land Non-Homesite Value: | + | $190,000 | |
| (+) Curr Use (HS): | + | $0 | $0 |
| (+) Curr Use (NHS): | + | $0 | $0 |
| | | -------------------------- | |
| (=) Market Value: | = | $528,353 | |
| (–) Productivity Loss: | – | $0 | |
| | | -------------------------- | |
| (=) Subtotal: | = | $528,353 | |
| (+) Senior Appraised Value: | + | $0 | |
| (+) Non-Senior Appraised Value: | + | $528,353 | |
| | | -------------------------- | |
| (=) Total Appraised Value: | = | $528,353 | |
| (–) Senior Exemption Loss: | – | $0 | |
| (–) Exemption Loss: | – | $0 | |
| | | -------------------------- | |
| (=) Taxable Value: | = | $528,353 | |
Taxing Jurisdiction
| Owner: | HALL, ARNOLD SEAN | | |
| % Ownership: | 100.0000000000% | | |
| Total Value: | $528,353 | | |
| Tax Area: | 100 - APPRAISER-OH Schl Dist, in OH |
| CF | Conservation Futures | 0.0316035091 | $528,353 | $528,353 | $16.70 | | |
| CEM1 | Cemetery #1 | 0.0040320932 | $528,353 | $528,353 | $2.13 | | |
| COH | City of Oak Harbor | 2.3001546061 | $528,353 | $528,353 | $1,215.29 | | |
| OAKBOND | City of Oak Harbor BOND | 0.1926904192 | $528,353 | $528,353 | $101.81 | | |
| HOBOND | Hospital BOND | 0.1910887512 | $528,353 | $528,353 | $100.96 | | |
| HOGEN | Hospital GEN | 0.3902502903 | $528,353 | $528,353 | $206.19 | | |
| CE | County Current Expense | 0.3708482477 | $528,353 | $528,353 | $195.94 | | |
| ISLANDEMS | Hospital GEN (EMS) | 0.5000000000 | $528,353 | $528,353 | $264.18 | | |
| LIB | Library Sno-Isle GEN | 0.3153421757 | $528,353 | $528,353 | $166.61 | | |
| NWHIDPRMT | P & R N Whidbey GEN | 0.2004466701 | $528,353 | $528,353 | $105.91 | | |
| SCH201MO | School 201 Enrichment | 1.8559231640 | $528,353 | $528,353 | $980.58 | | |
| ST | State School | 1.3035497053 | $528,353 | $528,353 | $688.73 | | |
| ST2 | State School Part 2 | 0.8169543533 | $528,353 | $528,353 | $431.64 | | |
| | Total Tax Rate: | 8.4728839852 | | | | | |
| | | | | Taxes w/Current Exemptions: | $4,476.67 | | |
| | | | | Taxes w/o Exemptions: | $4,476.67 | | |
Improvement / Building
| Improvement #1: | RESIDENTIAL | State Code: | Y | 2190.0 sqft | Value: | $338,353 |
| Bathrooms: | 2 | Bedrooms: | 4 | | Ceiling: | DRY WALL SPRAYED | Exterior Wall/Cover: | WOOD SIDING | | Floor Covering: | VINYL/HARDWOOD 60-40 | Floor Structure: | WOOD W/SUBFLOOR | | Foundation: | CONCRETE | Heating: | FHA OIL | | Interior Finish: | DRYWALL PAINT | Plumbing Fixture Cnt: | 9 | | Roof Slope: | 4" IN 12" | Roof Structure/Cover: | CJ ASPHALT |
|
| | Type | Description | Class CD | Sub Class CD | Year Built | Area |
| | BAS | BASE/MAIN FLOOR | 3 | 0 | 1958 | 2190.0 |
| | OP1 | OPEN PORCH SLAB | 3 | 0 | 1958 | 140.0 |
| | OP2 | OPEN PORCH W/STEPS | 3 | 0 | 1958 | 30.0 |
| | AGR | ATTACHED GARAGE | 3 | 0 | 1958 | 528.0 |
Sketch
Property Image
Land
| 1 | 14 | SQ (08001-12000) | 0.0000 | 0.00 | 0.00 | 0.00 | 1.00 | $190,000 | $0 |
Roll Value History
| 2026 | N/A | N/A | N/A | N/A | N/A |
| 2025 | $338,353 | $190,000 | $0 | $528,353 | $528,353 |
| 2024 | $342,517 | $190,000 | $0 | $532,517 | $532,517 |
| 2023 | $346,065 | $130,000 | $0 | $476,065 | $476,065 |
| 2022 | $317,160 | $120,000 | $0 | $437,160 | $437,160 |
| 2021 | $269,177 | $120,000 | $0 | $389,177 | $389,177 |
| 2020 | $127,448 | $120,000 | $0 | $247,448 | $247,448 |
| 2019 | $127,448 | $120,000 | $0 | $247,448 | $247,448 |
| 2018 | $127,448 | $120,000 | $0 | $247,448 | $247,448 |
| 2017 | $127,448 | $67,285 | $0 | $194,733 | $194,733 |
| 2016 | $127,448 | $67,285 | $0 | $194,733 | $194,733 |
| 2015 | $127,448 | $67,285 | $0 | $194,733 | $194,733 |
| 2014 | $127,448 | $67,285 | $0 | $194,733 | $194,733 |
| 2013 | $127,448 | $67,285 | $0 | $194,733 | $194,733 |
| 2012 | $127,448 | $67,285 | $0 | $194,733 | $194,733 |
| 2011 | $127,448 | $67,285 | $0 | $194,733 | $194,733 |
| 2010 | $145,101 | $67,285 | $0 | $212,386 | $212,386 |
| 2009 | $149,458 | $80,156 | $0 | $229,614 | $229,614 |
| 2008 | $151,881 | $84,375 | $0 | $236,256 | $236,256 |
| 2007 | $154,312 | $84,375 | $0 | $238,687 | $238,687 |
Deed and Sales History
| 1 | 01/29/2025 | WD | Warranty Deed | SWANSON, JOSHUA M | HALL, ARNOLD SEAN | | | $550,000.00 | 62419 | 4581720 |
| 2 | 01/12/2022 | WD | Warranty Deed | GRAVLEY, JESSE | SWANSON, JOSHUA M | | | $480,000.00 | 51720 | 4538285 |
| 3 | 10/26/2020 | WD | Warranty Deed | MITCHELL, DONNA J | GRAVLEY, JESSE | | | $415,000.00 | 45534 | 4501327 |
| 4 | 05/01/2008 | QCD | Quit Claim Deed | MITCHELL, DONNA J | MITCHELL, DONNA J | | | $0.00 | 81799 | 4232589 |
| 5 | 12/06/2005 | TRUSTEED | Trustee's Deed | VETERANS AFFAIRS, | MITCHELL, DONNA J | | | $187,300.00 | 56166 | 4156815 |
| 6 | 03/30/2005 | TRUSTEED | Trustee's Deed | WELLS FARGO BANK, | VETERANS AFFAIRS, | | | $0.00 | 51367 | 4130146 |
| 7 | 03/30/2005 | TRUSTEED | Trustee's Deed | RENTSCHELER, JASON F | WELLS FARGO BANK, | | | $155,991.00 | 50366 | 4130145 |
| 8 | 01/26/2004 | WD | Warranty Deed | LOGAN, LOUIS C | RENTSCHELER, JASON F | | | $173,950.00 | 40372 | 4089922 |
| 9 | 01/09/2004 | ESTSEPPROP | Establish Separate Property | RENTSCHELER, JASON F | RENTSCHELER, JASON F | | | $0.00 | 40392 | 4089923 |
| 10 | 11/30/2001 | QCD | Quit Claim Deed | JONES, BRYAN A | LOGAN, LOUIS C | | | $0.00 | 14548 | 4004322 |
| 11 | 05/03/2000 | WD | Warranty Deed | CROSS, MARK / LYNN | JONES, BRYAN A | | | $150,000.00 | 1663 | 20007991 |
| 12 | 01/01/1900 | OTHER | Other - Misc. Documents | Unknown | CROSS, MARK / LYNN | | | $0.00 | 0 | 0 |
Payout Agreement
| No payout information available.. |