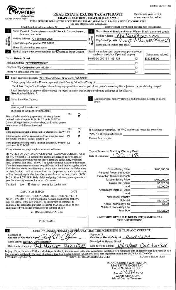
Property
Account |
| Property ID: | 802326 | Abbreviated Legal Description: | HIGHLANDS WEST #7 LOT 3 |
| Geographic ID: | S7132-07-00003-0 | Agent Code: | |
| Type: | Real | | |
| Tax Area: | 100 - APPRAISER-OH Schl Dist, in OH | Land Use Code | 11 |
| Open Space: | N | DFL | N |
| Historic Property: | N | Remodel Property: | N |
| Multi-Family Redevelopment: | N | | |
| Township: | | Section: | |
| Range: | |
Location |
| Address: | 490 SW REGENCY DR OAK HARBOR, WA 98277 | Mapsco: | |
| Neighborhood: | Cycle 1 | Map ID: | 92 |
| Neighborhood CD: | 1 |
Owner |
| Name: | SHIGLEY, STEPHAN | Owner ID: | 288435 |
| Mailing Address: | BRITTNEY SHIGLEY 490 SW REGENCY DR OAK HARBOR, WA 98277 | % Ownership: | 100.0000000000% |
| | | Exemptions: | |
Taxes and Assessment Details
Values
| (+) Improvement Homesite Value: | + | $0 | |
| (+) Improvement Non-Homesite Value: | + | $301,699 | |
| (+) Land Homesite Value: | + | $0 | |
| (+) Land Non-Homesite Value: | + | $210,000 | |
| (+) Curr Use (HS): | + | $0 | $0 |
| (+) Curr Use (NHS): | + | $0 | $0 |
| | | -------------------------- | |
| (=) Market Value: | = | $511,699 | |
| (–) Productivity Loss: | – | $0 | |
| | | -------------------------- | |
| (=) Subtotal: | = | $511,699 | |
| (+) Senior Appraised Value: | + | $0 | |
| (+) Non-Senior Appraised Value: | + | $511,699 | |
| | | -------------------------- | |
| (=) Total Appraised Value: | = | $511,699 | |
| (–) Senior Exemption Loss: | – | $0 | |
| (–) Exemption Loss: | – | $0 | |
| | | -------------------------- | |
| (=) Taxable Value: | = | $511,699 | |
Taxing Jurisdiction
| Owner: | SHIGLEY, STEPHAN | | |
| % Ownership: | 100.0000000000% | | |
| Total Value: | $511,699 | | |
| Tax Area: | 100 - APPRAISER-OH Schl Dist, in OH |
| CF | Conservation Futures | 0.0316035091 | $511,699 | $511,699 | $16.17 | | |
| CEM1 | Cemetery #1 | 0.0040320932 | $511,699 | $511,699 | $2.06 | | |
| COH | City of Oak Harbor | 2.3001546061 | $511,699 | $511,699 | $1,176.99 | | |
| OAKBOND | City of Oak Harbor BOND | 0.1926904192 | $511,699 | $511,699 | $98.60 | | |
| HOBOND | Hospital BOND | 0.1910887512 | $511,699 | $511,699 | $97.78 | | |
| HOGEN | Hospital GEN | 0.3902502903 | $511,699 | $511,699 | $199.69 | | |
| CE | County Current Expense | 0.3708482477 | $511,699 | $511,699 | $189.76 | | |
| ISLANDEMS | Hospital GEN (EMS) | 0.5000000000 | $511,699 | $511,699 | $255.85 | | |
| LIB | Library Sno-Isle GEN | 0.3153421757 | $511,699 | $511,699 | $161.36 | | |
| NWHIDPRMT | P & R N Whidbey GEN | 0.2004466701 | $511,699 | $511,699 | $102.57 | | |
| SCH201MO | School 201 Enrichment | 1.8559231640 | $511,699 | $511,699 | $949.67 | | |
| ST | State School | 1.3035497053 | $511,699 | $511,699 | $667.03 | | |
| ST2 | State School Part 2 | 0.8169543533 | $511,699 | $511,699 | $418.03 | | |
| | Total Tax Rate: | 8.4728839852 | | | | | |
| | | | | Taxes w/Current Exemptions: | $4,335.56 | | |
| | | | | Taxes w/o Exemptions: | $4,335.56 | | |
Improvement / Building
| Improvement #1: | RESIDENTIAL | State Code: | Y | 1735.5 sqft | Value: | $301,699 |
| Bathrooms: | 2 | Bedrooms: | 3 | | Ceiling: | DRYWALL PAINTED | Exterior Wall/Cover: | CEMENT FIBER | | Floor Covering: | CARPET/VINYL 80-20 | Floor Structure: | WOOD W/SUBFLOOR | | Foundation: | CONCRETE | Heating: | FHA GAS | | Interior Finish: | DRYWALL PAINT | Plumbing Fixture Cnt: | 10 | | Roof Slope: | 8" IN 12" | Roof Structure/Cover: | CJ ASPHALT |
|
| | Type | Description | Class CD | Sub Class CD | Year Built | Area |
| | BAS | BASE/MAIN FLOOR | 3 | 0 | 2002 | 1175.5 |
| | AGR | ATTACHED GARAGE | 3 | 0 | 2002 | 517.0 |
| | UPS | UPPER STORY | 3 | 0 | 2002 | 560.0 |
| | OWP | OPEN WOOD PORCH W/STEPS | 3 | 0 | 2002 | 149.5 |
Sketch
Property Image
Land
| 1 | 16 | AC (00.51-01.00) | 0.0000 | 0.00 | 0.00 | 0.00 | 1.00 | $210,000 | $0 |
Roll Value History
| 2026 | N/A | N/A | N/A | N/A | N/A |
| 2025 | $301,699 | $210,000 | $0 | $511,699 | $511,699 |
| 2024 | $305,240 | $190,000 | $0 | $495,240 | $495,240 |
| 2023 | $294,621 | $190,000 | $0 | $484,621 | $484,621 |
| 2022 | $269,994 | $180,000 | $0 | $449,994 | $449,994 |
| 2021 | $237,557 | $120,000 | $0 | $357,557 | $357,557 |
| 2020 | $231,443 | $100,000 | $0 | $331,443 | $331,443 |
| 2019 | $170,353 | $150,000 | $0 | $320,353 | $320,353 |
| 2018 | $170,842 | $130,000 | $0 | $300,842 | $300,842 |
| 2017 | $172,785 | $110,000 | $0 | $282,785 | $282,785 |
| 2016 | $174,841 | $90,000 | $0 | $264,841 | $264,841 |
| 2015 | $176,899 | $70,000 | $0 | $246,899 | $246,899 |
| 2014 | $178,955 | $55,000 | $0 | $233,955 | $233,955 |
| 2013 | $181,013 | $55,000 | $0 | $236,013 | $236,013 |
| 2012 | $183,070 | $68,000 | $0 | $251,070 | $251,070 |
| 2011 | $187,415 | $68,000 | $0 | $255,415 | $255,415 |
| 2010 | $195,856 | $68,000 | $0 | $263,856 | $263,856 |
| 2009 | $202,180 | $75,000 | $0 | $277,180 | $277,180 |
| 2008 | $204,661 | $100,000 | $0 | $304,661 | $304,661 |
| 2007 | $209,193 | $100,000 | $0 | $309,193 | $309,193 |
Deed and Sales History
| 1 | 12/18/2018 | WD | Warranty Deed | COOPER, AUGUSTINE C | SHIGLEY, STEPHAN | | | $330,000.00 | 37213 | 4457539 |
| 2 | 03/12/2007 | WD | Warranty Deed | MORIARTY, CHRISTOPHER J | COOPER, AUGUSTINE C | | | $290,000.00 | 70976 | 4197514 |
| 3 | 12/19/2001 | WD | Warranty Deed | ENCINAS CONSTRUCTION INC, | MORIARTY, CHRISTOPHER J | | | $201,310.00 | 14819 | 4006525 |
| 4 | 07/18/2001 | QCD | Quit Claim Deed | Unknown | ENCINAS CONSTRUCTION INC, | | | $46,250.00 | 12796 | 20038167 |
Payout Agreement
| No payout information available.. |