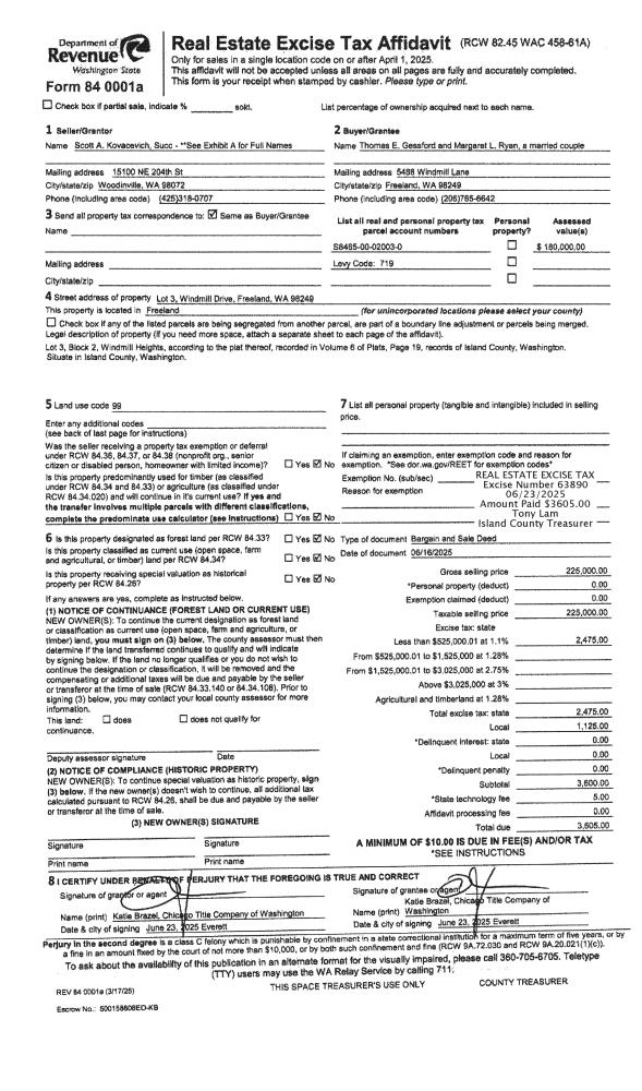
Property
Account |
| Property ID: | 802343 | Abbreviated Legal Description: | ALTAMER CONDO PHASE II UNIT B2 14.286% INT |
| Geographic ID: | S6026-00-000B2-0 | Agent Code: | |
| Type: | Real | | |
| Tax Area: | 100 - APPRAISER-OH Schl Dist, in OH | Land Use Code | 14 |
| Open Space: | N | DFL | N |
| Historic Property: | N | Remodel Property: | N |
| Multi-Family Redevelopment: | N | | |
| Township: | | Section: | |
| Range: | |
Location |
| Address: | 777 SW 19TH CT UNIT B2 OAK HARBOR, WA 98277 | Mapsco: | |
| Neighborhood: | 3A*OH-altamer | Map ID: | 91 |
| Neighborhood CD: | 3A*OHaltmr |
Owner |
| Name: | ROBERTSON TTEE, CAROLYN H | Owner ID: | 315346 |
| Mailing Address: | 777 SW 19TH COURT B2 OAK HARBOR, WA 98277 | % Ownership: | 100.0000000000% |
| | | Exemptions: | |
Taxes and Assessment Details
Values
| (+) Improvement Homesite Value: | + | $0 | |
| (+) Improvement Non-Homesite Value: | + | $311,290 | |
| (+) Land Homesite Value: | + | $0 | |
| (+) Land Non-Homesite Value: | + | $80,000 | |
| (+) Curr Use (HS): | + | $0 | $0 |
| (+) Curr Use (NHS): | + | $0 | $0 |
| | | -------------------------- | |
| (=) Market Value: | = | $391,290 | |
| (–) Productivity Loss: | – | $0 | |
| | | -------------------------- | |
| (=) Subtotal: | = | $391,290 | |
| (+) Senior Appraised Value: | + | $0 | |
| (+) Non-Senior Appraised Value: | + | $391,290 | |
| | | -------------------------- | |
| (=) Total Appraised Value: | = | $391,290 | |
| (–) Senior Exemption Loss: | – | $0 | |
| (–) Exemption Loss: | – | $0 | |
| | | -------------------------- | |
| (=) Taxable Value: | = | $391,290 | |
Taxing Jurisdiction
| Owner: | ROBERTSON TTEE, CAROLYN H | | |
| % Ownership: | 100.0000000000% | | |
| Total Value: | $391,290 | | |
| Tax Area: | 100 - APPRAISER-OH Schl Dist, in OH |
| CF | Conservation Futures | 0.0316035091 | $391,290 | $391,290 | $12.37 | | |
| CEM1 | Cemetery #1 | 0.0040320932 | $391,290 | $391,290 | $1.58 | | |
| COH | City of Oak Harbor | 2.3001546061 | $391,290 | $391,290 | $900.03 | | |
| OAKBOND | City of Oak Harbor BOND | 0.1926904192 | $391,290 | $391,290 | $75.40 | | |
| HOBOND | Hospital BOND | 0.1910887512 | $391,290 | $391,290 | $74.77 | | |
| HOGEN | Hospital GEN | 0.3902502903 | $391,290 | $391,290 | $152.70 | | |
| CE | County Current Expense | 0.3708482477 | $391,290 | $391,290 | $145.11 | | |
| ISLANDEMS | Hospital GEN (EMS) | 0.5000000000 | $391,290 | $391,290 | $195.65 | | |
| LIB | Library Sno-Isle GEN | 0.3153421757 | $391,290 | $391,290 | $123.39 | | |
| NWHIDPRMT | P & R N Whidbey GEN | 0.2004466701 | $391,290 | $391,290 | $78.43 | | |
| SCH201MO | School 201 Enrichment | 1.8559231640 | $391,290 | $391,290 | $726.20 | | |
| ST | State School | 1.3035497053 | $391,290 | $391,290 | $510.07 | | |
| ST2 | State School Part 2 | 0.8169543533 | $391,290 | $391,290 | $319.67 | | |
| | Total Tax Rate: | 8.4728839852 | | | | | |
| | | | | Taxes w/Current Exemptions: | $3,315.37 | | |
| | | | | Taxes w/o Exemptions: | $3,315.37 | | |
Improvement / Building
| Improvement #1: | RESIDENTIAL | State Code: | A1 | 1746.5 sqft | Value: | $311,290 |
| Bathrooms: | 2 | Bedrooms: | 3 | | Ceiling: | DRY WALL SPRAYED | Exterior Wall/Cover: | CEMENT FIBER | | Floor Covering: | HARDWOOD/CARP 60-40 | Floor Structure: | WOOD W/SUBFLOOR | | Foundation: | CONCRETE | Heating: | FHA GAS | | Interior Finish: | DRYWALL PAINT | Plumbing Fixture Cnt: | 11 | | Roof Slope: | FLAT | Roof Structure/Cover: | BEAM BUILT-UP ROCK |
|
| | Type | Description | Class CD | Sub Class CD | Year Built | Area |
| | BAS | BASE/MAIN FLOOR | 3 | 0 | 2000 | 1746.5 |
| | OP1 | OPEN PORCH SLAB | 3 | 0 | 2000 | 90.0 |
| | OP2 | OPEN PORCH W/STEPS | 3 | 0 | 2000 | 80.0 |
| | BIG | BUILT IN GARAGE | 3 | 0 | 2000 | 838.0 |
| | OWP | OPEN WOOD PORCH W/STEPS | 3 | 0 | 2000 | 108.0 |
| | OP4 | OPEN PORCH W/CEILING-ROOF | 3 | 0 | 2000 | 20.0 |
| | COMA | Common Area Improvement | 3 | 0 | 2000 | 0.0 |
Sketch
Property Image
Land
| 1 | 61 | MULTIPLE RESIDENCES | 0.8095 | 35261.82 | 0.00 | 0.00 | 1.00 | $80,000 | $0 |
Roll Value History
| 2026 | N/A | N/A | N/A | N/A | N/A |
| 2025 | $311,290 | $80,000 | $0 | $391,290 | $391,290 |
| 2024 | $315,207 | $80,000 | $0 | $395,207 | $395,207 |
| 2023 | $319,125 | $80,000 | $0 | $399,125 | $123,351 |
| 2022 | $292,599 | $80,000 | $0 | $372,599 | $123,351 |
| 2021 | $257,621 | $65,000 | $0 | $322,621 | $123,351 |
| 2020 | $251,032 | $55,000 | $0 | $306,032 | $122,413 |
| 2019 | $186,462 | $95,000 | $0 | $281,462 | $112,585 |
| 2018 | $187,033 | $65,000 | $0 | $252,033 | $100,813 |
| 2017 | $188,171 | $31,582 | $0 | $219,753 | $87,901 |
| 2016 | $190,461 | $31,582 | $0 | $222,043 | $88,817 |
| 2015 | $192,751 | $31,582 | $0 | $224,333 | $89,733 |
| 2014 | $195,043 | $31,582 | $0 | $226,625 | $90,650 |
| 2013 | $186,785 | $31,582 | $0 | $218,367 | $87,347 |
| 2012 | $191,120 | $31,582 | $0 | $222,702 | $89,081 |
| 2011 | $191,120 | $31,582 | $0 | $222,702 | $89,081 |
| 2010 | $200,438 | $31,582 | $0 | $232,020 | $232,020 |
| 2009 | $208,998 | $99,380 | $0 | $308,378 | $238,378 |
| 2008 | $211,475 | $104,266 | $0 | $315,741 | $315,741 |
| 2007 | $191,858 | $127,906 | $0 | $319,764 | $319,764 |
Deed and Sales History
| 1 | 02/04/2025 | QCD | Quit Claim Deed | ROBERTSON, CAROLYN H | ROBERTSON TTEE, CAROLYN H | | | $0.00 | 62491 | 4581923 |
| 2 | 09/25/2024 | WD | Warranty Deed | SEVERNS, KRISTEN G | ROBERTSON, CAROLYN H | | | $475,000.00 | 61487 | 4577907 |
| 3 | 06/10/2002 | WD | Warranty Deed | GROENIG, GLEN W | SEVERNS, KRISTEN G | | | $194,500.00 | 22252 | 4022871 |
| 4 | 10/12/2001 | WD | Warranty Deed | NUNN, RICHARD R | GROENIG, GLEN W | | | $181,500.00 | 13995 | 4000130 |
| 5 | 01/01/1900 | OTHER | Other - Misc. Documents | Unknown | NUNN, RICHARD R | | | $0.00 | 0 | 0 |
Payout Agreement
| No payout information available.. |