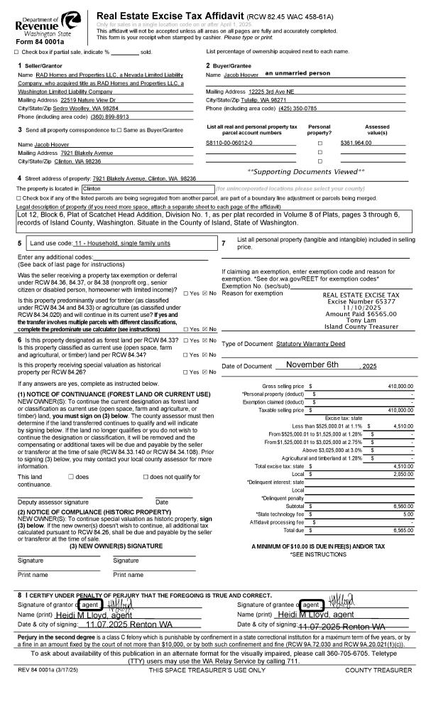
Property
Account |
| Property ID: | 802347 | Abbreviated Legal Description: | POSSESSION POINT ESTATES II PRD LOT 9 TGW UNDIV 1/17TH INT IN TRACTS A, B, C, D & E AF#4465609 |
| Geographic ID: | S7768-02-00009-0 | Agent Code: | |
| Type: | Real | | |
| Tax Area: | 712 - APPRAISER-S Whid Schl Dist, outside Langley, improved, greater than 1 acre | Land Use Code | 11 |
| Open Space: | N | DFL | N |
| Historic Property: | N | Remodel Property: | N |
| Multi-Family Redevelopment: | N | | |
| Township: | | Section: | |
| Range: | |
Location |
| Address: | 4306 QUATERNARY RD CLINTON, WA 98236 | Mapsco: | |
| Neighborhood: | Cycle 4 | Map ID: | 711 |
| Neighborhood CD: | 4 |
Owner |
| Name: | DUNBABIN, CRISTOPHER | Owner ID: | 309916 |
| Mailing Address: | LISA A DUNBABIN 4367 CLYDE RD LANGLEY, WA 98260 | % Ownership: | 100.0000000000% |
| | | Exemptions: | |
Taxes and Assessment Details
Values
| (+) Improvement Homesite Value: | + | $0 | |
| (+) Improvement Non-Homesite Value: | + | $851,908 | |
| (+) Land Homesite Value: | + | $0 | |
| (+) Land Non-Homesite Value: | + | $340,000 | |
| (+) Curr Use (HS): | + | $0 | $0 |
| (+) Curr Use (NHS): | + | $0 | $0 |
| | | -------------------------- | |
| (=) Market Value: | = | $1,191,908 | |
| (–) Productivity Loss: | – | $0 | |
| | | -------------------------- | |
| (=) Subtotal: | = | $1,191,908 | |
| (+) Senior Appraised Value: | + | $0 | |
| (+) Non-Senior Appraised Value: | + | $1,191,908 | |
| | | -------------------------- | |
| (=) Total Appraised Value: | = | $1,191,908 | |
| (–) Senior Exemption Loss: | – | $0 | |
| (–) Exemption Loss: | – | $0 | |
| | | -------------------------- | |
| (=) Taxable Value: | = | $1,191,908 | |
Taxing Jurisdiction
| Owner: | DUNBABIN, CRISTOPHER | | |
| % Ownership: | 100.0000000000% | | |
| Total Value: | $1,191,908 | | |
| Tax Area: | 712 - APPRAISER-S Whid Schl Dist, outside Langley, improved, greater than 1 acre |
| CF | Conservation Futures | 0.0316035091 | $1,191,908 | $1,191,908 | $37.67 | | |
| FIRE3 | Fire & Rescue Dist #3 S Whidbey GEN | 1.2004855531 | $1,191,908 | $1,191,908 | $1,430.87 | | |
| HOBOND | Hospital BOND | 0.1910887512 | $1,191,908 | $1,191,908 | $227.76 | | |
| HOGEN | Hospital GEN | 0.3902502903 | $1,191,908 | $1,191,908 | $465.14 | | |
| CE | County Current Expense | 0.3708482477 | $1,191,908 | $1,191,908 | $442.02 | | |
| CR | County Roads | 0.4584763726 | $1,191,908 | $1,191,908 | $546.46 | | |
| ISLANDEMS | Hospital GEN (EMS) | 0.5000000000 | $1,191,908 | $1,191,908 | $595.95 | | |
| LIB | Library Sno-Isle GEN | 0.3153421757 | $1,191,908 | $1,191,908 | $375.86 | | |
| PORTWHID | Port of S Whidbey GEN | 0.1094540357 | $1,191,908 | $1,191,908 | $130.46 | | |
| SCH206BOND | School 206 BOND | 0.3161759235 | $1,191,908 | $1,191,908 | $376.85 | | |
| SCH206MO | School 206 Enrichment | 0.4547169547 | $1,191,908 | $1,191,908 | $541.98 | | |
| ST | State School | 1.3035497053 | $1,191,908 | $1,191,908 | $1,553.71 | | |
| ST2 | State School Part 2 | 0.8169543533 | $1,191,908 | $1,191,908 | $973.73 | | |
| SWHIDPRBD | P & R S Whidbey BOND | 0.0152817568 | $1,191,908 | $1,191,908 | $18.21 | | |
| SWHIDPRBD2 | P & R S Whidbey BOND2 | 0.0138911264 | $1,191,908 | $1,191,908 | $16.56 | | |
| SWHIDPRMT | P & R S Whidbey GEN | 0.2053334452 | $1,191,908 | $1,191,908 | $244.74 | | |
| | Total Tax Rate: | 6.6934522006 | | | | | |
| | | | | Taxes w/Current Exemptions: | $7,977.97 | | |
| | | | | Taxes w/o Exemptions: | $7,977.97 | | |
Improvement / Building
| Improvement #1: | RESIDENTIAL | State Code: | Y | 2634.5 sqft | Value: | $851,908 |
| Bathrooms: | 2.5 | Bedrooms: | 2 | | Ceiling: | DRYWALL PAINTED | Cooling: | HEAT PUMP/CONV/V | | Exterior Wall/Cover: | CEMENT FIBER | Floor Covering: | LAMINATE/LVP | | Floor Structure: | WOOD W/SUBFLOOR | Foundation: | CONCRETE | | Interior Finish: | DRYWALL PAINT | Plumbing Fixture Cnt: | 15 | | Roof Slope: | 10" IN 12" | Roof Structure/Cover: | CJ ASPHALT |
|
| | Type | Description | Class CD | Sub Class CD | Year Built | Area |
| | BAS | BASE/MAIN FLOOR | 5 | 0 | 2025 | 2634.5 |
| | AGR | ATTACHED GARAGE | 5 | 0 | 2025 | 603.0 |
| | UTY | STORAGE/UTILITY | 5 | 0 | 2025 | 42.5 |
| | OP4 | OPEN PORCH W/CEILING-ROOF | 5 | 0 | 2025 | 588.0 |
| | OWC | OPEN WOOD PORCH W/STEPS/ROOF/C | 5 | 0 | 2025 | 900.0 |
Sketch
| No sketches available for this property. |
Property Image
Land
| 1 | 17 | AC (01.01-02.00) | 1.0100 | 43995.60 | 0.00 | 0.00 | 1.00 | $340,000 | $0 |
Roll Value History
| 2026 | N/A | N/A | N/A | N/A | N/A |
| 2025 | $851,908 | $340,000 | $0 | $1,191,908 | $1,191,908 |
| 2024 | $39,510 | $250,000 | $0 | $289,510 | $289,510 |
| 2023 | $0 | $230,000 | $0 | $230,000 | $230,000 |
| 2022 | $0 | $230,000 | $0 | $230,000 | $230,000 |
| 2021 | $0 | $170,000 | $0 | $170,000 | $170,000 |
| 2020 | $0 | $150,000 | $0 | $150,000 | $150,000 |
| 2019 | $0 | $160,000 | $0 | $160,000 | $160,000 |
| 2018 | $0 | $150,000 | $0 | $150,000 | $150,000 |
| 2017 | $0 | $125,000 | $0 | $125,000 | $125,000 |
| 2016 | $0 | $150,000 | $0 | $150,000 | $150,000 |
| 2015 | $0 | $130,000 | $0 | $130,000 | $130,000 |
| 2014 | $0 | $160,000 | $0 | $160,000 | $160,000 |
| 2013 | $0 | $160,000 | $0 | $160,000 | $160,000 |
| 2012 | $0 | $160,000 | $0 | $160,000 | $160,000 |
| 2011 | $0 | $200,000 | $0 | $200,000 | $200,000 |
| 2010 | $0 | $200,000 | $0 | $200,000 | $200,000 |
| 2009 | $0 | $200,000 | $0 | $200,000 | $200,000 |
| 2008 | $0 | $150,000 | $0 | $150,000 | $150,000 |
| 2007 | $0 | $150,000 | $0 | $150,000 | $150,000 |
Deed and Sales History
| 1 | 08/31/2023 | WD | Warranty Deed | CAMPBELL, DEBRA HASSAN | DUNBABIN, CRISTOPHER | | | $325,000.00 | 57852 | 4564240 |
| 2 | 03/08/2021 | WD | Warranty Deed | MILROT, MARK CONNERY | CAMPBELL, DEBRA HASSAN | | | $275,000.00 | 47327 | 4513448 |
| 3 | 01/29/2008 | DECREE | Divorce Decree/Legal Separation | MILROT, MARK C | MILROT, MARK CONNERY | | | $0.00 | 81161 | 4228189 |
| 4 | 03/27/2001 | OTHER | Other - Misc. Documents | Unknown | SWANSON, TERRY W & FAWN L | | | $0.00 | 0 | 0 |
| 5 | 02/08/2001 | WD | Warranty Deed | SWANSON, TERRY W & FAWN L | MILROT, MARK C | | | $128,000.00 | 10595 | 20026120 |
Payout Agreement
| No payout information available.. |