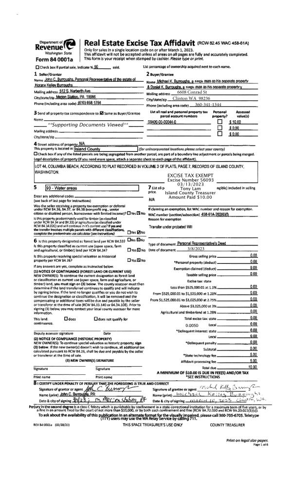
Property
Account |
| Property ID: | 802354 | Abbreviated Legal Description: | 2000 AMERICAN HOMESTAR BAYCREST 14X52 VIN# 6DSTOR 1700 21530 |
| Geographic ID: | M91000000009-4 | Agent Code: | |
| Type: | Mobile Home | | |
| Tax Area: | 300 - APPRAISER-Cpvl Schl Dist, in Cpvl | Land Use Code | 11 |
| Open Space: | N | DFL | N |
| Historic Property: | N | Remodel Property: | N |
| Multi-Family Redevelopment: | N | | |
| Township: | | Section: | |
| Range: | |
Location |
| Address: | 701 S MAIN ST # 9 COUPEVILLE, WA 98239 | Mapsco: | |
| Neighborhood: | Cycle 2 | Map ID: | |
| Neighborhood CD: | 2 |
Owner |
| Name: | RUSSELL, BARBARA J | Owner ID: | 307003 |
| Mailing Address: | 701 S MAIN ST #9 COUPEVILLE, WA 98239 | % Ownership: | 100.0000000000% |
| | | Exemptions: | |
Taxes and Assessment Details
Values
| (+) Improvement Homesite Value: | + | $0 | |
| (+) Improvement Non-Homesite Value: | + | $43,787 | |
| (+) Land Homesite Value: | + | $0 | |
| (+) Land Non-Homesite Value: | + | $0 | |
| (+) Curr Use (HS): | + | $0 | $0 |
| (+) Curr Use (NHS): | + | $0 | $0 |
| | | -------------------------- | |
| (=) Market Value: | = | $43,787 | |
| (–) Productivity Loss: | – | $0 | |
| | | -------------------------- | |
| (=) Subtotal: | = | $43,787 | |
| (+) Senior Appraised Value: | + | $0 | |
| (+) Non-Senior Appraised Value: | + | $43,787 | |
| | | -------------------------- | |
| (=) Total Appraised Value: | = | $43,787 | |
| (–) Senior Exemption Loss: | – | $0 | |
| (–) Exemption Loss: | – | $0 | |
| | | -------------------------- | |
| (=) Taxable Value: | = | $43,787 | |
Taxing Jurisdiction
| Owner: | RUSSELL, BARBARA J | | |
| % Ownership: | 100.0000000000% | | |
| Total Value: | $43,787 | | |
| Tax Area: | 300 - APPRAISER-Cpvl Schl Dist, in Cpvl |
| CF | Conservation Futures | 0.0316035091 | $43,787 | $43,787 | $1.38 | | |
| CEM2 | Cemetery #2 | 0.0095056933 | $43,787 | $43,787 | $0.42 | | |
| COUP | City: Town of Coupeville | 0.8426414490 | $43,787 | $43,787 | $36.90 | | |
| FIRE5 | Fire & Rescue Dist #5 C Whidbey GEN | 1.2008080668 | $43,787 | $43,787 | $52.58 | | |
| FIRE5BOND | Fire & Rescue Dist #5 C Whidbey BOND | 0.1400090713 | $43,787 | $43,787 | $6.13 | | |
| HOBOND | Hospital BOND | 0.1910887512 | $43,787 | $43,787 | $8.37 | | |
| HOGEN | Hospital GEN | 0.3902502903 | $43,787 | $43,787 | $17.09 | | |
| CE | County Current Expense | 0.3708482477 | $43,787 | $43,787 | $16.24 | | |
| ISLANDEMS | Hospital GEN (EMS) | 0.5000000000 | $43,787 | $43,787 | $21.89 | | |
| LIB | Library Sno-Isle GEN | 0.3153421757 | $43,787 | $43,787 | $13.81 | | |
| LIBCAP | Library Sno-Isle BOND (Cap Fac Imp Area) | 0.0543427938 | $43,787 | $43,787 | $2.38 | | |
| POCOUP | Port of Coupeville GEN | 0.1093371703 | $43,787 | $43,787 | $4.79 | | |
| POCOUPIDD | Port of Coupeville IDD | 0.3409740022 | $43,787 | $43,787 | $14.93 | | |
| COUPSDTECH | School 204 CP (TECH) | 0.7545480007 | $43,787 | $43,787 | $33.04 | | |
| SCH204MO | School 204 Enrichment | 0.6716186034 | $43,787 | $43,787 | $29.41 | | |
| ST | State School | 1.3035497053 | $43,787 | $43,787 | $57.08 | | |
| ST2 | State School Part 2 | 0.8169543533 | $43,787 | $43,787 | $35.77 | | |
| | Total Tax Rate: | 8.0434218834 | | | | | |
| | | | | Taxes w/Current Exemptions: | $352.21 | | |
| | | | | Taxes w/o Exemptions: | $352.21 | | |
Improvement / Building
| Improvement #1: | MANUFACTURED HOME | State Code: | Y | 728.0 sqft | Value: | $43,787 |
| Bathrooms: | 1 | Bedrooms: | 2 | | Ceiling: | PLASTER PAINTED | Cooling: | EVAP NO DUCT | | Exterior Wall/Cover: | VINYL | Floor Covering: | CARPET 100% | | Floor Structure: | SLAB ON GRADE | Foundation: | SLAB | | Heating: | FHA ELECTRIC | Interior Finish: | PLASTER | | Plumbing Fixture Cnt: | 1 | Roof Slope: | FLAT | | Roof Structure/Cover: | CJ ALUMINIUM HEAVY |   |   |
|
Sketch
Property Image
Land
No land segments exist for this property.
Roll Value History
| 2026 | N/A | N/A | N/A | N/A | N/A |
| 2025 | $43,787 | $0 | $0 | $43,787 | $43,787 |
| 2024 | $44,765 | $0 | $0 | $44,765 | $44,765 |
| 2023 | $23,528 | $0 | $0 | $23,528 | $23,528 |
| 2022 | $21,873 | $0 | $0 | $21,873 | $21,873 |
| 2021 | $19,514 | $0 | $0 | $19,514 | $19,514 |
| 2020 | $19,424 | $0 | $0 | $19,424 | $19,424 |
| 2019 | $15,680 | $0 | $0 | $15,680 | $15,680 |
| 2018 | $16,154 | $0 | $0 | $16,154 | $16,154 |
| 2017 | $16,564 | $0 | $0 | $16,564 | $16,564 |
| 2016 | $16,973 | $0 | $0 | $16,973 | $16,973 |
| 2015 | $17,382 | $0 | $0 | $17,382 | $17,382 |
| 2014 | $17,792 | $0 | $0 | $17,792 | $17,792 |
| 2013 | $18,201 | $0 | $0 | $18,201 | $18,201 |
| 2012 | $19,048 | $0 | $0 | $19,048 | $19,048 |
| 2011 | $19,253 | $0 | $0 | $19,253 | $19,253 |
| 2010 | $19,939 | $0 | $0 | $19,939 | $19,939 |
| 2009 | $23,037 | $0 | $0 | $23,037 | $23,037 |
| 2008 | $23,688 | $0 | $0 | $23,688 | $23,688 |
| 2007 | $24,334 | $0 | $0 | $24,334 | $24,334 |
Deed and Sales History
| 1 | 12/20/2022 | MANHOME | Manufactured Home | MARTIN, ROBERT | RUSSELL, BARBARA J | | | $85,000.00 | 55433 | |
| 2 | 08/15/2011 | OTHER | Other - Misc. Documents | SINGLETON, RONALD P | MARTIN, ROBERT | | | $16,500.00 | 5247 | |
| 3 | 02/11/2010 | OTHER | Other - Misc. Documents | FROST, STANLEY | SINGLETON, RONALD P | | | $18,500.00 | 300 | 0 |
| 4 | 05/15/2009 | OTHER | Other - Misc. Documents | OLYMPIC VIEW MANUFACTURED HOUS | FROST, STANLEY | | | $15,500.00 | 91061 | 0 |
| 5 | 03/25/2009 | OTHER | Other - Misc. Documents | WASHINGTON MUTAL, | OLYMPIC VIEW MANUFACTURED HOUS | | | $12,500.00 | 90717 | 0 |
| 6 | 02/16/2009 | OTHER | Other - Misc. Documents | ERICKSON, SUSAN | WASHINGTON MUTAL, | | | $0.00 | 90716 | 0 |
| 7 | 01/01/1900 | PACD | Purchaser's Assignment | Unknown | ERICKSON, SUSAN | | | $28,500.00 | 0 | 0 |
Payout Agreement
| No payout information available.. |