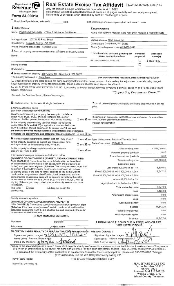
Property
Account |
| Property ID: | 802365 | Abbreviated Legal Description: | LOT 1 SP 412-98.33229.048-0650 V3 SP P284-5 AF#99028497 AMENDED V3 SP P304-5 AF#20004349 |
| Geographic ID: | R33229-047-0990 | Agent Code: | |
| Type: | Real | | |
| Tax Area: | 592 - APPRAISER-Stan/Cam Schl Dist, Special Dist, improved, greater than 1 acre | Land Use Code | 11 |
| Open Space: | N | DFL | N |
| Historic Property: | N | Remodel Property: | N |
| Multi-Family Redevelopment: | N | | |
| Township: | 32 | Section: | 29 |
| Range: | R3 |
Location |
| Address: | 451 N SUNRISE BLVD CAMANO ISLAND, WA 98282 | Mapsco: | |
| Neighborhood: | Cycle 5 | Map ID: | 985 |
| Neighborhood CD: | 5 |
Owner |
| Name: | WEBER, SPENCER | Owner ID: | 278970 |
| Mailing Address: | ROBYN WEBER 451 N SUNRISE BOULEVARD CAMANO ISLAND, WA 98282 | % Ownership: | 100.0000000000% |
| | | Exemptions: | |
Taxes and Assessment Details
Values
| (+) Improvement Homesite Value: | + | $0 | |
| (+) Improvement Non-Homesite Value: | + | $430,731 | |
| (+) Land Homesite Value: | + | $0 | |
| (+) Land Non-Homesite Value: | + | $360,000 | |
| (+) Curr Use (HS): | + | $0 | $0 |
| (+) Curr Use (NHS): | + | $0 | $0 |
| | | -------------------------- | |
| (=) Market Value: | = | $790,731 | |
| (–) Productivity Loss: | – | $0 | |
| | | -------------------------- | |
| (=) Subtotal: | = | $790,731 | |
| (+) Senior Appraised Value: | + | $0 | |
| (+) Non-Senior Appraised Value: | + | $790,731 | |
| | | -------------------------- | |
| (=) Total Appraised Value: | = | $790,731 | |
| (–) Senior Exemption Loss: | – | $0 | |
| (–) Exemption Loss: | – | $0 | |
| | | -------------------------- | |
| (=) Taxable Value: | = | $790,731 | |
Taxing Jurisdiction
| Owner: | WEBER, SPENCER | | |
| % Ownership: | 100.0000000000% | | |
| Total Value: | $790,731 | | |
| Tax Area: | 592 - APPRAISER-Stan/Cam Schl Dist, Special Dist, improved, greater than 1 acre |
| CF | Conservation Futures | 0.0316035091 | $790,731 | $790,731 | $24.99 | | |
| EMS1 | Fire & Rescue Dist #1 Camano GEN (EMS) | 0.3677864386 | $790,731 | $790,731 | $290.82 | | |
| FIRE1 | Fire & Rescue Dist #1 Camano GEN | 1.2502910536 | $790,731 | $790,731 | $988.64 | | |
| FIRE1BOND | Fire & Rescue Dist #1 Camano BOND | 0.1570001679 | $790,731 | $790,731 | $124.14 | | |
| CE | County Current Expense | 0.3708482477 | $790,731 | $790,731 | $293.24 | | |
| CR | County Roads | 0.4584763726 | $790,731 | $790,731 | $362.53 | | |
| LCIB | Library Sno-Isle BOND (Camano Island) | 0.0396325772 | $790,731 | $790,731 | $31.34 | | |
| LIB | Library Sno-Isle GEN | 0.3153421757 | $790,731 | $790,731 | $249.35 | | |
| SCH205_401 | School 205-401 Enrichment | 1.2698420524 | $790,731 | $790,731 | $1,004.10 | | |
| SCH205BOND | School 205-401 BOND | 0.9396497583 | $790,731 | $790,731 | $743.01 | | |
| ST | State School | 1.3035497053 | $790,731 | $790,731 | $1,030.76 | | |
| ST2 | State School Part 2 | 0.8169543533 | $790,731 | $790,731 | $645.99 | | |
| | Total Tax Rate: | 7.3209764117 | | | | | |
| | | | | Taxes w/Current Exemptions: | $5,788.91 | | |
| | | | | Taxes w/o Exemptions: | $5,788.91 | | |
Improvement / Building
| Improvement #1: | RESIDENTIAL | State Code: | Y | 1960.0 sqft | Value: | $430,731 |
| Bathrooms: | 2 | Bedrooms: | 3 | | Ceiling: | DRYWALL PAINTED | Exterior Wall/Cover: | CEMENT FIBER | | Floor Covering: | CERAMIC TILE/CPT 40-60 | Floor Structure: | WOOD W/SUBFLOOR | | Foundation: | CONCRETE | Heating: | FHA GAS | | Interior Finish: | DRYWALL PAINT | Plumbing Fixture Cnt: | 12 | | Roof Slope: | 6" IN 12" | Roof Structure/Cover: | CJ ASPHALT |
|
| | Type | Description | Class CD | Sub Class CD | Year Built | Area |
| | BAS | BASE/MAIN FLOOR | 3 | 0 | 2002 | 1960.0 |
| | OP1 | OPEN PORCH SLAB | 3 | 0 | 2002 | 600.0 |
| | OP2 | OPEN PORCH W/STEPS | 3 | 0 | 2002 | 48.0 |
| | OP4 | OPEN PORCH W/CEILING-ROOF | 3 | 0 | 2002 | 48.0 |
| | DGR | DETACHED GARAGE | 3 | 0 | 2002 | 1080.0 |
| | AGR | ATTACHED GARAGE | 3 | 0 | 2002 | 572.0 |
| | OWC | OPEN WOOD PORCH W/STEPS/ROOF/C | 3 | 0 | 2002 | 64.0 |
Sketch
Property Image
Land
| 1 | 32 | AC (03.01-09.99) | 5.0400 | 0.00 | 0.00 | 0.00 | 1.00 | $360,000 | $0 |
Roll Value History
| 2026 | N/A | N/A | N/A | N/A | N/A |
| 2025 | $430,731 | $360,000 | $0 | $790,731 | $790,731 |
| 2024 | $435,906 | $340,000 | $0 | $775,906 | $775,906 |
| 2023 | $441,078 | $320,000 | $0 | $761,078 | $761,078 |
| 2022 | $404,073 | $300,000 | $0 | $704,073 | $704,073 |
| 2021 | $343,235 | $230,000 | $0 | $573,235 | $573,235 |
| 2020 | $334,431 | $190,000 | $0 | $524,431 | $524,431 |
| 2019 | $252,530 | $220,000 | $0 | $472,530 | $472,530 |
| 2018 | $253,263 | $190,000 | $0 | $443,263 | $443,263 |
| 2017 | $254,726 | $150,000 | $0 | $404,726 | $404,726 |
| 2016 | $257,654 | $135,000 | $0 | $392,654 | $392,654 |
| 2015 | $265,751 | $135,000 | $0 | $400,751 | $400,751 |
| 2014 | $268,836 | $135,000 | $0 | $403,836 | $403,836 |
| 2013 | $271,920 | $112,896 | $0 | $384,816 | $384,816 |
| 2012 | $275,006 | $112,896 | $0 | $387,902 | $387,902 |
| 2011 | $278,093 | $141,120 | $0 | $419,213 | $419,213 |
| 2010 | $288,472 | $141,120 | $0 | $429,592 | $429,592 |
| 2009 | $314,724 | $161,280 | $0 | $476,004 | $476,004 |
| 2008 | $318,184 | $176,400 | $0 | $494,584 | $494,584 |
| 2007 | $324,953 | $161,280 | $0 | $486,233 | $486,233 |
Deed and Sales History
| 1 | 03/15/2017 | WD | Warranty Deed | MURRAY, BRENT | WEBER, SPENCER | | | $420,000.00 | 28468 | 4418965 |
| 2 | 09/06/2013 | QCD | Quit Claim Deed | CALENDER, RONALD | MURRAY, BRENT | | | $325,000.00 | 12719 | 4347749 |
| 3 | 08/28/2006 | WD | Warranty Deed | PARSONS, DENNIS J | CALENDER, RONALD | | | $512,000.00 | 63728 | 4180414 |
| 4 | 09/16/2002 | WD | Warranty Deed | HERIGSTAD, SCOTT J | PARSONS, DENNIS J | | | $301,818.00 | 23778 | 4032069 |
| 5 | 07/03/2002 | QCD | Quit Claim Deed | ERWIN, FREDA J | HERIGSTAD, SCOTT J | | | $0.00 | 22580 | 4028058 |
| 6 | 01/01/1900 | OTHER | Other - Misc. Documents | Unknown | ERWIN, FREDA J | | | $0.00 | 0 | 0 |
Payout Agreement
| No payout information available.. |