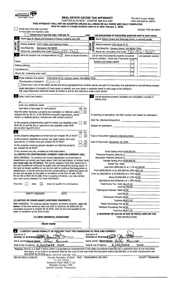
Property
Account |
| Property ID: | 802372 | Abbreviated Legal Description: | IN SE NW: BG SECR SD SUBD N ALG ELN 664.28' TPB N ALG SD LN 331.99' N89*W PARA/W NLN SD SUBD 1330.53' TO WLN SD SUBD S ALG SD WLN 332.68' TP N89*W FR TPB S89*E1330.96' TPB EX E20' FOR CO RD |
| Geographic ID: | R33230-351-2000 | Agent Code: | |
| Type: | Real | | |
| Tax Area: | 599 - APPRAISER-Stan/Cam Schl Dist, Special Dist, vacant & 50 acres or less | Land Use Code | 83 |
| Open Space: | Y | DFL | N |
| Historic Property: | N | Remodel Property: | N |
| Multi-Family Redevelopment: | N | | |
| Township: | 32 | Section: | 30 |
| Range: | R3 |
Location |
| Address: | | Mapsco: | |
| Neighborhood: | North Camano | Map ID: | 990 |
| Neighborhood CD: | 06-C |
Owner |
| Name: | NORTH CAMANO LLC | Owner ID: | 298000 |
| Mailing Address: | 818 SUNRISE BLVD CAMANO ISLAND, WA 98282 | % Ownership: | 100.0000000000% |
| | | Exemptions: | |
Taxes and Assessment Details
Values
| (+) Improvement Homesite Value: | + | $0 | |
| (+) Improvement Non-Homesite Value: | + | $0 | |
| (+) Land Homesite Value: | + | $0 | |
| (+) Land Non-Homesite Value: | + | $0 | |
| (+) Curr Use (HS): | + | $0 | $0 |
| (+) Curr Use (NHS): | + | $330,000 | $6,109 |
| | | -------------------------- | |
| (=) Market Value: | = | $330,000 | |
| (–) Productivity Loss: | – | $323,891 | |
| | | -------------------------- | |
| (=) Subtotal: | = | $6,109 | |
| (+) Senior Appraised Value: | + | $0 | |
| (+) Non-Senior Appraised Value: | + | $6,109 | |
| | | -------------------------- | |
| (=) Total Appraised Value: | = | $6,109 | |
| (–) Senior Exemption Loss: | – | $0 | |
| (–) Exemption Loss: | – | $0 | |
| | | -------------------------- | |
| (=) Taxable Value: | = | $6,109 | |
Taxing Jurisdiction
| Owner: | NORTH CAMANO LLC | | |
| % Ownership: | 100.0000000000% | | |
| Total Value: | $330,000 | | |
| Tax Area: | 599 - APPRAISER-Stan/Cam Schl Dist, Special Dist, vacant & 50 acres or less |
| CF | Conservation Futures | 0.0316035091 | $6,109 | $6,109 | $0.19 | | |
| EMS1 | Fire & Rescue Dist #1 Camano GEN (EMS) | 0.3677864386 | $6,109 | $6,109 | $2.25 | | |
| CE | County Current Expense | 0.3708482477 | $6,109 | $6,109 | $2.27 | | |
| CR | County Roads | 0.4584763726 | $6,109 | $6,109 | $2.80 | | |
| LCIB | Library Sno-Isle BOND (Camano Island) | 0.0396325772 | $6,109 | $6,109 | $0.24 | | |
| LIB | Library Sno-Isle GEN | 0.3153421757 | $6,109 | $6,109 | $1.93 | | |
| SCH205_401 | School 205-401 Enrichment | 1.2698420524 | $6,109 | $6,109 | $7.76 | | |
| SCH205BOND | School 205-401 BOND | 0.9396497583 | $6,109 | $6,109 | $5.74 | | |
| ST | State School | 1.3035497053 | $6,109 | $6,109 | $7.96 | | |
| ST2 | State School Part 2 | 0.8169543533 | $6,109 | $6,109 | $4.99 | | |
| | Total Tax Rate: | 5.9136851902 | | | | | |
| | | | | Taxes w/Current Exemptions: | $36.13 | | |
| | | | | Taxes w/o Exemptions: | $36.13 | | |
Improvement / Building
Sketch
| No sketches available for this property. |
Property Image
Land
| 1 | 35 | AC (10.00-30.99) | 10.0000 | 0.00 | 0.00 | 0.00 | 1.00 | $330,000 | $6,109 |
Roll Value History
| 2026 | N/A | N/A | N/A | N/A | N/A |
| 2025 | $0 | $330,000 | $6,109 | $6,109 | $6,109 |
| 2024 | $0 | $320,000 | $6,109 | $6,109 | $6,109 |
| 2023 | $0 | $300,000 | $6,109 | $6,109 | $6,109 |
| 2022 | $0 | $300,000 | $6,109 | $6,109 | $6,109 |
| 2021 | $0 | $170,000 | $6,109 | $6,109 | $6,109 |
| 2020 | $0 | $160,000 | $6,109 | $6,109 | $6,109 |
| 2019 | $0 | $160,000 | $6,109 | $6,109 | $6,109 |
| 2018 | $0 | $150,000 | $6,109 | $6,109 | $6,109 |
| 2017 | $0 | $140,000 | $6,109 | $6,109 | $6,109 |
| 2016 | $0 | $140,000 | $6,109 | $6,109 | $6,109 |
| 2015 | $0 | $240,000 | $6,109 | $6,109 | $6,109 |
| 2014 | $0 | $240,000 | $6,109 | $6,109 | $6,109 |
| 2013 | $0 | $240,000 | $6,109 | $6,109 | $6,109 |
| 2012 | $0 | $240,000 | $6,109 | $6,109 | $6,109 |
| 2011 | $0 | $240,000 | $6,109 | $6,109 | $6,109 |
| 2010 | $0 | $240,000 | $6,109 | $6,109 | $6,109 |
| 2009 | $0 | $300,000 | $6,109 | $6,109 | $6,109 |
| 2008 | $0 | $350,000 | $6,109 | $6,109 | $6,109 |
| 2007 | $0 | $320,000 | $6,109 | $6,109 | $6,109 |
Deed and Sales History
| 1 | 03/12/2021 | QCD | Quit Claim Deed | 695 ARROWHEAD LLC | NORTH CAMANO LLC | | | $0.00 | 49574 | 4526539 |
| 2 | 07/26/2020 | WD | Warranty Deed | SPARKS, KAREN | 695 ARROWHEAD LLC | | | $1,135,000.00 | 43985 | 4492441 |
| 3 | 12/27/2016 | WD | Warranty Deed | HERITAGE DAL MAR LLC | SPARKS, KAREN | | | $835,000.00 | 27522 | 4414226 |
|   | |
| 4 | 03/04/2011 | QCD | Quit Claim Deed | YUST, STEVEN D | HERITAGE DAL MAR LLC | | | $0.00 | 3924 | 4292632 |
| 5 | 06/18/2010 | PRD | Personal Representatives Deed | YUST, DALE L | YUST, STEVEN D | | | | 1529 | 4275986 |
| 6 | 08/22/2000 | SEG | DNU - Segregation | Unknown | YUST, DALE L | | | $0.00 | 68754 | 0 |
Payout Agreement
| No payout information available.. |