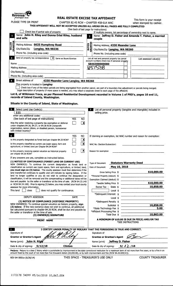
Property
Account |
| Property ID: | 802374 | Abbreviated Legal Description: | W/2 NW SW SW V4 SUR P350 AF#347842 |
| Geographic ID: | R23133-105-0160 | Agent Code: | |
| Type: | Real | | |
| Tax Area: | 319 - APPRAISER-Cpvl Schl Dist, outside Cpvl, vacant & 50 acres or less | Land Use Code | 91 |
| Open Space: | N | DFL | N |
| Historic Property: | N | Remodel Property: | N |
| Multi-Family Redevelopment: | N | | |
| Township: | 31 | Section: | 33 |
| Range: | R2 |
Location |
| Address: | 811 ROYCROFT LN GREENBANK, WA 98253 | Mapsco: | |
| Neighborhood: | Cycle 2 | Map ID: | 530 |
| Neighborhood CD: | 2 |
Owner |
| Name: | BARR, BRIAN | Owner ID: | 286035 |
| Mailing Address: | 4922 GLACIER DR SPRINGFIELD, OR 97478 | % Ownership: | 100.0000000000% |
| | | Exemptions: | |
Taxes and Assessment Details
Values
| (+) Improvement Homesite Value: | + | $0 | |
| (+) Improvement Non-Homesite Value: | + | $0 | |
| (+) Land Homesite Value: | + | $0 | |
| (+) Land Non-Homesite Value: | + | $155,321 | |
| (+) Curr Use (HS): | + | $0 | $0 |
| (+) Curr Use (NHS): | + | $0 | $0 |
| | | -------------------------- | |
| (=) Market Value: | = | $155,321 | |
| (–) Productivity Loss: | – | $0 | |
| | | -------------------------- | |
| (=) Subtotal: | = | $155,321 | |
| (+) Senior Appraised Value: | + | $0 | |
| (+) Non-Senior Appraised Value: | + | $155,321 | |
| | | -------------------------- | |
| (=) Total Appraised Value: | = | $155,321 | |
| (–) Senior Exemption Loss: | – | $0 | |
| (–) Exemption Loss: | – | $0 | |
| | | -------------------------- | |
| (=) Taxable Value: | = | $155,321 | |
Taxing Jurisdiction
| Owner: | BARR, BRIAN | | |
| % Ownership: | 100.0000000000% | | |
| Total Value: | $155,321 | | |
| Tax Area: | 319 - APPRAISER-Cpvl Schl Dist, outside Cpvl, vacant & 50 acres or less |
| CF | Conservation Futures | 0.0316035091 | $155,321 | $155,321 | $4.91 | | |
| CEM2 | Cemetery #2 | 0.0095056933 | $155,321 | $155,321 | $1.48 | | |
| HOBOND | Hospital BOND | 0.1910887512 | $155,321 | $155,321 | $29.68 | | |
| HOGEN | Hospital GEN | 0.3902502903 | $155,321 | $155,321 | $60.61 | | |
| CE | County Current Expense | 0.3708482477 | $155,321 | $155,321 | $57.60 | | |
| CR | County Roads | 0.4584763726 | $155,321 | $155,321 | $71.21 | | |
| ISLANDEMS | Hospital GEN (EMS) | 0.5000000000 | $155,321 | $155,321 | $77.66 | | |
| LIB | Library Sno-Isle GEN | 0.3153421757 | $155,321 | $155,321 | $48.98 | | |
| LIBCAP | Library Sno-Isle BOND (Cap Fac Imp Area) | 0.0543427938 | $155,321 | $155,321 | $8.44 | | |
| POCOUP | Port of Coupeville GEN | 0.1093371703 | $155,321 | $155,321 | $16.98 | | |
| POCOUPIDD | Port of Coupeville IDD | 0.3409740022 | $155,321 | $155,321 | $52.96 | | |
| COUPSDTECH | School 204 CP (TECH) | 0.7545480007 | $155,321 | $155,321 | $117.20 | | |
| SCH204MO | School 204 Enrichment | 0.6716186034 | $155,321 | $155,321 | $104.32 | | |
| ST | State School | 1.3035497053 | $155,321 | $155,321 | $202.47 | | |
| ST2 | State School Part 2 | 0.8169543533 | $155,321 | $155,321 | $126.89 | | |
| | Total Tax Rate: | 6.3184396689 | | | | | |
| | | | | Taxes w/Current Exemptions: | $981.39 | | |
| | | | | Taxes w/o Exemptions: | $981.39 | | |
Improvement / Building
Sketch
| No sketches available for this property. |
Property Image
Land
| 1 | 32 | AC (03.01-09.99) | 4.8500 | 0.00 | 0.00 | 0.00 | 1.00 | $155,321 | $0 |
Roll Value History
| 2026 | N/A | N/A | N/A | N/A | N/A |
| 2025 | $0 | $155,321 | $0 | $155,321 | $155,321 |
| 2024 | $0 | $140,000 | $0 | $140,000 | $140,000 |
| 2023 | $0 | $140,000 | $0 | $140,000 | $140,000 |
| 2022 | $0 | $130,000 | $0 | $130,000 | $130,000 |
| 2021 | $0 | $130,000 | $0 | $130,000 | $130,000 |
| 2020 | $0 | $120,000 | $0 | $120,000 | $120,000 |
| 2019 | $0 | $100,000 | $0 | $100,000 | $100,000 |
| 2018 | $0 | $75,000 | $0 | $75,000 | $75,000 |
| 2017 | $0 | $55,000 | $0 | $55,000 | $55,000 |
| 2016 | $0 | $75,000 | $0 | $75,000 | $75,000 |
| 2015 | $0 | $80,000 | $0 | $80,000 | $80,000 |
| 2014 | $0 | $97,000 | $0 | $97,000 | $97,000 |
| 2013 | $0 | $97,000 | $0 | $97,000 | $97,000 |
| 2012 | $0 | $60,000 | $0 | $60,000 | $60,000 |
| 2011 | $0 | $97,000 | $0 | $97,000 | $97,000 |
| 2010 | $0 | $97,000 | $0 | $97,000 | $97,000 |
| 2009 | $0 | $118,825 | $0 | $118,825 | $118,825 |
| 2008 | $0 | $100,570 | $0 | $100,570 | $100,570 |
| 2007 | $0 | $93,370 | $0 | $93,370 | $93,370 |
Deed and Sales History
| 1 | 05/17/2018 | WD | Warranty Deed | GREENBANK ENTERPRISES LLC | BARR, BRIAN | | | $99,900.00 | 35030 | 4448117 |
| 2 | 02/24/2005 | OTHER | Other - Misc. Documents | TRIPLE H & C, | GREENBANK ENTERPRISES LLC, | | | $35,624.00 | 50772 | 4126841 |
| 3 | 08/25/2000 | SEG | DNU - Segregation | Unknown | TRIPLE H & C, | | | $0.00 | 68755 | 347842 |
Payout Agreement
| No payout information available.. |