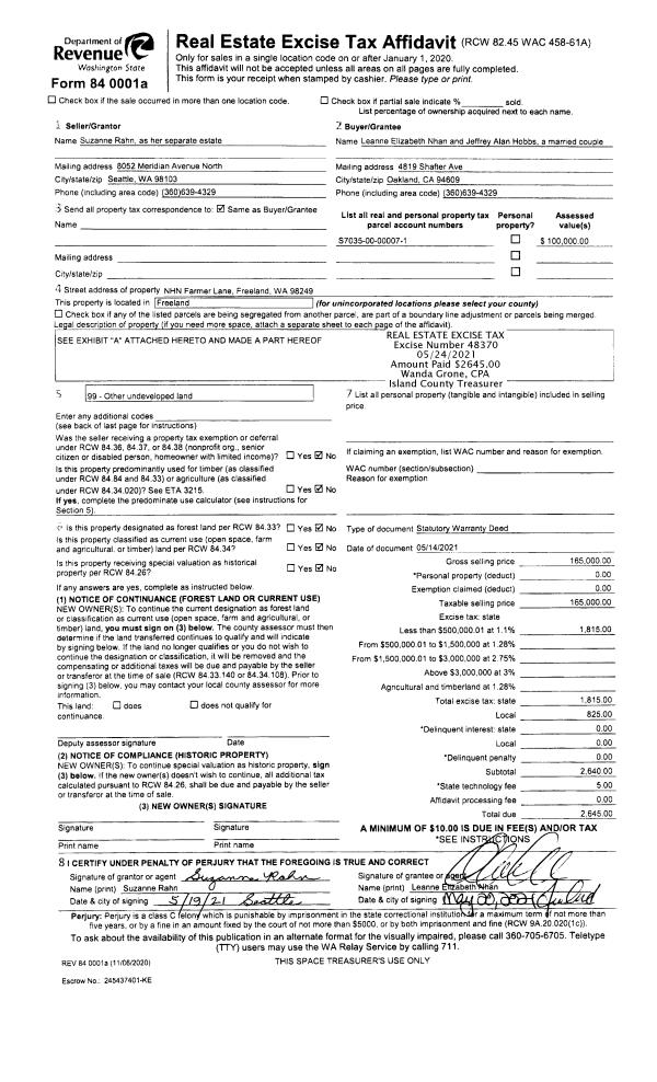
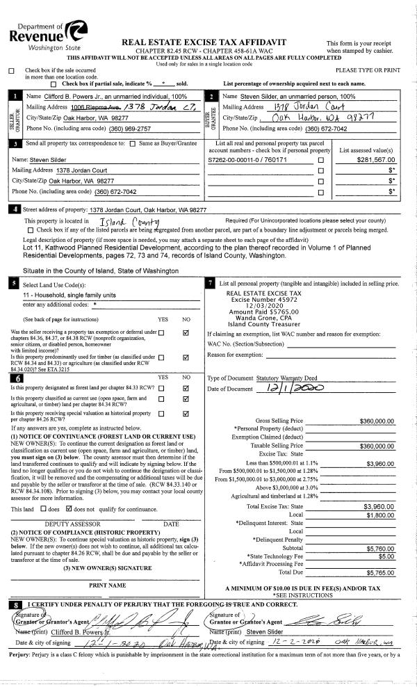
Property
Account |
| Property ID: | 802420 | Abbreviated Legal Description: | IN GL1: BG WLN EXIST 40' RD R/W DESC AF#194102 2200'N OF SLN GL2 SEC 3-33-1E NLY ALG SD RD TP 2300'N OF SLN GL2 W TO ML SWLY ALG SD ML TP W OF TPB E TPB INCL ADJ TIDES |
| Geographic ID: | R13303-491-4000 | Agent Code: | |
| Type: | Real | | |
| Tax Area: | 119 - APPRAISER-OH Schl Dist, outside OH, vacant & 50 acres or less | Land Use Code | 91 |
| Open Space: | N | DFL | N |
| Historic Property: | N | Remodel Property: | N |
| Multi-Family Redevelopment: | N | | |
| Township: | 33 | Section: | 03 |
| Range: | R1 |
Location |
| Address: | OAK HARBOR, WA 98277 | Mapsco: | |
| Neighborhood: | Cycle 6 | Map ID: | 198 |
| Neighborhood CD: | 6 |
Owner |
| Name: | MOULTON, NATHAN | Owner ID: | 297751 |
| Mailing Address: | CAROLINA FONSECA 8829 37TH AVE SW SEATTLE, WA 98126 | % Ownership: | 100.0000000000% |
| | | Exemptions: | |
Taxes and Assessment Details
Values
| (+) Improvement Homesite Value: | + | $0 | |
| (+) Improvement Non-Homesite Value: | + | $0 | |
| (+) Land Homesite Value: | + | $0 | |
| (+) Land Non-Homesite Value: | + | $490,000 | |
| (+) Curr Use (HS): | + | $0 | $0 |
| (+) Curr Use (NHS): | + | $0 | $0 |
| | | -------------------------- | |
| (=) Market Value: | = | $490,000 | |
| (–) Productivity Loss: | – | $0 | |
| | | -------------------------- | |
| (=) Subtotal: | = | $490,000 | |
| (+) Senior Appraised Value: | + | $0 | |
| (+) Non-Senior Appraised Value: | + | $490,000 | |
| | | -------------------------- | |
| (=) Total Appraised Value: | = | $490,000 | |
| (–) Senior Exemption Loss: | – | $0 | |
| (–) Exemption Loss: | – | $0 | |
| | | -------------------------- | |
| (=) Taxable Value: | = | $490,000 | |
Taxing Jurisdiction
| Owner: | MOULTON, NATHAN | | |
| % Ownership: | 100.0000000000% | | |
| Total Value: | $490,000 | | |
| Tax Area: | 119 - APPRAISER-OH Schl Dist, outside OH, vacant & 50 acres or less |
| CF | Conservation Futures | 0.0316035091 | $490,000 | $490,000 | $15.49 | | |
| CEM1 | Cemetery #1 | 0.0040320932 | $490,000 | $490,000 | $1.98 | | |
| HOBOND | Hospital BOND | 0.1910887512 | $490,000 | $490,000 | $93.63 | | |
| HOGEN | Hospital GEN | 0.3902502903 | $490,000 | $490,000 | $191.22 | | |
| CE | County Current Expense | 0.3708482477 | $490,000 | $490,000 | $181.72 | | |
| CR | County Roads | 0.4584763726 | $490,000 | $490,000 | $224.65 | | |
| ISLANDEMS | Hospital GEN (EMS) | 0.5000000000 | $490,000 | $490,000 | $245.00 | | |
| LIB | Library Sno-Isle GEN | 0.3153421757 | $490,000 | $490,000 | $154.52 | | |
| NWHIDPRMT | P & R N Whidbey GEN | 0.2004466701 | $490,000 | $490,000 | $98.22 | | |
| SCH201MO | School 201 Enrichment | 1.8559231640 | $490,000 | $490,000 | $909.40 | | |
| ST | State School | 1.3035497053 | $490,000 | $490,000 | $638.74 | | |
| ST2 | State School Part 2 | 0.8169543533 | $490,000 | $490,000 | $400.31 | | |
| | Total Tax Rate: | 6.4385153325 | | | | | |
| | | | | Taxes w/Current Exemptions: | $3,154.88 | | |
| | | | | Taxes w/o Exemptions: | $3,154.88 | | |
Improvement / Building
Sketch
| No sketches available for this property. |
Property Image
Land
| 1 | LB | LOW BANK | 0.5600 | 24393.60 | 100.00 | 0.00 | 1.00 | $490,000 | $0 |
Roll Value History
| 2026 | N/A | N/A | N/A | N/A | N/A |
| 2025 | $0 | $490,000 | $0 | $490,000 | $490,000 |
| 2024 | $0 | $465,000 | $0 | $465,000 | $465,000 |
| 2023 | $0 | $450,000 | $0 | $450,000 | $450,000 |
| 2022 | $0 | $450,000 | $0 | $450,000 | $450,000 |
| 2021 | $0 | $300,000 | $0 | $300,000 | $300,000 |
| 2020 | $0 | $300,000 | $0 | $300,000 | $300,000 |
| 2019 | $0 | $300,000 | $0 | $300,000 | $300,000 |
| 2018 | $0 | $300,000 | $0 | $300,000 | $300,000 |
| 2017 | $0 | $300,000 | $0 | $300,000 | $300,000 |
| 2016 | $0 | $300,000 | $0 | $300,000 | $300,000 |
| 2015 | $0 | $250,000 | $0 | $250,000 | $250,000 |
| 2014 | $0 | $250,000 | $0 | $250,000 | $250,000 |
| 2013 | $0 | $312,708 | $0 | $312,708 | $312,708 |
| 2012 | $0 | $312,708 | $0 | $312,708 | $312,708 |
| 2011 | $0 | $312,708 | $0 | $312,708 | $312,708 |
| 2010 | $0 | $312,708 | $0 | $312,708 | $312,708 |
| 2009 | $0 | $348,243 | $0 | $348,243 | $348,243 |
| 2008 | $0 | $319,815 | $0 | $319,815 | $319,815 |
| 2007 | $0 | $319,815 | $0 | $319,815 | $319,815 |
Deed and Sales History
| 1 | 01/13/2021 | BARGSLD | Bargain And Sale Deed | ERNST TTEE, SHERELYN D | MOULTON, NATHAN | | | $435,000.00 | 46584 | 4508234 |
| 2 | 08/24/2020 | QCD | Quit Claim Deed | KEESLING, MAXINE | ERNST TTEE, SHERELYN D | | | $0.00 | 44398 | 4494655 |
| 3 | 09/18/2000 | QCD | Quit Claim Deed | KEESLING ESTATE, JAMES J | KEESLING, MAXINE | | | $0.00 | 4065 | 20018699 |
| 4 | 12/17/1998 | QCD | Quit Claim Deed | Unknown | VALENTA TR, SUSAN L | | | $0.00 | 4064 | 20018700 |
| 5 | 01/01/1900 | OTHER | Other - Misc. Documents | Unknown | KEESLING ESTATE, JAMES J | | | $0.00 | 83842 | 0 |
Payout Agreement
| No payout information available.. |