Property
Account |
| Property ID: | 802472 | Abbreviated Legal Description: | SEASCAPE AT ELGER BAY - PRD LOT 8 |
| Geographic ID: | S8133-00-00008-0 | Agent Code: | |
| Type: | Real | | |
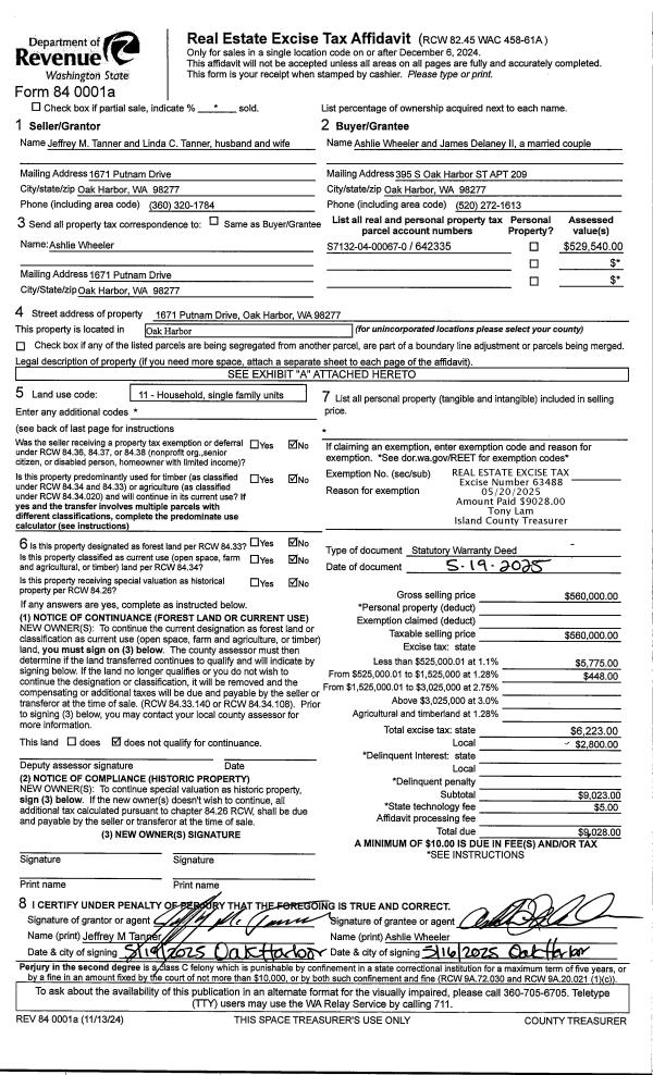
| Tax Area: | 540 - APPRAISER-Stan/Cam Schl Dist, Special Dist, improved & less than 1 acre | Land Use Code | 11 |
| Open Space: | N | DFL | N |
| Historic Property: | N | Remodel Property: | N |
| Multi-Family Redevelopment: | N | | |
| Township: | | Section: | |
| Range: | |
Location |
| Address: | 289 RICHMOND LN CAMANO ISLAND, WA 98282 | Mapsco: | |
| Neighborhood: | Cycle 5 | Map ID: | 943 |
| Neighborhood CD: | 5 |
Owner |
| Name: | ANCICH, MARY B | Owner ID: | 313912 |
| Mailing Address: | 8040 39TH AVE NE SEATTLE, WA 98115 | % Ownership: | 100.0000000000% |
| | | Exemptions: | |
Taxes and Assessment Details
Values
| (+) Improvement Homesite Value: | + | $0 | |
| (+) Improvement Non-Homesite Value: | + | $735,010 | |
| (+) Land Homesite Value: | + | $0 | |
| (+) Land Non-Homesite Value: | + | $290,000 | |
| (+) Curr Use (HS): | + | $0 | $0 |
| (+) Curr Use (NHS): | + | $0 | $0 |
| | | -------------------------- | |
| (=) Market Value: | = | $1,025,010 | |
| (–) Productivity Loss: | – | $0 | |
| | | -------------------------- | |
| (=) Subtotal: | = | $1,025,010 | |
| (+) Senior Appraised Value: | + | $0 | |
| (+) Non-Senior Appraised Value: | + | $1,025,010 | |
| | | -------------------------- | |
| (=) Total Appraised Value: | = | $1,025,010 | |
| (–) Senior Exemption Loss: | – | $0 | |
| (–) Exemption Loss: | – | $0 | |
| | | -------------------------- | |
| (=) Taxable Value: | = | $1,025,010 | |
Taxing Jurisdiction
| Owner: | ANCICH, MARY B | | |
| % Ownership: | 100.0000000000% | | |
| Total Value: | $1,025,010 | | |
| Tax Area: | 540 - APPRAISER-Stan/Cam Schl Dist, Special Dist, improved & less than 1 acre |
| CF | Conservation Futures | 0.0316035091 | $1,025,010 | $1,025,010 | $32.39 | | |
| EMS1 | Fire & Rescue Dist #1 Camano GEN (EMS) | 0.3677864386 | $1,025,010 | $1,025,010 | $376.98 | | |
| FIRE1 | Fire & Rescue Dist #1 Camano GEN | 1.2502910536 | $1,025,010 | $1,025,010 | $1,281.56 | | |
| FIRE1BOND | Fire & Rescue Dist #1 Camano BOND | 0.1570001679 | $1,025,010 | $1,025,010 | $160.93 | | |
| CE | County Current Expense | 0.3708482477 | $1,025,010 | $1,025,010 | $380.12 | | |
| CR | County Roads | 0.4584763726 | $1,025,010 | $1,025,010 | $469.94 | | |
| LCIB | Library Sno-Isle BOND (Camano Island) | 0.0396325772 | $1,025,010 | $1,025,010 | $40.62 | | |
| LIB | Library Sno-Isle GEN | 0.3153421757 | $1,025,010 | $1,025,010 | $323.23 | | |
| SCH205_401 | School 205-401 Enrichment | 1.2698420524 | $1,025,010 | $1,025,010 | $1,301.60 | | |
| SCH205BOND | School 205-401 BOND | 0.9396497583 | $1,025,010 | $1,025,010 | $963.15 | | |
| ST | State School | 1.3035497053 | $1,025,010 | $1,025,010 | $1,336.15 | | |
| ST2 | State School Part 2 | 0.8169543533 | $1,025,010 | $1,025,010 | $837.39 | | |
| | Total Tax Rate: | 7.3209764117 | | | | | |
| | | | | Taxes w/Current Exemptions: | $7,504.06 | | |
| | | | | Taxes w/o Exemptions: | $7,504.06 | | |
Improvement / Building
| Improvement #1: | RESIDENTIAL | State Code: | Y | 2940.9 sqft | Value: | $735,010 |
| Bathrooms: | 3.5 | Bedrooms: | 3 | | Ceiling: | DRY WALL SPRAYED | Exterior Wall/Cover: | CEMENT FIBER | | Floor Covering: | HARDWOOD 100% | Floor Structure: | WOOD W/SUBFLOOR | | Foundation: | CONCRETE | Heating: | FHA GAS | | Interior Finish: | DRYWALL PAINT | Plumbing Fixture Cnt: | 23 | | Roof Slope: | 8" IN 12" | Roof Structure/Cover: | CJ ASPHALT |
|
| | Type | Description | Class CD | Sub Class CD | Year Built | Area |
| | BAS | BASE/MAIN FLOOR | 5 | 0 | 2000 | 2525.9 |
| | OP1 | OPEN PORCH SLAB | 5 | 0 | 2000 | 1045.3 |
| | BIG | BUILT IN GARAGE | 5 | 0 | 2000 | 564.8 |
| | OWP | OPEN WOOD PORCH W/STEPS | 5 | 0 | 2000 | 94.4 |
| | OWC | OPEN WOOD PORCH W/STEPS/ROOF/C | 5 | 0 | 2000 | 462.5 |
| | UPH | HALF STORY | 5 | 0 | 2000 | 415.0 |
| | OP4 | OPEN PORCH W/CEILING-ROOF | 5 | 0 | 2000 | 184.0 |
Sketch
| No sketches available for this property. |
Property Image
Land
| 1 | 16 | AC (00.51-01.00) | 0.0000 | 0.00 | 0.00 | 0.00 | 1.00 | $290,000 | $0 |
Roll Value History
| 2026 | N/A | N/A | N/A | N/A | N/A |
| 2025 | $735,010 | $290,000 | $0 | $1,025,010 | $1,025,010 |
| 2024 | $669,482 | $270,000 | $0 | $939,482 | $939,482 |
| 2023 | $677,526 | $270,000 | $0 | $947,526 | $947,526 |
| 2022 | $620,782 | $260,000 | $0 | $880,782 | $880,782 |
| 2021 | $505,221 | $200,000 | $0 | $705,221 | $705,221 |
| 2020 | $492,535 | $170,000 | $0 | $662,535 | $662,535 |
| 2019 | $406,387 | $210,000 | $0 | $616,387 | $616,387 |
| 2018 | $407,606 | $200,000 | $0 | $607,606 | $607,606 |
| 2017 | $410,001 | $150,000 | $0 | $560,001 | $560,001 |
| 2016 | $414,883 | $150,000 | $0 | $564,883 | $564,883 |
| 2015 | $410,958 | $150,000 | $0 | $560,958 | $560,958 |
| 2014 | $415,836 | $150,000 | $0 | $565,836 | $565,836 |
| 2013 | $420,714 | $138,384 | $0 | $559,098 | $559,098 |
| 2012 | $425,590 | $138,384 | $0 | $563,974 | $563,974 |
| 2011 | $430,469 | $172,980 | $0 | $603,449 | $603,449 |
| 2010 | $436,904 | $172,980 | $0 | $609,884 | $609,884 |
| 2009 | $455,630 | $201,000 | $0 | $656,630 | $656,630 |
| 2008 | $461,049 | $201,000 | $0 | $662,049 | $662,049 |
| 2007 | $417,479 | $245,186 | $0 | $662,665 | $662,665 |
Deed and Sales History
| 1 | 09/17/2024 | WD | Warranty Deed | HANSON, RUSSELL S | ANCICH, MARY B | | | $1,100,000.00 | 61292 | 4577190 |
| 2 | 06/28/2004 | WD | Warranty Deed | HOLDER, WILLIAM L | HANSON, RUSSELL S | | | $578,000.00 | 42924 | 4105485 |
| 3 | 02/22/2001 | WD | Warranty Deed | KIM NESJE CONST INC, | HOLDER, WILLIAM L | | | $369,950.00 | 10594 | 20026118 |
| 4 | 06/22/2000 | WD | Warranty Deed | SECOND CHANCE, | KIM NESJE CONST INC, | | | $82,500.00 | 2422 | 20011538 |
| 5 | 01/01/1900 | OTHER | Other - Misc. Documents | Unknown | SECOND CHANCE, | | | $0.00 | 0 | 0 |
Payout Agreement
| No payout information available.. |