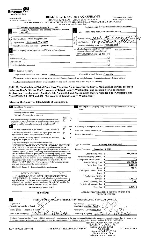
Property
Account |
| Property ID: | 802477 | Abbreviated Legal Description: | SEASCAPE AT ELGER BAY - PRD LOT 13 |
| Geographic ID: | S8133-00-00013-0 | Agent Code: | |
| Type: | Real | | |
| Tax Area: | 540 - APPRAISER-Stan/Cam Schl Dist, Special Dist, improved & less than 1 acre | Land Use Code | 11 |
| Open Space: | N | DFL | N |
| Historic Property: | N | Remodel Property: | N |
| Multi-Family Redevelopment: | N | | |
| Township: | | Section: | |
| Range: | |
Location |
| Address: | 265 SUKYMA LN CAMANO ISLAND, WA 98282 | Mapsco: | |
| Neighborhood: | Cycle 5 | Map ID: | 943 |
| Neighborhood CD: | 5 |
Owner |
| Name: | HEIDER TTEE, FRANCIS J | Owner ID: | 288661 |
| Mailing Address: | DONNA C HEIDER, TTEE 265 SUKYMA LANE CAMANO ISLAND, WA 98282 | % Ownership: | 100.0000000000% |
| | | Exemptions: | SNR/DSBL |
Taxes and Assessment Details
Values
| (+) Improvement Homesite Value: | + | $471,278 | |
| (+) Improvement Non-Homesite Value: | + | $0 | |
| (+) Land Homesite Value: | + | $290,000 | |
| (+) Land Non-Homesite Value: | + | $0 | |
| (+) Curr Use (HS): | + | $0 | $0 |
| (+) Curr Use (NHS): | + | $0 | $0 |
| | | -------------------------- | |
| (=) Market Value: | = | $761,278 | |
| (–) Productivity Loss: | – | $0 | |
| | | -------------------------- | |
| (=) Subtotal: | = | $761,278 | |
| (+) Senior Appraised Value: | + | $752,205 | |
| (+) Non-Senior Appraised Value: | + | $0 | |
| | | -------------------------- | |
| (=) Total Appraised Value: | = | $752,205 | |
| (–) Senior Exemption Loss: | – | $451,323 | |
| (–) Exemption Loss: | – | $0 | |
| | | -------------------------- | |
| (=) Taxable Value: | = | $300,882 | |
Taxing Jurisdiction
| Owner: | HEIDER TTEE, FRANCIS J | | |
| % Ownership: | 100.0000000000% | | |
| Total Value: | $761,278 | | |
| Tax Area: | 540 - APPRAISER-Stan/Cam Schl Dist, Special Dist, improved & less than 1 acre |
| CF | Conservation Futures | 0.0316035091 | $761,278 | $300,882 | $9.51 | | |
| EMS1 | Fire & Rescue Dist #1 Camano GEN (EMS) | 0.3677864386 | $761,278 | $300,882 | $110.66 | | |
| FIRE1 | Fire & Rescue Dist #1 Camano GEN | 1.2502910536 | $761,278 | $300,882 | $376.19 | | |
| FIRE1BOND | Fire & Rescue Dist #1 Camano BOND | 0.0000000000 | $761,278 | $0 | $0.00 | | |
| CE | County Current Expense | 0.3708482477 | $761,278 | $300,882 | $111.58 | | |
| CR | County Roads | 0.4584763726 | $761,278 | $300,882 | $137.95 | | |
| LCIB | Library Sno-Isle BOND (Camano Island) | 0.0000000000 | $761,278 | $0 | $0.00 | | |
| LIB | Library Sno-Isle GEN | 0.3153421757 | $761,278 | $300,882 | $94.88 | | |
| SCH205_401 | School 205-401 Enrichment | 0.0000000000 | $761,278 | $0 | $0.00 | | |
| SCH205BOND | School 205-401 BOND | 0.0000000000 | $761,278 | $0 | $0.00 | | |
| ST | State School | 1.3035497053 | $761,278 | $300,882 | $392.21 | | |
| ST2 | State School Part 2 | 0.0000000000 | $761,278 | $0 | $0.00 | | |
| | Total Tax Rate: | 4.0978975026 | | | | | |
| | | | | Taxes w/Current Exemptions: | $1,232.98 | | |
| | | | | Taxes w/o Exemptions: | $5,573.29 | | |
Improvement / Building
| Improvement #1: | RESIDENTIAL | State Code: | Y | 2571.7 sqft | Value: | $471,278 |
| Bathrooms: | 3 | Bedrooms: | 4 | | Ceiling: | DRY WALL SPRAYED | Exterior Wall/Cover: | CEMENT FIBER | | Floor Covering: | HARDWOOD/CARP 20-80 | Floor Structure: | WOOD W/SUBFLOOR | | Foundation: | CONCRETE | Heating: | FHA GAS | | Interior Finish: | DRYWALL PAINT | Plumbing Fixture Cnt: | 13 | | Roof Slope: | 8" IN 12" | Roof Structure/Cover: | CJ ASPHALT |
|
| | Type | Description | Class CD | Sub Class CD | Year Built | Area |
| | BAS | BASE/MAIN FLOOR | 4 | 0 | 2001 | 1695.9 |
| | DWN | DOWNSTAIRS LIVING AREA | 4 | 0 | 2001 | 875.8 |
| | AGR | ATTACHED GARAGE | 4 | 0 | 2001 | 658.8 |
| | OWP | OPEN WOOD PORCH W/STEPS | 4 | 0 | 2001 | 568.3 |
Sketch
Property Image
Land
| 1 | 16 | AC (00.51-01.00) | 0.6900 | 30056.40 | 0.00 | 0.00 | 1.00 | $290,000 | $0 |
Roll Value History
| 2026 | N/A | N/A | N/A | N/A | N/A |
| 2025 | $471,278 | $290,000 | $0 | $761,278 | $300,882 |
| 2024 | $476,742 | $270,000 | $0 | $746,742 | $298,697 |
| 2023 | $482,205 | $270,000 | $0 | $752,205 | $300,882 |
| 2022 | $441,598 | $260,000 | $0 | $701,598 | $701,598 |
| 2021 | $379,698 | $200,000 | $0 | $579,698 | $579,698 |
| 2020 | $369,975 | $170,000 | $0 | $539,975 | $539,975 |
| 2019 | $276,850 | $210,000 | $0 | $486,850 | $486,850 |
| 2018 | $232,154 | $200,000 | $0 | $432,154 | $432,154 |
| 2017 | $233,379 | $150,000 | $0 | $383,379 | $383,379 |
| 2016 | $214,335 | $150,000 | $0 | $364,335 | $364,335 |
| 2015 | $207,327 | $150,000 | $0 | $357,327 | $357,327 |
| 2014 | $209,737 | $150,000 | $0 | $359,737 | $359,737 |
| 2013 | $212,146 | $138,384 | $0 | $350,530 | $350,530 |
| 2012 | $214,556 | $138,384 | $0 | $352,940 | $352,940 |
| 2011 | $216,965 | $172,980 | $0 | $389,945 | $389,945 |
| 2010 | $224,060 | $172,980 | $0 | $397,040 | $397,040 |
| 2009 | $233,334 | $201,000 | $0 | $434,334 | $434,334 |
| 2008 | $233,581 | $201,000 | $0 | $434,581 | $434,581 |
| 2007 | $205,511 | $231,747 | $0 | $437,258 | $437,258 |
Deed and Sales History
| 1 | 01/29/2019 | WD | Warranty Deed | MACLAGGAN, CHRISTOPHER | HEIDER TTEE, FRANCIS J | | | $520,000.00 | 37501 | 4458761 |
| 2 | 01/20/2017 | WD | Warranty Deed | JOHNSON, AMY M | MACLAGGAN, CHRISTOPHER | | | $400,000.00 | 27842 | 4415789 |
| 3 | 05/12/2016 | DECREE | Divorce Decree/Legal Separation | JOHNSON, CHRISTOPHER K | JOHNSON, AMY M | | | | 87376 | |
| 4 | 10/23/2007 | OTHER | Other - Misc. Documents | JOHNSON, CHRISTOPHER K | JOHNSON, CHRISTOPHER K | | | $0.00 | 80423 | 0 |
| 5 | 02/28/2007 | WD | Warranty Deed | MC CLURKEN, SCOTT M | JOHNSON, CHRISTOPHER K | | | $465,000.00 | 70706 | 4195413 |
| 6 | 02/20/2002 | WD | Warranty Deed | GARCEA, JEFFREY A | MC CLURKEN, SCOTT M | | | $249,000.00 | 20704 | 4012248 |
| 7 | 09/27/2000 | WD | Warranty Deed | SECOND CHANCE, | GARCEA, JEFFREY A | | | $59,000.00 | 3759 | 20017214 |
Payout Agreement
| No payout information available.. |