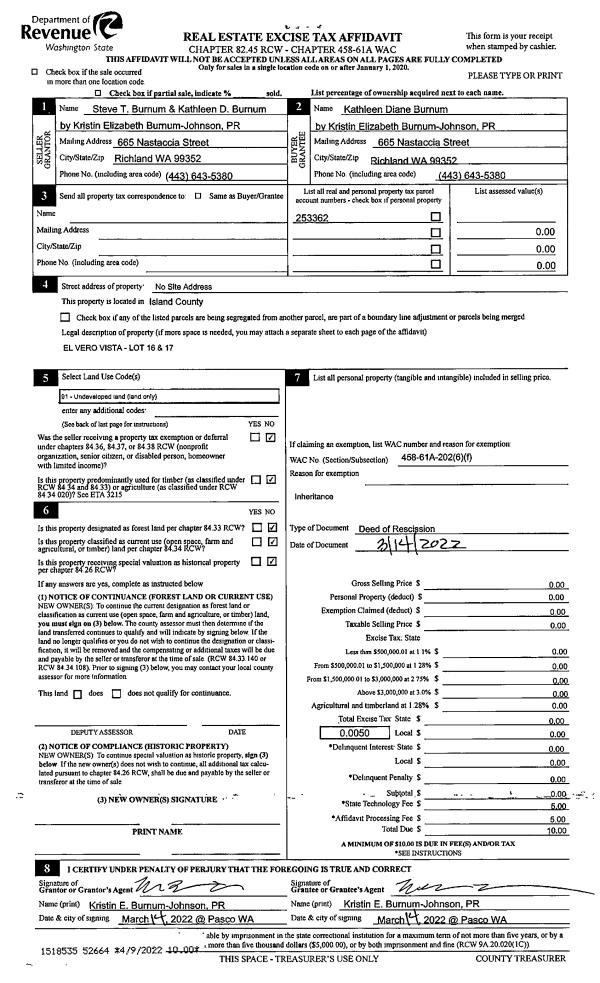
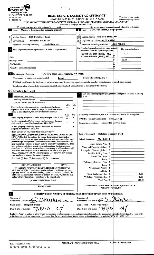
Property
Account |
| Property ID: | 802486 | Abbreviated Legal Description: | SEASCAPE AT ELGER BAY - PRD TRACT C WETLAND CONSERVATION EZ AF#99021582 |
| Geographic ID: | S8133-00-0000C-0 | Agent Code: | |
| Type: | Real | | |
| Tax Area: | 549 - APPRAISER-Stan/Cam Schl Dist, Special Dist, vacant & 50 acres or less | Land Use Code | 99 |
| Open Space: | N | DFL | N |
| Historic Property: | N | Remodel Property: | N |
| Multi-Family Redevelopment: | N | | |
| Township: | | Section: | |
| Range: | |
Location |
| Address: | | Mapsco: | |
| Neighborhood: | Cycle 5 | Map ID: | 943 |
| Neighborhood CD: | 5 |
Owner |
| Name: | WHIDBEY CAMANO LAND TRUST | Owner ID: | 197700 |
| Mailing Address: | 765 WONN RD SUITE C201 GREENBANK, WA 98253-6423 | % Ownership: | 100.0000000000% |
| | | Exemptions: | EX |
Taxes and Assessment Details
Values
| (+) Improvement Homesite Value: | + | $0 | |
| (+) Improvement Non-Homesite Value: | + | $0 | |
| (+) Land Homesite Value: | + | $0 | |
| (+) Land Non-Homesite Value: | + | $450 | |
| (+) Curr Use (HS): | + | $0 | $0 |
| (+) Curr Use (NHS): | + | $0 | $0 |
| | | -------------------------- | |
| (=) Market Value: | = | $450 | |
| (–) Productivity Loss: | – | $0 | |
| | | -------------------------- | |
| (=) Subtotal: | = | $450 | |
| (+) Senior Appraised Value: | + | $0 | |
| (+) Non-Senior Appraised Value: | + | $450 | |
| | | -------------------------- | |
| (=) Total Appraised Value: | = | $450 | |
| (–) Senior Exemption Loss: | – | $0 | |
| (–) Exemption Loss: | – | $450 | |
| | | -------------------------- | |
| (=) Taxable Value: | = | $0 | |
Taxing Jurisdiction
| Owner: | WHIDBEY CAMANO LAND TRUST | | |
| % Ownership: | 100.0000000000% | | |
| Total Value: | $450 | | |
| Tax Area: | 549 - APPRAISER-Stan/Cam Schl Dist, Special Dist, vacant & 50 acres or less |
| CF | Conservation Futures | 0.0316035091 | $450 | $0 | $0.00 | | |
| EMS1 | Fire & Rescue Dist #1 Camano GEN (EMS) | 0.3677864386 | $450 | $0 | $0.00 | | |
| CE | County Current Expense | 0.3708482477 | $450 | $0 | $0.00 | | |
| CR | County Roads | 0.4584763726 | $450 | $0 | $0.00 | | |
| LCIB | Library Sno-Isle BOND (Camano Island) | 0.0396325772 | $450 | $0 | $0.00 | | |
| LIB | Library Sno-Isle GEN | 0.3153421757 | $450 | $0 | $0.00 | | |
| SCH205_401 | School 205-401 Enrichment | 1.2698420524 | $450 | $0 | $0.00 | | |
| SCH205BOND | School 205-401 BOND | 0.9396497583 | $450 | $0 | $0.00 | | |
| ST | State School | 1.3035497053 | $450 | $0 | $0.00 | | |
| ST2 | State School Part 2 | 0.8169543533 | $450 | $0 | $0.00 | | |
| | Total Tax Rate: | 5.9136851902 | | | | | |
| | | | | Taxes w/Current Exemptions: | $0.00 | | |
| | | | | Taxes w/o Exemptions: | $2.67 | | |
Improvement / Building
Sketch
| No sketches available for this property. |
Property Image
Land
| 1 | 53 | CRITICAL AREAS | 33.3100 | 0.00 | 0.00 | 0.00 | 1.00 | $450 | $0 |
Roll Value History
| 2026 | N/A | N/A | N/A | N/A | N/A |
| 2025 | $0 | $450 | $0 | $450 | $0 |
| 2024 | $0 | $99,930 | $0 | $99,930 | $0 |
| 2023 | $0 | $99,930 | $0 | $99,930 | $0 |
| 2022 | $0 | $99,930 | $0 | $99,930 | $0 |
| 2021 | $0 | $450 | $0 | $450 | $0 |
| 2020 | $0 | $450 | $0 | $450 | $0 |
| 2019 | $0 | $450 | $0 | $450 | $0 |
| 2018 | $0 | $450 | $0 | $450 | $0 |
| 2017 | $0 | $450 | $0 | $450 | $0 |
| 2016 | $0 | $450 | $450 | $450 | $450 |
| 2015 | $0 | $13,324 | $4,413 | $4,413 | $4,413 |
| 2014 | $0 | $13,324 | $4,413 | $4,413 | $4,413 |
| 2013 | $0 | $13,324 | $4,413 | $4,413 | $4,413 |
| 2012 | $0 | $13,324 | $4,413 | $4,413 | $4,413 |
| 2011 | $0 | $13,324 | $4,413 | $4,413 | $4,413 |
| 2010 | $0 | $13,324 | $4,413 | $4,413 | $4,413 |
| 2009 | $0 | $13,324 | $4,413 | $4,413 | $4,413 |
| 2008 | $0 | $13,324 | $4,413 | $4,413 | $4,413 |
| 2007 | $0 | $13,324 | $4,413 | $4,413 | $4,413 |
Deed and Sales History
| 1 | 06/26/2018 | QCD | Quit Claim Deed | SECOND CHANCE | WHIDBEY CAMANO LAND TRUST | | | $0.00 | 34837 | 4447336 |
Payout Agreement
| No payout information available.. |