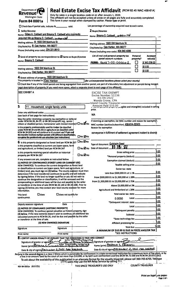
Property
Account |
| Property ID: | 802509 | Abbreviated Legal Description: | S/2 N/2 NW NE |
| Geographic ID: | R33023-477-3270 | Agent Code: | |
| Type: | Real | | |
| Tax Area: | 542 - APPRAISER-Stan/Cam Schl Dist, Special Dist, improved, greater than 1 acre | Land Use Code | 88 |
| Open Space: | N | DFL | Y |
| Historic Property: | N | Remodel Property: | N |
| Multi-Family Redevelopment: | N | | |
| Township: | 30 | Section: | 23 |
| Range: | R3 |
Location |
| Address: | 1895 GARRISON RD CAMANO ISLAND, WA 98282 | Mapsco: | |
| Neighborhood: | 58SofTamarackAC | Map ID: | 885 |
| Neighborhood CD: | 58RstamAC |
Owner |
| Name: | THE TRUST NO 3270 | Owner ID: | 196173 |
| Mailing Address: | C/O 16821 SMOKEY PT. BLVD, #237 ARLINGTON, WA 98223 | % Ownership: | 100.0000000000% |
| | | Exemptions: | |
Taxes and Assessment Details
Values
| (+) Improvement Homesite Value: | + | $0 | |
| (+) Improvement Non-Homesite Value: | + | $226,451 | |
| (+) Land Homesite Value: | + | $0 | |
| (+) Land Non-Homesite Value: | + | $253,334 | |
| (+) Curr Use (HS): | + | $0 | $0 |
| (+) Curr Use (NHS): | + | $116,666 | $1,346 |
| | | -------------------------- | |
| (=) Market Value: | = | $596,451 | |
| (–) Productivity Loss: | – | $115,320 | |
| | | -------------------------- | |
| (=) Subtotal: | = | $481,131 | |
| (+) Senior Appraised Value: | + | $0 | |
| (+) Non-Senior Appraised Value: | + | $481,131 | |
| | | -------------------------- | |
| (=) Total Appraised Value: | = | $481,131 | |
| (–) Senior Exemption Loss: | – | $0 | |
| (–) Exemption Loss: | – | $0 | |
| | | -------------------------- | |
| (=) Taxable Value: | = | $481,131 | |
Taxing Jurisdiction
| Owner: | THE TRUST NO 3270 | | |
| % Ownership: | 100.0000000000% | | |
| Total Value: | $596,451 | | |
| Tax Area: | 542 - APPRAISER-Stan/Cam Schl Dist, Special Dist, improved, greater than 1 acre |
| CF | Conservation Futures | 0.0316035091 | $481,131 | $481,131 | $15.21 | | |
| EMS1 | Fire & Rescue Dist #1 Camano GEN (EMS) | 0.3677864386 | $481,131 | $481,131 | $176.95 | | |
| FIRE1 | Fire & Rescue Dist #1 Camano GEN | 1.2502910536 | $481,131 | $481,131 | $601.55 | | |
| FIRE1BOND | Fire & Rescue Dist #1 Camano BOND | 0.1570001679 | $481,131 | $481,131 | $75.54 | | |
| CE | County Current Expense | 0.3708482477 | $481,131 | $481,131 | $178.43 | | |
| CR | County Roads | 0.4584763726 | $481,131 | $481,131 | $220.59 | | |
| LCIB | Library Sno-Isle BOND (Camano Island) | 0.0396325772 | $481,131 | $481,131 | $19.07 | | |
| LIB | Library Sno-Isle GEN | 0.3153421757 | $481,131 | $481,131 | $151.72 | | |
| SCH205_401 | School 205-401 Enrichment | 1.2698420524 | $481,131 | $481,131 | $610.96 | | |
| SCH205BOND | School 205-401 BOND | 0.9396497583 | $481,131 | $481,131 | $452.09 | | |
| ST | State School | 1.3035497053 | $481,131 | $481,131 | $627.18 | | |
| ST2 | State School Part 2 | 0.8169543533 | $481,131 | $481,131 | $393.06 | | |
| | Total Tax Rate: | 7.3209764117 | | | | | |
| | | | | Taxes w/Current Exemptions: | $3,522.35 | | |
| | | | | Taxes w/o Exemptions: | $3,522.35 | | |
Improvement / Building
| Improvement #1: | RESIDENTIAL | State Code: | Y | 652.0 sqft | Value: | $226,451 |
| Bathrooms: | 1 | Bedrooms: | 0 | | Ceiling: | TONGUE & GROOVE | Cooling: | HEAT PUMP/CONV/V | | Exterior Wall/Cover: | SHINGLE | Floor Covering: | HARDWOOD/CARP 60-40 | | Floor Structure: | WOOD W/SUBFLOOR | Foundation: | PEIRS | | Interior Finish: | DRYWALL PAINT | Plumbing Fixture Cnt: | 8 | | Roof Slope: | 18" IN 12" | Roof Structure/Cover: | BEAM ASPHALT |
|
| | Type | Description | Class CD | Sub Class CD | Year Built | Area |
| | BAS | BASE/MAIN FLOOR | 3 | 0 | 2007 | 472.0 |
| | LOF | LOFT | 3 | 0 | 2007 | 180.0 |
| | OWP | OPEN WOOD PORCH W/STEPS | 3 | 0 | 2007 | 39.0 |
| | OWP | OPEN WOOD PORCH W/STEPS | 3 | 0 | 2007 | 24.0 |
| | UTY | STORAGE/UTILITY | 3 | 0 | 2007 | 2304.0 |
| | UTY | STORAGE/UTILITY | 3 | 0 | 2007 | 168.0 |
Sketch
Property Image
Land
| 1 | HS | HOMESITE | 1.0000 | 43560.00 | 0.00 | 0.00 | 1.00 | $250,000 | $0 |
| 2 | 88 | DESIGNATED FOREST | 1.1500 | 50094.00 | 0.00 | 0.00 | 1.00 | $15,333 | $214 |
| 3 | 88 | DESIGNATED FOREST | 7.6000 | 331056.00 | 0.00 | 0.00 | 1.00 | $101,333 | $1,132 |
| 4 | 91 | UNDEVELOPED LAND-METES AND BOUNDS | 0.2500 | 10890.00 | 0.00 | 0.00 | 1.00 | $3,334 | $0 |
Roll Value History
| 2026 | N/A | N/A | N/A | N/A | N/A |
| 2025 | $226,451 | $370,000 | $1,346 | $481,131 | $481,131 |
| 2024 | $228,121 | $340,000 | $1,355 | $482,611 | $482,611 |
| 2023 | $229,792 | $300,000 | $1,300 | $268,592 | $268,592 |
| 2022 | $216,838 | $290,000 | $1,300 | $254,388 | $254,388 |
| 2021 | $151,593 | $200,000 | $1,300 | $177,893 | $177,893 |
| 2020 | $146,594 | $180,000 | $1,300 | $170,394 | $170,394 |
| 2019 | $103,783 | $210,000 | $1,255 | $131,288 | $131,288 |
| 2018 | $104,063 | $175,000 | $1,238 | $127,176 | $127,176 |
| 2017 | $104,626 | $160,000 | $1,238 | $125,864 | $125,864 |
| 2016 | $105,751 | $130,000 | $1,120 | $123,121 | $123,121 |
| 2015 | $103,526 | $104,000 | $1,120 | $117,646 | $117,646 |
| 2014 | $104,102 | $104,000 | $1,120 | $118,222 | $118,222 |
| 2013 | $104,679 | $75,000 | $1,120 | $115,174 | $115,174 |
| 2012 | $106,773 | $150,000 | $1,120 | $126,643 | $126,643 |
| 2011 | $159,250 | $150,000 | $1,173 | $179,173 | $179,173 |
| 2010 | $106,773 | $150,000 | $1,173 | $126,696 | $126,696 |
| 2009 | $164,636 | $180,000 | $0 | $344,636 | $344,636 |
| 2008 | $165,417 | $180,000 | $0 | $345,417 | $345,417 |
| 2007 | $167,749 | $180,000 | $0 | $347,749 | $347,749 |
Deed and Sales History
| 1 | 10/13/2008 | QCD | Quit Claim Deed | SEAS HOLDING LLC, | THE TRUST NO 3270, | | | $0.00 | 82683 | 4238298 |
| 2 | 11/20/2007 | WD | Warranty Deed | THE SEELOW HEIGHTS TRUST, | SEAS HOLDING LLC, | | | $375,000.00 | 73831 | 4216695 |
| 3 | 01/05/2006 | WD | Warranty Deed | MID OHIO SECURITIES CORP, | THE SEELOW HEIGHTS TRUST, | | | $150,000.00 | 60171 | 4159674 |
| 4 | 10/11/2000 | SEG | DNU - Segregation | Unknown | MID OHIO SECURITIES CORP, | | | $0.00 | 68812 | 0 |
Payout Agreement
| No payout information available.. |