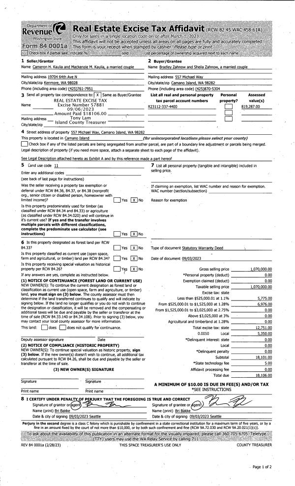
Property
Account |
| Property ID: | 802525 | Abbreviated Legal Description: | SE NW SW |
| Geographic ID: | R23321-163-0980 | Agent Code: | |
| Type: | Real | | |
| Tax Area: | 112 - APPRAISER-OH Schl Dist, outside OH, improved, greater than 1 acre | Land Use Code | 83 |
| Open Space: | Y | DFL | N |
| Historic Property: | N | Remodel Property: | N |
| Multi-Family Redevelopment: | N | | |
| Township: | 33 | Section: | 21 |
| Range: | R2 |
Location |
| Address: | 900 DEVRIES RD OAK HARBOR, WA 98277 | Mapsco: | |
| Neighborhood: | Cycle 6 | Map ID: | 616 |
| Neighborhood CD: | 6 |
Owner |
| Name: | NIENHUIS, BARTHOLOMEW | Owner ID: | 315242 |
| Mailing Address: | KENZEY SEVIERI 900 DEVRIES OAK HARBOR, WA 98277 | % Ownership: | 100.0000000000% |
| | | Exemptions: | |
Taxes and Assessment Details
Values
| (+) Improvement Homesite Value: | + | $0 | |
| (+) Improvement Non-Homesite Value: | + | $369,127 | |
| (+) Land Homesite Value: | + | $0 | |
| (+) Land Non-Homesite Value: | + | $0 | |
| (+) Curr Use (HS): | + | $0 | $0 |
| (+) Curr Use (NHS): | + | $340,000 | $2,429 |
| | | -------------------------- | |
| (=) Market Value: | = | $709,127 | |
| (–) Productivity Loss: | – | $337,571 | |
| | | -------------------------- | |
| (=) Subtotal: | = | $371,556 | |
| (+) Senior Appraised Value: | + | $0 | |
| (+) Non-Senior Appraised Value: | + | $371,556 | |
| | | -------------------------- | |
| (=) Total Appraised Value: | = | $371,556 | |
| (–) Senior Exemption Loss: | – | $0 | |
| (–) Exemption Loss: | – | $0 | |
| | | -------------------------- | |
| (=) Taxable Value: | = | $371,556 | |
Taxing Jurisdiction
| Owner: | NIENHUIS, BARTHOLOMEW | | |
| % Ownership: | 100.0000000000% | | |
| Total Value: | $709,127 | | |
| Tax Area: | 112 - APPRAISER-OH Schl Dist, outside OH, improved, greater than 1 acre |
| CF | Conservation Futures | 0.0316035091 | $371,556 | $371,556 | $11.74 | | |
| CEM1 | Cemetery #1 | 0.0040320932 | $371,556 | $371,556 | $1.50 | | |
| FIRE2 | Fire & Rescue Dist #2 N Whidbey GEN | 0.5475949600 | $371,556 | $371,556 | $203.46 | | |
| HOBOND | Hospital BOND | 0.1910887512 | $371,556 | $371,556 | $71.00 | | |
| HOGEN | Hospital GEN | 0.3902502903 | $371,556 | $371,556 | $145.00 | | |
| CE | County Current Expense | 0.3708482477 | $371,556 | $371,556 | $137.79 | | |
| CR | County Roads | 0.4584763726 | $371,556 | $371,556 | $170.35 | | |
| ISLANDEMS | Hospital GEN (EMS) | 0.5000000000 | $371,556 | $371,556 | $185.78 | | |
| LIB | Library Sno-Isle GEN | 0.3153421757 | $371,556 | $371,556 | $117.17 | | |
| NWHIDPRMT | P & R N Whidbey GEN | 0.2004466701 | $371,556 | $371,556 | $74.48 | | |
| SCH201MO | School 201 Enrichment | 1.8559231640 | $371,556 | $371,556 | $689.58 | | |
| ST | State School | 1.3035497053 | $371,556 | $371,556 | $484.34 | | |
| ST2 | State School Part 2 | 0.8169543533 | $371,556 | $371,556 | $303.54 | | |
| | Total Tax Rate: | 6.9861102925 | | | | | |
| | | | | Taxes w/Current Exemptions: | $2,595.73 | | |
| | | | | Taxes w/o Exemptions: | $2,595.73 | | |
Improvement / Building
| Improvement #1: | RESIDENTIAL | State Code: | Y | 1296.0 sqft | Value: | $369,127 |
| Bathrooms: | 2 | Bedrooms: | 2 | | Ceiling: | DRYWALL PAINTED | Exterior Wall/Cover: | WOOD SIDING | | Floor Covering: | CARPET/VINYL 20-80 | Floor Structure: | WOOD W/SUBFLOOR | | Foundation: | CONCRETE | Heating: | FHA OIL | | Interior Finish: | DRYWALL PAINT | Plumbing Fixture Cnt: | 6 | | Roof Slope: | 8" IN 12" | Roof Structure/Cover: | CJ ALUMINIUM HEAVY |
|
| | Type | Description | Class CD | Sub Class CD | Year Built | Area |
| | BAS | BASE/MAIN FLOOR | 3 | 0 | 1939 | 1296.0 |
| | ATF | ATTIC FINISHED | 3 | 0 | 1939 | 400.0 |
| | ENP | ENCLOSED PORCH | 3 | 0 | 1939 | 403.0 |
| | OWP | OPEN WOOD PORCH W/STEPS | 3 | 0 | 1939 | 72.0 |
| | UTY | STORAGE/UTILITY | 3 | 0 | 1939 | 240.0 |
| | CPD | OPEN CARPORT DIRT FLOOR | 3 | 0 | 1939 | 1584.0 |
| | UTY | STORAGE/UTILITY | 3 | 0 | 1939 | 856.0 |
| | UTY | STORAGE/UTILITY | 3 | 0 | 1939 | 1080.0 |
| | DGR | DETACHED GARAGE | 3 | 0 | 1939 | 480.0 |
| | CPD | OPEN CARPORT DIRT FLOOR | 3 | 0 | 1939 | 540.0 |
| | CPD | OPEN CARPORT DIRT FLOOR | 3 | 0 | 1939 | 1440.0 |
| | CPD | OPEN CARPORT DIRT FLOOR | 3 | 0 | 1939 | 648.0 |
| | CPD | OPEN CARPORT DIRT FLOOR | 3 | 0 | 1939 | 2200.0 |
Sketch
Property Image
Land
| 1 | 35 | AC (10.00-30.99) | 10.0000 | 435600.00 | 0.00 | 0.00 | 1.00 | $340,000 | $2,429 |
Roll Value History
| 2026 | N/A | N/A | N/A | N/A | N/A |
| 2025 | $369,127 | $340,000 | $2,429 | $371,556 | $371,556 |
| 2024 | $375,055 | $300,000 | $2,429 | $377,484 | $377,484 |
| 2023 | $380,984 | $280,000 | $2,429 | $383,413 | $383,413 |
| 2022 | $342,249 | $220,000 | $2,429 | $344,678 | $344,678 |
| 2021 | $302,225 | $210,000 | $2,429 | $304,654 | $304,654 |
| 2020 | $296,035 | $200,000 | $2,429 | $298,464 | $298,464 |
| 2019 | $216,951 | $250,000 | $2,429 | $219,380 | $219,380 |
| 2018 | $217,758 | $220,000 | $2,429 | $220,187 | $220,187 |
| 2017 | $219,371 | $200,000 | $2,429 | $221,800 | $221,800 |
| 2016 | $91,544 | $170,000 | $2,429 | $93,973 | $93,973 |
| 2015 | $92,949 | $155,000 | $2,429 | $95,378 | $95,378 |
| 2014 | $94,354 | $170,000 | $2,429 | $96,783 | $96,783 |
| 2013 | $95,758 | $170,000 | $2,429 | $98,187 | $98,187 |
| 2012 | $97,163 | $85,000 | $2,429 | $99,592 | $99,592 |
| 2011 | $98,566 | $100,000 | $2,561 | $101,127 | $101,127 |
| 2010 | $103,912 | $100,000 | $2,561 | $106,473 | $106,473 |
| 2009 | $36,261 | $76,181 | $2,561 | $109,881 | $109,881 |
| 2008 | $45,747 | $68,393 | $2,561 | $111,579 | $111,579 |
| 2007 | $52,143 | $63,773 | $2,561 | $113,355 | $113,355 |
Deed and Sales History
| 1 | 10/11/2024 | QCD | Quit Claim Deed | NIENHUIS, EVA | NIENHUIS, BARTHOLOMEW | | | $0.00 | 62410 | 4581701 |
| 2 | 01/27/2025 | LACPROBATE | Lack of Probate | NIENHUIS, DUANE | NIENHUIS, EVA | | | $0.00 | 62409 | 4581698 |
| 3 | 10/16/2000 | SEG | DNU - Segregation | Unknown | NIENHUIS, DUANE H/EVA M | | | $0.00 | 68815 | 0 |
Payout Agreement
| No payout information available.. |