Property
Account |
| Property ID: | 802537 | Abbreviated Legal Description: | PT OF FOLL DESC LY WLY OF WLN ST HWY: N/2 S/2 SE SW EX HWY EX PT TO ST OF WASH AF#96004896 & AF#98003194 |
| Geographic ID: | R23118-061-1670 | Agent Code: | |
| Type: | Real | | |
| Tax Area: | 319 - APPRAISER-Cpvl Schl Dist, outside Cpvl, vacant & 50 acres or less | Land Use Code | 91 |
| Open Space: | N | DFL | N |
| Historic Property: | N | Remodel Property: | N |
| Multi-Family Redevelopment: | N | | |
| Township: | 31 | Section: | 18 |
| Range: | R2 |
Location |
| Address: | | Mapsco: | |
| Neighborhood: | Cycle 2 | Map ID: | 489 |
| Neighborhood CD: | 2 |
Owner |
| Name: | SCHREIBER, KOBY R | Owner ID: | 306513 |
| Mailing Address: | PO BOX 112 COUPEVILLE, WA 98239 | % Ownership: | 100.0000000000% |
| | | Exemptions: | |
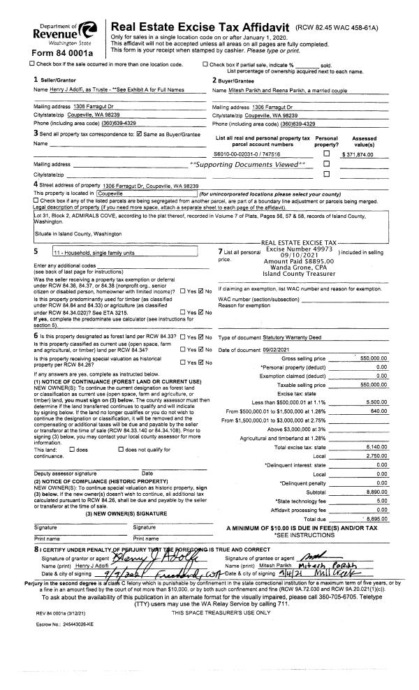
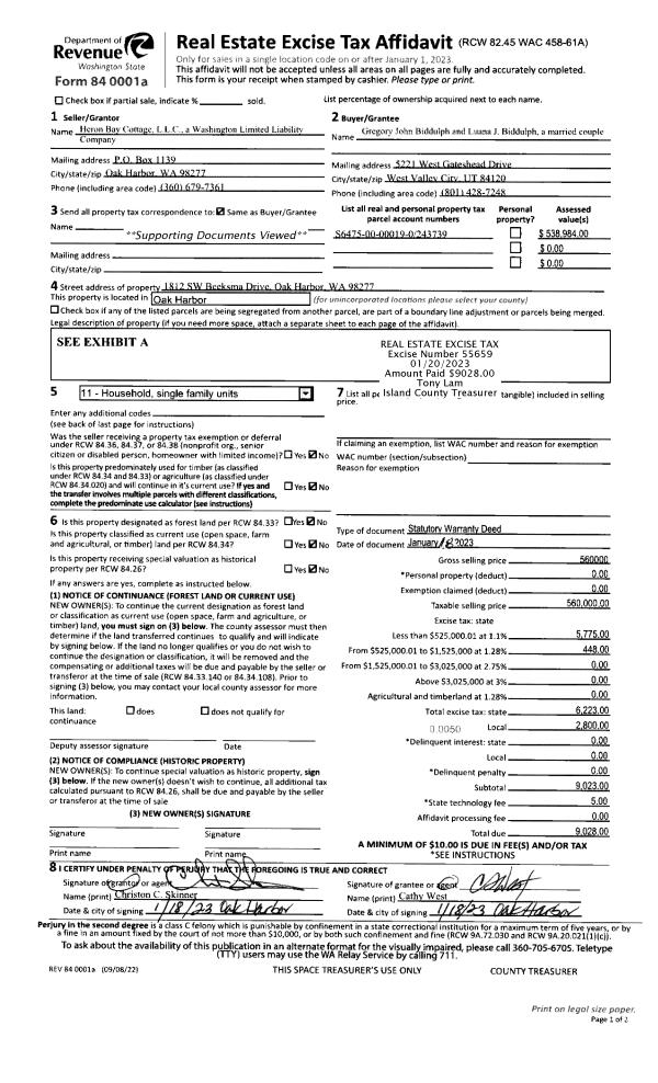
Taxes and Assessment Details
Values
| (+) Improvement Homesite Value: | + | $0 | |
| (+) Improvement Non-Homesite Value: | + | $0 | |
| (+) Land Homesite Value: | + | $0 | |
| (+) Land Non-Homesite Value: | + | $132,562 | |
| (+) Curr Use (HS): | + | $0 | $0 |
| (+) Curr Use (NHS): | + | $0 | $0 |
| | | -------------------------- | |
| (=) Market Value: | = | $132,562 | |
| (–) Productivity Loss: | – | $0 | |
| | | -------------------------- | |
| (=) Subtotal: | = | $132,562 | |
| (+) Senior Appraised Value: | + | $0 | |
| (+) Non-Senior Appraised Value: | + | $132,562 | |
| | | -------------------------- | |
| (=) Total Appraised Value: | = | $132,562 | |
| (–) Senior Exemption Loss: | – | $0 | |
| (–) Exemption Loss: | – | $0 | |
| | | -------------------------- | |
| (=) Taxable Value: | = | $132,562 | |
Taxing Jurisdiction
| Owner: | SCHREIBER, KOBY R | | |
| % Ownership: | 100.0000000000% | | |
| Total Value: | $132,562 | | |
| Tax Area: | 319 - APPRAISER-Cpvl Schl Dist, outside Cpvl, vacant & 50 acres or less |
| CF | Conservation Futures | 0.0316035091 | $132,562 | $132,562 | $4.19 | | |
| CEM2 | Cemetery #2 | 0.0095056933 | $132,562 | $132,562 | $1.26 | | |
| HOBOND | Hospital BOND | 0.1910887512 | $132,562 | $132,562 | $25.33 | | |
| HOGEN | Hospital GEN | 0.3902502903 | $132,562 | $132,562 | $51.73 | | |
| CE | County Current Expense | 0.3708482477 | $132,562 | $132,562 | $49.16 | | |
| CR | County Roads | 0.4584763726 | $132,562 | $132,562 | $60.78 | | |
| ISLANDEMS | Hospital GEN (EMS) | 0.5000000000 | $132,562 | $132,562 | $66.28 | | |
| LIB | Library Sno-Isle GEN | 0.3153421757 | $132,562 | $132,562 | $41.80 | | |
| LIBCAP | Library Sno-Isle BOND (Cap Fac Imp Area) | 0.0543427938 | $132,562 | $132,562 | $7.20 | | |
| POCOUP | Port of Coupeville GEN | 0.1093371703 | $132,562 | $132,562 | $14.49 | | |
| POCOUPIDD | Port of Coupeville IDD | 0.3409740022 | $132,562 | $132,562 | $45.20 | | |
| COUPSDTECH | School 204 CP (TECH) | 0.7545480007 | $132,562 | $132,562 | $100.02 | | |
| SCH204MO | School 204 Enrichment | 0.6716186034 | $132,562 | $132,562 | $89.03 | | |
| ST | State School | 1.3035497053 | $132,562 | $132,562 | $172.80 | | |
| ST2 | State School Part 2 | 0.8169543533 | $132,562 | $132,562 | $108.30 | | |
| | Total Tax Rate: | 6.3184396689 | | | | | |
| | | | | Taxes w/Current Exemptions: | $837.57 | | |
| | | | | Taxes w/o Exemptions: | $837.57 | | |
Improvement / Building
Sketch
| No sketches available for this property. |
Property Image
Land
| 1 | 91 | UNDEVELOPED LAND-METES AND BOUNDS | 3.1500 | 137214.00 | 0.00 | 0.00 | 1.00 | $132,562 | $0 |
Roll Value History
| 2026 | N/A | N/A | N/A | N/A | N/A |
| 2025 | $0 | $132,562 | $0 | $132,562 | $132,562 |
| 2024 | $0 | $150,000 | $0 | $150,000 | $150,000 |
| 2023 | $0 | $140,000 | $0 | $140,000 | $140,000 |
| 2022 | $0 | $130,000 | $0 | $130,000 | $130,000 |
| 2021 | $0 | $75,000 | $0 | $75,000 | $75,000 |
| 2020 | $0 | $75,000 | $0 | $75,000 | $75,000 |
| 2019 | $0 | $75,000 | $0 | $75,000 | $75,000 |
| 2018 | $0 | $75,000 | $0 | $75,000 | $75,000 |
| 2017 | $0 | $75,000 | $0 | $75,000 | $75,000 |
| 2016 | $0 | $75,000 | $0 | $75,000 | $75,000 |
| 2015 | $0 | $50,000 | $0 | $50,000 | $50,000 |
| 2014 | $0 | $50,000 | $0 | $50,000 | $50,000 |
| 2013 | $0 | $50,000 | $0 | $50,000 | $50,000 |
| 2012 | $0 | $50,000 | $0 | $50,000 | $50,000 |
| 2011 | $0 | $50,000 | $0 | $50,000 | $50,000 |
| 2010 | $0 | $50,000 | $0 | $50,000 | $50,000 |
| 2009 | $0 | $62,500 | $0 | $62,500 | $62,500 |
| 2008 | $0 | $62,500 | $0 | $62,500 | $62,500 |
| 2007 | $0 | $65,000 | $0 | $65,000 | $65,000 |
Deed and Sales History
| 1 | 10/21/2022 | WD | Warranty Deed | HOEFLEIN, SUSAN F | SCHREIBER, KOBY R | | | $75,000.00 | 55046 | 4553293 |
| 2 | 12/17/2020 | PRD | Personal Representatives Deed | BECKER, ROBERT F | HOEFLEIN, SUSAN F | | | $0.00 | 46960 | 4511060 |
| 3 | 01/07/2011 | QCD | Quit Claim Deed | BECKER, ROBERT F | BECKER, ROBERT F | | | $0.00 | 3995 | 4292959 |
| 4 | 10/20/2000 | SEG | DNU - Segregation | Unknown | BECKER, ROBERT F | | | $0.00 | 68816 | 0 |
Payout Agreement
| No payout information available.. |