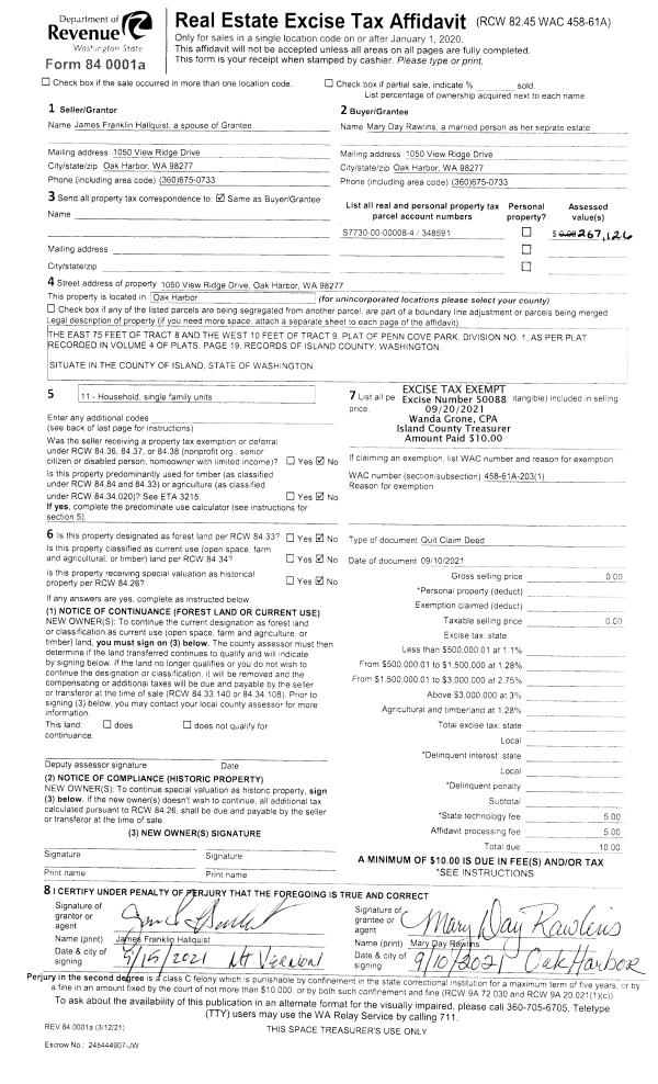
Property
Account |
| Property ID: | 802612 | Abbreviated Legal Description: | SE NW NE EX E10' |
| Geographic ID: | R32916-416-3490 | Agent Code: | |
| Type: | Real | | |
| Tax Area: | 712 - APPRAISER-S Whid Schl Dist, outside Langley, improved, greater than 1 acre | Land Use Code | 88 |
| Open Space: | N | DFL | Y |
| Historic Property: | N | Remodel Property: | N |
| Multi-Family Redevelopment: | N | | |
| Township: | 29 | Section: | 16 |
| Range: | R3 |
Location |
| Address: | 5656 COLES RD LANGLEY, WA 98260 | Mapsco: | |
| Neighborhood: | Cycle 4 | Map ID: | 777 |
| Neighborhood CD: | 4 |
Owner |
| Name: | SHERMAN, DAWN M | Owner ID: | 296014 |
| Mailing Address: | LARRY L SHERMAN 5656 COLES RD LANGLEY, WA 98260 | % Ownership: | 100.0000000000% |
| | | Exemptions: | |
Taxes and Assessment Details
Values
| (+) Improvement Homesite Value: | + | $0 | |
| (+) Improvement Non-Homesite Value: | + | $729,660 | |
| (+) Land Homesite Value: | + | $0 | |
| (+) Land Non-Homesite Value: | + | $260,000 | |
| (+) Curr Use (HS): | + | $0 | $0 |
| (+) Curr Use (NHS): | + | $110,000 | $1,326 |
| | | -------------------------- | |
| (=) Market Value: | = | $1,099,660 | |
| (–) Productivity Loss: | – | $108,674 | |
| | | -------------------------- | |
| (=) Subtotal: | = | $990,986 | |
| (+) Senior Appraised Value: | + | $0 | |
| (+) Non-Senior Appraised Value: | + | $990,986 | |
| | | -------------------------- | |
| (=) Total Appraised Value: | = | $990,986 | |
| (–) Senior Exemption Loss: | – | $0 | |
| (–) Exemption Loss: | – | $0 | |
| | | -------------------------- | |
| (=) Taxable Value: | = | $990,986 | |
Taxing Jurisdiction
| Owner: | SHERMAN, DAWN M | | |
| % Ownership: | 100.0000000000% | | |
| Total Value: | $1,099,660 | | |
| Tax Area: | 712 - APPRAISER-S Whid Schl Dist, outside Langley, improved, greater than 1 acre |
| CF | Conservation Futures | 0.0316035091 | $990,986 | $990,986 | $31.32 | | |
| FIRE3 | Fire & Rescue Dist #3 S Whidbey GEN | 1.2004855531 | $990,986 | $990,986 | $1,189.66 | | |
| HOBOND | Hospital BOND | 0.1910887512 | $990,986 | $990,986 | $189.37 | | |
| HOGEN | Hospital GEN | 0.3902502903 | $990,986 | $990,986 | $386.73 | | |
| CE | County Current Expense | 0.3708482477 | $990,986 | $990,986 | $367.51 | | |
| CR | County Roads | 0.4584763726 | $990,986 | $990,986 | $454.34 | | |
| ISLANDEMS | Hospital GEN (EMS) | 0.5000000000 | $990,986 | $990,986 | $495.49 | | |
| LIB | Library Sno-Isle GEN | 0.3153421757 | $990,986 | $990,986 | $312.50 | | |
| PORTWHID | Port of S Whidbey GEN | 0.1094540357 | $990,986 | $990,986 | $108.47 | | |
| SCH206BOND | School 206 BOND | 0.3161759235 | $990,986 | $990,986 | $313.33 | | |
| SCH206MO | School 206 Enrichment | 0.4547169547 | $990,986 | $990,986 | $450.62 | | |
| ST | State School | 1.3035497053 | $990,986 | $990,986 | $1,291.80 | | |
| ST2 | State School Part 2 | 0.8169543533 | $990,986 | $990,986 | $809.59 | | |
| SWHIDPRBD | P & R S Whidbey BOND | 0.0152817568 | $990,986 | $990,986 | $15.14 | | |
| SWHIDPRBD2 | P & R S Whidbey BOND2 | 0.0138911264 | $990,986 | $990,986 | $13.77 | | |
| SWHIDPRMT | P & R S Whidbey GEN | 0.2053334452 | $990,986 | $990,986 | $203.48 | | |
| | Total Tax Rate: | 6.6934522006 | | | | | |
| | | | | Taxes w/Current Exemptions: | $6,633.12 | | |
| | | | | Taxes w/o Exemptions: | $6,633.12 | | |
Improvement / Building
| Improvement #1: | RESIDENTIAL | State Code: | Y | 4437.2 sqft | Value: | $729,660 |
| Bathrooms: | 2.75 | Bedrooms: | 4 | | Ceiling: | DRYWALL PAINTED | Exterior Wall/Cover: | CEMENT FIBER | | Floor Covering: | HARDWOOD 100% | Floor Structure: | WOOD W/SUBFLOOR | | Foundation: | CONCRETE | Heating: | FHA GAS | | Interior Finish: | DRYWALL PAINT | Plumbing Fixture Cnt: | 13 | | Roof Slope: | 5" IN 12" | Roof Structure/Cover: | CJ ASPHALT |
|
| | Type | Description | Class CD | Sub Class CD | Year Built | Area |
| | BAS | BASE/MAIN FLOOR | 4 | 0 | 2004 | 1959.0 |
| | UPS | UPPER STORY | 4 | 0 | 2004 | 1422.0 |
| | OP4 | OPEN PORCH W/CEILING-ROOF | 4 | 0 | 2004 | 144.0 |
| | OP4 | OPEN PORCH W/CEILING-ROOF | 4 | 0 | 2004 | 210.0 |
| | OWP | OPEN WOOD PORCH W/STEPS | 4 | 0 | 2004 | 153.0 |
| | BAS | BASE/MAIN FLOOR | 4 | 0 | 2004 | 1056.2 |
| | BIG | BUILT IN GARAGE | 4 | 0 | 2004 | 1056.2 |
| | OP1 | OPEN PORCH SLAB | 4 | 0 | 2004 | 120.0 |
| | DGR | DETACHED GARAGE | 4 | 0 | 2004 | 224.0 |
Sketch
Property Image
Land
| 1 | 32 | AC (03.01-09.99) | 8.9000 | 387684.00 | 0.00 | 0.00 | 1.00 | $110,000 | $1,326 |
| 2 | 32 | AC (03.01-09.99) | 1.0000 | 43560.00 | 0.00 | 0.00 | 1.00 | $260,000 | $0 |
Roll Value History
| 2026 | N/A | N/A | N/A | N/A | N/A |
| 2025 | $729,660 | $370,000 | $1,326 | $990,986 | $990,986 |
| 2024 | $738,024 | $350,000 | $1,335 | $989,359 | $989,359 |
| 2023 | $746,388 | $330,000 | $1,282 | $781,003 | $781,003 |
| 2022 | $681,547 | $280,000 | $1,282 | $711,112 | $711,112 |
| 2021 | $597,899 | $230,000 | $1,282 | $622,413 | $622,413 |
| 2020 | $444,268 | $190,000 | $0 | $634,268 | $634,268 |
| 2019 | $384,708 | $250,000 | $1,237 | $410,945 | $410,945 |
| 2018 | $385,797 | $210,000 | $1,219 | $408,016 | $408,016 |
| 2017 | $382,092 | $200,000 | $1,219 | $403,311 | $403,311 |
| 2016 | $386,386 | $165,000 | $890 | $403,943 | $403,943 |
| 2015 | $390,679 | $165,000 | $890 | $408,236 | $408,236 |
| 2014 | $389,469 | $148,500 | $890 | $405,359 | $405,359 |
| 2013 | $393,737 | $148,500 | $890 | $409,627 | $409,627 |
| 2012 | $0 | $98,345 | $890 | $890 | $890 |
| 2011 | $0 | $115,700 | $890 | $890 | $890 |
| 2010 | $0 | $115,700 | $890 | $890 | $890 |
| 2009 | $0 | $1,780 | $890 | $890 | $890 |
| 2008 | $0 | $1,780 | $890 | $890 | $890 |
| 2007 | $0 | $1,780 | $890 | $890 | $890 |
Deed and Sales History
| 1 | 09/01/2020 | WD | Warranty Deed | THORSEN, OLAF E | SHERMAN, DAWN M | | | $843,900.00 | 44648 | 4495960 |
| 2 | 02/19/2002 | WD | Warranty Deed | DEMARAY, KEVIN | THORSON, OLAF E | | | $97,500.00 | 20799 | 4012827 |
| 3 | 12/18/2000 | WD | Warranty Deed | ANDERSON ET AL, MILDRED M | DEMARAY, KEVIN | | | $60,000.00 | 4801 | 20022253 |
| 4 | 12/13/2000 | SEG | DNU - Segregation | Unknown | ANDERSON ET AL, MILDRED M | | | $0.00 | 68893 | 0 |
Payout Agreement
| No payout information available.. |