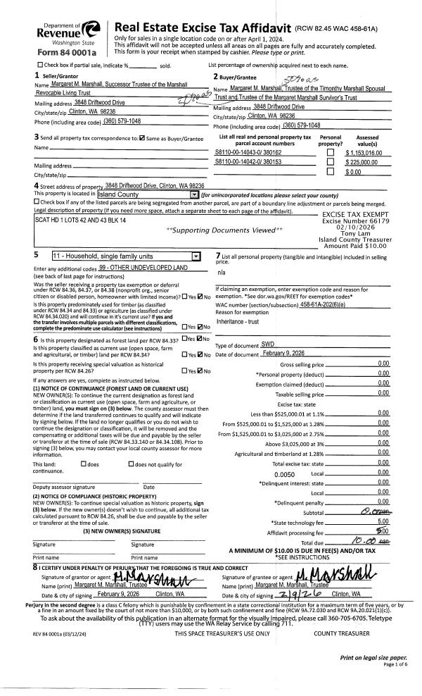
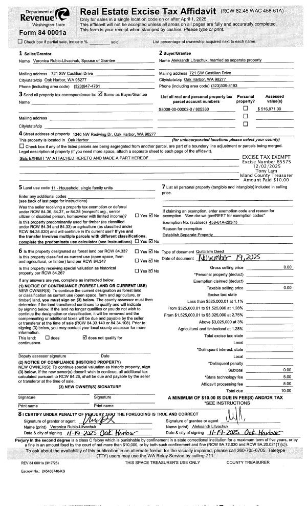
Property
Account |
| Property ID: | 802649 | Abbreviated Legal Description: | 43 - N104.5' OF W100' OF E520' OF GL 1 TGW N104.5' OF W50' OF E420' OF GL1 TGW EZ AF#162203 |
| Geographic ID: | R22906-526-4840 | Agent Code: | |
| Type: | Real | | |
| Tax Area: | 780 - APPRAISER-S Whid Schl Dist, Special District, improved & less than 1 acre | Land Use Code | 11 |
| Open Space: | N | DFL | N |
| Historic Property: | N | Remodel Property: | N |
| Multi-Family Redevelopment: | N | | |
| Township: | 29 | Section: | 06 |
| Range: | R2 |
Location |
| Address: | 365 CARDINAL WAY FREELAND, WA 98249 | Mapsco: | |
| Neighborhood: | Cycle 3 | Map ID: | 300 |
| Neighborhood CD: | 3 |
Owner |
| Name: | GOW, JOHN DANIELS | Owner ID: | 314543 |
| Mailing Address: | REBECCA BABIK 365 EAST CARDINAL WAY FREELAND, WA 98249 | % Ownership: | 100.0000000000% |
| | | Exemptions: | |
Taxes and Assessment Details
Values
| (+) Improvement Homesite Value: | + | $0 | |
| (+) Improvement Non-Homesite Value: | + | $234,709 | |
| (+) Land Homesite Value: | + | $0 | |
| (+) Land Non-Homesite Value: | + | $340,000 | |
| (+) Curr Use (HS): | + | $0 | $0 |
| (+) Curr Use (NHS): | + | $0 | $0 |
| | | -------------------------- | |
| (=) Market Value: | = | $574,709 | |
| (–) Productivity Loss: | – | $0 | |
| | | -------------------------- | |
| (=) Subtotal: | = | $574,709 | |
| (+) Senior Appraised Value: | + | $0 | |
| (+) Non-Senior Appraised Value: | + | $574,709 | |
| | | -------------------------- | |
| (=) Total Appraised Value: | = | $574,709 | |
| (–) Senior Exemption Loss: | – | $0 | |
| (–) Exemption Loss: | – | $0 | |
| | | -------------------------- | |
| (=) Taxable Value: | = | $574,709 | |
Taxing Jurisdiction
| Owner: | GOW, JOHN DANIELS | | |
| % Ownership: | 100.0000000000% | | |
| Total Value: | $574,709 | | |
| Tax Area: | 780 - APPRAISER-S Whid Schl Dist, Special District, improved & less than 1 acre |
| CF | Conservation Futures | 0.0316035091 | $574,709 | $574,709 | $18.16 | | |
| FIRE3 | Fire & Rescue Dist #3 S Whidbey GEN | 1.2004855531 | $574,709 | $574,709 | $689.93 | | |
| HOBOND | Hospital BOND | 0.1910887512 | $574,709 | $574,709 | $109.82 | | |
| HOGEN | Hospital GEN | 0.3902502903 | $574,709 | $574,709 | $224.28 | | |
| CE | County Current Expense | 0.3708482477 | $574,709 | $574,709 | $213.13 | | |
| CR | County Roads | 0.4584763726 | $574,709 | $574,709 | $263.49 | | |
| ISLANDEMS | Hospital GEN (EMS) | 0.5000000000 | $574,709 | $574,709 | $287.35 | | |
| LIB | Library Sno-Isle GEN | 0.3153421757 | $574,709 | $574,709 | $181.23 | | |
| PORTWHID | Port of S Whidbey GEN | 0.1094540357 | $574,709 | $574,709 | $62.90 | | |
| SCH206BOND | School 206 BOND | 0.3161759235 | $574,709 | $574,709 | $181.71 | | |
| SCH206MO | School 206 Enrichment | 0.4547169547 | $574,709 | $574,709 | $261.33 | | |
| ST | State School | 1.3035497053 | $574,709 | $574,709 | $749.16 | | |
| ST2 | State School Part 2 | 0.8169543533 | $574,709 | $574,709 | $469.51 | | |
| SWHIDPRBD | P & R S Whidbey BOND | 0.0152817568 | $574,709 | $574,709 | $8.78 | | |
| SWHIDPRBD2 | P & R S Whidbey BOND2 | 0.0138911264 | $574,709 | $574,709 | $7.98 | | |
| SWHIDPRMT | P & R S Whidbey GEN | 0.2053334452 | $574,709 | $574,709 | $118.01 | | |
| | Total Tax Rate: | 6.6934522006 | | | | | |
| | | | | Taxes w/Current Exemptions: | $3,846.77 | | |
| | | | | Taxes w/o Exemptions: | $3,846.77 | | |
Improvement / Building
| Improvement #1: | RESIDENTIAL | State Code: | Y | 1474.0 sqft | Value: | $234,709 |
| Bathrooms: | 2 | Bedrooms: | 2 | | Ceiling: | DRYWALL PAINTED | Cooling: | HEAT PUMP/CONV/V | | Exterior Wall/Cover: | PLY/HARDBOARD T-111 | Floor Covering: | CARPET/VINYL 80-20 | | Floor Structure: | WOOD W/SUBFLOOR | Foundation: | CONCRETE BLOCKS | | Interior Finish: | DRYWALL PAINT | Plumbing Fixture Cnt: | 9 | | Roof Slope: | FLAT | Roof Structure/Cover: | BEAM BUILT-UP ROCK |
|
| | Type | Description | Class CD | Sub Class CD | Year Built | Area |
| | BAS | BASE/MAIN FLOOR | 3 | 0 | 1975 | 1474.0 |
| | OP3 | OPEN PORCH W/ROOF | 3 | 0 | 1975 | 30.0 |
| | AGR | ATTACHED GARAGE | 3 | 0 | 1975 | 240.0 |
| | UTY | STORAGE/UTILITY | 3 | 0 | 1975 | 120.0 |
| | OWP | OPEN WOOD PORCH W/STEPS | 3 | 0 | 1975 | 881.5 |
Sketch
Property Image
Land
| 1 | 15 | SQ (12001-21780) | 0.0000 | 0.00 | 0.00 | 0.00 | 1.00 | $340,000 | $0 |
Roll Value History
| 2026 | N/A | N/A | N/A | N/A | N/A |
| 2025 | $234,709 | $340,000 | $0 | $574,709 | $574,709 |
| 2024 | $204,625 | $320,000 | $0 | $524,625 | $524,625 |
| 2023 | $207,810 | $300,000 | $0 | $507,810 | $507,810 |
| 2022 | $191,064 | $280,000 | $0 | $471,064 | $471,064 |
| 2021 | $168,653 | $180,000 | $0 | $348,653 | $348,653 |
| 2020 | $164,767 | $170,000 | $0 | $334,767 | $334,767 |
| 2019 | $104,497 | $200,000 | $0 | $304,497 | $304,497 |
| 2018 | $104,918 | $150,000 | $0 | $254,918 | $254,918 |
| 2017 | $105,757 | $150,000 | $0 | $255,757 | $255,757 |
| 2016 | $107,444 | $150,000 | $0 | $257,444 | $257,444 |
| 2015 | $109,130 | $150,000 | $0 | $259,130 | $259,130 |
| 2014 | $110,819 | $153,000 | $0 | $263,819 | $263,819 |
| 2013 | $112,506 | $153,000 | $0 | $265,506 | $265,506 |
| 2012 | $114,193 | $153,000 | $0 | $267,193 | $267,193 |
| 2011 | $115,879 | $180,000 | $0 | $295,879 | $295,879 |
| 2010 | $124,783 | $180,000 | $0 | $304,783 | $304,783 |
| 2009 | $130,482 | $200,000 | $0 | $330,482 | $330,482 |
| 2008 | $129,594 | $230,000 | $0 | $359,594 | $359,594 |
| 2007 | $130,995 | $230,000 | $0 | $360,995 | $360,995 |
Deed and Sales History
| 1 | 11/04/2024 | WD | Warranty Deed | MOYER, FRANCESS L | GOW, JOHN DANIELS | | | $650,000.00 | 61804 | 4579268 |
|   | |
| 2 | 10/23/2024 | LACPROBATE | Lack of Probate | MOYER, THOMAS M | MOYER, FRANCESS L | | | $0.00 | 61803 | 4578267 |
| 3 | 01/29/2001 | BLA | DNU - Boundary Line Adjustment | Unknown | MOYER, THOMAS M | | | $0.00 | 68945 | 20010371 |
Payout Agreement
| No payout information available.. |