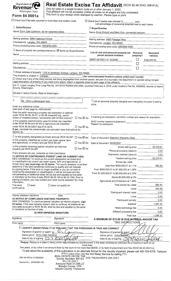
Property
Account |
| Property ID: | 802689 | Abbreviated Legal Description: | W1.57ACS OF N/2 OF GL4 TGW W/2 OF SW/4 OF GL4 EX E30' TGW EZS |
| Geographic ID: | R32903-465-0200 | Agent Code: | |
| Type: | Real | | |
| Tax Area: | 712 - APPRAISER-S Whid Schl Dist, outside Langley, improved, greater than 1 acre | Land Use Code | 11 |
| Open Space: | N | DFL | N |
| Historic Property: | N | Remodel Property: | N |
| Multi-Family Redevelopment: | N | | |
| Township: | 29 | Section: | 03 |
| Range: | R3 |
Location |
| Address: | 4825 COLES RD LANGLEY, WA 98260 | Mapsco: | |
| Neighborhood: | Cycle 4 | Map ID: | 725 |
| Neighborhood CD: | 4 |
Owner |
| Name: | JACKSON, WENDY | Owner ID: | 184972 |
| Mailing Address: | 16708 SE 29TH ST BELLEVUE, WA 98008-5653 | % Ownership: | 100.0000000000% |
| | | Exemptions: | |
Taxes and Assessment Details
Values
| (+) Improvement Homesite Value: | + | $0 | |
| (+) Improvement Non-Homesite Value: | + | $195,823 | |
| (+) Land Homesite Value: | + | $0 | |
| (+) Land Non-Homesite Value: | + | $370,000 | |
| (+) Curr Use (HS): | + | $0 | $0 |
| (+) Curr Use (NHS): | + | $0 | $0 |
| | | -------------------------- | |
| (=) Market Value: | = | $565,823 | |
| (–) Productivity Loss: | – | $0 | |
| | | -------------------------- | |
| (=) Subtotal: | = | $565,823 | |
| (+) Senior Appraised Value: | + | $0 | |
| (+) Non-Senior Appraised Value: | + | $565,823 | |
| | | -------------------------- | |
| (=) Total Appraised Value: | = | $565,823 | |
| (–) Senior Exemption Loss: | – | $0 | |
| (–) Exemption Loss: | – | $0 | |
| | | -------------------------- | |
| (=) Taxable Value: | = | $565,823 | |
Taxing Jurisdiction
| Owner: | JACKSON, WENDY | | |
| % Ownership: | 100.0000000000% | | |
| Total Value: | $565,823 | | |
| Tax Area: | 712 - APPRAISER-S Whid Schl Dist, outside Langley, improved, greater than 1 acre |
| CF | Conservation Futures | 0.0316035091 | $565,823 | $565,823 | $17.88 | | |
| FIRE3 | Fire & Rescue Dist #3 S Whidbey GEN | 1.2004855531 | $565,823 | $565,823 | $679.26 | | |
| HOBOND | Hospital BOND | 0.1910887512 | $565,823 | $565,823 | $108.12 | | |
| HOGEN | Hospital GEN | 0.3902502903 | $565,823 | $565,823 | $220.81 | | |
| CE | County Current Expense | 0.3708482477 | $565,823 | $565,823 | $209.83 | | |
| CR | County Roads | 0.4584763726 | $565,823 | $565,823 | $259.42 | | |
| ISLANDEMS | Hospital GEN (EMS) | 0.5000000000 | $565,823 | $565,823 | $282.91 | | |
| LIB | Library Sno-Isle GEN | 0.3153421757 | $565,823 | $565,823 | $178.43 | | |
| PORTWHID | Port of S Whidbey GEN | 0.1094540357 | $565,823 | $565,823 | $61.93 | | |
| SCH206BOND | School 206 BOND | 0.3161759235 | $565,823 | $565,823 | $178.90 | | |
| SCH206MO | School 206 Enrichment | 0.4547169547 | $565,823 | $565,823 | $257.29 | | |
| ST | State School | 1.3035497053 | $565,823 | $565,823 | $737.58 | | |
| ST2 | State School Part 2 | 0.8169543533 | $565,823 | $565,823 | $462.25 | | |
| SWHIDPRBD | P & R S Whidbey BOND | 0.0152817568 | $565,823 | $565,823 | $8.65 | | |
| SWHIDPRBD2 | P & R S Whidbey BOND2 | 0.0138911264 | $565,823 | $565,823 | $7.86 | | |
| SWHIDPRMT | P & R S Whidbey GEN | 0.2053334452 | $565,823 | $565,823 | $116.18 | | |
| | Total Tax Rate: | 6.6934522006 | | | | | |
| | | | | Taxes w/Current Exemptions: | $3,787.30 | | |
| | | | | Taxes w/o Exemptions: | $3,787.30 | | |
Improvement / Building
| Improvement #1: | RESIDENTIAL | State Code: | Y | 888.0 sqft | Value: | $195,823 |
| Bathrooms: | 1.5 | Bedrooms: | 2 | | Ceiling: | DRYWALL PAINTED | Exterior Wall/Cover: | CEMENT FIBER | | Floor Covering: | HARDWOOD 100% | Floor Structure: | WOOD W/SUBFLOOR | | Foundation: | CONCRETE | Heating: | GAS HEATERS | | Interior Finish: | DRYWALL PAINT | Plumbing Fixture Cnt: | 8 | | Roof Slope: | 6" IN 12" | Roof Structure/Cover: | CJ ALUMINIUM HEAVY |
|
| | Type | Description | Class CD | Sub Class CD | Year Built | Area |
| | BAS | BASE/MAIN FLOOR | 3 | 0 | 2005 | 584.0 |
| | OWP | OPEN WOOD PORCH W/STEPS | 3 | 0 | 2005 | 60.0 |
| | OWC | OPEN WOOD PORCH W/STEPS/ROOF/C | 3 | 0 | 2005 | 105.0 |
| | OWC | OPEN WOOD PORCH W/STEPS/ROOF/C | 3 | 0 | 2005 | 88.5 |
| | ENP | ENCLOSED PORCH | 3 | 0 | 2005 | 117.0 |
| | LOF | LOFT | 3 | 0 | 2005 | 304.0 |
Sketch
Property Image
Land
| 1 | 32 | AC (03.01-09.99) | 5.0000 | 283140.00 | 0.00 | 0.00 | 1.00 | $370,000 | $0 |
Roll Value History
| 2026 | N/A | N/A | N/A | N/A | N/A |
| 2025 | $195,823 | $370,000 | $0 | $565,823 | $565,823 |
| 2024 | $198,118 | $350,000 | $0 | $548,118 | $548,118 |
| 2023 | $200,416 | $330,000 | $0 | $530,416 | $530,416 |
| 2022 | $183,562 | $280,000 | $0 | $463,562 | $463,562 |
| 2021 | $161,432 | $230,000 | $0 | $391,432 | $391,432 |
| 2020 | $165,827 | $190,000 | $0 | $355,827 | $355,827 |
| 2019 | $118,335 | $250,000 | $0 | $368,335 | $368,335 |
| 2018 | $118,667 | $210,000 | $0 | $328,667 | $328,667 |
| 2017 | $109,653 | $190,000 | $0 | $299,653 | $299,653 |
| 2016 | $110,871 | $165,000 | $0 | $275,871 | $275,871 |
| 2015 | $112,088 | $165,000 | $0 | $277,088 | $277,088 |
| 2014 | $114,338 | $208,000 | $0 | $322,338 | $322,338 |
| 2013 | $115,591 | $208,000 | $0 | $323,591 | $323,591 |
| 2012 | $116,845 | $208,000 | $0 | $324,845 | $324,845 |
| 2011 | $118,099 | $208,000 | $0 | $326,099 | $326,099 |
| 2010 | $116,426 | $208,000 | $0 | $324,426 | $324,426 |
| 2009 | $120,043 | $286,000 | $0 | $406,043 | $406,043 |
| 2008 | $125,467 | $231,500 | $0 | $356,967 | $356,967 |
| 2007 | $126,873 | $231,500 | $0 | $358,373 | $358,373 |
Deed and Sales History
| 1 | 03/09/2001 | WD | Warranty Deed | S SCHOENFELD & ASSOCIATES, | JACKSON, WENDY | | | $120,000.00 | 10744 | 20026861 |
| 2 | 03/01/2001 | BLA | DNU - Boundary Line Adjustment | Unknown | S SCHOENFELD & ASSOCIATES, | | | $0.00 | 68974 | 99021606 |
Payout Agreement
| No payout information available.. |