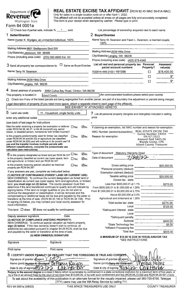
Property
Account |
| Property ID: | 802700 | Abbreviated Legal Description: | N25.89' OF S442.89' OF SW SW NW EX E212.83' TGW N83.50' OF S417' OF W522.30' OF SW NW TGW: BG NECR OF W522.30' OF S333.50' OF SW NW S89*W ALG NLN 246.14' TPB S89*W ALG SD LN 246.18' TO ELN OF W30' OF SD SUBD S1*E ALG SD LN 40' N79*E249.02' TPB EX: BG |
| Geographic ID: | R33014-304-0270 | Agent Code: | |
| Type: | Real | | |
| Tax Area: | 542 - APPRAISER-Stan/Cam Schl Dist, Special Dist, improved, greater than 1 acre | Land Use Code | 11 |
| Open Space: | N | DFL | N |
| Historic Property: | N | Remodel Property: | N |
| Multi-Family Redevelopment: | N | | |
| Township: | 30 | Section: | 14 |
| Range: | R3 |
Location |
| Address: | 3371 BERNIE RD CAMANO ISLAND, WA 98282 | Mapsco: | |
| Neighborhood: | 58NofTamarackS | Map ID: | 871 |
| Neighborhood CD: | 58RntamS |
Owner |
| Name: | HALL, LAURA M | Owner ID: | 4813 |
| Mailing Address: | PETER J HALL 3371 BERNIE RD CAMANO ISLAND, WA 98282-8217 | % Ownership: | 100.0000000000% |
| | | Exemptions: | SNR/DSBL |
Taxes and Assessment Details
Values
| (+) Improvement Homesite Value: | + | $236,584 | |
| (+) Improvement Non-Homesite Value: | + | $0 | |
| (+) Land Homesite Value: | + | $250,000 | |
| (+) Land Non-Homesite Value: | + | $0 | |
| (+) Curr Use (HS): | + | $0 | $0 |
| (+) Curr Use (NHS): | + | $0 | $0 |
| | | -------------------------- | |
| (=) Market Value: | = | $486,584 | |
| (–) Productivity Loss: | – | $0 | |
| | | -------------------------- | |
| (=) Subtotal: | = | $486,584 | |
| (+) Senior Appraised Value: | + | $267,533 | |
| (+) Non-Senior Appraised Value: | + | $0 | |
| | | -------------------------- | |
| (=) Total Appraised Value: | = | $267,533 | |
| (–) Senior Exemption Loss: | – | $160,520 | |
| (–) Exemption Loss: | – | $0 | |
| | | -------------------------- | |
| (=) Taxable Value: | = | $107,013 | |
Taxing Jurisdiction
| Owner: | HALL, LAURA M | | |
| % Ownership: | 100.0000000000% | | |
| Total Value: | $486,584 | | |
| Tax Area: | 542 - APPRAISER-Stan/Cam Schl Dist, Special Dist, improved, greater than 1 acre |
| CF | Conservation Futures | 0.0316035091 | $486,584 | $107,013 | $3.38 | | |
| EMS1 | Fire & Rescue Dist #1 Camano GEN (EMS) | 0.3677864386 | $486,584 | $107,013 | $39.36 | | |
| FIRE1 | Fire & Rescue Dist #1 Camano GEN | 1.2502910536 | $486,584 | $107,013 | $133.80 | | |
| FIRE1BOND | Fire & Rescue Dist #1 Camano BOND | 0.0000000000 | $486,584 | $0 | $0.00 | | |
| CE | County Current Expense | 0.3708482477 | $486,584 | $107,013 | $39.69 | | |
| CR | County Roads | 0.4584763726 | $486,584 | $107,013 | $49.06 | | |
| LCIB | Library Sno-Isle BOND (Camano Island) | 0.0000000000 | $486,584 | $0 | $0.00 | | |
| LIB | Library Sno-Isle GEN | 0.3153421757 | $486,584 | $107,013 | $33.75 | | |
| SCH205_401 | School 205-401 Enrichment | 0.0000000000 | $486,584 | $0 | $0.00 | | |
| SCH205BOND | School 205-401 BOND | 0.0000000000 | $486,584 | $0 | $0.00 | | |
| ST | State School | 1.3035497053 | $486,584 | $107,013 | $139.50 | | |
| ST2 | State School Part 2 | 0.0000000000 | $486,584 | $0 | $0.00 | | |
| | Total Tax Rate: | 4.0978975026 | | | | | |
| | | | | Taxes w/Current Exemptions: | $438.54 | | |
| | | | | Taxes w/o Exemptions: | $3,562.27 | | |
Improvement / Building
| Improvement #1: | RESIDENTIAL | State Code: | Y | 1260.0 sqft | Value: | $236,584 |
| Bathrooms: | 2 | Bedrooms: | 2 | | Ceiling: | BEAM PAINTED | Exterior Wall/Cover: | WOOD SIDING | | Floor Covering: | CARPET/VINYL 80-20 | Floor Structure: | WOOD W/SUBFLOOR | | Foundation: | CONCRETE | Heating: | WALL HEAT ELECTRIC | | Interior Finish: | DRYWALL PAINT | Plumbing Fixture Cnt: | 8 | | Roof Slope: | 3" IN 12" | Roof Structure/Cover: | BEAM ASPHALT |
|
| | Type | Description | Class CD | Sub Class CD | Year Built | Area |
| | BAS | BASE/MAIN FLOOR | 3 | 0 | 1978 | 1260.0 |
| | UTY | STORAGE/UTILITY | 3 | 0 | 1978 | 130.0 |
| | OWP | OPEN WOOD PORCH W/STEPS | 3 | 0 | 1978 | 398.0 |
| | OWR | OPEN WOOD PORCH W/STEPS/ROOF | 3 | 0 | 1978 | 320.0 |
| | OWR | OPEN WOOD PORCH W/STEPS/ROOF | 3 | 0 | 1978 | 30.0 |
| | CPD | OPEN CARPORT DIRT FLOOR | 3 | 0 | 1978 | 234.0 |
| | UTY | STORAGE/UTILITY | 3 | 0 | 1978 | 126.0 |
| | CPD | OPEN CARPORT DIRT FLOOR | 3 | 0 | 1978 | 1848.0 |
Sketch
Property Image
Land
| 1 | 17 | AC (01.01-02.00) | 1.1900 | 51836.40 | 0.00 | 0.00 | 1.00 | $250,000 | $0 |
Roll Value History
| 2026 | N/A | N/A | N/A | N/A | N/A |
| 2025 | $236,584 | $250,000 | $0 | $486,584 | $107,013 |
| 2024 | $235,774 | $220,000 | $0 | $455,774 | $107,013 |
| 2023 | $239,180 | $220,000 | $0 | $459,180 | $107,013 |
| 2022 | $219,663 | $200,000 | $0 | $419,663 | $107,013 |
| 2021 | $168,590 | $150,000 | $0 | $318,590 | $107,013 |
| 2020 | $164,598 | $140,000 | $0 | $304,598 | $107,013 |
| 2019 | $117,116 | $170,000 | $0 | $287,116 | $107,013 |
| 2018 | $117,533 | $150,000 | $0 | $267,533 | $107,013 |
| 2017 | $118,364 | $135,000 | $0 | $253,364 | $253,364 |
| 2016 | $120,032 | $80,000 | $0 | $200,032 | $200,032 |
| 2015 | $109,293 | $50,000 | $0 | $159,293 | $159,293 |
| 2014 | $110,799 | $50,000 | $0 | $160,799 | $160,799 |
| 2013 | $112,303 | $50,000 | $0 | $162,303 | $162,303 |
| 2012 | $113,809 | $74,400 | $0 | $188,209 | $188,209 |
| 2011 | $115,315 | $93,000 | $0 | $208,315 | $208,315 |
| 2010 | $121,712 | $93,000 | $0 | $214,712 | $214,712 |
| 2009 | $124,625 | $120,000 | $0 | $244,625 | $244,625 |
| 2008 | $126,538 | $99,000 | $0 | $225,538 | $225,538 |
| 2007 | $128,451 | $86,000 | $0 | $214,451 | $214,451 |
Deed and Sales History
| 1 | 07/18/2003 | BLA | DNU - Boundary Line Adjustment | HALL, LAURA M | HALL, LAURA M | | | $0.00 | 69947 | 20042868 |
| 2 | 06/10/2002 | QCD | Quit Claim Deed | HALL, LAURA M | HALL, LAURA M | | | $4,500.00 | 22200 | 4022342 |
| 3 | 05/24/2002 | ESTSEPPROP | Establish Separate Property | HALL, LAURA M | HALL, LAURA M | | | $0.00 | 22199 | 4022341 |
| 4 | 03/07/2001 | BLA | DNU - Boundary Line Adjustment | Unknown | HALL, LAURA M | | | $0.00 | 68982 | 20012213 |
Payout Agreement
| No payout information available.. |