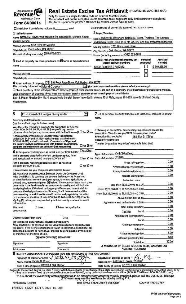
Property
Account |
| Property ID: | 802795 | Abbreviated Legal Description: | TRACT A BSP 00-1.13203.088-4710 & 098-5200 SITE PLANS AF#20015334 |
| Geographic ID: | R13203-047-4190 | Agent Code: | |
| Type: | Real | | |
| Tax Area: | 100 - APPRAISER-OH Schl Dist, in OH | Land Use Code | 91 |
| Open Space: | N | DFL | N |
| Historic Property: | N | Remodel Property: | N |
| Multi-Family Redevelopment: | N | | |
| Township: | 32 | Section: | 03 |
| Range: | R1 |
Location |
| Address: | OAK HARBOR, WA 98277 | Mapsco: | |
| Neighborhood: | 3AcOH-highway 20 | Map ID: | 91 |
| Neighborhood CD: | 3AcOHhwy20 |
Owner |
| Name: | FREUND ET AL, NANCY R | Owner ID: | 178055 |
| Mailing Address: | 2498 SW FREUND ST OAK HARBOR, WA 98277 | % Ownership: | 100.0000000000% |
| | | Exemptions: | |
Taxes and Assessment Details
Values
| (+) Improvement Homesite Value: | + | $0 | |
| (+) Improvement Non-Homesite Value: | + | $0 | |
| (+) Land Homesite Value: | + | $0 | |
| (+) Land Non-Homesite Value: | + | $1,313 | |
| (+) Curr Use (HS): | + | $0 | $0 |
| (+) Curr Use (NHS): | + | $0 | $0 |
| | | -------------------------- | |
| (=) Market Value: | = | $1,313 | |
| (–) Productivity Loss: | – | $0 | |
| | | -------------------------- | |
| (=) Subtotal: | = | $1,313 | |
| (+) Senior Appraised Value: | + | $0 | |
| (+) Non-Senior Appraised Value: | + | $1,313 | |
| | | -------------------------- | |
| (=) Total Appraised Value: | = | $1,313 | |
| (–) Senior Exemption Loss: | – | $0 | |
| (–) Exemption Loss: | – | $0 | |
| | | -------------------------- | |
| (=) Taxable Value: | = | $1,313 | |
Taxing Jurisdiction
| Owner: | FREUND ET AL, NANCY R | | |
| % Ownership: | 100.0000000000% | | |
| Total Value: | $1,313 | | |
| Tax Area: | 100 - APPRAISER-OH Schl Dist, in OH |
| CF | Conservation Futures | 0.0316035091 | $1,313 | $1,313 | $0.04 | | |
| CEM1 | Cemetery #1 | 0.0040320932 | $1,313 | $1,313 | $0.01 | | |
| COH | City of Oak Harbor | 2.3001546061 | $1,313 | $1,313 | $3.02 | | |
| OAKBOND | City of Oak Harbor BOND | 0.1926904192 | $1,313 | $1,313 | $0.25 | | |
| HOBOND | Hospital BOND | 0.1910887512 | $1,313 | $1,313 | $0.25 | | |
| HOGEN | Hospital GEN | 0.3902502903 | $1,313 | $1,313 | $0.51 | | |
| CE | County Current Expense | 0.3708482477 | $1,313 | $1,313 | $0.49 | | |
| ISLANDEMS | Hospital GEN (EMS) | 0.5000000000 | $1,313 | $1,313 | $0.66 | | |
| LIB | Library Sno-Isle GEN | 0.3153421757 | $1,313 | $1,313 | $0.41 | | |
| NWHIDPRMT | P & R N Whidbey GEN | 0.2004466701 | $1,313 | $1,313 | $0.26 | | |
| SCH201MO | School 201 Enrichment | 1.8559231640 | $1,313 | $1,313 | $2.44 | | |
| ST | State School | 1.3035497053 | $1,313 | $1,313 | $1.71 | | |
| ST2 | State School Part 2 | 0.8169543533 | $1,313 | $1,313 | $1.07 | | |
| | Total Tax Rate: | 8.4728839852 | | | | | |
| | | | | Taxes w/Current Exemptions: | $11.12 | | |
| | | | | Taxes w/o Exemptions: | $11.12 | | |
Improvement / Building
Sketch
| No sketches available for this property. |
Property Image
Land
| 1 | 17 | AC (01.01-02.00) | 1.3400 | 58370.40 | 0.00 | 0.00 | 1.00 | $1,313 | $0 |
Roll Value History
| 2026 | N/A | N/A | N/A | N/A | N/A |
| 2025 | $0 | $1,313 | $0 | $1,313 | $1,313 |
| 2024 | $0 | $1,313 | $0 | $1,313 | $1,313 |
| 2023 | $0 | $1,313 | $0 | $1,313 | $1,313 |
| 2022 | $0 | $1,313 | $0 | $1,313 | $1,313 |
| 2021 | $0 | $1,313 | $0 | $1,313 | $1,313 |
| 2020 | $0 | $1,313 | $0 | $1,313 | $1,313 |
| 2019 | $0 | $1,313 | $0 | $1,313 | $1,313 |
| 2018 | $0 | $1,313 | $0 | $1,313 | $1,313 |
| 2017 | $0 | $1,313 | $0 | $1,313 | $1,313 |
| 2016 | $0 | $1,313 | $0 | $1,313 | $1,313 |
| 2015 | $0 | $1,313 | $0 | $1,313 | $1,313 |
| 2014 | $0 | $1,313 | $0 | $1,313 | $1,313 |
| 2013 | $0 | $1,340 | $0 | $1,340 | $1,340 |
| 2012 | $0 | $1,340 | $0 | $1,340 | $1,340 |
| 2011 | $0 | $1,340 | $0 | $1,340 | $1,340 |
| 2010 | $0 | $1,340 | $0 | $1,340 | $1,340 |
| 2009 | $0 | $1,340 | $0 | $1,340 | $1,340 |
| 2008 | $0 | $1,340 | $0 | $1,340 | $1,340 |
| 2007 | $0 | $1,340 | $0 | $1,340 | $1,340 |
Deed and Sales History
| 1 | 01/01/1900 | OTHER | Other - Misc. Documents | Unknown | FREUND ET AL, NANCY R | | | $0.00 | 0 | 0 |
Payout Agreement
| No payout information available.. |