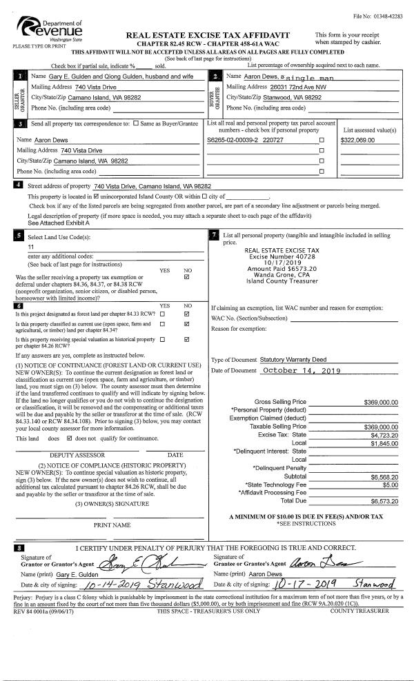
Property
Account |
| Property ID: | 802796 | Abbreviated Legal Description: | LOT 1 BSP 00-1.13203.088-4710 & 098-5200 SITE PLANS AF#20015334 |
| Geographic ID: | R13203-077-4470 | Agent Code: | |
| Type: | Real | | |
| Tax Area: | 100 - APPRAISER-OH Schl Dist, in OH | Land Use Code | 61 |
| Open Space: | N | DFL | N |
| Historic Property: | N | Remodel Property: | N |
| Multi-Family Redevelopment: | N | | |
| Township: | 32 | Section: | 03 |
| Range: | R1 |
Location |
| Address: | 450 SW BAYSHORE DR OAK HARBOR, WA 98277 | Mapsco: | |
| Neighborhood: | 3AcOH-highway 20 | Map ID: | 91 |
| Neighborhood CD: | 3AcOHhwy20 |
Owner |
| Name: | FREUND TRUSTEE, CARL R | Owner ID: | 185198 |
| Mailing Address: | C/O HERITAGE BANK PO BOX 4578 OLYMPIA, WA 98507 | % Ownership: | 100.0000000000% |
| | | Exemptions: | |
Taxes and Assessment Details
Values
| (+) Improvement Homesite Value: | + | $0 | |
| (+) Improvement Non-Homesite Value: | + | $2,712,265 | |
| (+) Land Homesite Value: | + | $0 | |
| (+) Land Non-Homesite Value: | + | $1,385,208 | |
| (+) Curr Use (HS): | + | $0 | $0 |
| (+) Curr Use (NHS): | + | $0 | $0 |
| | | -------------------------- | |
| (=) Market Value: | = | $4,097,473 | |
| (–) Productivity Loss: | – | $0 | |
| | | -------------------------- | |
| (=) Subtotal: | = | $4,097,473 | |
| (+) Senior Appraised Value: | + | $0 | |
| (+) Non-Senior Appraised Value: | + | $4,097,473 | |
| | | -------------------------- | |
| (=) Total Appraised Value: | = | $4,097,473 | |
| (–) Senior Exemption Loss: | – | $0 | |
| (–) Exemption Loss: | – | $0 | |
| | | -------------------------- | |
| (=) Taxable Value: | = | $4,097,473 | |
Taxing Jurisdiction
| Owner: | FREUND TRUSTEE, CARL R | | |
| % Ownership: | 100.0000000000% | | |
| Total Value: | $4,097,473 | | |
| Tax Area: | 100 - APPRAISER-OH Schl Dist, in OH |
| CF | Conservation Futures | 0.0316035091 | $4,097,473 | $4,097,473 | $129.49 | | |
| CEM1 | Cemetery #1 | 0.0040320932 | $4,097,473 | $4,097,473 | $16.52 | | |
| COH | City of Oak Harbor | 2.3001546061 | $4,097,473 | $4,097,473 | $9,424.82 | | |
| OAKBOND | City of Oak Harbor BOND | 0.1926904192 | $4,097,473 | $4,097,473 | $789.54 | | |
| HOBOND | Hospital BOND | 0.1910887512 | $4,097,473 | $4,097,473 | $782.98 | | |
| HOGEN | Hospital GEN | 0.3902502903 | $4,097,473 | $4,097,473 | $1,599.04 | | |
| CE | County Current Expense | 0.3708482477 | $4,097,473 | $4,097,473 | $1,519.54 | | |
| ISLANDEMS | Hospital GEN (EMS) | 0.5000000000 | $4,097,473 | $4,097,473 | $2,048.74 | | |
| LIB | Library Sno-Isle GEN | 0.3153421757 | $4,097,473 | $4,097,473 | $1,292.11 | | |
| NWHIDPRMT | P & R N Whidbey GEN | 0.2004466701 | $4,097,473 | $4,097,473 | $821.32 | | |
| SCH201MO | School 201 Enrichment | 1.8559231640 | $4,097,473 | $4,097,473 | $7,604.60 | | |
| ST | State School | 1.3035497053 | $4,097,473 | $4,097,473 | $5,341.26 | | |
| ST2 | State School Part 2 | 0.8169543533 | $4,097,473 | $4,097,473 | $3,347.45 | | |
| | Total Tax Rate: | 8.4728839852 | | | | | |
| | | | | Taxes w/Current Exemptions: | $34,717.41 | | |
| | | | | Taxes w/o Exemptions: | $34,717.41 | | |
Improvement / Building
| Improvement #1: | COMMERCIAL | State Code: | F1 | 15502.0 sqft | Value: | $2,712,265 |
| Bathrooms: | 0 | Ceiling: | SUSPENDED | | Cooling: | PACKAGE HEAT & COOL | Exterior Wall/Cover: | STUCCO/WOOD FRAME | | Floor Covering: | CARPET 100% | Floor Structure: | WOOD ON WOOD JOIST | | Foundation: | CONCRETE | Interior Finish: | BANK | | Plumbing Fixture Cnt: | 1 | Roof Structure/Cover: | TERNE WOOD JOIST |
|
| | Type | Description | Class CD | Sub Class CD | Year Built | Area |
| | BAS | BASE/MAIN FLOOR | 3 | 0 | 2000 | 5459.0 |
| | OP4 | OPEN PORCH W/CEILING-ROOF | 3 | 0 | 2000 | 216.0 |
| | OP4 | OPEN PORCH W/CEILING-ROOF | 3 | 0 | 2000 | 216.0 |
| | OCP | OPEN CARPORT | 3 | 0 | 2000 | 1175.0 |
| | DWN | DOWNSTAIRS LIVING AREA | 3 | 0 | 2000 | 5459.0 |
| | UPS | UPPER STORY | 3 | 0 | 2000 | 4584.0 |
| | oLIT | LITE POLE | 3 | 0 | 2000 | 6.0 |
| | oPV2 | PV/ASPH 3" | 3 | 0 | 2000 | 37800.0 |
Sketch
Property Image
Land
| 1 | 68 | COMMERCIAL RETAIL | 0.5051 | 69260.40 | 0.00 | 0.00 | 1.00 | $1,385,208 | $0 |
Roll Value History
| 2026 | N/A | N/A | N/A | N/A | N/A |
| 2025 | $2,712,265 | $1,385,208 | $0 | $4,097,473 | $4,097,473 |
| 2024 | $2,782,688 | $1,385,208 | $0 | $4,167,896 | $4,167,896 |
| 2023 | $2,853,112 | $1,385,208 | $0 | $4,238,320 | $4,238,320 |
| 2022 | $2,245,254 | $1,385,208 | $0 | $3,630,462 | $3,630,462 |
| 2021 | $2,236,872 | $1,385,208 | $0 | $3,622,080 | $3,622,080 |
| 2020 | $2,235,798 | $1,385,208 | $0 | $3,621,006 | $3,621,006 |
| 2019 | $2,015,284 | $1,246,687 | $0 | $3,261,971 | $3,261,971 |
| 2018 | $2,015,431 | $1,038,906 | $0 | $3,054,337 | $3,054,337 |
| 2017 | $2,015,729 | $795,919 | $0 | $2,811,648 | $2,811,648 |
| 2016 | $2,016,324 | $795,919 | $0 | $2,812,243 | $2,812,243 |
| 2015 | $2,063,031 | $795,919 | $0 | $2,858,950 | $2,858,950 |
| 2014 | $2,033,449 | $692,604 | $0 | $2,726,053 | $2,726,053 |
| 2013 | $1,969,760 | $727,439 | $0 | $2,697,199 | $2,697,199 |
| 2012 | $2,197,892 | $727,439 | $0 | $2,925,331 | $2,925,331 |
| 2011 | $2,197,892 | $727,439 | $0 | $2,925,331 | $2,925,331 |
| 2010 | $2,183,280 | $727,439 | $0 | $2,910,719 | $2,910,719 |
| 2009 | $2,211,612 | $1,107,424 | $0 | $3,319,036 | $3,319,036 |
| 2008 | $2,241,062 | $1,107,424 | $0 | $3,348,486 | $3,348,486 |
| 2007 | $2,269,891 | $1,107,424 | $0 | $3,377,315 | $3,377,315 |
Deed and Sales History
| 1 | 07/09/2007 | OTHER | Other - Misc. Documents | FREUND TRUSTEE, ARNOLD R | FREUND TRUSTEE, CARL R | | | $0.00 | 80243 | 0 |
| 2 | 09/08/2000 | QCD | Quit Claim Deed | FREUND ET AL, NANCY R | FREUND TRUSTEE, ARNOLD R | | | $0.00 | 3467 | 20016017 |
| 3 | 01/01/1900 | OTHER | Other - Misc. Documents | Unknown | FREUND ET AL, NANCY R | | | $0.00 | 0 | 0 |
Payout Agreement
| No payout information available.. |