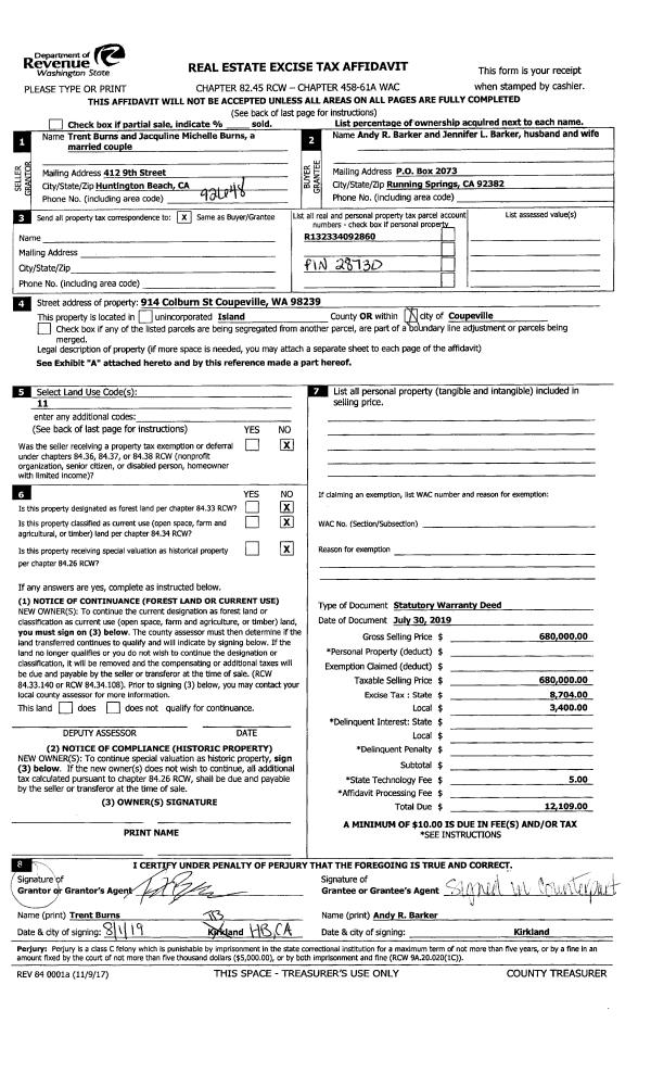
Property
Account |
| Property ID: | 802797 | Abbreviated Legal Description: | LOT 2 BSP 00-1.13203.088-4710 & 098-5200 SITE PLANS AF#20015334 |
| Geographic ID: | R13203-097-4800 | Agent Code: | |
| Type: | Real | | |
| Tax Area: | 100 - APPRAISER-OH Schl Dist, in OH | Land Use Code | 53 |
| Open Space: | N | DFL | N |
| Historic Property: | N | Remodel Property: | N |
| Multi-Family Redevelopment: | N | | |
| Township: | 32 | Section: | 03 |
| Range: | R1 |
Location |
| Address: | | Mapsco: | |
| Neighborhood: | 3AcOH-highway 20 | Map ID: | 91 |
| Neighborhood CD: | 3AcOHhwy20 |
Owner |
| Name: | WHIDBEY ISLAND PLACE, LLC | Owner ID: | 290314 |
| Mailing Address: | 845 106TH AVE SE, STE 100 BELLEVUE, WA 98004 | % Ownership: | 100.0000000000% |
| | | Exemptions: | |
Taxes and Assessment Details
Values
| (+) Improvement Homesite Value: | + | $0 | |
| (+) Improvement Non-Homesite Value: | + | $4,238,414 | |
| (+) Land Homesite Value: | + | $0 | |
| (+) Land Non-Homesite Value: | + | $2,735,568 | |
| (+) Curr Use (HS): | + | $0 | $0 |
| (+) Curr Use (NHS): | + | $0 | $0 |
| | | -------------------------- | |
| (=) Market Value: | = | $6,973,982 | |
| (–) Productivity Loss: | – | $0 | |
| | | -------------------------- | |
| (=) Subtotal: | = | $6,973,982 | |
| (+) Senior Appraised Value: | + | $0 | |
| (+) Non-Senior Appraised Value: | + | $6,973,982 | |
| | | -------------------------- | |
| (=) Total Appraised Value: | = | $6,973,982 | |
| (–) Senior Exemption Loss: | – | $0 | |
| (–) Exemption Loss: | – | $0 | |
| | | -------------------------- | |
| (=) Taxable Value: | = | $6,973,982 | |
Taxing Jurisdiction
| Owner: | WHIDBEY ISLAND PLACE, LLC | | |
| % Ownership: | 100.0000000000% | | |
| Total Value: | $6,973,982 | | |
| Tax Area: | 100 - APPRAISER-OH Schl Dist, in OH |
| CF | Conservation Futures | 0.0316035091 | $6,973,982 | $6,973,982 | $220.40 | | |
| CEM1 | Cemetery #1 | 0.0040320932 | $6,973,982 | $6,973,982 | $28.12 | | |
| COH | City of Oak Harbor | 2.3001546061 | $6,973,982 | $6,973,982 | $16,041.24 | | |
| OAKBOND | City of Oak Harbor BOND | 0.1926904192 | $6,973,982 | $6,973,982 | $1,343.82 | | |
| HOBOND | Hospital BOND | 0.1910887512 | $6,973,982 | $6,973,982 | $1,332.65 | | |
| HOGEN | Hospital GEN | 0.3902502903 | $6,973,982 | $6,973,982 | $2,721.60 | | |
| CE | County Current Expense | 0.3708482477 | $6,973,982 | $6,973,982 | $2,586.29 | | |
| ISLANDEMS | Hospital GEN (EMS) | 0.5000000000 | $6,973,982 | $6,973,982 | $3,486.99 | | |
| LIB | Library Sno-Isle GEN | 0.3153421757 | $6,973,982 | $6,973,982 | $2,199.19 | | |
| NWHIDPRMT | P & R N Whidbey GEN | 0.2004466701 | $6,973,982 | $6,973,982 | $1,397.91 | | |
| SCH201MO | School 201 Enrichment | 1.8559231640 | $6,973,982 | $6,973,982 | $12,943.17 | | |
| ST | State School | 1.3035497053 | $6,973,982 | $6,973,982 | $9,090.93 | | |
| ST2 | State School Part 2 | 0.8169543533 | $6,973,982 | $6,973,982 | $5,697.42 | | |
| | Total Tax Rate: | 8.4728839852 | | | | | |
| | | | | Taxes w/Current Exemptions: | $59,089.73 | | |
| | | | | Taxes w/o Exemptions: | $59,089.73 | | |
Improvement / Building
| Improvement #1: | COMMERCIAL | State Code: | 41 | 20469.0 sqft | Value: | $2,856,222 |
| Ceiling: | SUSPENDED | Exterior Wall/Cover: | 8" CONC BLK/CON FRAM | | Floor Covering: | VINYL TILE | Floor Structure: | SLAB ABOVE GRADE | | Foundation: | CONCRETE | Heating: | FHA ELECTRIC | | Interior Finish: | DRYWALL PAINT | Plumbing Fixture Cnt: | 1 | | Roof Slope: | FLAT | Roof Structure/Cover: | BEAM ROLL COMPOSITION |
|
| | Type | Description | Class CD | Sub Class CD | Year Built | Area |
| | BAS | BASE/MAIN FLOOR | 3 | 0 | 2020 | 20469.0 |
| | ENP | ENCLOSED PORCH | 3 | 0 | 2020 | 154.0 |
| | OP2 | OPEN PORCH W/STEPS | 3 | 0 | 2020 | 1494.0 |
| | OP4 | OPEN PORCH W/CEILING-ROOF | 3 | 0 | 2020 | 1102.0 |
| | oLIT | LITE POLE | 3 | 0 | 2020 | 6.0 |
| | oPV1 | PV/ASPH 2" | 3 | 0 | 2020 | 35000.0 |
| Improvement #2: | COMMERCIAL | State Code: | 46 | 10180.0 sqft | Value: | $1,382,192 |
| Ceiling: | SUSPENDED | Exterior Wall/Cover: | BRK VEN/WD OR ST STD | | Floor Covering: | VINYL TILE | Floor Structure: | SLAB ABOVE GRADE | | Foundation: | CONCRETE | Heating: | FHA ELECTRIC | | Interior Finish: | DRYWALL PAINT | Plumbing Fixture Cnt: | 1 | | Roof Slope: | FLAT | Roof Structure/Cover: | BEAM ROLL COMPOSITION |
|
| | Type | Description | Class CD | Sub Class CD | Year Built | Area |
| | BAS | BASE/MAIN FLOOR | 3 | 0 | 2020 | 10180.0 |
| | OP3 | OPEN PORCH W/ROOF | 3 | 0 | 2020 | 450.0 |
| | OP3 | OPEN PORCH W/ROOF | 3 | 0 | 2020 | 155.0 |
| | OP3 | OPEN PORCH W/ROOF | 3 | 0 | 2020 | 155.0 |
| | OP3 | OPEN PORCH W/ROOF | 3 | 0 | 2020 | 115.0 |
| | oLIT | LITE POLE | 3 | 0 | 2020 | 7.0 |
| | oPV1 | PV/ASPH 2" | 3 | 0 | 2020 | 50000.0 |
Sketch
Property Image
Land
| 1 | 64 | PERSONAL BUSINESS | 3.1400 | 136778.40 | 0.00 | 0.00 | 1.00 | $2,735,568 | $0 |
Roll Value History
| 2026 | N/A | N/A | N/A | N/A | N/A |
| 2025 | $4,238,414 | $2,735,568 | $0 | $6,973,982 | $6,973,982 |
| 2024 | $4,282,184 | $2,735,568 | $0 | $7,017,752 | $7,017,752 |
| 2023 | $4,325,953 | $2,735,568 | $0 | $7,061,521 | $7,061,521 |
| 2022 | $3,272,841 | $2,735,568 | $0 | $6,008,409 | $6,008,409 |
| 2021 | $3,265,492 | $2,735,568 | $0 | $6,001,060 | $6,001,060 |
| 2020 | $1,929,127 | $2,735,568 | $0 | $4,664,695 | $4,664,695 |
| 2019 | $0 | $889,060 | $0 | $889,060 | $889,060 |
| 2018 | $0 | $889,060 | $0 | $889,060 | $889,060 |
| 2017 | $0 | $889,060 | $0 | $889,060 | $889,060 |
| 2016 | $0 | $889,060 | $0 | $889,060 | $889,060 |
| 2015 | $0 | $889,060 | $0 | $889,060 | $889,060 |
| 2014 | $0 | $889,060 | $0 | $889,060 | $889,060 |
| 2013 | $0 | $882,147 | $0 | $882,147 | $882,147 |
| 2012 | $0 | $882,147 | $0 | $882,147 | $882,147 |
| 2011 | $0 | $882,147 | $0 | $882,147 | $882,147 |
| 2010 | $0 | $882,147 | $0 | $882,147 | $882,147 |
| 2009 | $0 | $882,147 | $0 | $882,147 | $882,147 |
| 2008 | $0 | $882,147 | $0 | $882,147 | $882,147 |
| 2007 | $0 | $882,147 | $0 | $882,147 | $882,147 |
Deed and Sales History
| 1 | 06/10/2019 | WD | Warranty Deed | WINIFRED FREUND, LLC | WHIDBEY ISLAND PLACE, LLC | | | $0.00 | 39036 | 4465644 |
| 2 | 05/23/2019 | QCD | Quit Claim Deed | FREUND TRUSTEE, CARL R | WINIFRED FREUND, LLC | | | $0.00 | 38702 | 4464187 |
| 3 | 05/08/2019 | QCD | Quit Claim Deed | FREUND TRUSTEE, CARL R | WINIFRED FREUND, LLC | | | $0.00 | 38575 | 4463655 |
| 4 | 05/03/2019 | EZ | Easement | FREUND TRUSTEE, CARL R | FREUND TRUSTEE, CARL R | | | $0.00 | 38366 | 4462710 |
| 5 | 07/09/2007 | OTHER | Other - Misc. Documents | FREUND TRUSTEE, ARNOLD R | FREUND TRUSTEE, CARL R | | | $0.00 | 80243 | 0 |
| 6 | 09/08/2000 | QCD | Quit Claim Deed | FREUND ET AL, NANCY R | FREUND TRUSTEE, ARNOLD R | | | $0.00 | 3467 | 20016017 |
| 7 | 01/01/1900 | OTHER | Other - Misc. Documents | Unknown | FREUND ET AL, NANCY R | | | $0.00 | 0 | 0 |
Payout Agreement
| No payout information available.. |