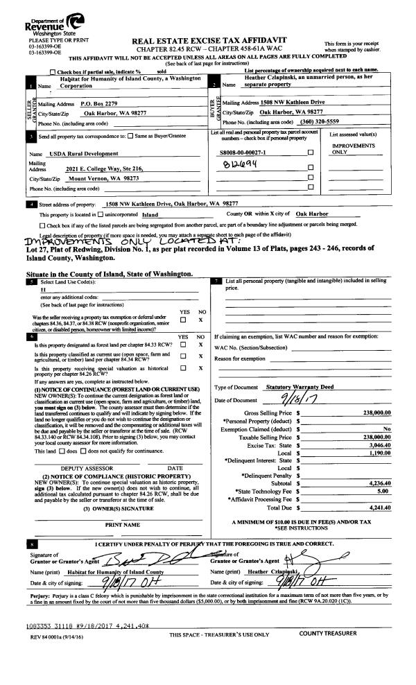
Property
Account |
| Property ID: | 802819 | Abbreviated Legal Description: | IN GLS 1, 5, 6 & 7 DESC: BG NWCR TS DAVIS DLC E1659.91' TPB N361.50' E41' N256' W TO CLN CO RD SLY ALG SD CLN TO SLN GL6 E TPB EX RDS |
| Geographic ID: | R13233-114-1380 | Agent Code: | |
| Type: | Real | | |
| Tax Area: | 312 - APPRAISER-Cpvl Schl Dist, outside Cpvl, improved, greater than 1 acre | Land Use Code | 11 |
| Open Space: | N | DFL | N |
| Historic Property: | N | Remodel Property: | N |
| Multi-Family Redevelopment: | N | | |
| Township: | 32 | Section: | 33 |
| Range: | R1 |
Location |
| Address: | 86 VINE ST COUPEVILLE, WA 98239 | Mapsco: | |
| Neighborhood: | Cycle 2 | Map ID: | 172 |
| Neighborhood CD: | 2 |
Owner |
| Name: | BLYTON, BRUCE | Owner ID: | 280947 |
| Mailing Address: | KAREN BLYTON 86 VINE ST COUPEVILLE, WA 98239 | % Ownership: | 100.0000000000% |
| | | Exemptions: | |
Taxes and Assessment Details
Values
| (+) Improvement Homesite Value: | + | $0 | |
| (+) Improvement Non-Homesite Value: | + | $1,220,539 | |
| (+) Land Homesite Value: | + | $0 | |
| (+) Land Non-Homesite Value: | + | $328,511 | |
| (+) Curr Use (HS): | + | $0 | $0 |
| (+) Curr Use (NHS): | + | $0 | $0 |
| | | -------------------------- | |
| (=) Market Value: | = | $1,549,050 | |
| (–) Productivity Loss: | – | $0 | |
| | | -------------------------- | |
| (=) Subtotal: | = | $1,549,050 | |
| (+) Senior Appraised Value: | + | $0 | |
| (+) Non-Senior Appraised Value: | + | $1,549,050 | |
| | | -------------------------- | |
| (=) Total Appraised Value: | = | $1,549,050 | |
| (–) Senior Exemption Loss: | – | $0 | |
| (–) Exemption Loss: | – | $0 | |
| | | -------------------------- | |
| (=) Taxable Value: | = | $1,549,050 | |
Taxing Jurisdiction
| Owner: | BLYTON, BRUCE | | |
| % Ownership: | 100.0000000000% | | |
| Total Value: | $1,549,050 | | |
| Tax Area: | 312 - APPRAISER-Cpvl Schl Dist, outside Cpvl, improved, greater than 1 acre |
| CF | Conservation Futures | 0.0316035091 | $1,549,050 | $1,549,050 | $48.96 | | |
| CEM2 | Cemetery #2 | 0.0095056933 | $1,549,050 | $1,549,050 | $14.72 | | |
| FIRE5 | Fire & Rescue Dist #5 C Whidbey GEN | 1.2008080668 | $1,549,050 | $1,549,050 | $1,860.11 | | |
| FIRE5BOND | Fire & Rescue Dist #5 C Whidbey BOND | 0.1400090713 | $1,549,050 | $1,549,050 | $216.88 | | |
| HOBOND | Hospital BOND | 0.1910887512 | $1,549,050 | $1,549,050 | $296.01 | | |
| HOGEN | Hospital GEN | 0.3902502903 | $1,549,050 | $1,549,050 | $604.52 | | |
| CE | County Current Expense | 0.3708482477 | $1,549,050 | $1,549,050 | $574.46 | | |
| CR | County Roads | 0.4584763726 | $1,549,050 | $1,549,050 | $710.20 | | |
| ISLANDEMS | Hospital GEN (EMS) | 0.5000000000 | $1,549,050 | $1,549,050 | $774.53 | | |
| LIB | Library Sno-Isle GEN | 0.3153421757 | $1,549,050 | $1,549,050 | $488.48 | | |
| LIBCAP | Library Sno-Isle BOND (Cap Fac Imp Area) | 0.0543427938 | $1,549,050 | $1,549,050 | $84.18 | | |
| POCOUP | Port of Coupeville GEN | 0.1093371703 | $1,549,050 | $1,549,050 | $169.37 | | |
| POCOUPIDD | Port of Coupeville IDD | 0.3409740022 | $1,549,050 | $1,549,050 | $528.19 | | |
| COUPSDTECH | School 204 CP (TECH) | 0.7545480007 | $1,549,050 | $1,549,050 | $1,168.83 | | |
| SCH204MO | School 204 Enrichment | 0.6716186034 | $1,549,050 | $1,549,050 | $1,040.37 | | |
| ST | State School | 1.3035497053 | $1,549,050 | $1,549,050 | $2,019.26 | | |
| ST2 | State School Part 2 | 0.8169543533 | $1,549,050 | $1,549,050 | $1,265.50 | | |
| | Total Tax Rate: | 7.6592568070 | | | | | |
| | | | | Taxes w/Current Exemptions: | $11,864.57 | | |
| | | | | Taxes w/o Exemptions: | $11,864.57 | | |
Improvement / Building
| Improvement #1: | RESIDENTIAL | State Code: | Y | 3659.0 sqft | Value: | $918,641 |
| Bathrooms: | 2 | Bedrooms: | 3 | | Ceiling: | BEAM PAINTED | Cooling: | HEAT PUMP/CONV/V | | Exterior Wall/Cover: | CEMENT FIBER | Floor Covering: | HARDWOOD/CARP 80-20 | | Floor Structure: | WOOD W/SUBFLOOR | Foundation: | CONCRETE | | Interior Finish: | DRYWALL PAINT | Plumbing Fixture Cnt: | 12 | | Roof Slope: | 6" IN 12" | Roof Structure/Cover: | BEAM ASPHALT |
|
| | Type | Description | Class CD | Sub Class CD | Year Built | Area |
| | BAS | BASE/MAIN FLOOR | 5 | 0 | 2005 | 3195.4 |
| | OP1 | OPEN PORCH SLAB | 5 | 0 | 2005 | 498.0 |
| | OP1 | OPEN PORCH SLAB | 5 | 0 | 2005 | 602.5 |
| | OP4 | OPEN PORCH W/CEILING-ROOF | 5 | 0 | 2005 | 72.0 |
| | BIG | BUILT IN GARAGE | 5 | 0 | 2005 | 900.0 |
| | UPS | UPPER STORY | 5 | 0 | 2005 | 463.6 |
| | OWC | OPEN WOOD PORCH W/STEPS/ROOF/C | 5 | 0 | 2005 | 243.6 |
| | OWC | OPEN WOOD PORCH W/STEPS/ROOF/C | 5 | 0 | 2005 | 518.2 |
| Improvement #2: | RESIDENTIAL | State Code: | Y | 768.0 sqft | Value: | $301,898 |
| Bathrooms: | 1 | Bedrooms: | 0 | | Ceiling: | DRYWALL PAINTED | Exterior Wall/Cover: | WOOD SIDING | | Floor Covering: | CARPET/VINYL 80-20 | Floor Structure: | SLAB ON GRADE | | Foundation: | SLAB | Heating: | FHA GAS | | Interior Finish: | DRYWALL PAINT | Plumbing Fixture Cnt: | 6 | | Roof Slope: | 4" IN 12" | Roof Structure/Cover: | STEEL TERNE |
|
| | Type | Description | Class CD | Sub Class CD | Year Built | Area |
| | BAS | BASE/MAIN FLOOR | 3 | 0 | 2004 | 768.0 |
| | OP3 | OPEN PORCH W/ROOF | 3 | 0 | 2004 | 240.0 |
| | oGAR | GARAGE | 3 | 0 | 2004 | 2976.0 |
Sketch
Property Image
Land
| 1 | HS | HOMESITE | 1.0000 | 43560.00 | 0.00 | 0.00 | 1.00 | $270,000 | $0 |
| 2 | 91 | UNDEVELOPED LAND-METES AND BOUNDS | 3.3600 | 146361.60 | 0.00 | 0.00 | 1.00 | $58,511 | $0 |
Roll Value History
| 2026 | N/A | N/A | N/A | N/A | N/A |
| 2025 | $1,220,539 | $328,511 | $0 | $1,549,050 | $1,549,050 |
| 2024 | $1,204,950 | $320,000 | $0 | $1,524,950 | $1,524,950 |
| 2023 | $1,219,011 | $310,000 | $0 | $1,529,011 | $1,529,011 |
| 2022 | $1,116,582 | $290,000 | $0 | $1,406,582 | $1,406,582 |
| 2021 | $981,988 | $220,000 | $0 | $1,201,988 | $1,201,988 |
| 2020 | $955,648 | $200,000 | $0 | $1,155,648 | $1,155,648 |
| 2019 | $792,624 | $250,000 | $0 | $1,042,624 | $1,042,624 |
| 2018 | $802,680 | $210,000 | $0 | $1,012,680 | $1,012,680 |
| 2017 | $614,010 | $160,000 | $0 | $774,010 | $774,010 |
| 2016 | $620,194 | $150,000 | $0 | $770,194 | $770,194 |
| 2015 | $626,379 | $105,948 | $0 | $732,327 | $732,327 |
| 2014 | $632,564 | $105,948 | $0 | $738,512 | $738,512 |
| 2013 | $638,747 | $105,948 | $0 | $744,695 | $744,695 |
| 2012 | $648,701 | $105,948 | $0 | $754,649 | $754,649 |
| 2011 | $654,884 | $117,720 | $0 | $772,604 | $772,604 |
| 2010 | $674,686 | $117,720 | $0 | $792,406 | $792,406 |
| 2009 | $698,203 | $152,600 | $0 | $850,803 | $850,803 |
| 2008 | $700,839 | $130,800 | $0 | $831,639 | $831,639 |
| 2007 | $710,402 | $115,647 | $0 | $826,049 | $826,049 |
Deed and Sales History
| 1 | 07/11/2017 | WD | Warranty Deed | SULLIVAN, DONALD L | BLYTON, BRUCE | | | $1,010,000.00 | 30199 | 4426334 |
| 2 | 03/09/2005 | 5 | DNU - Marriage License/Name Change | BRADLEY, VICKI | SULLIVAN, DONALD L | | | $0.00 | 50981 | 4128152 |
| 3 | 10/02/2003 | WD | Warranty Deed | SMITH, STEVE B | BRADLEY, VICKI | | | $115,985.00 | 34479 | 4077730 |
| 4 | 06/05/2001 | BLA | DNU - Boundary Line Adjustment | Unknown | SMITH, STEVE B | | | $0.00 | 69045 | 20034352 |
| 5 | 04/01/1971 | WD | Warranty Deed | SMITH, STEVE B | SMITH, STEVE B | | | $0.00 | 0 | 407012 |
Payout Agreement
| No payout information available.. |