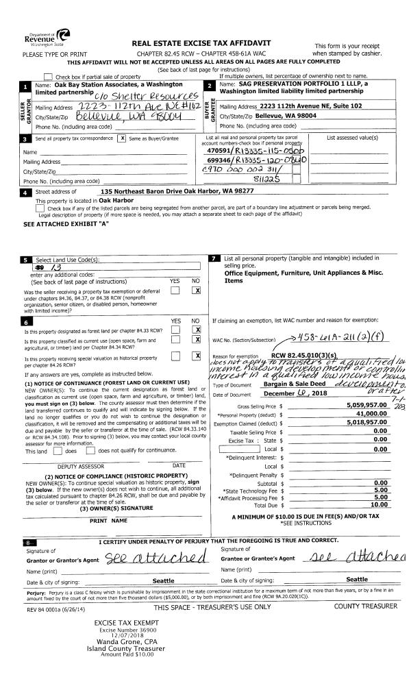
Property
Account |
| Property ID: | 802847 | Abbreviated Legal Description: | LOT 1 SP 458-97.22908.362-3550 V3 SP P334 AF#20018022 |
| Geographic ID: | R22908-378-3200 | Agent Code: | |
| Type: | Real | | |
| Tax Area: | 712 - APPRAISER-S Whid Schl Dist, outside Langley, improved, greater than 1 acre | Land Use Code | 11 |
| Open Space: | N | DFL | N |
| Historic Property: | N | Remodel Property: | N |
| Multi-Family Redevelopment: | N | | |
| Township: | 29 | Section: | 08 |
| Range: | R2 |
Location |
| Address: | 629 BUSH POINT RD FREELAND, WA 98249 | Mapsco: | |
| Neighborhood: | Cycle 3 | Map ID: | 304 |
| Neighborhood CD: | 3 |
Owner |
| Name: | BRAND TTEE, CAROLYN | Owner ID: | 287811 |
| Mailing Address: | 629 BUSH POINT RD FREELAND, WA 98249 | % Ownership: | 100.0000000000% |
| | | Exemptions: | SNR/DSBL |
Taxes and Assessment Details
Values
| (+) Improvement Homesite Value: | + | $347,423 | |
| (+) Improvement Non-Homesite Value: | + | $133,539 | |
| (+) Land Homesite Value: | + | $350,000 | |
| (+) Land Non-Homesite Value: | + | $0 | |
| (+) Curr Use (HS): | + | $0 | $0 |
| (+) Curr Use (NHS): | + | $0 | $0 |
| | | -------------------------- | |
| (=) Market Value: | = | $830,962 | |
| (–) Productivity Loss: | – | $0 | |
| | | -------------------------- | |
| (=) Subtotal: | = | $830,962 | |
| (+) Senior Appraised Value: | + | $455,250 | |
| (+) Non-Senior Appraised Value: | + | $133,539 | |
| | | -------------------------- | |
| (=) Total Appraised Value: | = | $588,789 | |
| (–) Senior Exemption Loss: | – | $273,150 | |
| (–) Exemption Loss: | – | $0 | |
| | | -------------------------- | |
| (=) Taxable Value: | = | $315,639 | |
Taxing Jurisdiction
| Owner: | BRAND TTEE, CAROLYN | | |
| % Ownership: | 100.0000000000% | | |
| Total Value: | $830,962 | | |
| Tax Area: | 712 - APPRAISER-S Whid Schl Dist, outside Langley, improved, greater than 1 acre |
| CF | Conservation Futures | 0.0316035091 | $830,962 | $315,639 | $9.98 | | |
| FIRE3 | Fire & Rescue Dist #3 S Whidbey GEN | 1.2004855531 | $830,962 | $315,639 | $378.92 | | |
| HOBOND | Hospital BOND | 0.0000000000 | $830,962 | $133,539 | $25.52 | | |
| HOGEN | Hospital GEN | 0.3902502903 | $830,962 | $315,639 | $123.18 | | |
| CE | County Current Expense | 0.3708482477 | $830,962 | $315,639 | $117.05 | | |
| CR | County Roads | 0.4584763726 | $830,962 | $315,639 | $144.71 | | |
| ISLANDEMS | Hospital GEN (EMS) | 0.5000000000 | $830,962 | $315,639 | $157.82 | | |
| LIB | Library Sno-Isle GEN | 0.3153421757 | $830,962 | $315,639 | $99.53 | | |
| PORTWHID | Port of S Whidbey GEN | 0.1094540357 | $830,962 | $315,639 | $34.55 | | |
| SCH206BOND | School 206 BOND | 0.3161759235 | $830,962 | $315,639 | $99.80 | | |
| SCH206MO | School 206 Enrichment | 0.0000000000 | $830,962 | $133,539 | $60.72 | | |
| ST | State School | 1.3035497053 | $830,962 | $315,639 | $411.45 | | |
| ST2 | State School Part 2 | 0.0000000000 | $830,962 | $133,539 | $109.10 | | |
| SWHIDPRBD | P & R S Whidbey BOND | 0.0000000000 | $830,962 | $133,539 | $2.04 | | |
| SWHIDPRBD2 | P & R S Whidbey BOND2 | 0.0000000000 | $830,962 | $133,539 | $1.86 | | |
| SWHIDPRMT | P & R S Whidbey GEN | 0.2053334452 | $830,962 | $315,639 | $64.81 | | |
| | Total Tax Rate: | 5.2015192582 | | | | | |
| | | | | Taxes w/Current Exemptions: | $1,841.04 | | |
| | | | | Taxes w/o Exemptions: | $5,562.00 | | |
Improvement / Building
| Improvement #1: | RESIDENTIAL | State Code: | Y | 693.8 sqft | Value: | $347,423 |
| Bathrooms: | 1 | Bedrooms: | 1 | | Ceiling: | TONGUE & GROOVE | Exterior Wall/Cover: | CEMENT FIBER | | Floor Covering: | TILE CERAMIC | Floor Structure: | WOOD W/SUBFLOOR | | Foundation: | CONCRETE | Heating: | RADIANT FLOOR | | Interior Finish: | DRYWALL PAINT | Plumbing Fixture Cnt: | 7 | | Roof Slope: | 10" IN 12" | Roof Structure/Cover: | CJ ALUMINIUM HEAVY |
|
| | Type | Description | Class CD | Sub Class CD | Year Built | Area |
| | BAS | BASE/MAIN FLOOR | 4 | 0 | 2004 | 693.8 |
| | OP1 | OPEN PORCH SLAB | 4 | 0 | 2004 | 224.0 |
| | OP2 | OPEN PORCH W/STEPS | 4 | 0 | 2004 | 64.0 |
| | OP4 | OPEN PORCH W/CEILING-ROOF | 4 | 0 | 2004 | 178.6 |
| | AGR | ATTACHED GARAGE | 4 | 0 | 2004 | 887.4 |
| Improvement #2: | RESIDENTIAL | State Code: | Y | 256.0 sqft | Value: | $133,539 |
| Bathrooms: | 1 | Bedrooms: | 1 | | Ceiling: | DRYWALL PAINTED | Exterior Wall/Cover: | CEMENT FIBER | | Floor Covering: | TILE CERAMIC | Floor Structure: | SLAB ABOVE GRADE | | Foundation: | CONCRETE | Heating: | RADIANT FLOOR | | Interior Finish: | DRYWALL PAINT | Plumbing Fixture Cnt: | 4 | | Roof Slope: | 8" IN 12" | Roof Structure/Cover: | CJ ALUMINIUM HEAVY |
|
| | Type | Description | Class CD | Sub Class CD | Year Built | Area |
| | BAS | BASE/MAIN FLOOR | 4 | 0 | 2004 | 256.0 |
| | OP1 | OPEN PORCH SLAB | 4 | 0 | 2004 | 480.0 |
| | BIG | BUILT IN GARAGE | 4 | 0 | 2004 | 384.0 |
| | ATF | ATTIC FINISHED | 4 | 0 | 2004 | 400.0 |
Sketch
Property Image
Land
| 1 | 32 | AC (03.01-09.99) | 5.0000 | 0.00 | 0.00 | 0.00 | 1.00 | $350,000 | $0 |
Roll Value History
| 2026 | N/A | N/A | N/A | N/A | N/A |
| 2025 | $480,962 | $350,000 | $0 | $830,962 | $315,639 |
| 2024 | $486,475 | $340,000 | $0 | $826,475 | $317,170 |
| 2023 | $491,987 | $320,000 | $0 | $811,987 | $318,699 |
| 2022 | $449,247 | $260,000 | $0 | $709,247 | $306,834 |
| 2021 | $394,126 | $230,000 | $0 | $624,126 | $291,532 |
| 2020 | $381,287 | $180,000 | $0 | $561,287 | $288,137 |
| 2019 | $257,958 | $220,000 | $0 | $477,958 | $477,958 |
| 2018 | $254,063 | $170,000 | $0 | $424,063 | $424,063 |
| 2017 | $255,373 | $160,000 | $0 | $415,373 | $415,373 |
| 2016 | $258,220 | $165,000 | $0 | $423,220 | $423,220 |
| 2015 | $261,063 | $135,000 | $0 | $396,063 | $396,063 |
| 2014 | $263,910 | $135,000 | $0 | $398,910 | $398,910 |
| 2013 | $249,070 | $135,000 | $0 | $384,070 | $384,070 |
| 2012 | $251,345 | $135,000 | $0 | $386,345 | $386,345 |
| 2011 | $253,618 | $135,000 | $0 | $388,618 | $388,618 |
| 2010 | $232,068 | $135,000 | $0 | $367,068 | $367,068 |
| 2009 | $242,261 | $195,000 | $0 | $437,261 | $437,261 |
| 2008 | $233,064 | $200,000 | $0 | $433,064 | $433,064 |
| 2007 | $235,525 | $168,750 | $0 | $404,275 | $404,275 |
Deed and Sales History
| 1 | 10/25/2018 | WD | Warranty Deed | GOLLOB, MICHAEL | BRAND TTEE, CAROLYN | | | $569,000.00 | 36575 | 4454667 |
| 2 | 12/09/2009 | WD | Warranty Deed | CLAAR, CRAIG B | GOLLOB, MICHAEL | | | $345,000.00 | 93226 | 4266347 |
| 3 | 03/18/2002 | WD | Warranty Deed | Unknown | CLAAR, CRAIG B | | | $79,500.00 | 21198 | 4015623 |
Payout Agreement
| No payout information available.. |