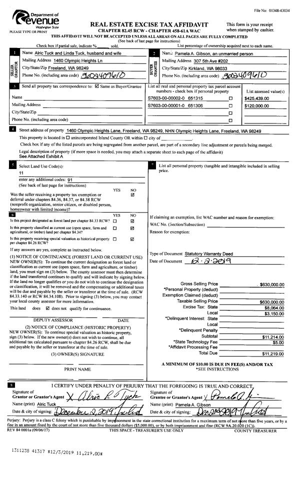
Property
Account |
| Property ID: | 802849 | Abbreviated Legal Description: | LOT 3 SP 458-97.22908.362-3550 V3 SP P334 AF#20018022 |
| Geographic ID: | R22908-345-3410 | Agent Code: | |
| Type: | Real | | |
| Tax Area: | 712 - APPRAISER-S Whid Schl Dist, outside Langley, improved, greater than 1 acre | Land Use Code | 11 |
| Open Space: | N | DFL | N |
| Historic Property: | N | Remodel Property: | N |
| Multi-Family Redevelopment: | N | | |
| Township: | 29 | Section: | 08 |
| Range: | R2 |
Location |
| Address: | 635 BUSH POINT RD FREELAND, WA 98249 | Mapsco: | |
| Neighborhood: | Cycle 3 | Map ID: | 304 |
| Neighborhood CD: | 3 |
Owner |
| Name: | STRELOW, JAN A | Owner ID: | 13486 |
| Mailing Address: | SALLY A STRELOW PO BOX 519 FREELAND, WA 98249-0519 | % Ownership: | 100.0000000000% |
| | | Exemptions: | |
Taxes and Assessment Details
Values
| (+) Improvement Homesite Value: | + | $0 | |
| (+) Improvement Non-Homesite Value: | + | $59,280 | |
| (+) Land Homesite Value: | + | $0 | |
| (+) Land Non-Homesite Value: | + | $210,000 | |
| (+) Curr Use (HS): | + | $0 | $0 |
| (+) Curr Use (NHS): | + | $0 | $0 |
| | | -------------------------- | |
| (=) Market Value: | = | $269,280 | |
| (–) Productivity Loss: | – | $0 | |
| | | -------------------------- | |
| (=) Subtotal: | = | $269,280 | |
| (+) Senior Appraised Value: | + | $0 | |
| (+) Non-Senior Appraised Value: | + | $269,280 | |
| | | -------------------------- | |
| (=) Total Appraised Value: | = | $269,280 | |
| (–) Senior Exemption Loss: | – | $0 | |
| (–) Exemption Loss: | – | $0 | |
| | | -------------------------- | |
| (=) Taxable Value: | = | $269,280 | |
Taxing Jurisdiction
| Owner: | STRELOW, JAN A | | |
| % Ownership: | 100.0000000000% | | |
| Total Value: | $269,280 | | |
| Tax Area: | 712 - APPRAISER-S Whid Schl Dist, outside Langley, improved, greater than 1 acre |
| CF | Conservation Futures | 0.0316035091 | $269,280 | $269,280 | $8.51 | | |
| FIRE3 | Fire & Rescue Dist #3 S Whidbey GEN | 1.2004855531 | $269,280 | $269,280 | $323.27 | | |
| HOBOND | Hospital BOND | 0.1910887512 | $269,280 | $269,280 | $51.46 | | |
| HOGEN | Hospital GEN | 0.3902502903 | $269,280 | $269,280 | $105.09 | | |
| CE | County Current Expense | 0.3708482477 | $269,280 | $269,280 | $99.86 | | |
| CR | County Roads | 0.4584763726 | $269,280 | $269,280 | $123.46 | | |
| ISLANDEMS | Hospital GEN (EMS) | 0.5000000000 | $269,280 | $269,280 | $134.64 | | |
| LIB | Library Sno-Isle GEN | 0.3153421757 | $269,280 | $269,280 | $84.92 | | |
| PORTWHID | Port of S Whidbey GEN | 0.1094540357 | $269,280 | $269,280 | $29.47 | | |
| SCH206BOND | School 206 BOND | 0.3161759235 | $269,280 | $269,280 | $85.14 | | |
| SCH206MO | School 206 Enrichment | 0.4547169547 | $269,280 | $269,280 | $122.45 | | |
| ST | State School | 1.3035497053 | $269,280 | $269,280 | $351.02 | | |
| ST2 | State School Part 2 | 0.8169543533 | $269,280 | $269,280 | $219.99 | | |
| SWHIDPRBD | P & R S Whidbey BOND | 0.0152817568 | $269,280 | $269,280 | $4.12 | | |
| SWHIDPRBD2 | P & R S Whidbey BOND2 | 0.0138911264 | $269,280 | $269,280 | $3.74 | | |
| SWHIDPRMT | P & R S Whidbey GEN | 0.2053334452 | $269,280 | $269,280 | $55.29 | | |
| | Total Tax Rate: | 6.6934522006 | | | | | |
| | | | | Taxes w/Current Exemptions: | $1,802.43 | | |
| | | | | Taxes w/o Exemptions: | $1,802.43 | | |
Improvement / Building
| Improvement #1: | MISC | State Code: | Y | 0.0 sqft | Value: | $59,280 |
Sketch
Property Image
Land
| 1 | 32 | AC (03.01-09.99) | 4.8100 | 0.00 | 0.00 | 0.00 | 1.00 | $210,000 | $0 |
Roll Value History
| 2026 | N/A | N/A | N/A | N/A | N/A |
| 2025 | $59,280 | $210,000 | $0 | $269,280 | $269,280 |
| 2024 | $59,280 | $200,000 | $0 | $259,280 | $259,280 |
| 2023 | $59,280 | $180,000 | $0 | $239,280 | $239,280 |
| 2022 | $59,280 | $170,000 | $0 | $229,280 | $229,280 |
| 2021 | $59,280 | $115,000 | $0 | $174,280 | $174,280 |
| 2020 | $59,280 | $90,000 | $0 | $149,280 | $149,280 |
| 2019 | $50,000 | $120,000 | $0 | $170,000 | $170,000 |
| 2018 | $50,000 | $85,000 | $0 | $135,000 | $135,000 |
| 2017 | $50,000 | $75,000 | $0 | $125,000 | $125,000 |
| 2016 | $50,000 | $140,000 | $0 | $190,000 | $190,000 |
| 2015 | $50,000 | $129,870 | $0 | $179,870 | $179,870 |
| 2014 | $50,000 | $129,870 | $0 | $179,870 | $179,870 |
| 2013 | $67,619 | $129,870 | $0 | $197,489 | $197,489 |
| 2012 | $67,619 | $129,870 | $0 | $197,489 | $197,489 |
| 2011 | $67,619 | $129,870 | $0 | $197,489 | $197,489 |
| 2010 | $70,588 | $129,870 | $0 | $200,458 | $200,458 |
| 2009 | $71,401 | $178,090 | $0 | $249,491 | $249,491 |
| 2008 | $72,207 | $182,900 | $0 | $255,107 | $255,107 |
| 2007 | $0 | $152,838 | $0 | $152,838 | $152,838 |
Deed and Sales History
| 1 | 02/23/2006 | WD | Warranty Deed | SWANK, MATTHEW D | STRELOW, JAN A | | | $159,000.00 | 60865 | 4163594 |
| 2 | 04/03/2002 | WD | Warranty Deed | BUSH POINT INVESTMENTS INC, | SWANK, MATTHEW D | | | $89,500.00 | 21306 | 4016375 |
| 3 | 01/01/1900 | OTHER | Other - Misc. Documents | Unknown | BUSH POINT INVESTMENTS INC, | | | $0.00 | 0 | 0 |
Payout Agreement
| No payout information available.. |