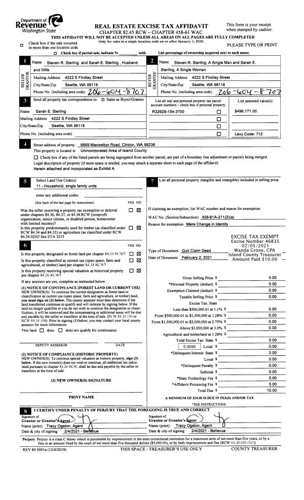
Property
Account |
| Property ID: | 802898 | Abbreviated Legal Description: | MADRONA HEIGHTS CONDO PH III UNIT G4 2.32% INT |
| Geographic ID: | S7446-03-000G4-0 | Agent Code: | |
| Type: | Real | | |
| Tax Area: | 100 - APPRAISER-OH Schl Dist, in OH | Land Use Code | 14 |
| Open Space: | N | DFL | N |
| Historic Property: | N | Remodel Property: | N |
| Multi-Family Redevelopment: | N | | |
| Township: | | Section: | |
| Range: | |
Location |
| Address: | 30875 SR20 UNIT G4 OAK HARBOR, WA 98277 | Mapsco: | |
| Neighborhood: | 11*OH-madrona hgt | Map ID: | 91 |
| Neighborhood CD: | 11*OHmdhgt |
Owner |
| Name: | CART, GLEN DAVID | Owner ID: | 315928 |
| Mailing Address: | DOI-AYNN CART 30875 SR 20, UNIT G4 OAK HARBOR, WA 98277 | % Ownership: | 100.0000000000% |
| | | Exemptions: | |
Taxes and Assessment Details
Values
| (+) Improvement Homesite Value: | + | $0 | |
| (+) Improvement Non-Homesite Value: | + | $222,602 | |
| (+) Land Homesite Value: | + | $0 | |
| (+) Land Non-Homesite Value: | + | $100,000 | |
| (+) Curr Use (HS): | + | $0 | $0 |
| (+) Curr Use (NHS): | + | $0 | $0 |
| | | -------------------------- | |
| (=) Market Value: | = | $322,602 | |
| (–) Productivity Loss: | – | $0 | |
| | | -------------------------- | |
| (=) Subtotal: | = | $322,602 | |
| (+) Senior Appraised Value: | + | $0 | |
| (+) Non-Senior Appraised Value: | + | $322,602 | |
| | | -------------------------- | |
| (=) Total Appraised Value: | = | $322,602 | |
| (–) Senior Exemption Loss: | – | $0 | |
| (–) Exemption Loss: | – | $0 | |
| | | -------------------------- | |
| (=) Taxable Value: | = | $322,602 | |
Taxing Jurisdiction
| Owner: | CART, GLEN DAVID | | |
| % Ownership: | 100.0000000000% | | |
| Total Value: | $322,602 | | |
| Tax Area: | 100 - APPRAISER-OH Schl Dist, in OH |
| CF | Conservation Futures | 0.0316035091 | $322,602 | $322,602 | $10.20 | | |
| CEM1 | Cemetery #1 | 0.0040320932 | $322,602 | $322,602 | $1.30 | | |
| COH | City of Oak Harbor | 2.3001546061 | $322,602 | $322,602 | $742.03 | | |
| OAKBOND | City of Oak Harbor BOND | 0.1926904192 | $322,602 | $322,602 | $62.16 | | |
| HOBOND | Hospital BOND | 0.1910887512 | $322,602 | $322,602 | $61.65 | | |
| HOGEN | Hospital GEN | 0.3902502903 | $322,602 | $322,602 | $125.90 | | |
| CE | County Current Expense | 0.3708482477 | $322,602 | $322,602 | $119.64 | | |
| ISLANDEMS | Hospital GEN (EMS) | 0.5000000000 | $322,602 | $322,602 | $161.30 | | |
| LIB | Library Sno-Isle GEN | 0.3153421757 | $322,602 | $322,602 | $101.73 | | |
| NWHIDPRMT | P & R N Whidbey GEN | 0.2004466701 | $322,602 | $322,602 | $64.66 | | |
| SCH201MO | School 201 Enrichment | 1.8559231640 | $322,602 | $322,602 | $598.72 | | |
| ST | State School | 1.3035497053 | $322,602 | $322,602 | $420.53 | | |
| ST2 | State School Part 2 | 0.8169543533 | $322,602 | $322,602 | $263.55 | | |
| | Total Tax Rate: | 8.4728839852 | | | | | |
| | | | | Taxes w/Current Exemptions: | $2,733.37 | | |
| | | | | Taxes w/o Exemptions: | $2,733.37 | | |
Improvement / Building
| Improvement #1: | RESIDENTIAL | State Code: | Y | 1397.6 sqft | Value: | $222,602 |
| Bathrooms: | 2.5 | Bedrooms: | 3 | | Ceiling: | DRYWALL PAINTED | Exterior Wall/Cover: | CEMENT FIBER | | Floor Covering: | CARPET/VINYL 80-20 | Floor Structure: | WOOD W/SUBFLOOR | | Foundation: | CONCRETE | Heating: | FHA GAS | | Interior Finish: | DRYWALL PAINT | Plumbing Fixture Cnt: | 11 | | Roof Slope: | 5" IN 12" | Roof Structure/Cover: | CJ ASPHALT |
|
| | Type | Description | Class CD | Sub Class CD | Year Built | Area |
| | BAS | BASE/MAIN FLOOR | 3 | 0 | 2000 | 549.6 |
| | BIG | BUILT IN GARAGE | 3 | 0 | 2000 | 242.0 |
| | UPS | UPPER STORY | 3 | 0 | 2000 | 848.0 |
| | oPV1 | PV/ASPH 2" | 3 | 0 | 2000 | 0.0 |
| | OWP | OPEN WOOD PORCH W/STEPS | 3 | 0 | 2000 | 80.0 |
Sketch
Property Image
Land
| 1 | 61 | MULTIPLE RESIDENCES | 0.0000 | 2800.00 | 0.00 | 0.00 | 1.00 | $100,000 | $0 |
Roll Value History
| 2026 | N/A | N/A | N/A | N/A | N/A |
| 2025 | $222,602 | $100,000 | $0 | $322,602 | $322,602 |
| 2024 | $225,335 | $100,000 | $0 | $325,335 | $325,335 |
| 2023 | $217,136 | $100,000 | $0 | $317,136 | $317,136 |
| 2022 | $199,148 | $100,000 | $0 | $299,148 | $299,148 |
| 2021 | $175,410 | $70,000 | $0 | $245,410 | $245,410 |
| 2020 | $170,576 | $45,000 | $0 | $215,576 | $215,576 |
| 2019 | $120,665 | $90,000 | $0 | $210,665 | $210,665 |
| 2018 | $121,025 | $65,000 | $0 | $186,025 | $186,025 |
| 2017 | $148,507 | $8,600 | $0 | $157,107 | $157,107 |
| 2016 | $150,311 | $8,600 | $0 | $158,911 | $158,911 |
| 2015 | $128,712 | $8,600 | $0 | $137,312 | $137,312 |
| 2014 | $97,086 | $8,600 | $0 | $105,686 | $105,686 |
| 2013 | $98,225 | $8,600 | $0 | $106,825 | $106,825 |
| 2012 | $127,322 | $8,600 | $0 | $135,922 | $135,922 |
| 2011 | $127,322 | $18,284 | $0 | $145,606 | $145,606 |
| 2010 | $133,841 | $18,284 | $0 | $152,125 | $152,125 |
| 2009 | $139,559 | $39,200 | $0 | $178,759 | $178,759 |
| 2008 | $141,231 | $47,600 | $0 | $188,831 | $188,831 |
| 2007 | $141,446 | $56,000 | $0 | $197,446 | $197,446 |
Deed and Sales History
| 1 | 03/11/2025 | WD | Warranty Deed | KANETZKY, KENNETH EVAN | CART, GLEN DAVID | | | $340,000.00 | 62928 | 4583675 |
| 2 | 10/30/2020 | WD | Warranty Deed | BAIR, JORDAN | KANETZKY, KENNETH EVAN | | | $279,900.00 | 45631 | 4502022 |
| 3 | 10/22/2009 | WD | Warranty Deed | VANECEK, FRANK R | BAIR, JORDAN | | | $177,000.00 | 92639 | 4262815 |
| 4 | 06/23/2005 | WD | Warranty Deed | GARDNER, SHANE H | VANECEK, FRANK R | | | $165,000.00 | 53087 | 4139516 |
| 5 | 01/02/2001 | WD | Warranty Deed | MANOR PROPERTIES II LLC, | GARDNER, SHANE H | | | $121,000.00 | 10041 | 20022921 |
| 6 | 01/01/1900 | OTHER | Other - Misc. Documents | Unknown | MANOR PROPERTIES II LLC, | | | $0.00 | 0 | 0 |
Payout Agreement
| No payout information available.. |