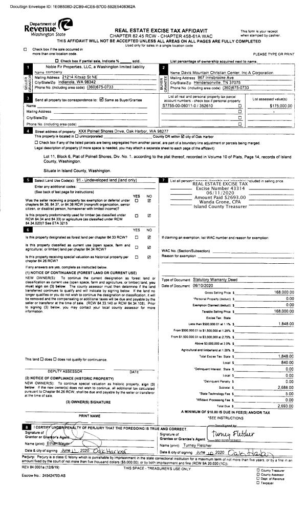
Property
Account |
| Property ID: | 802944 | Abbreviated Legal Description: | PENN COVE VIEW LOT 3 |
| Geographic ID: | S7734-00-00003-0 | Agent Code: | |
| Type: | Real | | |
| Tax Area: | 300 - APPRAISER-Cpvl Schl Dist, in Cpvl | Land Use Code | 11 |
| Open Space: | N | DFL | N |
| Historic Property: | N | Remodel Property: | N |
| Multi-Family Redevelopment: | N | | |
| Township: | | Section: | |
| Range: | |
Location |
| Address: | 1204 NE BURNHAM PLACE COUPEVILLE, WA 98239 | Mapsco: | |
| Neighborhood: | Cycle 2 | Map ID: | 183 |
| Neighborhood CD: | 2 |
Owner |
| Name: | RUNK, ALICE | Owner ID: | 279387 |
| Mailing Address: | JANET CHAYKIN 1204 NE BURNHAM PL COUPEVILLE, WA 98239 | % Ownership: | 100.0000000000% |
| | | Exemptions: | |
Taxes and Assessment Details
Values
| (+) Improvement Homesite Value: | + | $0 | |
| (+) Improvement Non-Homesite Value: | + | $676,924 | |
| (+) Land Homesite Value: | + | $0 | |
| (+) Land Non-Homesite Value: | + | $525,000 | |
| (+) Curr Use (HS): | + | $0 | $0 |
| (+) Curr Use (NHS): | + | $0 | $0 |
| | | -------------------------- | |
| (=) Market Value: | = | $1,201,924 | |
| (–) Productivity Loss: | – | $0 | |
| | | -------------------------- | |
| (=) Subtotal: | = | $1,201,924 | |
| (+) Senior Appraised Value: | + | $0 | |
| (+) Non-Senior Appraised Value: | + | $1,201,924 | |
| | | -------------------------- | |
| (=) Total Appraised Value: | = | $1,201,924 | |
| (–) Senior Exemption Loss: | – | $0 | |
| (–) Exemption Loss: | – | $0 | |
| | | -------------------------- | |
| (=) Taxable Value: | = | $1,201,924 | |
Taxing Jurisdiction
| Owner: | RUNK, ALICE | | |
| % Ownership: | 100.0000000000% | | |
| Total Value: | $1,201,924 | | |
| Tax Area: | 300 - APPRAISER-Cpvl Schl Dist, in Cpvl |
| CF | Conservation Futures | 0.0316035091 | $1,201,924 | $1,201,924 | $37.99 | | |
| CEM2 | Cemetery #2 | 0.0095056933 | $1,201,924 | $1,201,924 | $11.43 | | |
| COUP | City: Town of Coupeville | 0.8426414490 | $1,201,924 | $1,201,924 | $1,012.79 | | |
| FIRE5 | Fire & Rescue Dist #5 C Whidbey GEN | 1.2008080668 | $1,201,924 | $1,201,924 | $1,443.28 | | |
| FIRE5BOND | Fire & Rescue Dist #5 C Whidbey BOND | 0.1400090713 | $1,201,924 | $1,201,924 | $168.28 | | |
| HOBOND | Hospital BOND | 0.1910887512 | $1,201,924 | $1,201,924 | $229.67 | | |
| HOGEN | Hospital GEN | 0.3902502903 | $1,201,924 | $1,201,924 | $469.05 | | |
| CE | County Current Expense | 0.3708482477 | $1,201,924 | $1,201,924 | $445.73 | | |
| ISLANDEMS | Hospital GEN (EMS) | 0.5000000000 | $1,201,924 | $1,201,924 | $600.96 | | |
| LIB | Library Sno-Isle GEN | 0.3153421757 | $1,201,924 | $1,201,924 | $379.02 | | |
| LIBCAP | Library Sno-Isle BOND (Cap Fac Imp Area) | 0.0543427938 | $1,201,924 | $1,201,924 | $65.32 | | |
| POCOUP | Port of Coupeville GEN | 0.1093371703 | $1,201,924 | $1,201,924 | $131.41 | | |
| POCOUPIDD | Port of Coupeville IDD | 0.3409740022 | $1,201,924 | $1,201,924 | $409.82 | | |
| COUPSDTECH | School 204 CP (TECH) | 0.7545480007 | $1,201,924 | $1,201,924 | $906.91 | | |
| SCH204MO | School 204 Enrichment | 0.6716186034 | $1,201,924 | $1,201,924 | $807.23 | | |
| ST | State School | 1.3035497053 | $1,201,924 | $1,201,924 | $1,566.77 | | |
| ST2 | State School Part 2 | 0.8169543533 | $1,201,924 | $1,201,924 | $981.92 | | |
| | Total Tax Rate: | 8.0434218834 | | | | | |
| | | | | Taxes w/Current Exemptions: | $9,667.58 | | |
| | | | | Taxes w/o Exemptions: | $9,667.58 | | |
Improvement / Building
| Improvement #1: | RESIDENTIAL | State Code: | Y | 2989.5 sqft | Value: | $676,924 |
| Bathrooms: | 3 | Bedrooms: | 3 | | Ceiling: | DRYWALL PAINTED | Exterior Wall/Cover: | CEMENT FIBER | | Floor Covering: | HARDWOOD/CARP 60-40 | Floor Structure: | WOOD W/SUBFLOOR | | Foundation: | CONCRETE | Heating: | FHA GAS | | Interior Finish: | DRYWALL PAINT | Plumbing Fixture Cnt: | 15 | | Roof Slope: | 6" IN 12" | Roof Structure/Cover: | CJ ASPHALT |
|
| | Type | Description | Class CD | Sub Class CD | Year Built | Area |
| | BAS | BASE/MAIN FLOOR | 5 | 0 | 2004 | 2013.7 |
| | DWN | DOWNSTAIRS LIVING AREA | 5 | 0 | 2004 | 975.8 |
| | OP1 | OPEN PORCH SLAB | 5 | 0 | 2004 | 358.0 |
| | OP4 | OPEN PORCH W/CEILING-ROOF | 5 | 0 | 2004 | 32.1 |
| | AGR | ATTACHED GARAGE | 5 | 0 | 2004 | 732.0 |
| | UTY | STORAGE/UTILITY | 5 | 0 | 2004 | 60.0 |
| | OWP | OPEN WOOD PORCH W/STEPS | 5 | 0 | 2004 | 882.7 |
Sketch
| No sketches available for this property. |
Property Image
Land
| 1 | HB | HIGH BLUFF | 1.4600 | 63597.60 | 180.00 | 0.00 | 1.00 | $525,000 | $0 |
Roll Value History
| 2026 | N/A | N/A | N/A | N/A | N/A |
| 2025 | $676,924 | $525,000 | $0 | $1,201,924 | $1,201,924 |
| 2024 | $682,142 | $500,000 | $0 | $1,182,142 | $1,182,142 |
| 2023 | $687,733 | $500,000 | $0 | $1,187,733 | $1,187,733 |
| 2022 | $627,826 | $450,000 | $0 | $1,077,826 | $1,077,826 |
| 2021 | $550,322 | $375,000 | $0 | $925,322 | $925,322 |
| 2020 | $498,670 | $300,000 | $0 | $798,670 | $798,670 |
| 2019 | $428,596 | $350,000 | $0 | $778,596 | $778,596 |
| 2018 | $423,497 | $325,000 | $0 | $748,497 | $748,497 |
| 2017 | $425,673 | $300,000 | $0 | $725,673 | $725,673 |
| 2016 | $430,565 | $300,000 | $0 | $730,565 | $730,565 |
| 2015 | $435,459 | $300,000 | $0 | $735,459 | $735,459 |
| 2014 | $440,353 | $300,000 | $0 | $740,353 | $740,353 |
| 2013 | $445,245 | $347,009 | $0 | $792,254 | $792,254 |
| 2012 | $462,604 | $347,009 | $0 | $809,613 | $809,613 |
| 2011 | $467,582 | $347,009 | $0 | $814,591 | $814,591 |
| 2010 | $464,221 | $347,009 | $0 | $811,230 | $811,230 |
| 2009 | $478,739 | $403,641 | $0 | $882,380 | $882,380 |
| 2008 | $484,173 | $403,641 | $0 | $887,814 | $887,814 |
| 2007 | $489,558 | $384,132 | $0 | $873,690 | $873,690 |
Deed and Sales History
| 1 | 12/12/2019 | WD | Warranty Deed | KRAUSHAR, CHARLES MICHAEL | RUNK, ALICE | | | $830,000.00 | 41468 | 4477548 |
| 2 | 06/19/2015 | WD | Warranty Deed | OLIVER 25% INT, DOUGLAS J | KRAUSHAR, CHARLES MICHAEL | | | $725,000.00 | 20149 | 4380847 |
| 3 | 09/30/2014 | QCD | Quit Claim Deed | OLIVER, DOUGLAS J | OLIVER 25% INT, DOUGLAS J | | | $0.00 | 16992 | 4366290 |
| 4 | 08/29/2003 | WD | Warranty Deed | FRANCISCO, RICHARD | OLIVER, DOUGLAS J | | | $199,000.00 | 33971 | 4073945 |
| 5 | 01/01/1900 | OTHER | Other - Misc. Documents | Unknown | FRANCISCO, RICHARD | | | $0.00 | 0 | 0 |
Payout Agreement
| No payout information available.. |