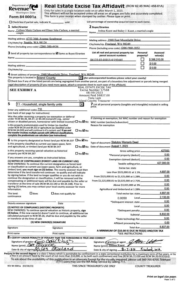
Property
Account |
| Property ID: | 802994 | Abbreviated Legal Description: | PT OF FOLL DESC LY SLY OF CARP LAKE RD: W/3 SW SW SE SUB TO EZ |
| Geographic ID: | R23235-012-2740 | Agent Code: | |
| Type: | Real | | |
| Tax Area: | 519 - APPRAISER-Stan/Cam Schl Dist, vacant & 50 acres or less | Land Use Code | 91 |
| Open Space: | N | DFL | N |
| Historic Property: | N | Remodel Property: | N |
| Multi-Family Redevelopment: | N | | |
| Township: | 32 | Section: | 35 |
| Range: | R2 |
Location |
| Address: | | Mapsco: | |
| Neighborhood: | North Camano | Map ID: | 576 |
| Neighborhood CD: | 06-C |
Owner |
| Name: | SNOHOMISH 29 LAND, LLC | Owner ID: | 306655 |
| Mailing Address: | 6333 83RD AVE SE SNOHOMISH, WA 98290 | % Ownership: | 100.0000000000% |
| | | Exemptions: | |
Taxes and Assessment Details
Values
| (+) Improvement Homesite Value: | + | $0 | |
| (+) Improvement Non-Homesite Value: | + | $0 | |
| (+) Land Homesite Value: | + | $0 | |
| (+) Land Non-Homesite Value: | + | $160,000 | |
| (+) Curr Use (HS): | + | $0 | $0 |
| (+) Curr Use (NHS): | + | $0 | $0 |
| | | -------------------------- | |
| (=) Market Value: | = | $160,000 | |
| (–) Productivity Loss: | – | $0 | |
| | | -------------------------- | |
| (=) Subtotal: | = | $160,000 | |
| (+) Senior Appraised Value: | + | $0 | |
| (+) Non-Senior Appraised Value: | + | $160,000 | |
| | | -------------------------- | |
| (=) Total Appraised Value: | = | $160,000 | |
| (–) Senior Exemption Loss: | – | $0 | |
| (–) Exemption Loss: | – | $0 | |
| | | -------------------------- | |
| (=) Taxable Value: | = | $160,000 | |
Taxing Jurisdiction
| Owner: | SNOHOMISH 29 LAND, LLC | | |
| % Ownership: | 100.0000000000% | | |
| Total Value: | $160,000 | | |
| Tax Area: | 519 - APPRAISER-Stan/Cam Schl Dist, vacant & 50 acres or less |
| CF | Conservation Futures | 0.0316035091 | $160,000 | $160,000 | $5.06 | | |
| EMS1 | Fire & Rescue Dist #1 Camano GEN (EMS) | 0.3677864386 | $160,000 | $160,000 | $58.85 | | |
| CE | County Current Expense | 0.3708482477 | $160,000 | $160,000 | $59.34 | | |
| CR | County Roads | 0.4584763726 | $160,000 | $160,000 | $73.36 | | |
| LCIB | Library Sno-Isle BOND (Camano Island) | 0.0396325772 | $160,000 | $160,000 | $6.34 | | |
| LIB | Library Sno-Isle GEN | 0.3153421757 | $160,000 | $160,000 | $50.45 | | |
| SCH205_401 | School 205-401 Enrichment | 1.2698420524 | $160,000 | $160,000 | $203.17 | | |
| SCH205BOND | School 205-401 BOND | 0.9396497583 | $160,000 | $160,000 | $150.34 | | |
| ST | State School | 1.3035497053 | $160,000 | $160,000 | $208.57 | | |
| ST2 | State School Part 2 | 0.8169543533 | $160,000 | $160,000 | $130.71 | | |
| | Total Tax Rate: | 5.9136851902 | | | | | |
| | | | | Taxes w/Current Exemptions: | $946.19 | | |
| | | | | Taxes w/o Exemptions: | $946.19 | | |
Improvement / Building
Sketch
| No sketches available for this property. |
Property Image
Land
| 1 | 17 | AC (01.01-02.00) | 1.3700 | 59677.20 | 0.00 | 0.00 | 1.00 | $160,000 | $0 |
Roll Value History
| 2026 | N/A | N/A | N/A | N/A | N/A |
| 2025 | $0 | $160,000 | $0 | $160,000 | $160,000 |
| 2024 | $0 | $150,000 | $0 | $150,000 | $150,000 |
| 2023 | $0 | $120,000 | $0 | $120,000 | $120,000 |
| 2022 | $0 | $55,000 | $0 | $55,000 | $55,000 |
| 2021 | $0 | $45,000 | $0 | $45,000 | $45,000 |
| 2020 | $0 | $45,000 | $0 | $45,000 | $45,000 |
| 2019 | $0 | $100,000 | $0 | $100,000 | $100,000 |
| 2018 | $0 | $80,000 | $0 | $80,000 | $80,000 |
| 2017 | $0 | $70,000 | $0 | $70,000 | $70,000 |
| 2016 | $0 | $75,000 | $0 | $75,000 | $75,000 |
| 2015 | $0 | $89,440 | $0 | $89,440 | $89,440 |
| 2014 | $0 | $89,440 | $0 | $89,440 | $89,440 |
| 2013 | $0 | $89,440 | $0 | $89,440 | $89,440 |
| 2012 | $0 | $89,440 | $0 | $89,440 | $89,440 |
| 2011 | $0 | $111,800 | $0 | $111,800 | $111,800 |
| 2010 | $0 | $111,800 | $0 | $111,800 | $111,800 |
| 2009 | $0 | $96,000 | $0 | $96,000 | $96,000 |
| 2008 | $0 | $95,000 | $0 | $95,000 | $95,000 |
| 2007 | $0 | $95,000 | $0 | $95,000 | $95,000 |
Deed and Sales History
| 1 | 11/10/2022 | WD | Warranty Deed | FALCON CREST LAND LLC | SNOHOMISH 29 LAND, LLC | | | $332,500.00 | 55123 | 4553663 |
|   | |
| 2 | 06/19/2009 | QCD | Quit Claim Deed | THE BUBLITZ FAMILY TRUST, | FALCON CREST LAND LLC, | | | $0.00 | 91380 | 4254410 |
| 3 | 06/23/2008 | WD | Warranty Deed | KITCHNER, THEODORE M | THE BUBLITZ FAMILY TRUST, | | | $112,500.00 | 81684 | 4231792 |
| 4 | 08/03/2001 | SEG | DNU - Segregation | Unknown | KITCHNER, THEODORE M | | | $0.00 | 69080 | 0 |
Payout Agreement
| No payout information available.. |