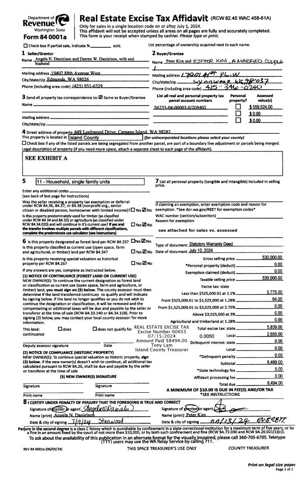
Property
Account |
| Property ID: | 803005 | Abbreviated Legal Description: | WLY 339' OF NW SE EX SLY 30' |
| Geographic ID: | R13205-200-2800 | Agent Code: | |
| Type: | Real | | |
| Tax Area: | 112 - APPRAISER-OH Schl Dist, outside OH, improved, greater than 1 acre | Land Use Code | 83 |
| Open Space: | Y | DFL | N |
| Historic Property: | N | Remodel Property: | N |
| Multi-Family Redevelopment: | N | | |
| Township: | 32 | Section: | 05 |
| Range: | R1 |
Location |
| Address: | 2388 ZYLSTRA RD OAK HARBOR, WA 98277 | Mapsco: | |
| Neighborhood: | Cycle 1 | Map ID: | 99 |
| Neighborhood CD: | 1 |
Owner |
| Name: | NIENHUIS, SARAH | Owner ID: | 202821 |
| Mailing Address: | 2388 ZYLSTRA RD OAK HARBOR, WA 98277 | % Ownership: | 100.0000000000% |
| | | Exemptions: | |
Taxes and Assessment Details
Values
| (+) Improvement Homesite Value: | + | $0 | |
| (+) Improvement Non-Homesite Value: | + | $221,170 | |
| (+) Land Homesite Value: | + | $0 | |
| (+) Land Non-Homesite Value: | + | $220,000 | |
| (+) Curr Use (HS): | + | $0 | $0 |
| (+) Curr Use (NHS): | + | $130,000 | $2,191 |
| | | -------------------------- | |
| (=) Market Value: | = | $571,170 | |
| (–) Productivity Loss: | – | $127,809 | |
| | | -------------------------- | |
| (=) Subtotal: | = | $443,361 | |
| (+) Senior Appraised Value: | + | $0 | |
| (+) Non-Senior Appraised Value: | + | $443,361 | |
| | | -------------------------- | |
| (=) Total Appraised Value: | = | $443,361 | |
| (–) Senior Exemption Loss: | – | $0 | |
| (–) Exemption Loss: | – | $0 | |
| | | -------------------------- | |
| (=) Taxable Value: | = | $443,361 | |
Taxing Jurisdiction
| Owner: | NIENHUIS, SARAH | | |
| % Ownership: | 100.0000000000% | | |
| Total Value: | $571,170 | | |
| Tax Area: | 112 - APPRAISER-OH Schl Dist, outside OH, improved, greater than 1 acre |
| CF | Conservation Futures | 0.0316035091 | $443,361 | $443,361 | $14.01 | | |
| CEM1 | Cemetery #1 | 0.0040320932 | $443,361 | $443,361 | $1.79 | | |
| FIRE2 | Fire & Rescue Dist #2 N Whidbey GEN | 0.5475949600 | $443,361 | $443,361 | $242.78 | | |
| HOBOND | Hospital BOND | 0.1910887512 | $443,361 | $443,361 | $84.72 | | |
| HOGEN | Hospital GEN | 0.3902502903 | $443,361 | $443,361 | $173.02 | | |
| CE | County Current Expense | 0.3708482477 | $443,361 | $443,361 | $164.42 | | |
| CR | County Roads | 0.4584763726 | $443,361 | $443,361 | $203.27 | | |
| ISLANDEMS | Hospital GEN (EMS) | 0.5000000000 | $443,361 | $443,361 | $221.68 | | |
| LIB | Library Sno-Isle GEN | 0.3153421757 | $443,361 | $443,361 | $139.81 | | |
| NWHIDPRMT | P & R N Whidbey GEN | 0.2004466701 | $443,361 | $443,361 | $88.87 | | |
| SCH201MO | School 201 Enrichment | 1.8559231640 | $443,361 | $443,361 | $822.84 | | |
| ST | State School | 1.3035497053 | $443,361 | $443,361 | $577.94 | | |
| ST2 | State School Part 2 | 0.8169543533 | $443,361 | $443,361 | $362.21 | | |
| | Total Tax Rate: | 6.9861102925 | | | | | |
| | | | | Taxes w/Current Exemptions: | $3,097.36 | | |
| | | | | Taxes w/o Exemptions: | $3,097.36 | | |
Improvement / Building
| Improvement #1: | RESIDENTIAL | State Code: | Y | 1105.0 sqft | Value: | $221,170 |
| Bathrooms: | 1 | Bedrooms: | 2 | | Ceiling: | DRYWALL PAINTED | Exterior Wall/Cover: | FACE BRICK VENEER | | Floor Covering: | CARPET/VINYL 60-40 | Floor Structure: | WOOD W/SUBFLOOR | | Foundation: | CONCRETE BLOCKS | Heating: | BASEBOARD ELECTRIC | | Interior Finish: | DRYWALL PAINT | Plumbing Fixture Cnt: | 6 | | Roof Slope: | 4" IN 12" | Roof Structure/Cover: | CJ ASPHALT |
|
| | Type | Description | Class CD | Sub Class CD | Year Built | Area |
| | BAS | BASE/MAIN FLOOR | 3 | 0 | 1963 | 1105.0 |
| | CPD | OPEN CARPORT DIRT FLOOR | 3 | 0 | 1963 | 260.0 |
| | DGR | DETACHED GARAGE | 3 | 0 | 1963 | 572.0 |
| | CPD | OPEN CARPORT DIRT FLOOR | 3 | 0 | 1963 | 1673.0 |
| | DGR | DETACHED GARAGE | 3 | 0 | 1963 | 424.0 |
| | UTY | STORAGE/UTILITY | 3 | 0 | 1963 | 280.0 |
Sketch
Property Image
Land
| 1 | 83 | OPEN AGRICULTURE | 9.0200 | 392911.20 | 0.00 | 0.00 | 1.00 | $130,000 | $2,191 |
| 2 | HS | HOMESITE | 1.0000 | 43560.00 | 0.00 | 0.00 | 1.00 | $220,000 | $0 |
Roll Value History
| 2026 | N/A | N/A | N/A | N/A | N/A |
| 2025 | $221,170 | $350,000 | $2,191 | $443,361 | $443,361 |
| 2024 | $228,952 | $310,000 | $2,191 | $431,143 | $431,143 |
| 2023 | $226,733 | $290,000 | $2,191 | $257,866 | $257,866 |
| 2022 | $208,518 | $270,000 | $2,191 | $237,709 | $237,709 |
| 2021 | $184,084 | $255,000 | $2,191 | $211,724 | $211,724 |
| 2020 | $180,125 | $200,000 | $2,191 | $202,276 | $202,276 |
| 2019 | $129,545 | $230,000 | $2,191 | $154,690 | $154,690 |
| 2018 | $130,020 | $170,000 | $2,191 | $149,177 | $149,177 |
| 2017 | $72,453 | $160,000 | $2,191 | $90,644 | $90,644 |
| 2016 | $73,901 | $160,000 | $2,191 | $92,092 | $92,092 |
| 2015 | $75,349 | $150,000 | $2,191 | $92,540 | $92,540 |
| 2014 | $76,799 | $150,000 | $2,191 | $93,990 | $93,990 |
| 2013 | $78,248 | $127,755 | $2,191 | $93,189 | $93,189 |
| 2012 | $79,698 | $127,755 | $2,191 | $94,639 | $94,639 |
| 2011 | $73,642 | $150,260 | $2,191 | $108,833 | $108,833 |
| 2010 | $0 | $117,260 | $2,191 | $2,191 | $2,191 |
| 2009 | $0 | $180,400 | $2,191 | $2,191 | $2,191 |
| 2008 | $0 | $171,380 | $2,191 | $2,191 | $2,191 |
| 2007 | $88,329 | $190,380 | $2,434 | $90,763 | $90,763 |
Deed and Sales History
| 1 | 09/24/2009 | WD | Warranty Deed | VANDERSTOEP, JAMES A | NIENHUIS, SARH | | | $112,000.00 | 92311 | 4260965 |
| 2 | 08/19/2003 | 5 | DNU - Marriage License/Name Change | VANDERSTOEP, JAMES A | VANDERSTOEP, JAMES A | | | $0.00 | 34773 | 4080177 |
| 3 | 09/27/2001 | ESTSEPPROP | Establish Separate Property | ABRAHAMSE ET AL, DALE W | PETERSON, MARGARET J | | | $0.00 | 13840 | 20044725 |
| 4 | 09/20/2001 | WD | Warranty Deed | PETERSON, MARGARET J | VANDERSTOEP, JAMES A | | | $60,446.00 | 13843 | 20044728 |
| 5 | 08/20/2001 | SEG | DNU - Segregation | Unknown | ABRAHAMSE ET AL, DALE W | | | $0.00 | 69089 | 0 |
Payout Agreement
| No payout information available.. |