Property
Account |
| Property ID: | 803041 | Abbreviated Legal Description: | LOT 3 C-SP 87-03.13234.311-5110 V3 SP P347 AF#20023991 |
| Geographic ID: | R13234-317-5000 | Agent Code: | |
| Type: | Real | | |
| Tax Area: | 300 - APPRAISER-Cpvl Schl Dist, in Cpvl | Land Use Code | 11 |
| Open Space: | N | DFL | N |
| Historic Property: | N | Remodel Property: | N |
| Multi-Family Redevelopment: | N | | |
| Township: | 32 | Section: | 34 |
| Range: | R1 |
Location |
| Address: | 1807 NE PARKER RD COUPEVILLE, WA 98239 | Mapsco: | |
| Neighborhood: | Cycle 2 | Map ID: | 180 |
| Neighborhood CD: | 2 |
Owner |
| Name: | LUGINBILL, KIERSTEN ANN | Owner ID: | 282868 |
| Mailing Address: | GRANT MICHAEL FINNEY 1807 NE PARKER RD COUPEVILLE, WA 98239 | % Ownership: | 100.0000000000% |
| | | Exemptions: | |
Taxes and Assessment Details
Values
| (+) Improvement Homesite Value: | + | $0 | |
| (+) Improvement Non-Homesite Value: | + | $276,265 | |
| (+) Land Homesite Value: | + | $0 | |
| (+) Land Non-Homesite Value: | + | $343,997 | |
| (+) Curr Use (HS): | + | $0 | $0 |
| (+) Curr Use (NHS): | + | $0 | $0 |
| | | -------------------------- | |
| (=) Market Value: | = | $620,262 | |
| (–) Productivity Loss: | – | $0 | |
| | | -------------------------- | |
| (=) Subtotal: | = | $620,262 | |
| (+) Senior Appraised Value: | + | $0 | |
| (+) Non-Senior Appraised Value: | + | $620,262 | |
| | | -------------------------- | |
| (=) Total Appraised Value: | = | $620,262 | |
| (–) Senior Exemption Loss: | – | $0 | |
| (–) Exemption Loss: | – | $0 | |
| | | -------------------------- | |
| (=) Taxable Value: | = | $620,262 | |
Taxing Jurisdiction
| Owner: | LUGINBILL, KIERSTEN ANN | | |
| % Ownership: | 100.0000000000% | | |
| Total Value: | $620,262 | | |
| Tax Area: | 300 - APPRAISER-Cpvl Schl Dist, in Cpvl |
| CF | Conservation Futures | 0.0316035091 | $620,262 | $620,262 | $19.60 | | |
| CEM2 | Cemetery #2 | 0.0095056933 | $620,262 | $620,262 | $5.90 | | |
| COUP | City: Town of Coupeville | 0.8426414490 | $620,262 | $620,262 | $522.66 | | |
| FIRE5 | Fire & Rescue Dist #5 C Whidbey GEN | 1.2008080668 | $620,262 | $620,262 | $744.82 | | |
| FIRE5BOND | Fire & Rescue Dist #5 C Whidbey BOND | 0.1400090713 | $620,262 | $620,262 | $86.84 | | |
| HOBOND | Hospital BOND | 0.1910887512 | $620,262 | $620,262 | $118.53 | | |
| HOGEN | Hospital GEN | 0.3902502903 | $620,262 | $620,262 | $242.06 | | |
| CE | County Current Expense | 0.3708482477 | $620,262 | $620,262 | $230.02 | | |
| ISLANDEMS | Hospital GEN (EMS) | 0.5000000000 | $620,262 | $620,262 | $310.13 | | |
| LIB | Library Sno-Isle GEN | 0.3153421757 | $620,262 | $620,262 | $195.59 | | |
| LIBCAP | Library Sno-Isle BOND (Cap Fac Imp Area) | 0.0543427938 | $620,262 | $620,262 | $33.71 | | |
| POCOUP | Port of Coupeville GEN | 0.1093371703 | $620,262 | $620,262 | $67.82 | | |
| POCOUPIDD | Port of Coupeville IDD | 0.3409740022 | $620,262 | $620,262 | $211.49 | | |
| COUPSDTECH | School 204 CP (TECH) | 0.7545480007 | $620,262 | $620,262 | $468.02 | | |
| SCH204MO | School 204 Enrichment | 0.6716186034 | $620,262 | $620,262 | $416.58 | | |
| ST | State School | 1.3035497053 | $620,262 | $620,262 | $808.54 | | |
| ST2 | State School Part 2 | 0.8169543533 | $620,262 | $620,262 | $506.73 | | |
| | Total Tax Rate: | 8.0434218834 | | | | | |
| | | | | Taxes w/Current Exemptions: | $4,989.04 | | |
| | | | | Taxes w/o Exemptions: | $4,989.04 | | |
Improvement / Building
| Improvement #1: | RESIDENTIAL | State Code: | Y | 1424.0 sqft | Value: | $276,265 |
| Bathrooms: | 1.75 | Bedrooms: | 3 | | Ceiling: | DRYWALL PAINTED | Exterior Wall/Cover: | PLY/HARDBOARD T-111 | | Floor Covering: | CARPET/VINYL 20-80 | Floor Structure: | WOOD W/SUBFLOOR | | Foundation: | CONCRETE | Heating: | WALL HEAT ELECTRIC | | Interior Finish: | DRYWALL PAINT | Plumbing Fixture Cnt: | 9 | | Roof Slope: | 5" IN 12" | Roof Structure/Cover: | CJ ASPHALT |
|
| | Type | Description | Class CD | Sub Class CD | Year Built | Area |
| | BAS | BASE/MAIN FLOOR | 3 | 0 | 1966 | 1424.0 |
| | DGR | DETACHED GARAGE | 3 | 0 | 1966 | 704.0 |
| | oPOL | POLE BARN | 3 | 0 | 1966 | 700.0 |
| | OCP | OPEN CARPORT | 3 | 0 | 1966 | 512.0 |
| | OP3 | OPEN PORCH W/ROOF | 3 | 0 | 1966 | 80.0 |
Sketch
Property Image
Land
| 1 | 91 | UNDEVELOPED LAND-METES AND BOUNDS | 5.9900 | 260924.40 | 0.00 | 0.00 | 1.00 | $123,997 | $0 |
| 2 | HS | HOMESITE | 1.0000 | 43560.00 | 0.00 | 0.00 | 1.00 | $220,000 | $0 |
Roll Value History
| 2026 | N/A | N/A | N/A | N/A | N/A |
| 2025 | $276,265 | $343,997 | $0 | $620,262 | $620,262 |
| 2024 | $272,779 | $300,000 | $0 | $572,779 | $572,779 |
| 2023 | $276,265 | $280,000 | $0 | $556,265 | $556,265 |
| 2022 | $253,309 | $260,000 | $0 | $513,309 | $513,309 |
| 2021 | $223,013 | $180,000 | $0 | $403,013 | $403,013 |
| 2020 | $217,190 | $160,000 | $0 | $377,190 | $377,190 |
| 2019 | $156,916 | $230,000 | $0 | $386,916 | $386,916 |
| 2018 | $157,387 | $220,000 | $0 | $377,387 | $377,387 |
| 2017 | $72,629 | $200,000 | $0 | $272,629 | $272,629 |
| 2016 | $73,947 | $150,000 | $0 | $223,947 | $223,947 |
| 2015 | $75,264 | $174,750 | $0 | $250,014 | $250,014 |
| 2014 | $76,581 | $174,750 | $0 | $251,331 | $251,331 |
| 2013 | $91,380 | $176,148 | $0 | $267,528 | $267,528 |
| 2012 | $96,379 | $176,148 | $0 | $272,527 | $272,527 |
| 2011 | $97,734 | $195,720 | $0 | $293,454 | $293,454 |
| 2010 | $80,014 | $195,720 | $0 | $275,734 | $275,734 |
| 2009 | $138,373 | $209,700 | $0 | $348,073 | $348,073 |
| 2008 | $140,314 | $100,000 | $0 | $240,314 | $240,314 |
| 2007 | $142,310 | $100,000 | $0 | $242,310 | $242,310 |
Deed and Sales History
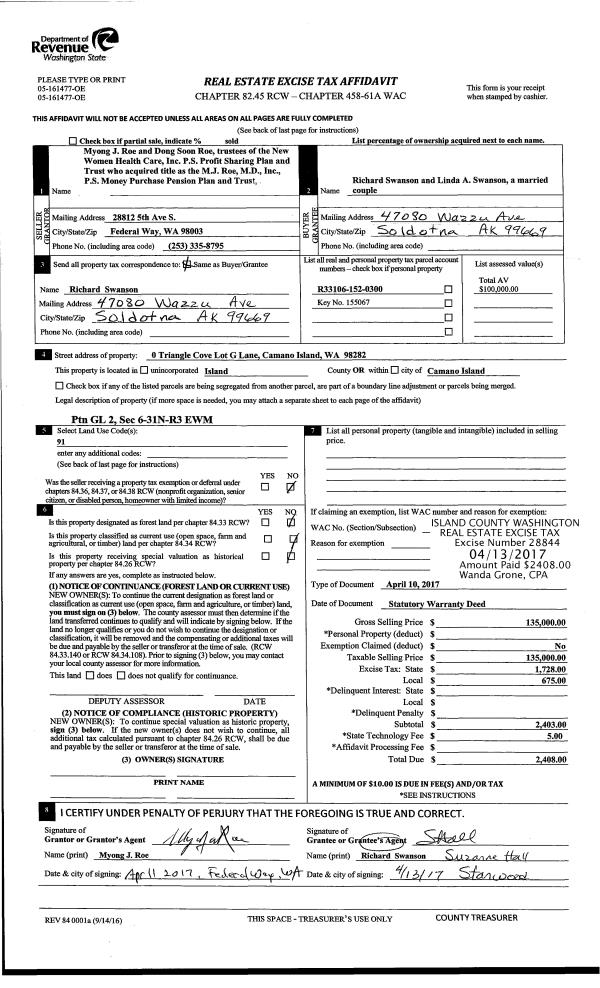
| 1 | 11/06/2017 | WD | Warranty Deed | HARRISON, MARK L | LUGINBILL, KIERSTEN ANN | | | $400,000.00 | 31874 | 4433878 |
| 2 | 04/17/2017 | QCD | Quit Claim Deed | HARRISON, MARK | HARRISON, MARK L | | | $258,000.00 | 28999 | 4421330 |
| 3 | 04/11/2017 | TRUSTEED | Trustee's Deed | KELLY, THOMAS | HARRISON, MARK | | | $258,000.00 | 28859 | 4420659 |
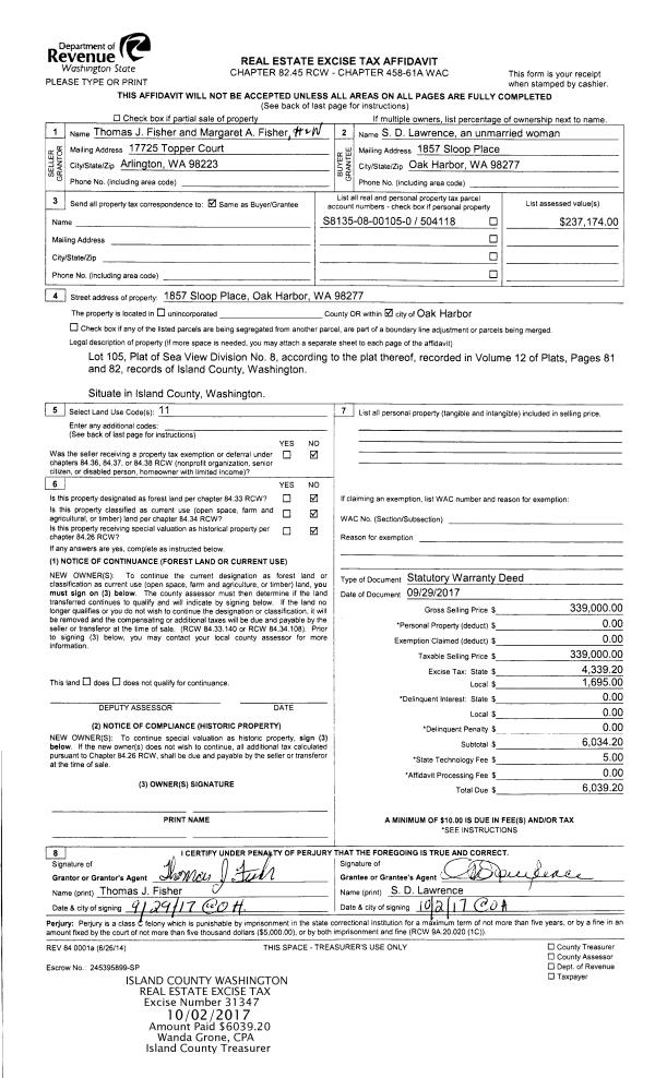
| 4 | 06/10/2008 | WD | Warranty Deed | PROSSER, JEROME A | KELLY, THOMAS | | | $270,000.00 | 81544 | 4230893 |
| 5 | 10/29/2002 | WD | Warranty Deed | BLACK, MARILEE A | PROSSER, JEROME A | | | $180,000.00 | 24380 | 4036212 |
| 6 | 01/01/1900 | OTHER | Other - Misc. Documents | Unknown | BLACK, MARILEE A | | | $0.00 | 0 | 0 |
Payout Agreement
| No payout information available.. |