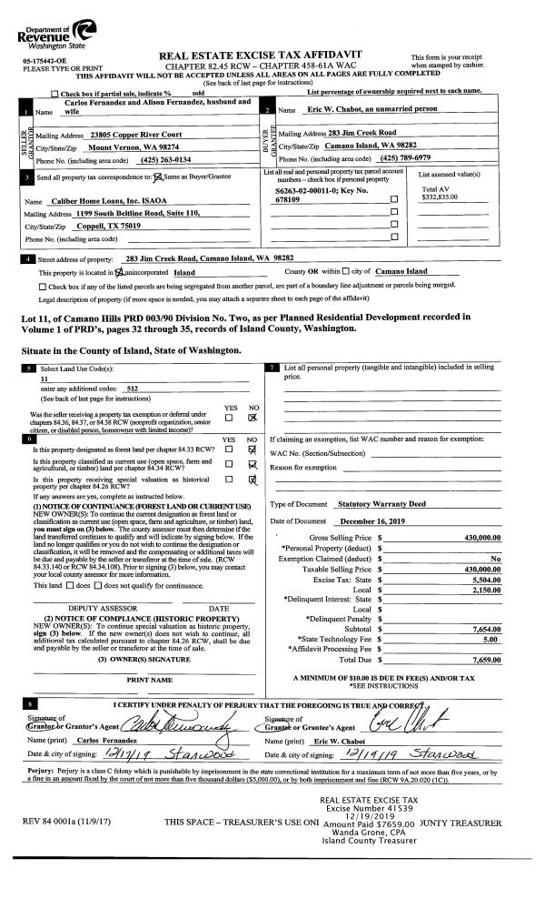
Property
Account |
| Property ID: | 803043 | Abbreviated Legal Description: | LOT 1 SP 34-94.23023.067-4660 V3 SP P348-9 AF#20024425 |
| Geographic ID: | R23023-007-4930 | Agent Code: | |
| Type: | Real | | |
| Tax Area: | 710 - APPRAISER-S Whid Schl Dist, outside Langley, improved & 1 acre or less | Land Use Code | 11 |
| Open Space: | N | DFL | N |
| Historic Property: | N | Remodel Property: | N |
| Multi-Family Redevelopment: | N | | |
| Township: | 30 | Section: | 23 |
| Range: | R2 |
Location |
| Address: | 3997 CONVERSE DR FREELAND, WA 98249 | Mapsco: | |
| Neighborhood: | Cycle 3 | Map ID: | 406 |
| Neighborhood CD: | 3 |
Owner |
| Name: | LEUNG, LISA M. | Owner ID: | 307071 |
| Mailing Address: | ERIC R. WITTENMEIER MELINDA WITTENMEIER 3151 SARATOGA RD LANGLEY, WA 98260 | % Ownership: | 100.0000000000% |
| | | Exemptions: | |
Taxes and Assessment Details
Values
| (+) Improvement Homesite Value: | + | $0 | |
| (+) Improvement Non-Homesite Value: | + | $276,413 | |
| (+) Land Homesite Value: | + | $0 | |
| (+) Land Non-Homesite Value: | + | $250,000 | |
| (+) Curr Use (HS): | + | $0 | $0 |
| (+) Curr Use (NHS): | + | $0 | $0 |
| | | -------------------------- | |
| (=) Market Value: | = | $526,413 | |
| (–) Productivity Loss: | – | $0 | |
| | | -------------------------- | |
| (=) Subtotal: | = | $526,413 | |
| (+) Senior Appraised Value: | + | $0 | |
| (+) Non-Senior Appraised Value: | + | $526,413 | |
| | | -------------------------- | |
| (=) Total Appraised Value: | = | $526,413 | |
| (–) Senior Exemption Loss: | – | $0 | |
| (–) Exemption Loss: | – | $0 | |
| | | -------------------------- | |
| (=) Taxable Value: | = | $526,413 | |
Taxing Jurisdiction
| Owner: | LEUNG, LISA M. | | |
| % Ownership: | 100.0000000000% | | |
| Total Value: | $526,413 | | |
| Tax Area: | 710 - APPRAISER-S Whid Schl Dist, outside Langley, improved & 1 acre or less |
| CF | Conservation Futures | 0.0316035091 | $526,413 | $526,413 | $16.64 | | |
| FIRE3 | Fire & Rescue Dist #3 S Whidbey GEN | 1.2004855531 | $526,413 | $526,413 | $631.95 | | |
| HOBOND | Hospital BOND | 0.1910887512 | $526,413 | $526,413 | $100.59 | | |
| HOGEN | Hospital GEN | 0.3902502903 | $526,413 | $526,413 | $205.43 | | |
| CE | County Current Expense | 0.3708482477 | $526,413 | $526,413 | $195.22 | | |
| CR | County Roads | 0.4584763726 | $526,413 | $526,413 | $241.35 | | |
| ISLANDEMS | Hospital GEN (EMS) | 0.5000000000 | $526,413 | $526,413 | $263.21 | | |
| LIB | Library Sno-Isle GEN | 0.3153421757 | $526,413 | $526,413 | $166.00 | | |
| PORTWHID | Port of S Whidbey GEN | 0.1094540357 | $526,413 | $526,413 | $57.62 | | |
| SCH206BOND | School 206 BOND | 0.3161759235 | $526,413 | $526,413 | $166.44 | | |
| SCH206MO | School 206 Enrichment | 0.4547169547 | $526,413 | $526,413 | $239.37 | | |
| ST | State School | 1.3035497053 | $526,413 | $526,413 | $686.21 | | |
| ST2 | State School Part 2 | 0.8169543533 | $526,413 | $526,413 | $430.06 | | |
| SWHIDPRBD | P & R S Whidbey BOND | 0.0152817568 | $526,413 | $526,413 | $8.04 | | |
| SWHIDPRBD2 | P & R S Whidbey BOND2 | 0.0138911264 | $526,413 | $526,413 | $7.31 | | |
| SWHIDPRMT | P & R S Whidbey GEN | 0.2053334452 | $526,413 | $526,413 | $108.09 | | |
| | Total Tax Rate: | 6.6934522006 | | | | | |
| | | | | Taxes w/Current Exemptions: | $3,523.53 | | |
| | | | | Taxes w/o Exemptions: | $3,523.53 | | |
Improvement / Building
| Improvement #1: | RESIDENTIAL | State Code: | Y | 1873.0 sqft | Value: | $276,413 |
| Bathrooms: | 2.5 | Bedrooms: | 3 | | Ceiling: | DRYWALL PAINTED | Exterior Wall/Cover: | PLY/HARDBOARD T-111 | | Floor Covering: | CARPET/VINYL 80-20 | Floor Structure: | WOOD W/SUBFLOOR | | Foundation: | CONCRETE | Heating: | WALL HEAT ELECTRIC | | Interior Finish: | DRYWALL PAINT | Plumbing Fixture Cnt: | 12 | | Roof Slope: | 5" IN 12" | Roof Structure/Cover: | CJ ASPHALT |
|
| | Type | Description | Class CD | Sub Class CD | Year Built | Area |
| | BAS | BASE/MAIN FLOOR | 3 | 0 | 2006 | 1081.0 |
| | AGR | ATTACHED GARAGE | 3 | 0 | 2006 | 504.0 |
| | UPS | UPPER STORY | 3 | 0 | 2006 | 792.0 |
| | OWR | OPEN WOOD PORCH W/STEPS/ROOF | 3 | 0 | 2006 | 136.0 |
Sketch
Property Image
Land
| 1 | 15 | SQ (12001-21780) | 0.0000 | 0.00 | 0.00 | 0.00 | 1.00 | $250,000 | $0 |
Roll Value History
| 2026 | N/A | N/A | N/A | N/A | N/A |
| 2025 | $276,413 | $250,000 | $0 | $526,413 | $526,413 |
| 2024 | $279,815 | $230,000 | $0 | $509,815 | $509,815 |
| 2023 | $283,216 | $230,000 | $0 | $513,216 | $513,216 |
| 2022 | $259,534 | $210,000 | $0 | $469,534 | $469,534 |
| 2021 | $228,374 | $140,000 | $0 | $368,374 | $368,374 |
| 2020 | $222,249 | $115,000 | $0 | $337,249 | $337,249 |
| 2019 | $163,177 | $170,000 | $0 | $333,177 | $333,177 |
| 2018 | $163,644 | $120,000 | $0 | $283,644 | $283,644 |
| 2017 | $164,579 | $120,000 | $0 | $284,579 | $284,579 |
| 2016 | $166,450 | $90,000 | $0 | $256,450 | $256,450 |
| 2015 | $168,320 | $65,000 | $0 | $233,320 | $233,320 |
| 2014 | $170,190 | $65,000 | $0 | $235,190 | $235,190 |
| 2013 | $177,224 | $65,000 | $0 | $242,224 | $242,224 |
| 2012 | $179,152 | $68,850 | $0 | $248,002 | $248,002 |
| 2011 | $181,077 | $81,000 | $0 | $262,077 | $262,077 |
| 2010 | $186,857 | $90,000 | $0 | $276,857 | $276,857 |
| 2009 | $194,582 | $120,000 | $0 | $314,582 | $314,582 |
| 2008 | $196,607 | $120,000 | $0 | $316,607 | $316,607 |
| 2007 | $193,568 | $120,000 | $0 | $313,568 | $313,568 |
Deed and Sales History
| 1 | 09/13/2022 | QCD | Quit Claim Deed | LEUNG, KATHERINE | LEUNG, LISA M. | | | $228,870.00 | 55163 | 4553867 |
| 2 | 06/08/2007 | ESTSEPPROP | Establish Separate Property | LEUNG, KATHERINE | LEUNG, KATHERINE | | | $0.00 | 72014 | 4204892 |
| 3 | 06/08/2007 | QCD | Quit Claim Deed | LEUNG ET AL, LISA | LEUNG, KATHERINE | | | $0.00 | 72013 | 4204891 |
| 4 | 12/08/2006 | WD | Warranty Deed | LEUNG, LISA | LEUNG ET AL, LISA | | | $36,000.00 | 70359 | 4193924 |
| 5 | 03/21/2005 | WD | Warranty Deed | JAMES I METCALF & CO INC, | LEUNG, LISA | | | $36,000.00 | 51257 | 4129675 |
| 6 | 01/01/1900 | OTHER | Other - Misc. Documents | JAMES I METCALF & CO INC, | JAMES I METCALF & CO INC, | | | $0.00 | 0 | 0 |
| 7 | 01/01/1900 | OTHER | Other - Misc. Documents | Unknown | JAMES I METCALF & CO INC, | | | $0.00 | 0 | 0 |
Payout Agreement
| No payout information available.. |