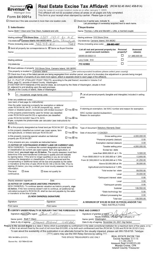
Property
Account |
| Property ID: | 803093 | Abbreviated Legal Description: | IN POWERS DC: BG SWCR SD DLC ALSO SWCR SEC 19 N1*E ALG WLN SD DLC 1968.70' TO NWCR TR DESC 26D643 & CORRECTED AF#10774 S89*E ALG NLN SD TR 893.26' TO ELN OF W893' OF SD DLC TPB N1*E ALG SD ELN 664.26' S89*E PARA/W SLN TR DESC AF#10772 V11 SUR P109 660.30 |
| Geographic ID: | R13219-234-1210 | Agent Code: | |
| Type: | Real | | |
| Tax Area: | 412 - APPRAISER-Cpvl Schl Dist, outside Cpvl, improved, greater than 1 acre | Land Use Code | 11 |
| Open Space: | N | DFL | N |
| Historic Property: | N | Remodel Property: | N |
| Multi-Family Redevelopment: | N | | |
| Township: | 32 | Section: | 19 |
| Range: | R1 |
Location |
| Address: | | Mapsco: | |
| Neighborhood: | Cycle 2 | Map ID: | 141 |
| Neighborhood CD: | 2 |
Owner |
| Name: | ROBERTS, JON D | Owner ID: | 256970 |
| Mailing Address: | 2299 ROBERTS POND LN COUPEVILLE, WA 98239 | % Ownership: | 100.0000000000% |
| | | Exemptions: | |
Taxes and Assessment Details
Values
| (+) Improvement Homesite Value: | + | $0 | |
| (+) Improvement Non-Homesite Value: | + | $946,778 | |
| (+) Land Homesite Value: | + | $0 | |
| (+) Land Non-Homesite Value: | + | $355,000 | |
| (+) Curr Use (HS): | + | $0 | $0 |
| (+) Curr Use (NHS): | + | $0 | $0 |
| | | -------------------------- | |
| (=) Market Value: | = | $1,301,778 | |
| (–) Productivity Loss: | – | $0 | |
| | | -------------------------- | |
| (=) Subtotal: | = | $1,301,778 | |
| (+) Senior Appraised Value: | + | $0 | |
| (+) Non-Senior Appraised Value: | + | $1,301,778 | |
| | | -------------------------- | |
| (=) Total Appraised Value: | = | $1,301,778 | |
| (–) Senior Exemption Loss: | – | $0 | |
| (–) Exemption Loss: | – | $0 | |
| | | -------------------------- | |
| (=) Taxable Value: | = | $1,301,778 | |
Taxing Jurisdiction
| Owner: | ROBERTS, JON D | | |
| % Ownership: | 100.0000000000% | | |
| Total Value: | $1,301,778 | | |
| Tax Area: | 412 - APPRAISER-Cpvl Schl Dist, outside Cpvl, improved, greater than 1 acre |
| CF | Conservation Futures | 0.0316035091 | $1,301,778 | $1,301,778 | $41.14 | | |
| CEM1 | Cemetery #1 | 0.0040320932 | $1,301,778 | $1,301,778 | $5.25 | | |
| FIRE2 | Fire & Rescue Dist #2 N Whidbey GEN | 0.5475949600 | $1,301,778 | $1,301,778 | $712.85 | | |
| HOBOND | Hospital BOND | 0.1910887512 | $1,301,778 | $1,301,778 | $248.76 | | |
| HOGEN | Hospital GEN | 0.3902502903 | $1,301,778 | $1,301,778 | $508.02 | | |
| CE | County Current Expense | 0.3708482477 | $1,301,778 | $1,301,778 | $482.76 | | |
| CR | County Roads | 0.4584763726 | $1,301,778 | $1,301,778 | $596.83 | | |
| ISLANDEMS | Hospital GEN (EMS) | 0.5000000000 | $1,301,778 | $1,301,778 | $650.89 | | |
| LIB | Library Sno-Isle GEN | 0.3153421757 | $1,301,778 | $1,301,778 | $410.51 | | |
| LIBCAP | Library Sno-Isle BOND (Cap Fac Imp Area) | 0.0543427938 | $1,301,778 | $1,301,778 | $70.74 | | |
| NWHIDPRMT | P & R N Whidbey GEN | 0.2004466701 | $1,301,778 | $1,301,778 | $260.94 | | |
| COUPSDTECH | School 204 CP (TECH) | 0.7545480007 | $1,301,778 | $1,301,778 | $982.25 | | |
| SCH204MO | School 204 Enrichment | 0.6716186034 | $1,301,778 | $1,301,778 | $874.30 | | |
| ST | State School | 1.3035497053 | $1,301,778 | $1,301,778 | $1,696.93 | | |
| ST2 | State School Part 2 | 0.8169543533 | $1,301,778 | $1,301,778 | $1,063.49 | | |
| | Total Tax Rate: | 6.6106965264 | | | | | |
| | | | | Taxes w/Current Exemptions: | $8,605.66 | | |
| | | | | Taxes w/o Exemptions: | $8,605.66 | | |
Improvement / Building
| Improvement #1: | RESIDENTIAL | State Code: | Y | 3912.1 sqft | Value: | $946,778 |
| Bathrooms: | 3.5 | Bedrooms: | 3 | | Ceiling: | DRYWALL PAINTED | Cooling: | FHA AND AC | | Exterior Wall/Cover: | CEMENT FIBER | Floor Covering: | HARDWOOD/CARP 60-40 | | Floor Structure: | WOOD W/SUBFLOOR | Foundation: | CONCRETE | | Interior Finish: | DRYWALL PAINT | Plumbing Fixture Cnt: | 19 | | Roof Slope: | 6" IN 12" | Roof Structure/Cover: | CJ ASPHALT |
|
| | Type | Description | Class CD | Sub Class CD | Year Built | Area |
| | BAS | BASE/MAIN FLOOR | 5 | 0 | 2004 | 2355.3 |
| | UB8 | BASEMENT UNFINISHED 8" | 5 | 0 | 2004 | 261.5 |
| | DGR | DETACHED GARAGE | 5 | 0 | 2004 | 912.0 |
| | UPS | UPPER STORY | 5 | 0 | 2004 | 1556.8 |
| | oLOF | STORAGE LOFT | 3 | 0 | 2004 | 588.0 |
| | OWC | OPEN WOOD PORCH W/STEPS/ROOF/C | 5 | 0 | 2004 | 210.0 |
| | OWC | OPEN WOOD PORCH W/STEPS/ROOF/C | 5 | 0 | 2004 | 90.0 |
| | OWC | OPEN WOOD PORCH W/STEPS/ROOF/C | 5 | 0 | 2004 | 107.9 |
| | OWP | OPEN WOOD PORCH W/STEPS | 5 | 0 | 2004 | 510.4 |
| | OWP | OPEN WOOD PORCH W/STEPS | 5 | 0 | 2004 | 144.0 |
| | oSTA | STABLE | 3 | 0 | 2004 | 1296.0 |
| | ATU | ATTIC UNFINISHED | 5 | 0 | 2004 | 432.0 |
| | oPOL | POLE BARN | 3 | 0 | 2004 | 196.0 |
Sketch
| No sketches available for this property. |
Property Image
Land
| 1 | 91 | UNDEVELOPED LAND-METES AND BOUNDS | 9.0000 | 392040.00 | 0.00 | 0.00 | 1.00 | $135,000 | $0 |
| 2 | HS | HOMESITE | 1.0000 | 43560.00 | 0.00 | 0.00 | 1.00 | $220,000 | $0 |
Roll Value History
| 2026 | N/A | N/A | N/A | N/A | N/A |
| 2025 | $946,778 | $355,000 | $0 | $1,301,778 | $1,301,778 |
| 2024 | $909,935 | $310,000 | $0 | $1,219,935 | $1,219,935 |
| 2023 | $920,485 | $290,000 | $0 | $1,210,485 | $1,210,485 |
| 2022 | $843,025 | $260,000 | $0 | $1,103,025 | $1,103,025 |
| 2021 | $741,386 | $225,000 | $0 | $966,386 | $966,386 |
| 2020 | $719,906 | $215,000 | $0 | $934,906 | $934,906 |
| 2019 | $621,016 | $250,000 | $0 | $871,016 | $871,016 |
| 2018 | $612,052 | $170,000 | $0 | $782,052 | $782,052 |
| 2017 | $615,249 | $170,000 | $0 | $785,249 | $785,249 |
| 2016 | $621,828 | $160,000 | $0 | $781,828 | $781,828 |
| 2015 | $628,409 | $150,000 | $0 | $778,409 | $778,409 |
| 2014 | $634,988 | $150,000 | $0 | $784,988 | $784,988 |
| 2013 | $641,571 | $135,000 | $0 | $776,571 | $776,571 |
| 2012 | $663,002 | $135,000 | $0 | $798,002 | $798,002 |
| 2011 | $669,651 | $150,000 | $0 | $819,651 | $819,651 |
| 2010 | $689,806 | $150,000 | $0 | $839,806 | $839,806 |
| 2009 | $724,166 | $220,000 | $0 | $944,166 | $944,166 |
| 2008 | $726,011 | $198,360 | $0 | $924,371 | $924,371 |
| 2007 | $734,517 | $198,360 | $0 | $932,877 | $932,877 |
Deed and Sales History
| 1 | 01/04/2021 | QCD | Quit Claim Deed | ROBERTS, SHERRY | ROBERTS, JON D | | | $0.00 | 48172 | 4518748 |
| 2 | 12/16/2003 | 5 | DNU - Marriage License/Name Change | KAUFFMAN & ROBERTS ENTERPRISES | ROBERTS, JON D | | | $0.00 | 35638 | 4086259 |
| 3 | 10/11/2001 | SEG | DNU - Segregation | Unknown | KAUFFMAN & ROBERTS ENTERPRISES | | | $0.00 | 69126 | 0 |
Payout Agreement
| No payout information available.. |