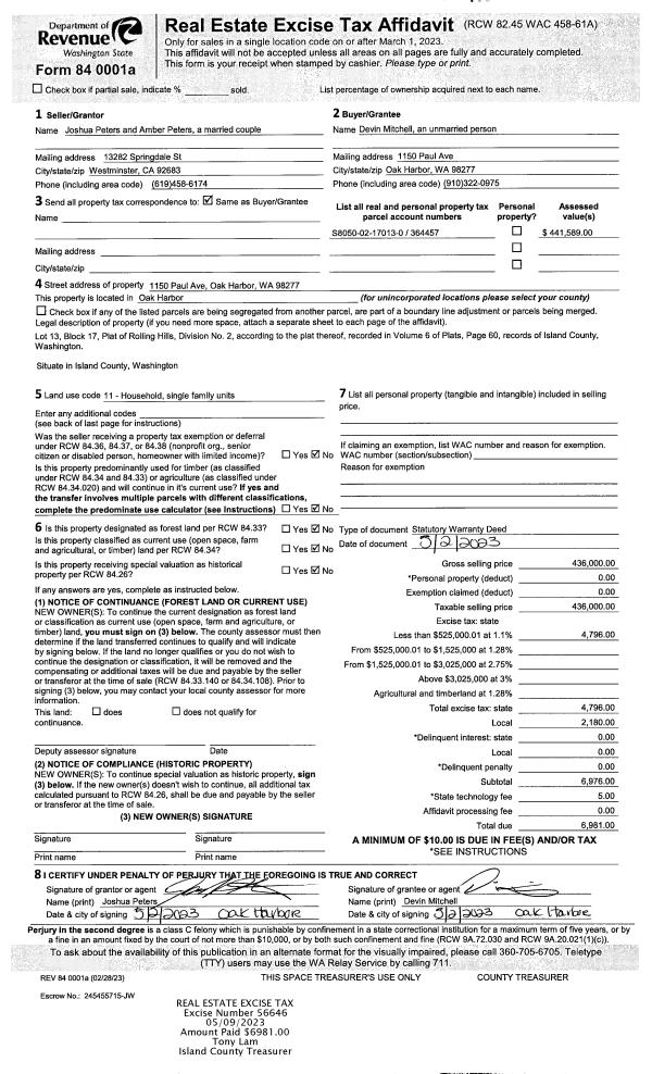
Property
Account |
| Property ID: | 803109 | Abbreviated Legal Description: | LOT 1 SP 20-94.33217.055-4690 V3 SP P32 AF#95012019 EX MOORE RD TGW E320' OF S680' W OF TR DESC SP 5/92 EX S20' TO IS CO (W320' OF E670' OF S680' OF SE SE EX S20') |
| Geographic ID: | R33217-054-4850 | Agent Code: | |
| Type: | Real | | |
| Tax Area: | 512 - APPRAISER-Stan/Cam Schl Dist, improved, greater than 1 acre | Land Use Code | 11 |
| Open Space: | N | DFL | N |
| Historic Property: | N | Remodel Property: | N |
| Multi-Family Redevelopment: | N | | |
| Township: | 32 | Section: | 17 |
| Range: | R3 |
Location |
| Address: | 1263 MOORE RD CAMANO ISLAND, WA 98282 | Mapsco: | |
| Neighborhood: | North Camano | Map ID: | 954 |
| Neighborhood CD: | 06-C |
Owner |
| Name: | FISSE-SMITH, SUSAN | Owner ID: | 260746 |
| Mailing Address: | PO BOX 1131 KITTITAS, WA 98934 | % Ownership: | 100.0000000000% |
| | | Exemptions: | |
Taxes and Assessment Details
Values
| (+) Improvement Homesite Value: | + | $0 | |
| (+) Improvement Non-Homesite Value: | + | $302,552 | |
| (+) Land Homesite Value: | + | $0 | |
| (+) Land Non-Homesite Value: | + | $380,000 | |
| (+) Curr Use (HS): | + | $0 | $0 |
| (+) Curr Use (NHS): | + | $0 | $0 |
| | | -------------------------- | |
| (=) Market Value: | = | $682,552 | |
| (–) Productivity Loss: | – | $0 | |
| | | -------------------------- | |
| (=) Subtotal: | = | $682,552 | |
| (+) Senior Appraised Value: | + | $0 | |
| (+) Non-Senior Appraised Value: | + | $682,552 | |
| | | -------------------------- | |
| (=) Total Appraised Value: | = | $682,552 | |
| (–) Senior Exemption Loss: | – | $0 | |
| (–) Exemption Loss: | – | $0 | |
| | | -------------------------- | |
| (=) Taxable Value: | = | $682,552 | |
Taxing Jurisdiction
| Owner: | FISSE-SMITH, SUSAN | | |
| % Ownership: | 100.0000000000% | | |
| Total Value: | $682,552 | | |
| Tax Area: | 512 - APPRAISER-Stan/Cam Schl Dist, improved, greater than 1 acre |
| CF | Conservation Futures | 0.0316035091 | $682,552 | $682,552 | $21.57 | | |
| EMS1 | Fire & Rescue Dist #1 Camano GEN (EMS) | 0.3677864386 | $682,552 | $682,552 | $251.03 | | |
| FIRE1 | Fire & Rescue Dist #1 Camano GEN | 1.2502910536 | $682,552 | $682,552 | $853.39 | | |
| FIRE1BOND | Fire & Rescue Dist #1 Camano BOND | 0.1570001679 | $682,552 | $682,552 | $107.16 | | |
| CE | County Current Expense | 0.3708482477 | $682,552 | $682,552 | $253.12 | | |
| CR | County Roads | 0.4584763726 | $682,552 | $682,552 | $312.93 | | |
| LCIB | Library Sno-Isle BOND (Camano Island) | 0.0396325772 | $682,552 | $682,552 | $27.05 | | |
| LIB | Library Sno-Isle GEN | 0.3153421757 | $682,552 | $682,552 | $215.24 | | |
| SCH205_401 | School 205-401 Enrichment | 1.2698420524 | $682,552 | $682,552 | $866.73 | | |
| SCH205BOND | School 205-401 BOND | 0.9396497583 | $682,552 | $682,552 | $641.36 | | |
| ST | State School | 1.3035497053 | $682,552 | $682,552 | $889.74 | | |
| ST2 | State School Part 2 | 0.8169543533 | $682,552 | $682,552 | $557.61 | | |
| | Total Tax Rate: | 7.3209764117 | | | | | |
| | | | | Taxes w/Current Exemptions: | $4,996.93 | | |
| | | | | Taxes w/o Exemptions: | $4,996.93 | | |
Improvement / Building
| Improvement #1: | RESIDENTIAL | State Code: | Y | 1494.0 sqft | Value: | $302,552 |
| Bathrooms: | 1.5 | Bedrooms: | 2 | | Ceiling: | DRYWALL PAINTED | Exterior Wall/Cover: | WOOD SIDING | | Floor Covering: | VINYL 100% | Floor Structure: | WOOD W/SUBFLOOR | | Foundation: | SLAB | Heating: | WALL HEAT ELECTRIC | | Interior Finish: | DRYWALL PAINT | Plumbing Fixture Cnt: | 7 | | Roof Slope: | 5" IN 12" | Roof Structure/Cover: | CJ ALUMINIUM HEAVY |
|
| | Type | Description | Class CD | Sub Class CD | Year Built | Area |
| | BAS | BASE/MAIN FLOOR | 3 | 0 | 1997 | 1350.0 |
| | BIG | BUILT IN GARAGE | 3 | 0 | 1997 | 1198.0 |
| | BAW | BALCONY WOOD RAIL | 3 | 0 | 1997 | 72.0 |
| | OP4 | OPEN PORCH W/CEILING-ROOF | 3 | 0 | 1997 | 8.0 |
| | DWN | DOWNSTAIRS LIVING AREA | 3 | 0 | 1997 | 144.0 |
| | UTY | STORAGE/UTILITY | 3 | 0 | 1997 | 936.0 |
| | UTY | STORAGE/UTILITY | 3 | 0 | 1997 | 648.0 |
Sketch
Property Image
Land
| 1 | 32 | AC (03.01-09.99) | 0.0000 | 0.00 | 0.00 | 0.00 | 1.00 | $380,000 | $0 |
Roll Value History
| 2026 | N/A | N/A | N/A | N/A | N/A |
| 2025 | $302,552 | $380,000 | $0 | $682,552 | $682,552 |
| 2024 | $306,417 | $390,000 | $0 | $696,417 | $696,417 |
| 2023 | $310,284 | $380,000 | $0 | $690,284 | $690,284 |
| 2022 | $273,974 | $350,000 | $0 | $623,974 | $623,974 |
| 2021 | $241,272 | $240,000 | $0 | $481,272 | $481,272 |
| 2020 | $235,617 | $200,000 | $0 | $435,617 | $435,617 |
| 2019 | $171,431 | $240,000 | $0 | $411,431 | $411,431 |
| 2018 | $171,958 | $220,000 | $0 | $391,958 | $391,958 |
| 2017 | $160,833 | $200,000 | $0 | $360,833 | $360,833 |
| 2016 | $145,807 | $180,000 | $0 | $325,807 | $325,807 |
| 2015 | $147,381 | $198,000 | $0 | $345,381 | $345,381 |
| 2014 | $148,953 | $198,000 | $0 | $346,953 | $346,953 |
| 2013 | $150,525 | $198,000 | $0 | $348,525 | $348,525 |
| 2012 | $152,098 | $198,000 | $0 | $350,098 | $350,098 |
| 2011 | $153,671 | $247,500 | $0 | $401,171 | $401,171 |
| 2010 | $219,628 | $247,500 | $0 | $467,128 | $467,128 |
| 2009 | $238,924 | $297,000 | $0 | $535,924 | $535,924 |
| 2008 | $242,143 | $316,800 | $0 | $558,943 | $558,943 |
| 2007 | $245,767 | $316,800 | $0 | $562,567 | $562,567 |
Deed and Sales History
| 1 | 11/29/2011 | DECREE | Divorce Decree/Legal Separation | SMITH, JAMES | FISSE-SMITH, SUSAN | | | $0.00 | 10234 | 4332095 |
| 2 | 10/17/2001 | BLA | DNU - Boundary Line Adjustment | Unknown | SMITH, JAMES | | | $0.00 | 69138 | 20024402 |
| 3 | 09/21/2001 | QCD | Quit Claim Deed | SMITH, JAMES | SMITH, JAMES | | | $70,000.00 | 13707 | 20043944 |
Payout Agreement
| No payout information available.. |