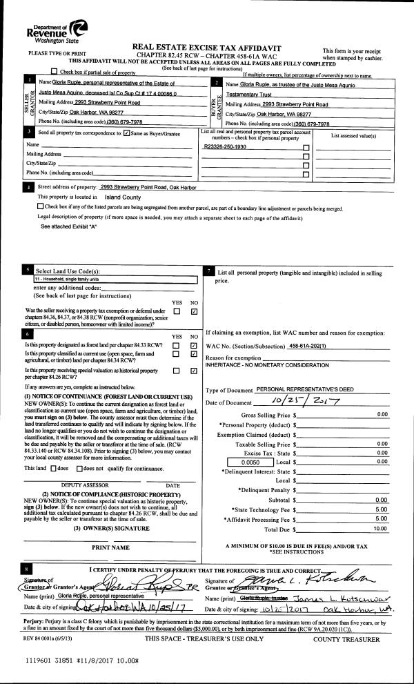
Property
Account |
| Property ID: | 803125 | Abbreviated Legal Description: | 2001 MODULINE DEERFIELD 27X61 VIN# 0319666 |
| Geographic ID: | M91750000034-1 | Agent Code: | |
| Type: | Mobile Home | | |
| Tax Area: | 100 - APPRAISER-OH Schl Dist, in OH | Land Use Code | 11 |
| Open Space: | N | DFL | N |
| Historic Property: | N | Remodel Property: | N |
| Multi-Family Redevelopment: | N | | |
| Township: | | Section: | |
| Range: | |
Location |
| Address: | 225 NE ERNST ST # 34 OAK HARBOR, WA 98277 | Mapsco: | |
| Neighborhood: | Cycle 1 | Map ID: | |
| Neighborhood CD: | 1 |
Owner |
| Name: | HOOKER, MONA D | Owner ID: | 278085 |
| Mailing Address: | 225 NE ERNST ST #34 OAK HARBOR, WA 98277 | % Ownership: | 100.0000000000% |
| | | Exemptions: | |
Taxes and Assessment Details
Values
| (+) Improvement Homesite Value: | + | $0 | |
| (+) Improvement Non-Homesite Value: | + | $134,694 | |
| (+) Land Homesite Value: | + | $0 | |
| (+) Land Non-Homesite Value: | + | $0 | |
| (+) Curr Use (HS): | + | $0 | $0 |
| (+) Curr Use (NHS): | + | $0 | $0 |
| | | -------------------------- | |
| (=) Market Value: | = | $134,694 | |
| (–) Productivity Loss: | – | $0 | |
| | | -------------------------- | |
| (=) Subtotal: | = | $134,694 | |
| (+) Senior Appraised Value: | + | $0 | |
| (+) Non-Senior Appraised Value: | + | $134,694 | |
| | | -------------------------- | |
| (=) Total Appraised Value: | = | $134,694 | |
| (–) Senior Exemption Loss: | – | $0 | |
| (–) Exemption Loss: | – | $0 | |
| | | -------------------------- | |
| (=) Taxable Value: | = | $134,694 | |
Taxing Jurisdiction
| Owner: | HOOKER, MONA D | | |
| % Ownership: | 100.0000000000% | | |
| Total Value: | $134,694 | | |
| Tax Area: | 100 - APPRAISER-OH Schl Dist, in OH |
| CF | Conservation Futures | 0.0316035091 | $134,694 | $134,694 | $4.26 | | |
| CEM1 | Cemetery #1 | 0.0040320932 | $134,694 | $134,694 | $0.54 | | |
| COH | City of Oak Harbor | 2.3001546061 | $134,694 | $134,694 | $309.82 | | |
| OAKBOND | City of Oak Harbor BOND | 0.1926904192 | $134,694 | $134,694 | $25.95 | | |
| HOBOND | Hospital BOND | 0.1910887512 | $134,694 | $134,694 | $25.74 | | |
| HOGEN | Hospital GEN | 0.3902502903 | $134,694 | $134,694 | $52.56 | | |
| CE | County Current Expense | 0.3708482477 | $134,694 | $134,694 | $49.95 | | |
| ISLANDEMS | Hospital GEN (EMS) | 0.5000000000 | $134,694 | $134,694 | $67.35 | | |
| LIB | Library Sno-Isle GEN | 0.3153421757 | $134,694 | $134,694 | $42.47 | | |
| NWHIDPRMT | P & R N Whidbey GEN | 0.2004466701 | $134,694 | $134,694 | $27.00 | | |
| SCH201MO | School 201 Enrichment | 1.8559231640 | $134,694 | $134,694 | $249.98 | | |
| ST | State School | 1.3035497053 | $134,694 | $134,694 | $175.58 | | |
| ST2 | State School Part 2 | 0.8169543533 | $134,694 | $134,694 | $110.04 | | |
| | Total Tax Rate: | 8.4728839852 | | | | | |
| | | | | Taxes w/Current Exemptions: | $1,141.24 | | |
| | | | | Taxes w/o Exemptions: | $1,141.24 | | |
Improvement / Building
| Improvement #1: | MANUFACTURED HOME | State Code: | Y | 1391.8 sqft | Value: | $134,694 |
| Bathrooms: | 0 | Bedrooms: | 0 | | Ceiling: | PLASTER PAINTED | Cooling: | EVAP NO DUCT | | Exterior Wall/Cover: | VINYL | Floor Covering: | CARPET 100% | | Floor Structure: | SLAB ON GRADE | Foundation: | SLAB | | Heating: | FHA ELECTRIC | Interior Finish: | PLASTER | | Plumbing Fixture Cnt: | 1 | Roof Slope: | FLAT | | Roof Structure/Cover: | CJ ALUMINIUM HEAVY |   |   |
|
| | Type | Description | Class CD | Sub Class CD | Year Built | Area |
| | BAS | BASE/MAIN FLOOR | 4 | 0 | 2001 | 1391.8 |
| | OWP | OPEN WOOD PORCH W/STEPS | 4 | 0 | 2001 | 250.0 |
| | AGR | ATTACHED GARAGE | 4 | 0 | 2001 | 400.0 |
| | OWP | OPEN WOOD PORCH W/STEPS | 4 | 0 | 2001 | 133.3 |
Sketch
Property Image
Land
No land segments exist for this property.
Roll Value History
| 2026 | N/A | N/A | N/A | N/A | N/A |
| 2025 | $134,694 | $0 | $0 | $134,694 | $134,694 |
| 2024 | $136,564 | $0 | $0 | $136,564 | $136,564 |
| 2023 | $88,667 | $0 | $0 | $88,667 | $88,667 |
| 2022 | $82,721 | $0 | $0 | $82,721 | $82,721 |
| 2021 | $74,052 | $0 | $0 | $74,052 | $74,052 |
| 2020 | $73,941 | $0 | $0 | $73,941 | $73,941 |
| 2019 | $59,054 | $0 | $0 | $59,054 | $59,054 |
| 2018 | $60,671 | $0 | $0 | $60,671 | $60,671 |
| 2017 | $62,532 | $0 | $0 | $62,532 | $62,532 |
| 2016 | $64,200 | $0 | $0 | $64,200 | $64,200 |
| 2015 | $65,868 | $0 | $0 | $65,868 | $65,868 |
| 2014 | $67,535 | $0 | $0 | $67,535 | $67,535 |
| 2013 | $69,203 | $0 | $0 | $69,203 | $69,203 |
| 2012 | $70,870 | $0 | $0 | $70,870 | $70,870 |
| 2011 | $97,136 | $0 | $0 | $97,136 | $97,136 |
| 2010 | $107,770 | $0 | $0 | $107,770 | $107,770 |
| 2009 | $111,791 | $0 | $0 | $111,791 | $111,791 |
| 2008 | $113,143 | $0 | $0 | $113,143 | $113,143 |
| 2007 | $114,493 | $0 | $0 | $114,493 | $114,493 |
Deed and Sales History
| 1 | 12/30/2016 | MANHOME | Manufactured Home | MATTSON, MORRIS D | HOOKER, MONA D | | | $0.00 | 27562 | |
| 2 | 01/11/2011 | OTHER | Other - Misc. Documents | O'BRIEN, RUTH A | MATTSON, MORRIS D | | | $55,000.00 | 3455 | |
| 3 | 02/01/2001 | PACD | Purchaser's Assignment | Unknown | O'BRIEN, RUTH A | | | $76,357.00 | 0 | 0 |
Payout Agreement
| No payout information available.. |