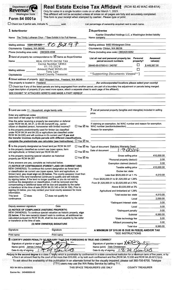
Property
Account |
| Property ID: | 803131 | Abbreviated Legal Description: | 2001 PALM HARBOR 27X40 VIN#PH205024 TPO +229384 |
| Geographic ID: | M91100000020-1 | Agent Code: | |
| Type: | Mobile Home | | |
| Tax Area: | 100 - APPRAISER-OH Schl Dist, in OH | Land Use Code | 11 |
| Open Space: | N | DFL | N |
| Historic Property: | N | Remodel Property: | N |
| Multi-Family Redevelopment: | N | | |
| Township: | | Section: | |
| Range: | |
Location |
| Address: | 700 NW CROSBY AVE # 20 OAK HARBOR, WA 98277 | Mapsco: | |
| Neighborhood: | Cycle 1 | Map ID: | |
| Neighborhood CD: | 1 |
Owner |
| Name: | MAYS, SHARI | Owner ID: | 186530 |
| Mailing Address: | 700 NW CROSBY AVE TRLR 20 OAK HARBOR, WA 98277-3861 | % Ownership: | 100.0000000000% |
| | | Exemptions: | |
Taxes and Assessment Details
Values
| (+) Improvement Homesite Value: | + | $0 | |
| (+) Improvement Non-Homesite Value: | + | $84,538 | |
| (+) Land Homesite Value: | + | $0 | |
| (+) Land Non-Homesite Value: | + | $0 | |
| (+) Curr Use (HS): | + | $0 | $0 |
| (+) Curr Use (NHS): | + | $0 | $0 |
| | | -------------------------- | |
| (=) Market Value: | = | $84,538 | |
| (–) Productivity Loss: | – | $0 | |
| | | -------------------------- | |
| (=) Subtotal: | = | $84,538 | |
| (+) Senior Appraised Value: | + | $0 | |
| (+) Non-Senior Appraised Value: | + | $84,538 | |
| | | -------------------------- | |
| (=) Total Appraised Value: | = | $84,538 | |
| (–) Senior Exemption Loss: | – | $0 | |
| (–) Exemption Loss: | – | $0 | |
| | | -------------------------- | |
| (=) Taxable Value: | = | $84,538 | |
Taxing Jurisdiction
| Owner: | MAYS, SHARI | | |
| % Ownership: | 100.0000000000% | | |
| Total Value: | $84,538 | | |
| Tax Area: | 100 - APPRAISER-OH Schl Dist, in OH |
| CF | Conservation Futures | 0.0316035091 | $84,538 | $84,538 | $2.67 | | |
| CEM1 | Cemetery #1 | 0.0040320932 | $84,538 | $84,538 | $0.34 | | |
| COH | City of Oak Harbor | 2.3001546061 | $84,538 | $84,538 | $194.45 | | |
| OAKBOND | City of Oak Harbor BOND | 0.1926904192 | $84,538 | $84,538 | $16.29 | | |
| HOBOND | Hospital BOND | 0.1910887512 | $84,538 | $84,538 | $16.15 | | |
| HOGEN | Hospital GEN | 0.3902502903 | $84,538 | $84,538 | $32.99 | | |
| CE | County Current Expense | 0.3708482477 | $84,538 | $84,538 | $31.35 | | |
| ISLANDEMS | Hospital GEN (EMS) | 0.5000000000 | $84,538 | $84,538 | $42.27 | | |
| LIB | Library Sno-Isle GEN | 0.3153421757 | $84,538 | $84,538 | $26.66 | | |
| NWHIDPRMT | P & R N Whidbey GEN | 0.2004466701 | $84,538 | $84,538 | $16.95 | | |
| SCH201MO | School 201 Enrichment | 1.8559231640 | $84,538 | $84,538 | $156.90 | | |
| ST | State School | 1.3035497053 | $84,538 | $84,538 | $110.20 | | |
| ST2 | State School Part 2 | 0.8169543533 | $84,538 | $84,538 | $69.06 | | |
| | Total Tax Rate: | 8.4728839852 | | | | | |
| | | | | Taxes w/Current Exemptions: | $716.28 | | |
| | | | | Taxes w/o Exemptions: | $716.28 | | |
Improvement / Building
| Improvement #1: | MANUFACTURED HOME | State Code: | Y | 1080.0 sqft | Value: | $84,538 |
| Bathrooms: | 0 | Bedrooms: | 0 | | Ceiling: | PLASTER PAINTED | Cooling: | EVAP NO DUCT | | Exterior Wall/Cover: | VINYL | Floor Covering: | CARPET 100% | | Floor Structure: | SLAB ON GRADE | Foundation: | SLAB | | Heating: | FHA ELECTRIC | Interior Finish: | PLASTER | | Plumbing Fixture Cnt: | 1 | Roof Slope: | FLAT | | Roof Structure/Cover: | CJ ALUMINIUM HEAVY |   |   |
|
Sketch
Property Image
Land
No land segments exist for this property.
Roll Value History
| 2026 | N/A | N/A | N/A | N/A | N/A |
| 2025 | $84,538 | $0 | $0 | $84,538 | $84,538 |
| 2024 | $87,100 | $0 | $0 | $87,100 | $87,100 |
| 2023 | $54,674 | $0 | $0 | $54,674 | $54,674 |
| 2022 | $51,007 | $0 | $0 | $51,007 | $51,007 |
| 2021 | $45,663 | $0 | $0 | $45,663 | $45,663 |
| 2020 | $45,593 | $0 | $0 | $45,593 | $45,593 |
| 2019 | $36,415 | $0 | $0 | $36,415 | $36,415 |
| 2018 | $37,413 | $0 | $0 | $37,413 | $37,413 |
| 2017 | $34,954 | $0 | $0 | $34,954 | $34,954 |
| 2016 | $35,862 | $0 | $0 | $35,862 | $35,862 |
| 2015 | $36,770 | $0 | $0 | $36,770 | $36,770 |
| 2014 | $37,678 | $0 | $0 | $37,678 | $37,678 |
| 2013 | $38,586 | $0 | $0 | $38,586 | $38,586 |
| 2012 | $39,040 | $0 | $0 | $39,040 | $39,040 |
| 2011 | $48,911 | $0 | $0 | $48,911 | $48,911 |
| 2010 | $32,139 | $0 | $0 | $32,139 | $32,139 |
| 2009 | $40,788 | $0 | $0 | $40,788 | $40,788 |
| 2008 | $41,805 | $0 | $0 | $41,805 | $41,805 |
| 2007 | $42,807 | $0 | $0 | $42,807 | $42,807 |
Deed and Sales History
| 1 | 01/01/1900 | PACD | Purchaser's Assignment | Unknown | MAYS, SHARI | | | $0.00 | 0 | 0 |
Payout Agreement
| No payout information available.. |