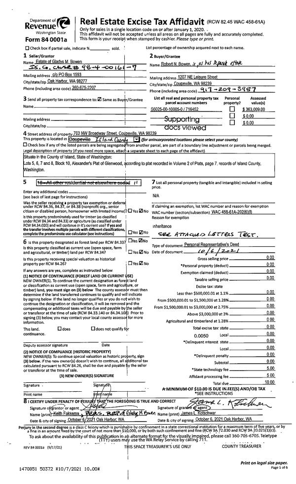
Property
Account |
| Property ID: | 803143 | Abbreviated Legal Description: | 62 - IN NW: BG SWCR NW E208 TPB N3*E402' E345' S160' W155' S242' W220' TPB EX RD |
| Geographic ID: | R32917-270-0362 | Agent Code: | |
| Type: | Real | | |
| Tax Area: | 712 - APPRAISER-S Whid Schl Dist, outside Langley, improved, greater than 1 acre | Land Use Code | 54 |
| Open Space: | N | DFL | N |
| Historic Property: | N | Remodel Property: | N |
| Multi-Family Redevelopment: | N | | |
| Township: | 29 | Section: | 17 |
| Range: | R3 |
Location |
| Address: | 2821 HOWARD RD LANGLEY, WA 98260 | Mapsco: | |
| Neighborhood: | 45cRR-bayview rd | Map ID: | 780 |
| Neighborhood CD: | 45cRRbayvw |
Owner |
| Name: | BAYVIEW COMMUNITY LLC | Owner ID: | 195448 |
| Mailing Address: | C/O BAYVIEW COMMUNITY LLC PO BOX 114 LANGLEY, WA 98260 | % Ownership: | 100.0000000000% |
| | | Exemptions: | |
Taxes and Assessment Details
Values
| (+) Improvement Homesite Value: | + | $0 | |
| (+) Improvement Non-Homesite Value: | + | $666,839 | |
| (+) Land Homesite Value: | + | $0 | |
| (+) Land Non-Homesite Value: | + | $290,000 | |
| (+) Curr Use (HS): | + | $0 | $0 |
| (+) Curr Use (NHS): | + | $0 | $0 |
| | | -------------------------- | |
| (=) Market Value: | = | $956,839 | |
| (–) Productivity Loss: | – | $0 | |
| | | -------------------------- | |
| (=) Subtotal: | = | $956,839 | |
| (+) Senior Appraised Value: | + | $0 | |
| (+) Non-Senior Appraised Value: | + | $956,839 | |
| | | -------------------------- | |
| (=) Total Appraised Value: | = | $956,839 | |
| (–) Senior Exemption Loss: | – | $0 | |
| (–) Exemption Loss: | – | $0 | |
| | | -------------------------- | |
| (=) Taxable Value: | = | $956,839 | |
Taxing Jurisdiction
| Owner: | BAYVIEW COMMUNITY LLC | | |
| % Ownership: | 100.0000000000% | | |
| Total Value: | $956,839 | | |
| Tax Area: | 712 - APPRAISER-S Whid Schl Dist, outside Langley, improved, greater than 1 acre |
| CF | Conservation Futures | 0.0316035091 | $956,839 | $956,839 | $30.24 | | |
| FIRE3 | Fire & Rescue Dist #3 S Whidbey GEN | 1.2004855531 | $956,839 | $956,839 | $1,148.67 | | |
| HOBOND | Hospital BOND | 0.1910887512 | $956,839 | $956,839 | $182.84 | | |
| HOGEN | Hospital GEN | 0.3902502903 | $956,839 | $956,839 | $373.41 | | |
| CE | County Current Expense | 0.3708482477 | $956,839 | $956,839 | $354.84 | | |
| CR | County Roads | 0.4584763726 | $956,839 | $956,839 | $438.69 | | |
| ISLANDEMS | Hospital GEN (EMS) | 0.5000000000 | $956,839 | $956,839 | $478.42 | | |
| LIB | Library Sno-Isle GEN | 0.3153421757 | $956,839 | $956,839 | $301.73 | | |
| PORTWHID | Port of S Whidbey GEN | 0.1094540357 | $956,839 | $956,839 | $104.73 | | |
| SCH206BOND | School 206 BOND | 0.3161759235 | $956,839 | $956,839 | $302.53 | | |
| SCH206MO | School 206 Enrichment | 0.4547169547 | $956,839 | $956,839 | $435.09 | | |
| ST | State School | 1.3035497053 | $956,839 | $956,839 | $1,247.29 | | |
| ST2 | State School Part 2 | 0.8169543533 | $956,839 | $956,839 | $781.69 | | |
| SWHIDPRBD | P & R S Whidbey BOND | 0.0152817568 | $956,839 | $956,839 | $14.62 | | |
| SWHIDPRBD2 | P & R S Whidbey BOND2 | 0.0138911264 | $956,839 | $956,839 | $13.29 | | |
| SWHIDPRMT | P & R S Whidbey GEN | 0.2053334452 | $956,839 | $956,839 | $196.47 | | |
| | Total Tax Rate: | 6.6934522006 | | | | | |
| | | | | Taxes w/Current Exemptions: | $6,404.55 | | |
| | | | | Taxes w/o Exemptions: | $6,404.55 | | |
Improvement / Building
| Improvement #1: | COMMERCIAL | State Code: | F1 | 20412.0 sqft | Value: | $666,839 |
| Bathrooms: | 0 | Bedrooms: | 0 | | Ceiling: | SUSPENDED | Exterior Wall/Cover: | 6" TILT-UP WOOD FRAM | | Floor Covering: | VINYL TILE | Floor Structure: | CONCRETE ON GROUND | | Foundation: | SLAB | Heating: | SPACE HEATERS | | Interior Finish: | MARKET | Plumbing Fixture Cnt: | 1 | | Roof Structure/Cover: | BEAM BUILT-UP ROCK |   |   |
|
| | Type | Description | Class CD | Sub Class CD | Year Built | Area |
| | BAS | BASE/MAIN FLOOR | 3 | 0 | 1973 | 20412.0 |
| | OP1 | OPEN PORCH SLAB | 3 | 0 | 1973 | 210.0 |
| | OP3 | OPEN PORCH W/ROOF | 3 | 0 | 1973 | 972.0 |
| | oPV2 | PV/ASPH 3" | 3 | 0 | 1973 | 27000.0 |
| | OP2 | OPEN PORCH W/STEPS | 3 | 0 | 1973 | 240.0 |
| | oLIT | LITE POLE | 3 | 0 | 1973 | 1.0 |
Sketch
Property Image
Land
| 1 | 68 | COMMERCIAL RETAIL | 1.6600 | 72309.60 | 0.00 | 0.00 | 1.00 | $290,000 | $0 |
Roll Value History
| 2026 | N/A | N/A | N/A | N/A | N/A |
| 2025 | $666,839 | $290,000 | $0 | $956,839 | $956,839 |
| 2024 | $755,976 | $280,000 | $0 | $1,035,976 | $1,035,976 |
| 2023 | $845,111 | $260,000 | $0 | $1,105,111 | $1,105,111 |
| 2022 | $730,774 | $228,756 | $0 | $959,530 | $959,530 |
| 2021 | $727,939 | $228,756 | $0 | $956,695 | $956,695 |
| 2020 | $434,482 | $228,756 | $0 | $663,238 | $663,238 |
| 2019 | $477,996 | $228,756 | $0 | $706,752 | $706,752 |
| 2018 | $478,035 | $228,756 | $0 | $706,791 | $706,791 |
| 2017 | $478,113 | $228,756 | $0 | $706,869 | $706,869 |
| 2016 | $478,269 | $228,756 | $0 | $707,025 | $707,025 |
| 2015 | $513,403 | $228,756 | $0 | $742,159 | $742,159 |
| 2014 | $833,265 | $228,756 | $0 | $1,062,021 | $1,062,021 |
| 2013 | $833,265 | $228,756 | $0 | $1,062,021 | $1,062,021 |
| 2012 | $833,265 | $228,756 | $0 | $1,062,021 | $1,062,021 |
| 2011 | $833,265 | $228,756 | $0 | $1,062,021 | $1,062,021 |
| 2010 | $869,752 | $228,756 | $0 | $1,098,508 | $1,098,508 |
| 2009 | $883,868 | $251,197 | $0 | $1,135,065 | $1,135,065 |
| 2008 | $897,993 | $251,756 | $0 | $1,149,749 | $1,149,749 |
| 2007 | $926,051 | $251,756 | $0 | $1,177,807 | $1,177,807 |
Deed and Sales History
| 1 | 01/12/2009 | OTHER | Other - Misc. Documents | BAYVIEW COMUNITY LLC, | BAYVIEW COMMUNITY LLC, | | | $0.00 | 81092 | 0 |
| 2 | 06/24/2005 | WD | Warranty Deed | MYERS, KENT | BAYVIEW COMUNITY LLC, | | | $1,929,092.00 | 53123 | 4139307 |
| 3 | 11/15/2001 | SEG | DNU - Segregation | Unknown | MYERS, KENT | | | $0.00 | 69213 | 0 |
Payout Agreement
| No payout information available.. |