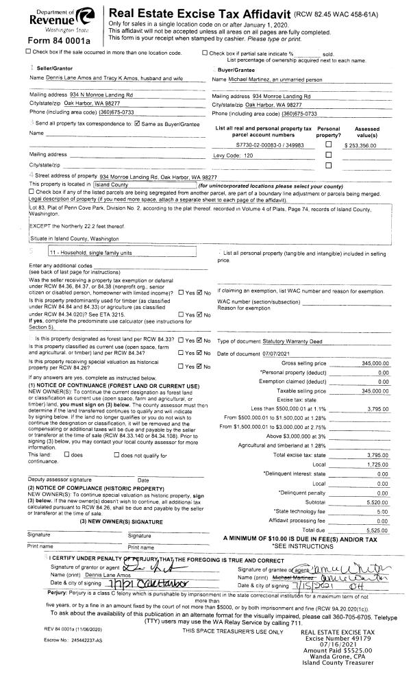
Property
Account |
| Property ID: | 803149 | Abbreviated Legal Description: | NEW 2001 FOR 2002 1974 MODULINE CORINTHIAN 14X52 VIN# 91117 TPO @19514 |
| Geographic ID: | M91250000009-1 | Agent Code: | |
| Type: | Mobile Home | | |
| Tax Area: | 110 - APPRAISER-OH Schl Dist, outside OH, improved & 1 acre or less | Land Use Code | 11 |
| Open Space: | N | DFL | N |
| Historic Property: | N | Remodel Property: | N |
| Multi-Family Redevelopment: | N | | |
| Township: | | Section: | |
| Range: | |
Location |
| Address: | A ST # 9 OAK HARBOR, WA 98277 | Mapsco: | |
| Neighborhood: | Cycle 6 | Map ID: | |
| Neighborhood CD: | 6 |
Owner |
| Name: | MARTIN TTEE, PETER E | Owner ID: | 297884 |
| Mailing Address: | 1872 PATRICK'S POINT DR TRINIDAD, CA 95570 | % Ownership: | 100.0000000000% |
| | | Exemptions: | |
Taxes and Assessment Details
Values
| (+) Improvement Homesite Value: | + | $0 | |
| (+) Improvement Non-Homesite Value: | + | $5,312 | |
| (+) Land Homesite Value: | + | $0 | |
| (+) Land Non-Homesite Value: | + | $0 | |
| (+) Curr Use (HS): | + | $0 | $0 |
| (+) Curr Use (NHS): | + | $0 | $0 |
| | | -------------------------- | |
| (=) Market Value: | = | $5,312 | |
| (–) Productivity Loss: | – | $0 | |
| | | -------------------------- | |
| (=) Subtotal: | = | $5,312 | |
| (+) Senior Appraised Value: | + | $0 | |
| (+) Non-Senior Appraised Value: | + | $5,312 | |
| | | -------------------------- | |
| (=) Total Appraised Value: | = | $5,312 | |
| (–) Senior Exemption Loss: | – | $0 | |
| (–) Exemption Loss: | – | $0 | |
| | | -------------------------- | |
| (=) Taxable Value: | = | $5,312 | |
Taxing Jurisdiction
| Owner: | MARTIN TTEE, PETER E | | |
| % Ownership: | 100.0000000000% | | |
| Total Value: | $5,312 | | |
| Tax Area: | 110 - APPRAISER-OH Schl Dist, outside OH, improved & 1 acre or less |
| CF | Conservation Futures | 0.0316035091 | $5,312 | $5,312 | $0.17 | | |
| CEM1 | Cemetery #1 | 0.0040320932 | $5,312 | $5,312 | $0.02 | | |
| FIRE2 | Fire & Rescue Dist #2 N Whidbey GEN | 0.5475949600 | $5,312 | $5,312 | $2.91 | | |
| HOBOND | Hospital BOND | 0.1910887512 | $5,312 | $5,312 | $1.02 | | |
| HOGEN | Hospital GEN | 0.3902502903 | $5,312 | $5,312 | $2.07 | | |
| CE | County Current Expense | 0.3708482477 | $5,312 | $5,312 | $1.97 | | |
| CR | County Roads | 0.4584763726 | $5,312 | $5,312 | $2.44 | | |
| ISLANDEMS | Hospital GEN (EMS) | 0.5000000000 | $5,312 | $5,312 | $2.66 | | |
| LIB | Library Sno-Isle GEN | 0.3153421757 | $5,312 | $5,312 | $1.68 | | |
| NWHIDPRMT | P & R N Whidbey GEN | 0.2004466701 | $5,312 | $5,312 | $1.06 | | |
| SCH201MO | School 201 Enrichment | 1.8559231640 | $5,312 | $5,312 | $9.86 | | |
| ST | State School | 1.3035497053 | $5,312 | $5,312 | $6.92 | | |
| ST2 | State School Part 2 | 0.8169543533 | $5,312 | $5,312 | $4.34 | | |
| | Total Tax Rate: | 6.9861102925 | | | | | |
| | | | | Taxes w/Current Exemptions: | $37.12 | | |
| | | | | Taxes w/o Exemptions: | $37.12 | | |
Improvement / Building
| Improvement #1: | MANUFACTURED HOME | State Code: | Y | 728.0 sqft | Value: | $5,312 |
| Bathrooms: | 0 | Bedrooms: | 0 | | Ceiling: | PLASTER PAINTED | Cooling: | EVAP NO DUCT | | Exterior Wall/Cover: | VINYL | Floor Covering: | CARPET 100% | | Floor Structure: | SLAB ON GRADE | Foundation: | SLAB | | Heating: | FHA ELECTRIC | Interior Finish: | PLASTER | | Roof Slope: | FLAT | Roof Structure/Cover: | CJ ALUMINIUM HEAVY |
|
| | Type | Description | Class CD | Sub Class CD | Year Built | Area |
| | BAS | BASE/MAIN FLOOR | 2 | 0 | 1974 | 728.0 |
| | OWP | OPEN WOOD PORCH W/STEPS | 2 | 0 | 1974 | 60.0 |
Sketch
Property Image
Land
No land segments exist for this property.
Roll Value History
| 2026 | N/A | N/A | N/A | N/A | N/A |
| 2025 | $5,312 | $0 | $0 | $5,312 | $5,312 |
| 2024 | $5,634 | $0 | $0 | $5,634 | $5,634 |
| 2023 | $5,319 | $0 | $0 | $5,319 | $5,319 |
| 2022 | $5,070 | $0 | $0 | $5,070 | $5,070 |
| 2021 | $4,628 | $0 | $0 | $4,628 | $4,628 |
| 2020 | $4,707 | $0 | $0 | $4,707 | $4,707 |
| 2019 | $3,879 | $0 | $0 | $3,879 | $3,879 |
| 2018 | $4,048 | $0 | $0 | $4,048 | $4,048 |
| 2017 | $4,301 | $0 | $0 | $4,301 | $4,301 |
| 2016 | $2,637 | $0 | $0 | $2,637 | $2,637 |
| 2015 | $2,682 | $0 | $0 | $2,682 | $2,682 |
| 2014 | $2,729 | $0 | $0 | $2,729 | $2,729 |
| 2013 | $2,775 | $0 | $0 | $2,775 | $2,775 |
| 2012 | $2,822 | $0 | $0 | $2,822 | $2,822 |
| 2011 | $2,868 | $0 | $0 | $2,868 | $2,868 |
| 2010 | $3,060 | $0 | $0 | $3,060 | $3,060 |
| 2009 | $3,205 | $0 | $0 | $3,205 | $3,205 |
| 2008 | $3,205 | $0 | $0 | $3,205 | $3,205 |
| 2007 | $3,205 | $0 | $0 | $3,205 | $3,205 |
Deed and Sales History
| 1 | 01/29/2021 | MANHOME | Manufactured Home | J. AND M.J. LAMBERT, LLC | MARTIN TTEE, PETER E | | | $5,000.00 | 46734 | |
| 2 | 07/16/2007 | OTHER | Other - Misc. Documents | LAMBERT, GEORGE D | J. AND M.J. LAMBERT, LLC, | | | $3,205.00 | 72359 | 0 |
| 3 | 01/01/1900 | OTHER | Other - Misc. Documents | Unknown | LAMBERT, GEORGE D | | | $0.00 | 0 | 0 |
Payout Agreement
| No payout information available.. |