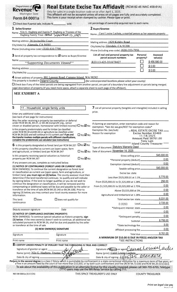
Property
Account |
| Property ID: | 803166 | Abbreviated Legal Description: | LOT 2 SP 115-98.32908.272-3230 V3 SP P357 AF#20027494 |
| Geographic ID: | R32908-269-3550 | Agent Code: | |
| Type: | Real | | |
| Tax Area: | 712 - APPRAISER-S Whid Schl Dist, outside Langley, improved, greater than 1 acre | Land Use Code | 11 |
| Open Space: | N | DFL | N |
| Historic Property: | N | Remodel Property: | N |
| Multi-Family Redevelopment: | N | | |
| Township: | 29 | Section: | 08 |
| Range: | R3 |
Location |
| Address: | 3054 LAKEVIEW WAY LANGLEY, WA 98260 | Mapsco: | |
| Neighborhood: | Cycle 4 | Map ID: | 749 |
| Neighborhood CD: | 4 |
Owner |
| Name: | ANDERSON, LOUISE KOBUKE | Owner ID: | 317360 |
| Mailing Address: | 3054 LAKEVIEW WAY LANGLEY, WA 98260 | % Ownership: | 100.0000000000% |
| | | Exemptions: | |
Taxes and Assessment Details
Values
| (+) Improvement Homesite Value: | + | $0 | |
| (+) Improvement Non-Homesite Value: | + | $675,384 | |
| (+) Land Homesite Value: | + | $0 | |
| (+) Land Non-Homesite Value: | + | $380,000 | |
| (+) Curr Use (HS): | + | $0 | $0 |
| (+) Curr Use (NHS): | + | $0 | $0 |
| | | -------------------------- | |
| (=) Market Value: | = | $1,055,384 | |
| (–) Productivity Loss: | – | $0 | |
| | | -------------------------- | |
| (=) Subtotal: | = | $1,055,384 | |
| (+) Senior Appraised Value: | + | $0 | |
| (+) Non-Senior Appraised Value: | + | $1,055,384 | |
| | | -------------------------- | |
| (=) Total Appraised Value: | = | $1,055,384 | |
| (–) Senior Exemption Loss: | – | $0 | |
| (–) Exemption Loss: | – | $0 | |
| | | -------------------------- | |
| (=) Taxable Value: | = | $1,055,384 | |
Taxing Jurisdiction
| Owner: | ANDERSON, LOUISE KOBUKE | | |
| % Ownership: | 100.0000000000% | | |
| Total Value: | $1,055,384 | | |
| Tax Area: | 712 - APPRAISER-S Whid Schl Dist, outside Langley, improved, greater than 1 acre |
| CF | Conservation Futures | 0.0316035091 | $1,055,384 | $1,055,384 | $33.35 | | |
| FIRE3 | Fire & Rescue Dist #3 S Whidbey GEN | 1.2004855531 | $1,055,384 | $1,055,384 | $1,266.97 | | |
| HOBOND | Hospital BOND | 0.1910887512 | $1,055,384 | $1,055,384 | $201.67 | | |
| HOGEN | Hospital GEN | 0.3902502903 | $1,055,384 | $1,055,384 | $411.86 | | |
| CE | County Current Expense | 0.3708482477 | $1,055,384 | $1,055,384 | $391.39 | | |
| CR | County Roads | 0.4584763726 | $1,055,384 | $1,055,384 | $483.87 | | |
| ISLANDEMS | Hospital GEN (EMS) | 0.5000000000 | $1,055,384 | $1,055,384 | $527.69 | | |
| LIB | Library Sno-Isle GEN | 0.3153421757 | $1,055,384 | $1,055,384 | $332.81 | | |
| PORTWHID | Port of S Whidbey GEN | 0.1094540357 | $1,055,384 | $1,055,384 | $115.52 | | |
| SCH206BOND | School 206 BOND | 0.3161759235 | $1,055,384 | $1,055,384 | $333.69 | | |
| SCH206MO | School 206 Enrichment | 0.4547169547 | $1,055,384 | $1,055,384 | $479.90 | | |
| ST | State School | 1.3035497053 | $1,055,384 | $1,055,384 | $1,375.75 | | |
| ST2 | State School Part 2 | 0.8169543533 | $1,055,384 | $1,055,384 | $862.20 | | |
| SWHIDPRBD | P & R S Whidbey BOND | 0.0152817568 | $1,055,384 | $1,055,384 | $16.13 | | |
| SWHIDPRBD2 | P & R S Whidbey BOND2 | 0.0138911264 | $1,055,384 | $1,055,384 | $14.66 | | |
| SWHIDPRMT | P & R S Whidbey GEN | 0.2053334452 | $1,055,384 | $1,055,384 | $216.71 | | |
| | Total Tax Rate: | 6.6934522006 | | | | | |
| | | | | Taxes w/Current Exemptions: | $7,064.17 | | |
| | | | | Taxes w/o Exemptions: | $7,064.17 | | |
Improvement / Building
| Improvement #1: | RESIDENTIAL | State Code: | Y | 2733.7 sqft | Value: | $675,384 |
| Bathrooms: | 2.25 | Bedrooms: | 2 | | Ceiling: | DRYWALL PAINTED | Exterior Wall/Cover: | CEMENT FIBER | | Floor Covering: | CERAMIC TILE/HWD 40/60 | Floor Structure: | WOOD W/SUBFLOOR | | Foundation: | CONCRETE | Heating: | FHA GAS | | Interior Finish: | DRYWALL PAINT | Plumbing Fixture Cnt: | 13 | | Roof Slope: | 4" IN 12" | Roof Structure/Cover: | CJ ASPHALT |
|
| | Type | Description | Class CD | Sub Class CD | Year Built | Area |
| | BAS | BASE/MAIN FLOOR | 5 | 0 | 2003 | 1771.5 |
| | OP4 | OPEN PORCH W/CEILING-ROOF | 5 | 0 | 2003 | 351.3 |
| | BIG | BUILT IN GARAGE | 5 | 0 | 2003 | 871.0 |
| | OCP | OPEN CARPORT | 5 | 0 | 2003 | 308.0 |
| | BAW | BALCONY WOOD RAIL | 5 | 0 | 2003 | 136.0 |
| | OWC | OPEN WOOD PORCH W/STEPS/ROOF/C | 5 | 0 | 2003 | 407.0 |
| | OWC | OPEN WOOD PORCH W/STEPS/ROOF/C | 5 | 0 | 2003 | 519.0 |
| | DWN | DOWNSTAIRS LIVING AREA | 5 | 0 | 2003 | 962.2 |
Sketch
Property Image
Land
| 1 | 32 | AC (03.01-09.99) | 4.7200 | 0.00 | 0.00 | 0.00 | 1.00 | $380,000 | $0 |
Roll Value History
| 2026 | N/A | N/A | N/A | N/A | N/A |
| 2025 | $675,384 | $380,000 | $0 | $1,055,384 | $1,055,384 |
| 2024 | $533,532 | $350,000 | $0 | $883,532 | $883,532 |
| 2023 | $539,864 | $330,000 | $0 | $869,864 | $869,864 |
| 2022 | $494,581 | $290,000 | $0 | $784,581 | $784,581 |
| 2021 | $435,055 | $230,000 | $0 | $665,055 | $665,055 |
| 2020 | $409,925 | $190,000 | $0 | $599,925 | $599,925 |
| 2019 | $316,004 | $250,000 | $0 | $566,004 | $566,004 |
| 2018 | $316,920 | $210,000 | $0 | $526,920 | $526,920 |
| 2017 | $318,751 | $190,000 | $0 | $508,751 | $508,751 |
| 2016 | $322,416 | $135,000 | $0 | $457,416 | $457,416 |
| 2015 | $326,079 | $135,000 | $0 | $461,079 | $461,079 |
| 2014 | $325,729 | $118,000 | $0 | $443,729 | $443,729 |
| 2013 | $329,429 | $127,440 | $0 | $456,869 | $456,869 |
| 2012 | $333,131 | $160,480 | $0 | $493,611 | $493,611 |
| 2011 | $336,831 | $160,480 | $0 | $497,311 | $497,311 |
| 2010 | $346,983 | $160,480 | $0 | $507,463 | $507,463 |
| 2009 | $361,526 | $207,680 | $0 | $569,206 | $569,206 |
| 2008 | $358,398 | $202,960 | $0 | $561,358 | $561,358 |
| 2007 | $358,538 | $202,960 | $0 | $561,498 | $561,498 |
Deed and Sales History
| 1 | 07/14/2025 | QCD | Quit Claim Deed | ANDERSON, JAMES ARTHUR | ANDERSON, LOUISE KOBUKE | | | $0.00 | 64149 | 4588253 |
| 2 | 07/11/2025 | QCD | Quit Claim Deed | ANDERSON TTEE, JAMES ARTHUR | ANDERSON, LOUISE KOBUKE | | | $0.00 | 64148 | 4588252 |
| 3 | 06/11/2024 | WD | Warranty Deed | BECK, JOSEPH R | ANDERSON TTEE, JAMES ARTHUR | | | $1,000,000.00 | 60384 | 4573677 |
| 4 | 04/24/2001 | WD | Warranty Deed | O'MAHONY, MICHAEL JOHN | BECK, JOSEPH R | | | $0.00 | 11422 | 20030764 |
| 5 | 01/01/1900 | OTHER | Other - Misc. Documents | Unknown | O'MAHONY, MICHAEL JOHN | | | $0.00 | 0 | 0 |
Payout Agreement
| No payout information available.. |