Property
Account |
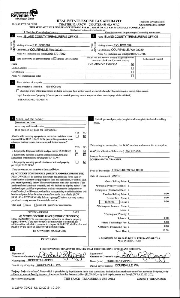
| Property ID: | 803242 | Abbreviated Legal Description: | 4.4700 Acres ins Section 24s Township 33s Range R1s LOT B BLA 241-17 AF#4434430 IN S/2 E/2 SW SE;s |
| Geographic ID: | R13324-030-3780 | Agent Code: | |
| Type: | Real | | |
| Tax Area: | 112 - APPRAISER-OH Schl Dist, outside OH, improved, greater than 1 acre | Land Use Code | 11 |
| Open Space: | N | DFL | N |
| Historic Property: | N | Remodel Property: | N |
| Multi-Family Redevelopment: | N | | |
| Township: | 33 | Section: | 24 |
| Range: | R1 |
Location |
| Address: | 112 W FAKKEMA RD OAK HARBOR, WA 98277 | Mapsco: | |
| Neighborhood: | Cycle 6 | Map ID: | 223 |
| Neighborhood CD: | 6 |
Owner |
| Name: | IAULUALO, ZERO MAAVE | Owner ID: | 299174 |
| Mailing Address: | MERRYANNE M EMERY 2487V W GRENOBLE LN COEUR D ALENE, ID 83815-0481 | % Ownership: | 100.0000000000% |
| | | Exemptions: | |
Taxes and Assessment Details
Values
| (+) Improvement Homesite Value: | + | $0 | |
| (+) Improvement Non-Homesite Value: | + | $329,694 | |
| (+) Land Homesite Value: | + | $0 | |
| (+) Land Non-Homesite Value: | + | $300,000 | |
| (+) Curr Use (HS): | + | $0 | $0 |
| (+) Curr Use (NHS): | + | $0 | $0 |
| | | -------------------------- | |
| (=) Market Value: | = | $629,694 | |
| (–) Productivity Loss: | – | $0 | |
| | | -------------------------- | |
| (=) Subtotal: | = | $629,694 | |
| (+) Senior Appraised Value: | + | $0 | |
| (+) Non-Senior Appraised Value: | + | $629,694 | |
| | | -------------------------- | |
| (=) Total Appraised Value: | = | $629,694 | |
| (–) Senior Exemption Loss: | – | $0 | |
| (–) Exemption Loss: | – | $0 | |
| | | -------------------------- | |
| (=) Taxable Value: | = | $629,694 | |
Taxing Jurisdiction
| Owner: | IAULUALO, ZERO MAAVE | | |
| % Ownership: | 100.0000000000% | | |
| Total Value: | $629,694 | | |
| Tax Area: | 112 - APPRAISER-OH Schl Dist, outside OH, improved, greater than 1 acre |
| CF | Conservation Futures | 0.0316035091 | $629,694 | $629,694 | $19.90 | | |
| CEM1 | Cemetery #1 | 0.0040320932 | $629,694 | $629,694 | $2.54 | | |
| FIRE2 | Fire & Rescue Dist #2 N Whidbey GEN | 0.5475949600 | $629,694 | $629,694 | $344.82 | | |
| HOBOND | Hospital BOND | 0.1910887512 | $629,694 | $629,694 | $120.33 | | |
| HOGEN | Hospital GEN | 0.3902502903 | $629,694 | $629,694 | $245.74 | | |
| CE | County Current Expense | 0.3708482477 | $629,694 | $629,694 | $233.52 | | |
| CR | County Roads | 0.4584763726 | $629,694 | $629,694 | $288.70 | | |
| ISLANDEMS | Hospital GEN (EMS) | 0.5000000000 | $629,694 | $629,694 | $314.85 | | |
| LIB | Library Sno-Isle GEN | 0.3153421757 | $629,694 | $629,694 | $198.57 | | |
| NWHIDPRMT | P & R N Whidbey GEN | 0.2004466701 | $629,694 | $629,694 | $126.22 | | |
| SCH201MO | School 201 Enrichment | 1.8559231640 | $629,694 | $629,694 | $1,168.66 | | |
| ST | State School | 1.3035497053 | $629,694 | $629,694 | $820.84 | | |
| ST2 | State School Part 2 | 0.8169543533 | $629,694 | $629,694 | $514.43 | | |
| | Total Tax Rate: | 6.9861102925 | | | | | |
| | | | | Taxes w/Current Exemptions: | $4,399.12 | | |
| | | | | Taxes w/o Exemptions: | $4,399.12 | | |
Improvement / Building
| Improvement #1: | MANUFACTURED HOME | State Code: | Y | 1272.0 sqft | Value: | $329,694 |
| Bathrooms: | 2 | Bedrooms: | 3 | | Ceiling: | PLASTER PAINTED | Exterior Wall/Cover: | VINYL | | Floor Covering: | CARPET 100% | Floor Structure: | SLAB ON GRADE | | Foundation: | SLAB | Heating: | FHA ELECTRIC | | Interior Finish: | PLASTER | Plumbing Fixture Cnt: | 1 | | Roof Slope: | FLAT | Roof Structure/Cover: | CJ ALUMINIUM HEAVY |
|
| | Type | Description | Class CD | Sub Class CD | Year Built | Area |
| | BAS | BASE/MAIN FLOOR | 4 | 0 | 2017 | 1272.0 |
| | UTY | STORAGE/UTILITY | 3 | 0 | 2017 | 140.0 |
| | DGR | DETACHED GARAGE | 3 | 0 | 2017 | 4352.0 |
Sketch
Property Image
Land
| 1 | 32 | AC (03.01-09.99) | 4.4700 | 194713.20 | 0.00 | 0.00 | 1.00 | $300,000 | $0 |
Roll Value History
| 2026 | N/A | N/A | N/A | N/A | N/A |
| 2025 | $329,694 | $300,000 | $0 | $629,694 | $629,694 |
| 2024 | $333,278 | $280,000 | $0 | $613,278 | $613,278 |
| 2023 | $292,910 | $270,000 | $0 | $562,910 | $562,910 |
| 2022 | $233,835 | $240,000 | $0 | $473,835 | $473,835 |
| 2021 | $207,646 | $175,000 | $0 | $382,646 | $382,646 |
| 2020 | $203,692 | $150,000 | $0 | $353,692 | $353,692 |
| 2019 | $162,099 | $185,000 | $0 | $347,099 | $347,099 |
| 2018 | $163,752 | $170,000 | $0 | $333,752 | $333,752 |
| 2017 | $119,977 | $150,000 | $0 | $269,977 | $269,977 |
| 2016 | $30,159 | $140,000 | $0 | $170,159 | $170,159 |
| 2015 | $30,159 | $120,000 | $0 | $150,159 | $150,159 |
| 2014 | $30,159 | $100,000 | $0 | $130,159 | $130,159 |
| 2013 | $30,159 | $89,100 | $0 | $119,259 | $119,259 |
| 2012 | $30,159 | $101,250 | $0 | $131,409 | $131,409 |
| 2011 | $30,159 | $112,500 | $0 | $142,659 | $142,659 |
| 2010 | $30,159 | $112,500 | $0 | $142,659 | $142,659 |
| 2009 | $30,159 | $112,500 | $0 | $142,659 | $142,659 |
| 2008 | $30,159 | $132,750 | $0 | $162,909 | $162,909 |
| 2007 | $30,159 | $132,750 | $0 | $162,909 | $162,909 |
Deed and Sales History
| 1 | 04/29/2021 | WD | Warranty Deed | BUROW, MICHAEL | IAULUALO, ZERO MAAVE | | | $520,000.00 | 48073 | 4518107 |
|   | |
| 2 | 07/03/2017 | QCD | Quit Claim Deed | BRATCHER, WILLIAM | BRATCHER, WILLIAM | | | $0.00 | 31973 | 4434431 |
| 3 | 05/08/2018 | WD | Warranty Deed | BRATCHER, WILLIAM | BUROW, MICHAEL | | | $387,500.00 | 34172 | 4444732 |
|   | |
| 4 | 07/01/2017 | QCD | Quit Claim Deed | FREER, KENT J | BRATCHER, WILLIAM | | | $0.00 | 31972 | 4434432 |
| 5 | 10/04/2016 | CCOMPROP | Create Community Property | BRATCHER, WILLIAM | BRATCHER, WILLIAM | | | $0.00 | 26579 | 4409530 |
| 6 | 02/25/2014 | ESTSEPPROP | Establish Separate Property | BRATCHER, WILLIAM | BRATCHER, WILLIAM | | | $0.00 | 14453 | 4355960 |
| 7 | 02/24/2014 | WD | Warranty Deed | ELLIS, R O | BRATCHER, WILLIAM | | | $100,000.00 | 14452 | 4355959 |
|   | |
| 8 | 01/18/2002 | BLA | DNU - Boundary Line Adjustment | Unknown | ELLIS, R O | | | $0.00 | 69293 | 20027659 |
| 9 | 03/07/2001 | ESTSEPPROP | Establish Separate Property | ELLIS, R O | ELLIS, R O | | | $0.00 | 10849 | 20027657 |
Payout Agreement
| No payout information available.. |