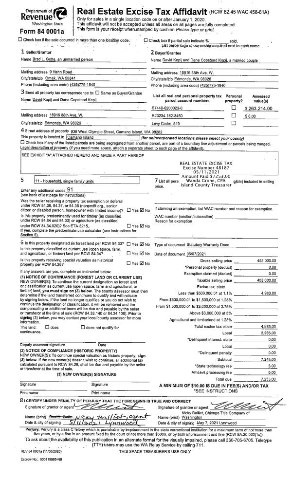
Property
Account |
| Property ID: | 803265 | Abbreviated Legal Description: | N990' OF W220' OF SE NW TGW FOLL DESC PT OF GL3 DESC: BG NWCR SE NW SD SEC 3 PT AKA SWCR SD GL3 S88*E ALG NLN SD SE NW ALSO BEING SLN OF SD GL3 221.78 TO NECR OF SD W220 OF SE NW N5*W PARA/W & 220E OF WLNS OF SD SE NW & SD GL3 11.77 TP ON BARBED WIRE |
| Geographic ID: | R32903-371-1500 | Agent Code: | |
| Type: | Real | | |
| Tax Area: | 712 - APPRAISER-S Whid Schl Dist, outside Langley, improved, greater than 1 acre | Land Use Code | 11 |
| Open Space: | N | DFL | N |
| Historic Property: | N | Remodel Property: | N |
| Multi-Family Redevelopment: | N | | |
| Township: | 29 | Section: | 03 |
| Range: | R3 |
Location |
| Address: | 599 6TH ST LANGLEY, WA 98260 | Mapsco: | |
| Neighborhood: | Cycle 4 | Map ID: | 725 |
| Neighborhood CD: | 4 |
Owner |
| Name: | FOSSEK TRUSTEE, HENRY CARL | Owner ID: | 281165 |
| Mailing Address: | 599 6TH ST LANGLEY, WA 98260-9630 | % Ownership: | 100.0000000000% |
| | | Exemptions: | |
Taxes and Assessment Details
Values
| (+) Improvement Homesite Value: | + | $0 | |
| (+) Improvement Non-Homesite Value: | + | $315,426 | |
| (+) Land Homesite Value: | + | $0 | |
| (+) Land Non-Homesite Value: | + | $470,000 | |
| (+) Curr Use (HS): | + | $0 | $0 |
| (+) Curr Use (NHS): | + | $0 | $0 |
| | | -------------------------- | |
| (=) Market Value: | = | $785,426 | |
| (–) Productivity Loss: | – | $0 | |
| | | -------------------------- | |
| (=) Subtotal: | = | $785,426 | |
| (+) Senior Appraised Value: | + | $0 | |
| (+) Non-Senior Appraised Value: | + | $785,426 | |
| | | -------------------------- | |
| (=) Total Appraised Value: | = | $785,426 | |
| (–) Senior Exemption Loss: | – | $0 | |
| (–) Exemption Loss: | – | $0 | |
| | | -------------------------- | |
| (=) Taxable Value: | = | $785,426 | |
Taxing Jurisdiction
| Owner: | FOSSEK TRUSTEE, HENRY CARL | | |
| % Ownership: | 100.0000000000% | | |
| Total Value: | $785,426 | | |
| Tax Area: | 712 - APPRAISER-S Whid Schl Dist, outside Langley, improved, greater than 1 acre |
| CF | Conservation Futures | 0.0316035091 | $785,426 | $785,426 | $24.82 | | |
| FIRE3 | Fire & Rescue Dist #3 S Whidbey GEN | 1.2004855531 | $785,426 | $785,426 | $942.89 | | |
| HOBOND | Hospital BOND | 0.1910887512 | $785,426 | $785,426 | $150.09 | | |
| HOGEN | Hospital GEN | 0.3902502903 | $785,426 | $785,426 | $306.51 | | |
| CE | County Current Expense | 0.3708482477 | $785,426 | $785,426 | $291.27 | | |
| CR | County Roads | 0.4584763726 | $785,426 | $785,426 | $360.10 | | |
| ISLANDEMS | Hospital GEN (EMS) | 0.5000000000 | $785,426 | $785,426 | $392.71 | | |
| LIB | Library Sno-Isle GEN | 0.3153421757 | $785,426 | $785,426 | $247.68 | | |
| PORTWHID | Port of S Whidbey GEN | 0.1094540357 | $785,426 | $785,426 | $85.97 | | |
| SCH206BOND | School 206 BOND | 0.3161759235 | $785,426 | $785,426 | $248.33 | | |
| SCH206MO | School 206 Enrichment | 0.4547169547 | $785,426 | $785,426 | $357.15 | | |
| ST | State School | 1.3035497053 | $785,426 | $785,426 | $1,023.84 | | |
| ST2 | State School Part 2 | 0.8169543533 | $785,426 | $785,426 | $641.66 | | |
| SWHIDPRBD | P & R S Whidbey BOND | 0.0152817568 | $785,426 | $785,426 | $12.00 | | |
| SWHIDPRBD2 | P & R S Whidbey BOND2 | 0.0138911264 | $785,426 | $785,426 | $10.91 | | |
| SWHIDPRMT | P & R S Whidbey GEN | 0.2053334452 | $785,426 | $785,426 | $161.27 | | |
| | Total Tax Rate: | 6.6934522006 | | | | | |
| | | | | Taxes w/Current Exemptions: | $5,257.20 | | |
| | | | | Taxes w/o Exemptions: | $5,257.20 | | |
Improvement / Building
| Improvement #1: | RESIDENTIAL | State Code: | Y | 1700.0 sqft | Value: | $315,426 |
| Bathrooms: | 2 | Bedrooms: | 1 | | Ceiling: | TONGUE & GROOVE | Cooling: | HEAT PUMP/CONV/V | | Exterior Wall/Cover: | LOG TO 10" | Floor Covering: | CARPET/VINYL 20-80 | | Floor Structure: | WOOD W/SUBFLOOR | Foundation: | CONCRETE | | Interior Finish: | DRYWALL PAINT | Plumbing Fixture Cnt: | 11 | | Roof Slope: | 8" IN 12" | Roof Structure/Cover: | CJ ALUMINIUM HEAVY |
|
| | Type | Description | Class CD | Sub Class CD | Year Built | Area |
| | BAS | BASE/MAIN FLOOR | 4 | 0 | 1979 | 1040.0 |
| | OWP | OPEN WOOD PORCH W/STEPS | 4 | 0 | 1979 | 48.0 |
| | OWR | OPEN WOOD PORCH W/STEPS/ROOF | 4 | 0 | 1979 | 416.0 |
| | LOF | LOFT | 4 | 0 | 1979 | 660.0 |
| | oPOL | POLE BARN | 4 | 0 | 1979 | 1428.0 |
| | OWP | OPEN WOOD PORCH W/STEPS | 4 | 0 | 1979 | 152.0 |
| | OWP | OPEN WOOD PORCH W/STEPS | 4 | 0 | 1979 | 187.0 |
| | CPD | OPEN CARPORT DIRT FLOOR | 4 | 0 | 1979 | 588.0 |
| | OCP | OPEN CARPORT | 4 | 0 | 1979 | 120.0 |
| | CPD | OPEN CARPORT DIRT FLOOR | 4 | 0 | 1979 | 252.0 |
Sketch
Property Image
Land
| 1 | 32 | AC (03.01-09.99) | 5.0800 | 221284.80 | 0.00 | 0.00 | 1.00 | $470,000 | $0 |
Roll Value History
| 2026 | N/A | N/A | N/A | N/A | N/A |
| 2025 | $315,426 | $470,000 | $0 | $785,426 | $785,426 |
| 2024 | $335,811 | $450,000 | $0 | $785,811 | $785,811 |
| 2023 | $340,023 | $420,000 | $0 | $760,023 | $760,023 |
| 2022 | $315,088 | $410,000 | $0 | $725,088 | $725,088 |
| 2021 | $281,960 | $380,000 | $0 | $661,960 | $661,960 |
| 2020 | $226,921 | $260,000 | $0 | $486,921 | $486,921 |
| 2019 | $176,697 | $300,000 | $0 | $476,697 | $476,697 |
| 2018 | $177,194 | $250,000 | $0 | $427,194 | $427,194 |
| 2017 | $178,188 | $200,000 | $0 | $378,188 | $378,188 |
| 2016 | $180,177 | $165,000 | $0 | $345,177 | $345,177 |
| 2015 | $182,166 | $135,000 | $0 | $317,166 | $317,166 |
| 2014 | $166,401 | $220,000 | $0 | $386,401 | $386,401 |
| 2013 | $168,178 | $220,000 | $0 | $388,178 | $388,178 |
| 2012 | $169,956 | $220,000 | $0 | $389,956 | $389,956 |
| 2011 | $171,733 | $220,000 | $0 | $391,733 | $391,733 |
| 2010 | $148,251 | $220,000 | $0 | $368,251 | $368,251 |
| 2009 | $154,594 | $250,000 | $0 | $404,594 | $404,594 |
| 2008 | $84,493 | $250,000 | $0 | $334,493 | $334,493 |
| 2007 | $86,001 | $250,000 | $0 | $336,001 | $336,001 |
Deed and Sales History
| 1 | 12/31/2015 | TRUSTEED | Trustee's Deed | FOSSEK, HENRY CARL | FOSSEK TRUSTEE, HENRY CARL | | | $0.00 | 22718 | 4391963 |
| 2 | 08/13/2012 | ESTSEPPROP | Establish Separate Property | FOSSEK, HENRY CARL | FOSSEK, HENRY CARL | | | $0.00 | 9638 | 4328312 |
| 3 | 01/30/2002 | BLA | DNU - Boundary Line Adjustment | Unknown | FOSSEK, RAY | | | $0.00 | 69303 | 20028194 |
| 4 | 12/24/2001 | QCD | Quit Claim Deed | FOSSEK, RAY | FOSSEK, HENRY CARL | | | $0.00 | 14815 | 4006442 |
Payout Agreement
| No payout information available.. |