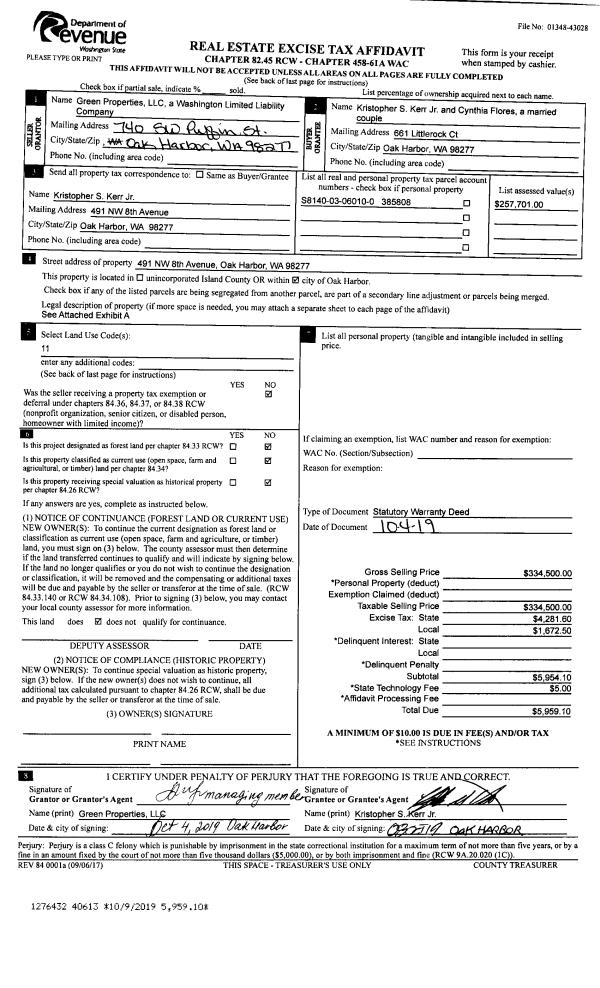
Property
Account |
| Property ID: | 803380 | Abbreviated Legal Description: | VILLAGE AT MAPLE RIDGE - CONDO PHASE 1 UNIT 12 1/41 INT |
| Geographic ID: | S8371-00-00012-0 | Agent Code: | |
| Type: | Real | | |
| Tax Area: | 820 - APPRAISER-S Whid Schl Dist, Special District, improved & less than 1 acre | Land Use Code | 14 |
| Open Space: | N | DFL | N |
| Historic Property: | N | Remodel Property: | N |
| Multi-Family Redevelopment: | N | | |
| Township: | | Section: | |
| Range: | |
Location |
| Address: | 1735 COMPASS BLVD UNIT 12 FREELAND, WA 98249 | Mapsco: | |
| Neighborhood: | 34*FR-maple ridge | Map ID: | 313 |
| Neighborhood CD: | 34*FRmplrg |
Owner |
| Name: | MESHEW, LARRY | Owner ID: | 301081 |
| Mailing Address: | SANDRA MESHEW 60 RASPBERRY LN KETCHIKAN, AK 99901 | % Ownership: | 100.0000000000% |
| | | Exemptions: | |
Taxes and Assessment Details
Values
| (+) Improvement Homesite Value: | + | $0 | |
| (+) Improvement Non-Homesite Value: | + | $307,833 | |
| (+) Land Homesite Value: | + | $0 | |
| (+) Land Non-Homesite Value: | + | $180,000 | |
| (+) Curr Use (HS): | + | $0 | $0 |
| (+) Curr Use (NHS): | + | $0 | $0 |
| | | -------------------------- | |
| (=) Market Value: | = | $487,833 | |
| (–) Productivity Loss: | – | $0 | |
| | | -------------------------- | |
| (=) Subtotal: | = | $487,833 | |
| (+) Senior Appraised Value: | + | $0 | |
| (+) Non-Senior Appraised Value: | + | $487,833 | |
| | | -------------------------- | |
| (=) Total Appraised Value: | = | $487,833 | |
| (–) Senior Exemption Loss: | – | $0 | |
| (–) Exemption Loss: | – | $0 | |
| | | -------------------------- | |
| (=) Taxable Value: | = | $487,833 | |
Taxing Jurisdiction
| Owner: | MESHEW, LARRY | | |
| % Ownership: | 100.0000000000% | | |
| Total Value: | $487,833 | | |
| Tax Area: | 820 - APPRAISER-S Whid Schl Dist, Special District, improved & less than 1 acre |
| CF | Conservation Futures | 0.0316035091 | $487,833 | $487,833 | $15.42 | | |
| FIRE3 | Fire & Rescue Dist #3 S Whidbey GEN | 1.2004855531 | $487,833 | $487,833 | $585.64 | | |
| HOBOND | Hospital BOND | 0.1910887512 | $487,833 | $487,833 | $93.22 | | |
| HOGEN | Hospital GEN | 0.3902502903 | $487,833 | $487,833 | $190.38 | | |
| CE | County Current Expense | 0.3708482477 | $487,833 | $487,833 | $180.91 | | |
| CR | County Roads | 0.4584763726 | $487,833 | $487,833 | $223.66 | | |
| ISLANDEMS | Hospital GEN (EMS) | 0.5000000000 | $487,833 | $487,833 | $243.92 | | |
| LIB | Library Sno-Isle GEN | 0.3153421757 | $487,833 | $487,833 | $153.83 | | |
| PORTWHID | Port of S Whidbey GEN | 0.1094540357 | $487,833 | $487,833 | $53.40 | | |
| SCH206BOND | School 206 BOND | 0.3161759235 | $487,833 | $487,833 | $154.24 | | |
| SCH206MO | School 206 Enrichment | 0.4547169547 | $487,833 | $487,833 | $221.83 | | |
| ST | State School | 1.3035497053 | $487,833 | $487,833 | $635.91 | | |
| ST2 | State School Part 2 | 0.8169543533 | $487,833 | $487,833 | $398.54 | | |
| SWHIDPRBD | P & R S Whidbey BOND | 0.0152817568 | $487,833 | $487,833 | $7.45 | | |
| SWHIDPRBD2 | P & R S Whidbey BOND2 | 0.0138911264 | $487,833 | $487,833 | $6.78 | | |
| SWHIDPRMT | P & R S Whidbey GEN | 0.2053334452 | $487,833 | $487,833 | $100.17 | | |
| | Total Tax Rate: | 6.6934522006 | | | | | |
| | | | | Taxes w/Current Exemptions: | $3,265.30 | | |
| | | | | Taxes w/o Exemptions: | $3,265.30 | | |
Improvement / Building
| Improvement #1: | RESIDENTIAL | State Code: | A1 | 1416.3 sqft | Value: | $307,833 |
| Bathrooms: | 1.75 | Bedrooms: | 2 | | Ceiling: | DRYWALL PAINTED | Exterior Wall/Cover: | CEMENT FIBER | | Floor Covering: | VINYL TILE | Floor Structure: | WOOD W/SUBFLOOR | | Foundation: | CONCRETE | Heating: | FHA GAS | | Interior Finish: | DRYWALL PAINT | Plumbing Fixture Cnt: | 9 | | Roof Slope: | 8" IN 12" | Roof Structure/Cover: | CJ ASPHALT |
|
| | Type | Description | Class CD | Sub Class CD | Year Built | Area |
| | BAS | BASE/MAIN FLOOR | 4 | 0 | 2001 | 1416.3 |
| | OP4 | OPEN PORCH W/CEILING-ROOF | 4 | 0 | 2001 | 104.6 |
| | OP4 | OPEN PORCH W/CEILING-ROOF | 4 | 0 | 2001 | 72.2 |
| | AGR | ATTACHED GARAGE | 4 | 0 | 2001 | 345.1 |
| | COMA | Common Area Improvement | 4 | 0 | 2001 | 0.0 |
Sketch
Property Image
Land
| 1 | 61 | MULTIPLE RESIDENCES | 0.0000 | 7915.00 | 0.00 | 0.00 | 1.00 | $180,000 | $0 |
Roll Value History
| 2026 | N/A | N/A | N/A | N/A | N/A |
| 2025 | $307,833 | $180,000 | $0 | $487,833 | $487,833 |
| 2024 | $311,570 | $155,000 | $0 | $466,570 | $466,570 |
| 2023 | $315,306 | $155,000 | $0 | $470,306 | $470,306 |
| 2022 | $289,292 | $155,000 | $0 | $444,292 | $444,292 |
| 2021 | $255,052 | $110,000 | $0 | $365,052 | $365,052 |
| 2020 | $248,342 | $100,000 | $0 | $348,342 | $348,342 |
| 2019 | $235,637 | $85,000 | $0 | $320,637 | $320,637 |
| 2018 | $236,343 | $25,000 | $0 | $261,343 | $261,343 |
| 2017 | $237,691 | $25,000 | $0 | $262,691 | $262,691 |
| 2016 | $240,520 | $25,000 | $0 | $265,520 | $265,520 |
| 2015 | $196,251 | $25,000 | $0 | $221,251 | $221,251 |
| 2014 | $198,532 | $25,000 | $0 | $223,532 | $223,532 |
| 2013 | $198,532 | $25,000 | $0 | $223,532 | $223,532 |
| 2012 | $203,097 | $25,000 | $0 | $228,097 | $228,097 |
| 2011 | $203,097 | $88,727 | $0 | $291,824 | $291,824 |
| 2010 | $209,165 | $88,727 | $0 | $297,892 | $297,892 |
| 2009 | $217,966 | $110,810 | $0 | $328,776 | $328,776 |
| 2008 | $218,106 | $46,699 | $0 | $264,805 | $264,805 |
| 2007 | $208,958 | $46,699 | $0 | $255,657 | $255,657 |
Deed and Sales History
| 1 | 08/16/2021 | WD | Warranty Deed | OLSON, CAROL T C | MESHEW, LARRY | | | $490,000.00 | 49976 | 4528800 |
| 2 | 10/13/2017 | QCD | Quit Claim Deed | OLSON TRUSTEE, CAROL T C | OLSON, CAROL T C | | | $0.00 | 31812 | 4433533 |
| 3 | 05/26/2015 | WD | Warranty Deed | MARY M STERN | OLSON TRUSTEE, CAROL T C | | | $350,000.00 | 19756 | 4379169 |
| 4 | 03/09/2011 | | | STERN, MARY M | MARY M STERN | | | | 82001 | |
| 5 | 09/30/2004 | WD | Warranty Deed | JOHNSON, SHIRLEY E | STERN, MARY M | | | $220,000.00 | 44645 | 4114516 |
| 6 | 12/14/2001 | WD | Warranty Deed | COMPASS INVESTMENTS INC, | JOHNSON, SHIRLEY E | | | $193,402.00 | 14875 | 4006867 |
| 7 | 01/01/1900 | OTHER | Other - Misc. Documents | Unknown | COMPASS INVESTMENTS INC, | | | $0.00 | 0 | 0 |
Payout Agreement
| No payout information available.. |